Va propun spre vanzare un apartament cu 2 camere intr-un proiect rezidential de tip boutique, amplasat in Zona Mihai Eminescu, conceput de biroul de arhitectura ADNBA.
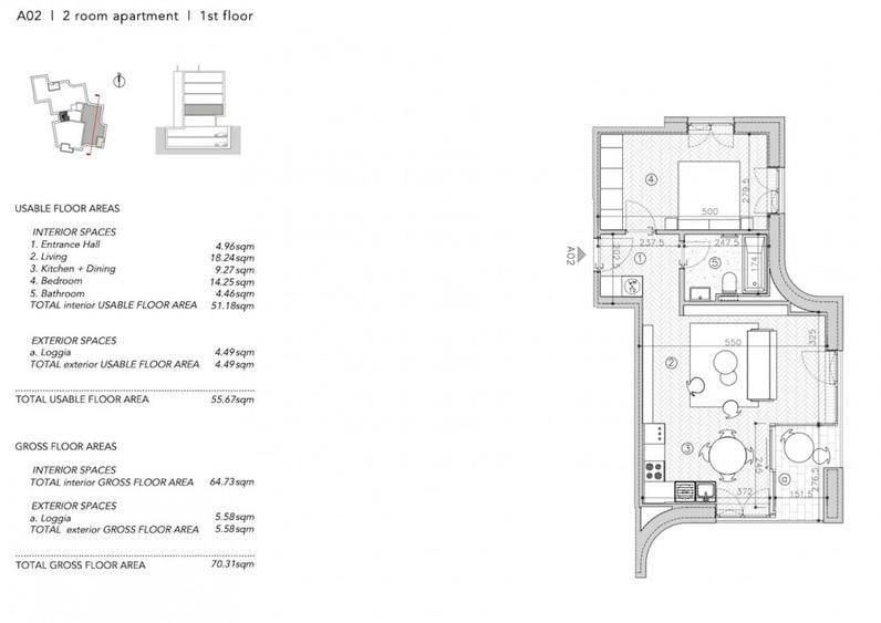
Apartamentul cu 2 camere este situat la etajul 1, intrun imobil in curs de finalizare, stadiul proiectului fiind la fatada, are suprafata construita total de 70,31 mp, suprafata utila de 55,67 mp si logie cu suprafata de 4,49 mp.
Proiect rezidential: S2+P+E2+E3/4 retras.
Ansamblul dispune de 11 unitati locative, 2 spatii de birou la parter, 4 boxe la subsol si 14 locuri de parcare.
Lucrarile au fost demarate in 2022, iar in prezent este finalizata executia structurii de rezistenta si zidaria.
Cel mai exclusivist proiect rezidential boutique din Bucuresti, unde eleganta contemporana intalneste rafinamentul interbelic intr-un stil de viata cu adevarat elegant. Imobilul este situat intr-o locatie privilegiata din Bucuresti, oferind acces usor la o varietate de facilitati si atractii instant. Cu magazine exclusiviste, restaurante rafinate si spatii verzi in imediata apropiere, acesta creeaza un sanctuar de relaxare intr-o atmosfera urbana vibranta, imprimand un aer de eleganta si rafinament.
Proiectul Rezidential din punct de vedere arhitectural este un proiect ''landmark'' in zona Centrala a Bucurestiului si se adreseaza iubitorilor de arhitectura si design.
Finisajele de foarte buna calitate, ofera spatiului un design cu totul si cu totul deosebit, in care poti simti caldura de ACASA. Suprafețele vitrate mari faciliteaza patrunderea in apartament a luminii naturale, iar tamplaria de aluminiu cu geam tripan creeaza comfort termic și fonic absolut.
Ansamblul de locuințe este amplasat pe o suprafata de teren ce totalizeaza 434/436 mp acte/masuratori, fiind alcatuit din imobil locuinte colective, cu regim de inaltime 2S+P+2E+3E Retras+4E Retras, in suprafata construita la sol de 253.8 mp, suprafata construita desfasurata de 1090 mp, fiind alcatuite din 13 apartamente avand destinatia de locuinta, parter cu 2 apartamente si spatii comune, etaj 1 cu 3 apartamente si spatii comune, etaj 2 cu 3 apartamente si spatii comune, etaj 3 retras cu 3 apartamente si spatii comune, etaj 4 retras cu 2 apartamente si spatii comune; subsol 1 in care exista proprietați comune si proprietati individuale: spatii tehnice- centrala termica, camera generator electric, camera tablou electric general si parcare- 7 locuri, 2 boxe; subsol 2 in care exista proprietați comune si proprietati individuale: spatii tehnice-adapost protectie civila, gospodarie apa potabila si parcare-7 locuri, 2 boxe.
Accesul pietonal se face dinspre partea carosabila, accesul auto si intrarea incinta subsol se face dinspre partea carosabila fiind organizata pe baza de acces cu poarta de garaj automata si lift de autovehicule de maxim 2,7 tone (la accesul in subsol). Incinta este organizata ca un teritoriu privat, detinut in indiviziune pe cote-parti de catre proprietarii de Apartamente/Locuri de parcare/boxe.
Fiind un proiect rezidential boutique, nu sunt multe unitati de vanzare, iar in momentul de fata avem 2 unitati de vanzare, asadar, nu sta pe ganduri si programeaza o vizionare!
100%dintre proprietățile similare ca zonă și nr. camere au prețul cerutmai mic.
mai multe...
Bine de știut: prețul unei proprietăți este influențat și de alte caracteristici, cum ar fi: vechime, localizare, vecinătăți, suprafață, compartimentare, amenajări, dotări, etc.
mai puțin...
Costuri cu achiziția
Fără credit
14.584 RON
Credit ipotecar
17.141 RON
Noua casă
1.874 RON+ taxe notariale
i
Costuri adiționale mai puțin știute la achiziție: taxe notariale, comisioane etc.
Calculul ipotecarului
Proprietăți recomandate
Pornind de la căutarea ta îți recomandăm următoarele anunțuri
Sediul central - Timișoara
Bulevardul Victor Babeș nr. 2, 300230, Timișoara, România
Tel: +40.374.40.44.98 / Fax: +40.256.401.179
Email: suport@imobiliare.ro
Luni - Vineri 08:00 - 20:00
Punct de lucru - București: Iride Business Park, Bld. Dimitrie
Pompeiu 9-9A, Clădirea B2B,
020335, Sector 2, București, România
CONTACT
Sediul central - Timișoara
Bulevardul Victor Babeș nr. 2, 300230, Timișoara, România
Tel: +40.374.40.44.98 / Fax: +40.256.401.179
Email: suport@imobiliare.ro
Luni - Vineri 08:00 - 20:00
Punct de lucru - București: Iride Business Park, Bld. Dimitrie
Pompeiu 9-9A, Clădirea B2B,
020335, Sector 2, București, România
Sună acum și cere detalii sau programează o vizionare.
Cere detalii prin email
*
*
*
*
Stații autobuz
Stații tramvai
Stații metrou
Stații troleibuz
Școli
Gradinițe
Universități
Supermarket
Mall
Parcări
Parcuri
Piețe publice
Terenuri sport
Spital
Farmacie
Restaurant
Cafenea
Bar
Pub
Bancă
Batistei
aprox.
306 m
Statia Batistei; Linia:N123
aprox.
309 m
Batistei
aprox.
333 m
Maria Rosetti
aprox.
371 m
Statia Nicolae Balcescu; Liniile:168, 300, 368, 226, 126
aprox.
486 m
Statie RATB Rosseti 311 (en)
aprox.
598 m
Statia Piata Rosetti linii : 61,66,69,70,85,90,91,92,336,601.
aprox.
612 m
Statia Piata Universitatii linii : 122,137,138,268,381,783.
aprox.
612 m
Piata Lahovari
aprox.
623 m
Bd. Carol I
aprox.
657 m
Statie RATB Piata Universitatii a
aprox.
757 m
Bulevardul Carol I
aprox.
824 m
Mihai Eminescu
aprox.
871 m
Sala Palatului
aprox.
900 m
Statia Piata Sf. Gheorghe, linii: 5,16, 21, 381
aprox.
979 m
Statia Batistei; Linia: 5, 16
aprox.
338 m
Statia Maria Rosetti;Liniile:5, 16
aprox.
381 m
Maria Rosetti
aprox.
409 m
Bd. Carol I
aprox.
613 m
Statia Piata Gemeni; Linia:5, 16
aprox.
661 m
Statia Armeneasca / Bd. Carol I, linia 5,16
aprox.
676 m
Teatrul Metropolis
aprox.
693 m
Hristo Botev
aprox.
813 m
Teatrul Metropolis
aprox.
815 m
Bulevardul Carol I
aprox.
839 m
Bd. Hristo Botev
aprox.
842 m
Statie Bd. Carol I / Calea Mosilor linii : 21
aprox.
842 m
Statia Mihai Eminescu; Linia:16
aprox.
871 m
Mihai Eminescu
aprox.
924 m
Piata Sf. Gheorghe
aprox.
964 m
Metrorex. Stația Universitate (M2)(1987)
aprox.
579 m
Statia Metrou Piata Universitatii(M2)Metrorex
aprox.
674 m
Universitate (M2)
aprox.
682 m
Statia Metrou Piata Romana(M2)Metrorex
aprox.
697 m
Statia Metrou Piata Universitatii(M2)Metrorex
aprox.
730 m
Metrorex. Stația Piața Romană (M2)(1988)
aprox.
736 m
Piata Romana (M2)
aprox.
736 m
Statia Metrou Piata Romana(M2)Metrorex
aprox.
777 m
Metrorex. Stația Ștefan cel Mare (M1)(1989)
aprox.
1295 m
Metrorex. Stația Piața Unirii 2 (M2) (en)
aprox.
1372 m
Metrorex. Stația Piața Unirii 2 (M2)(1986)
aprox.
1501 m
Metrorex. Stația Piața Unirii 1 (M1) (en)
aprox.
1509 m
Piata Unirii 2
aprox.
1510 m
Izvor
aprox.
1514 m
Metrorex. Statia Izvor (M1) , (M3).
aprox.
1520 m
Statia Calea Dorobantilor; Liniile:79, 86,
aprox.
812 m
Statia Piata Romana linii : 79,86
aprox.
897 m
Statia Foisorul de Foc linii : 79,86
aprox.
1263 m
Statia Vasile Parvan 66,70,92
aprox.
1793 m
Statia Facultatea de Drept, linia 61,69,90,91
aprox.
1953 m
Statia Mihai Bravu; Liniile:69, 85,
aprox.
1981 m
Scoala de muzica nr. 4
aprox.
96 m
Scoala Nr. 19 Tudor Arghezi
aprox.
207 m
Școala Centrală din Bucuresti
aprox.
261 m
Scoala Centrala
aprox.
271 m
SNSPA - Cladirea CIC
aprox.
286 m
Schiller Institut
aprox.
336 m
ASLS (en)
aprox.
358 m
Amfiteatrul Sahia
aprox.
386 m
Grup Școlar "Dragomir Hurmuzescu"
aprox.
408 m
Goethe Institut (en)
aprox.
441 m
Scoala Ajutatoare nr. 1
aprox.
464 m
GRADINITA DE COPII NR. 8 "LICURICI"
aprox.
483 m
Cursuri Paleologu
aprox.
516 m
Lexis scoli de limbi straine
aprox.
590 m
Ateneul roman, Bucuresti
aprox.
607 m
Gradinita nr.203 (fosta Clementa)
aprox.
173 m
Gradinita nr. 203 program prelungit
aprox.
186 m
Gradinita nr.4 "Lizuca"
aprox.
332 m
Gradinita numarul 257
aprox.
388 m
Gradinita Ioanid
aprox.
480 m
Ioanid
aprox.
494 m
Gradinita numarul 133
aprox.
502 m
Gradinita nr. 116
aprox.
785 m
Gradinita nr. 85
aprox.
929 m
Gradinita numarul 8
aprox.
963 m
Gradinita nr. 138 cu program prelungit
aprox.
1109 m
Gradinita nr. 252 cu program prelungit
aprox.
1168 m
Gradinita
aprox.
1175 m
Gradinita Magica
aprox.
1254 m
Gradinita nr. 248
aprox.
1621 m
Rectoratul UMF "Carol Davila"
aprox.
281 m
University of Bucharest - Faculty of Foreign Languages and Literatures (en)
aprox.
356 m
Centrul de Limbi Straine Ariel
aprox.
364 m
Facultatea de Farmacie
aprox.
381 m
Facultatea de Farmacie/Pharmacy Faculty
aprox.
386 m
Palatul Fundației Universitare "Carol I"
aprox.
616 m
UAUIM -Universitatea de Arhitectura si Urbanism Ion Mincu
aprox.
682 m
Facultatea de Limbi si Literaturi Straine
aprox.
695 m
Facultatea de Chimie
aprox.
707 m
Facultatea de litere (en)
aprox.
710 m
Facultatea de Istorie
aprox.
768 m
Facultatea de Matematica-Informatica
aprox.
768 m
Facultatea de Stiinte
aprox.
798 m
CROS - Universitatea Alternativa
aprox.
832 m
ASE - Facultatea de Comert
aprox.
849 m
OK Non-stop Supermarket (en)
aprox.
129 m
OK Non-Stop
aprox.
129 m
Mega Image - Icoanei
aprox.
276 m
Mega Image Rosetti Non-Stop
aprox.
382 m
ilanplant
aprox.
435 m
Pravalia Maestrului
aprox.
464 m
Bacania Coco
aprox.
466 m
Mega Image Magheru
aprox.
603 m
Mega Image Concept Store
aprox.
626 m
Mega Image Paleologu
aprox.
713 m
Nik Non-Stop
aprox.
757 m
Mega Image Amzei Non-Stop
aprox.
805 m
BILLA - Dorobanti
aprox.
926 m
Bila Supermarket
aprox.
944 m
Mega Image Brezoianu
aprox.
1016 m
"METROPLIS CENTER"
aprox.
1376 m
Parcare
aprox.
85 m
Parcare cu plata
aprox.
385 m
Parcare
aprox.
404 m
Parcare
aprox.
418 m
Parcare
aprox.
467 m
Parcare
aprox.
517 m
Parcare cu plata
aprox.
555 m
Parcare
aprox.
591 m
Parcare
aprox.
643 m
Parcare
aprox.
649 m
Parcare
aprox.
663 m
Parcare
aprox.
668 m
Parcare
aprox.
670 m
Parcare
aprox.
690 m
Parcare
aprox.
697 m
60 Minutes
aprox.
80 m
Small park (en)
aprox.
235 m
Parc
aprox.
235 m
Gradina Icoanei
aprox.
257 m
Parcul "Grădina Icoanei"
aprox.
260 m
Parc
aprox.
291 m
Parc
aprox.
292 m
Small park (en)
aprox.
441 m
Parc
aprox.
441 m
Parc
aprox.
463 m
Parcul Ion Voicu
aprox.
472 m
Parcul "Ioanid"
aprox.
473 m
Parc
aprox.
543 m
Parc
aprox.
550 m
Spatiu verde
aprox.
575 m
Piata Rosetti
aprox.
586 m
Piata Universitatii
aprox.
627 m
Piata Revolutiei
aprox.
642 m
Piata Latina
aprox.
837 m
Piața Drapelului (Tricolorului)
aprox.
912 m
Piața Romană
aprox.
912 m
Piata Roma
aprox.
1084 m
Piata Timpului
aprox.
1188 m
Piața Sfântul Anton
aprox.
1289 m
Piata Natiunilor Unite
aprox.
1465 m
Piata Bibescu
aprox.
1782 m
Piata Bucur Obor
aprox.
1868 m
Piata Emil Cioran (Vergilius) (en)
aprox.
1886 m
Piața Constituției
aprox.
1893 m
Teren sportiv
aprox.
1315 m
Teren sportiv
aprox.
1414 m
Teren sportiv
aprox.
1456 m
Teren sportiv
aprox.
1494 m
Stadionul Dinamo
aprox.
1531 m
Teren sportiv
aprox.
1616 m
Teren sportiv
aprox.
1681 m
Teren sportiv
aprox.
1704 m
Teren sportiv
aprox.
1722 m
Teren sportiv
aprox.
1764 m
Teren sportiv
aprox.
1796 m
Baza sportiva Universitatea Bucuresti
aprox.
1834 m
Teren sportiv
aprox.
1845 m
Teren sportiv
aprox.
1848 m
teren tenis
aprox.
1854 m
Clinica Reumatologie "Dr. Ion Stoia"
aprox.
49 m
Clinica de 10
aprox.
192 m
Policlinica (en)
aprox.
253 m
Centrul Medical Batistei
aprox.
278 m
Centrul Medical Academica
aprox.
387 m
Institutul de Diabet NCPaulescu (en)
aprox.
535 m
Spitalul Cantacuzino
aprox.
568 m
Dacia Medical Center
aprox.
590 m
Spitalul de Oftalmologie
aprox.
616 m
Spitalul Clinic de Urgente Oftalmologice
aprox.
626 m
Centrul Medical Unirea Enescu
aprox.
653 m
INGG Ana Aslan Spatarului nr. 15 (en)
aprox.
662 m
Optim Sano
aprox.
666 m
Centrul Medical Unirea sediul Enescu
aprox.
681 m
Centrul medical Sanatatea TA
aprox.
702 m
Farmacia Apifarm
aprox.
187 m
Farmacia Artafarm
aprox.
240 m
Farmacia Tarsis Impex
aprox.
274 m
belladona
aprox.
495 m
Sensiblu
aprox.
507 m
Sensiblu
aprox.
559 m
Sensiblu
aprox.
579 m
Royal Blu Pharmacy
aprox.
587 m
Prindcom
aprox.
591 m
HelpNet
aprox.
596 m
Reteta
aprox.
608 m
Farmacia Artafarm
aprox.
609 m
Farmacia Arta
aprox.
619 m
Farmacia Dona
aprox.
703 m
Help Net Farma
aprox.
705 m
Restaurant La Union
aprox.
37 m
Stish -Steak & Fish-
aprox.
60 m
Restaurantul Argentina
aprox.
66 m
Red Season
aprox.
79 m
La Cena
aprox.
98 m
Mesogios Fish Restaurant
aprox.
105 m
Villa Rodizio (en)
aprox.
124 m
Trattoria Bocca
aprox.
145 m
Pizzicato delivery
aprox.
149 m
Gargantua Grill & Bar
aprox.
150 m
Restaurant Cucina Borghese
aprox.
207 m
Christie's Restaurant
aprox.
209 m
Gargantua
aprox.
209 m
Christie's
aprox.
215 m
Beautyfood
aprox.
229 m
Hobby Caffe & Shop
aprox.
44 m
Newton Caffe
aprox.
46 m
Vesuvio Cafe
aprox.
58 m
Lente Praporgescu
aprox.
149 m
Hathor Cafe
aprox.
393 m
Mi-nut
aprox.
402 m
Gradina OAR
aprox.
409 m
Gradina Verona
aprox.
464 m
T-zero
aprox.
490 m
T-zone
aprox.
490 m
Zvon Caffe
aprox.
523 m
5 To Go Lahovari
aprox.
525 m
Cafeneaua Arhitectilor
aprox.
544 m
Mara Mura
aprox.
575 m
Lente Arcului
aprox.
593 m
Que Pasa
aprox.
216 m
Trei Betivi
aprox.
356 m
Piua Book Bar
aprox.
460 m
Dianei Patru
aprox.
479 m
MIM Bistro
aprox.
518 m
Fratelli Espresso Bar
aprox.
561 m
Geo Bar
aprox.
699 m
Alan Dala
aprox.
710 m
Lokal
aprox.
731 m
Frame
aprox.
732 m
Underworld
aprox.
748 m
Epic
aprox.
750 m
Macaz Bar Teatru Coop
aprox.
761 m
Yellow Bar
aprox.
800 m
Zappa Rock & More
aprox.
891 m
Have a Cigar
aprox.
383 m
Smart's Pub & Bistro
aprox.
391 m
OLD NICK PUB
aprox.
535 m
Waldo's
aprox.
540 m
Coloseum
aprox.
712 m
Panik & Pub
aprox.
734 m
Question Mark Social Club
aprox.
755 m
Edgar`s Pub
aprox.
777 m
Club Surubelnita
aprox.
780 m
Clock`s
aprox.
806 m
Charlatans Irish Pub
aprox.
852 m
Bluzz
aprox.
979 m
Club A
aprox.
1008 m
Dharma
aprox.
1021 m
Hanul cu Tei
aprox.
1022 m
UniCredit Bank - Ag. Rosetti
aprox.
78 m
Ion Tiriac Banc (en)
aprox.
85 m
BRD (en)
aprox.
252 m
BRD Calderon-Batistei
aprox.
252 m
azur finance (en)
aprox.
302 m
Emporki Bank
aprox.
338 m
Piraeus Bank
aprox.
397 m
Credit Europe Bank
aprox.
398 m
Garanti Bank
aprox.
407 m
Sucursala ING Bank (en)
aprox.
431 m
ING Balcescu
aprox.
431 m
Libra Internet Bank
aprox.
444 m
Credit Europe Bank
aprox.
456 m
Raiffeisen Bank
aprox.
466 m
Sucursala Raiffeisen Bank (en)
aprox.
472 m
Zona Ștefan cel Mare - Dacia - Eminescu - Armenească este destul de bine conectată cu alte cartiere din București prin intermediul mijloacelor de transport în comun. Printre acestea amintim autobuzul 605 pe care îl poți lua pentru a ajunge la mall-ul Băneasa Shopping City, tramvaiul 16 care te poate ajuta să ajungi la Piața Sf. Vineri și troleibuzul 86 care oferă o legătură directă cu Gara de Nord. Mai multe stații de metrou sunt și ele disponibile în apropiere. Este vorba despre Ștefan cel Mare și Obor, aflate pe magistrala 1 Dristor - Pantelimon, și despre Piața Romană și Universitate situate pe traseul magistralei 2 Berceni-Pipera. Consultă harta pentru a afla poziționarea exactă a stațiilor mijloacelor de transport în comun.
În zona Ștefan cel Mare - Dacia - Eminescu - Armenească vei găsi mai multe unități de învățământ, de stat și private. Amintim astfel Colegiul Național Școala Centrală de lângă Parcul Grădina Icoanei, Colegiul Național "Spiru Haret" de pe Strada Italiană, Colegiul Național "Cantemir Vodă" și Liceul Economic "Virgil Madgearu", ambele situate pe Bulevardul Dacia. Școala Sanitară Postliceală "Carol Davila" se află și ea în această zonă, iar Academia de Studii Economice din București poate fi găsită în apropiere, la Piața Romană. Consultă harta pentru a vedea care vor fi cele mai apropiate grădinițe, școli și licee de viitoarea ta locuință.
În această zonă vei găsi, în principal, magazine mici și câteva supermarketuri. La intersecția dintre Bulevardul Dacia și Strada Vasile Lascăr vei avea la dispoziție Piața Gemeni și un concept store Mega Image. Cel mai apropiat mall este situat în zona Obor. Este vorba despre Veranda Mall, unul dintre cele mai noi astfel de centre comerciale din București. Tot aici găsești magazinul Bucur Obor și o piață. Cu mașina poți ajunge destul de rapid și la mall-ul Promenada sau la complexul comercial cu magazin Kaufland și Carrefour Market de pe Strada Barbu Văcărescu. Consultă harta și află ce alte opțiuni mai ai aproape de viitoarea ta casă, dar și în împrejurimi.
Îți recomandăm să verifici dacă există posibilitatea închirierii unui loc de parcare în apropierea locuinței de care ești interesat. Poți face acest lucru apelând la Serviciul Parcări din cadrul ADP Sector 2. Atunci îți aducem în atenție faptul că Bulevardul Dacia, Strada Mihai Eminescu și Strada Polonă sunt unele dintre cele mai circulate din această zonă. Trafic intens vei întâlni, totodată, la intersecția dintre Calea Dorobanți, Bulevardul Dacia și Strada Mihai Eminescu. Aglomerație vei găsi și pe Bulevardul Ștefan cel Mare, mai ales la orele de vârf și în zilele în care se organizează evenimente sportive în cadrul stadionului Dinamo. Consultă harta și vezi unde se găsesc principalele parcări din această zonă.
În zona Ștefan cel Mare - Dacia - Eminescu - Armenească se organizează periodic diferite evenimente, de la ateliere, la festivaluri și demonstrații de artă stradală. Dacă te vei muta în această parte a orașului, vei avea la doi pași de casă mai multe ceainării, restaurante, spații unde se organizează jocuri de tip escape room și trei teatre - Țăndărică, Metropolis și Bulandra. Pentru evenimente culturale și seri de film vei putea merge pe Bulevardul Dacia, la Institutul Francez din București. Ajungi repede și în centru, unde poți fi spectatorul unei piese puse în scenă de actorii Teatrului Național București. Parcurile Grădina Icoanei și Ioanid, deși sunt destul de restrânse ca suprafață, sunt unele dintre cele mai frumoase din această parte a orașului. Totodată, în nordul acestei zone, în imediata apropiere a Șoselei Ștefan cel Mare, vei găsi Circul Metropolitan București și parcul acestuia, iar în vecinătatea lor Stadionul Dinamo și complexul său sportiv. Nu uita, totodată, că din această zonă vei ajunge destul de rapid în Centrul Vechi, unde pe lângă terase și restaurante găsești și câteva obiective turistice care merită vizitate măcar o dată. Află ce alte puncte de interes găsești în zona Ștefan cel Mare - Dacia - Eminescu - Armenească și din vecinătatea acesteia. Consultă harta.
Dacă te vei muta în această zonă, vei avea la dispoziție mai multe spitale și clinici private. Printre acestea se numără Spitalul Clinic Dr. Ion Cantacuzino din zona Pieței Gemeni și Spitalul Ion Stroia . Alte unități sanitare din vecinătate sunt Spitalul Clinic Colentina, Spitalul Sf. Ștefan, Spitalul Clinic de Urgență București (cunoscut și ca Floreasca) și Spitalul Euroclinic din rețeaua privată de sănătate Regina Maria. Toate acestea sunt concentrate în nordul zonei Ștefan cel Mare - Dacia - Eminescu - Armenească, în vecinătatea Stadionului Dinamo și a Parcului Circului. Vezi pe hartă localizarea exactă a unităților medicale de mai sus.
Presărate pe străzile din această zonă găsești mai multe terase și restaurante mici. Câteva dintre cele mai cochete se află în vechiul cartier Armenesc. De aici ajungi extrem de repede și în Centrul Vechi al orașului, pentru mai multă diversitate. Fiind atât de aproape de centrul orașului, vei avea la dispoziție extrem de multe opțiuni. Restaurantele și cafenelele din Dorobanți sau de pe Calea Floreasca pot fi cu siguranță pe gustul tău. Dacă vrei să faci și o plimbare, să admiri arhitectura frumoasă a vechilor clădiri din București și să te oprești la o cafea sau la o prăjitură, atunci Calea Victoriei poate fi ideală. Pentru o mică gustare sau un meniu fast food ai mai multe variante în zona Obor, iar dacă te grăbești atunci poți încerca drive through-ul McDonald"™s de pe Strada Barbu Văcărescu. Aruncă o privire pe hartă și vezi ce alte restaurante, terase sau cafenele ai în zonă.
Găsești mai multe sucursale bancare și ATM-uri în special pe Șoseaua Ștefan cel Mare. Aruncă o privire pe hartă și vezi ce alte opțiuni găsești în apropierea viitoarei tale locuințe.
Înainte să pleci...
Ești sigur că ai văzut și aceste proprietăți?
255.000 € + TVA
București, Eminescu
2 camere
74,89 mp
Etaj 7
277.200 € + TVA
București, Central
2 camere
64,46 mp
Etaj 1
199.000 € + TVA
București, Eminescu
2 camere
52 mp
Etaj 1 / 4
380.000 € + TVA
București, Eminescu
3 camere
90 mp
Parter / 7
649.990 €
București, Eminescu
4 camere
139 mp
Etaj 4 / 5
185.000 € + TVA
București, Eminescu
2 camere
54,4 mp
Etaj 3
Creează alertă
Salvează căutarea ca să primești pe email ultimele anunțuri publicate
Apartamente noi cu 2 camere de vânzare în zona Eminescu, Sector 2
Cere detalii prin email
*
*
*
*
Detaliile tale de contact vor fi partajate cu Personal Property Advisor
Asigurare de viață/lună Costul este variabil. În funcție de banca aleasă, procentul variază între 0.0259% și 0.035% din soldul creditului.
Costuri cu achiziția17.141 RON
Comision agenție Întreabă agenţia
Onorariu notarial11.983 RON
Taxă întabulare OCPI2.601 RON
Autentificare contract credit2.557 RON
Preț de achiziție1.734.035 RON
Preț locuință1.433.086 RON
TVA 21%300.948 RON
Preț de achiziție1.734.035 RON
Preț locuință1.433.086 RON
TVA 21%
300.948 RON
Avans minim1.127.658 RON
Credit pe 30 de ani606.376 RON
Cost achitat în prima lună
Taxa evaluare imobil(până la)
575 RON
Rata lunară (variabilă)4.261 RON
Depozit colateral12.783 RON
Comision de garantare FNGCIMM145 RON
Asigurare anuală imobil1.734 RON
Poliță PAD130 RON
Tarif arhivă electronică102 RON
Costuri adiționale1.874 RON + taxe notariale
Asigurare viață și complexă (opțională)Costul este variabil. În funcție de banca aleasă, procentul variază între 0.0259% și 0.035% din soldul creditului
Onorariu notarialconform tarif notarial
Taxă întabulare OCPI1.874 RON
i
Toate valorile de mai sus sunt estimative și nu reprezintă în mod obligatoriu costurile exacte pe care le veți primi de la companiile/instituțiile prin care veți încheia tranzacția.