REA1027674 Apartament 3 camere I Metrou Piata Iancului I Centrala Proprie

159.000 €

Iancului, București

Nr. cam.:
3
Sup. utilă:
61 mp
Etaj:
3 / 10
An constr.:
1964 (Finalizată)
  • • Locație aproximativă
  • • Vizionare prin apel video

Descriere apartament

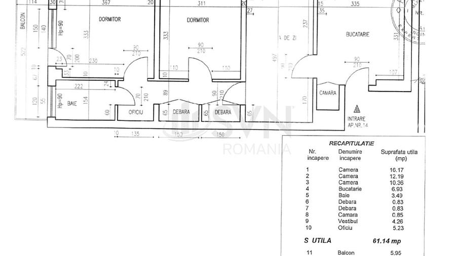
SVN Romania va propune spre vanzare un apartament de 3 camere situat in zona Piata Iancului, la 2 minute distanta pietonala de metrou. Apartamentul este situat la etajul 3/10, al unui bloc construit in anul 1964, semidecomandat, avand o suprafata utila de 61 mp si un balcon de 6 mp. Blocul a fost anvelopat in anul 2023 si NU este incadrat in nicio clasa de risc seismic sau urgenta. Locuinta se vinde complet mobilata si utilata, asa cum este prezentata in imagini. Acesta beneficiaza de ferestre mari, care confera lumina naturala generoasa si dispune de 2 dormitoare, bucatarie separata, baie cu geam, un dressing mare pe hol, printre altele se regasesc si 3 unitati AC, electrocasnice incluse, masina de spalat vase, masina de spalat rufe, plita pe gaz, cuptor electric. Apartamentul dispune de incalzire proprie, avand centrala termica de apartament. Zona ofera acces rapid la metrou (statia Piata Iancului) si numeroase linii de transport in comun, facilitand legatura cu centrul orasului. In apropiere se gasesc supermarketuri, Piata Obor, Mega Mall si Veranda Mall, precum si restaurante, farmacii si banci. Este o zona bine dezvoltata, potrivita atat pentru locuit, cat si pentru investitie. Pentru mai multe informatii sau pentru programarea vizionarilor, contactul meu va sta la dispozitie ***Vizionarea acestui imobil se face doar în baza semnarii unui acord de vizionare conform codului civil, art 2.096-2.102.
Citește mai mult Citește mai puțin
Confort 1 Semidecomandat Acceptă animale de companie Mobilat Complet 1 Balcon Aer condiționat Calorifere Centrală proprie

Detalii apartament

ID anunț: X658006AP Copiat! 274980917 Copiat!
Actualizat în: 16 Februarie 2026
Suprafață utilă totală: 67 mp
Suprafață construită: 67 mp
Nr. bucătării: 1
Nr. băi: 1
Structură rezistență: Beton
Tip imobil: Bloc de apartamente
Regim înălțime: P+10E

Utilități

Destinație
Rezidențial
Pereți
Faianță
Podele
Gresie Parchet
Ferestre cu geam termopan
PVC
Contorizare
Apometre
Bucătărie
Mobilată
Dotări imobil
Interfon
Utilități
Gaze CATV Curent
Acces internet
Cablu Fibră optică
Comision
Standard

Vicii:

Fără vicii.

Disponibilitate proprietate:

Disponibil din 16/02/2026.

Puncte de interes

Mijloace transport
bus-station
Statia Agricultorilor linia 90, 86
Stații autobuz aprox. 170 m
tram-station
Statia Piata Iancului, linia 31
Stații tramvai aprox. 208 m
trolleybus-station
Statia Piata Iancului, linia 55
Stații troleibuz aprox. 279 m
metro-station
Statia Soseaua Mihai Bravu, linia 14
Stații metrou aprox. 665 m
Școală
school
Scoala Nr. 85 Vasile Bunescu (en)
Școli aprox. 106 m
school
Asociatia Culturala Bravissimo
Școli aprox. 173 m
kindergarten
Gradinita Schritt fuer Schritt
Gradinițe aprox. 187 m
university
Universitatea Nationala de Arta Teatrala si Cinematografica
Universități aprox. 266 m
Recreere
sports-ground
Teren sportiv
Terenuri sport aprox. 181 m
supermarket
White Jaguar
Supermarket aprox. 247 m
public-square
Piata Iancului
Piețe publice aprox. 270 m
park
Parc
Parcuri aprox. 324 m

Detalii despre preț și costuri

Prețul pe piață

Preț cerut: 159.000 €

Preț min. zonă 98.000 €
Preț max. zonă 330.000 €

64% dintre proprietățile similare ca zonă și nr. camere au prețul cerut mai mic. mai multe...

Bine de știut: prețul unei proprietăți este influențat și de alte caracteristici, cum ar fi: vechime, localizare, vecinătăți, suprafață, compartimentare, amenajări, dotări, etc. mai puțin...

Costuri cu achiziția

Fără credit
8.361 RON
Credit ipotecar
10.149 RON
Noua casă
950 RON+ taxe notariale

i

Costuri adiționale mai puțin știute la achiziție: taxe notariale, comisioane etc.

Proprietăți similare

Apartament cu 3 camere semidecomandat, mobilat în Iancului
145.000 €
București, Iancului
3 camere
65 mp
Etaj 8 / 9
Apartament cu 3 camere semidecomandat în Iancului
146.000 €
București, Iancului
3 camere
64 mp
Etaj 3
Apartament cu 3 camere semidecomandat în Iancului
159.000 €
București, Iancului
3 camere
61 mp
Etaj 3

Detalii de contact

SVN Romania | Residentialist | Victoriei

Ramona Badea Associated Advisor

SVN Romania | Residentialist | Victoriei
PRO

Abonează-te la newsletter să fii primul care primește cele mai noi recomandări de proprietăți și sfaturi de la experți.

CONTACT

Creează alertă

Salvează căutarea ca să primești pe email ultimele anunțuri publicate

Apartamente cu 3 camere de vânzare în zona Iancului, Sector 2