2

Apartament tip decomandat cu 2 camere langa Mall Veranda - COMISION 0 %.

150.000 € + TVA

Obor, București

Nr. cam.:
2
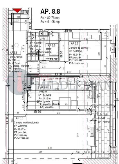
Sup. utilă:
61 mp
Etaj:
5 / 9
An constr.:
2025 (În construcție)
  • • Comision 0%
  • • Locație aproximativă
  • • Vizionare prin apel video

Descriere apartament

Heliade12 este povestea unui concept rezidențial nou pe piața imobiliară din România, un spațiu armonios, ce îmbină cu succes facilitățile ultra-moderne și confortul pentru toți cei care îi calcă pragul. Dotat la cele mai înalte standarde, îmbină cu precădere tot ce înseamnă un stil de viață modern, dar cel mai important, este conceput să fie mai mult decât o casă, o experiență completă ce îți va delecta toate simțurile, cu alte cuvinte… acel “ACASĂ” la care visai încă de la început. Se adresează oamenilor activi, ce își doresc să fie aproape de inima orașului și să aibă asigurată conectivitatea cu marile puncte de interes ale capitalei. Cu toate acestea, Heliade12 este conceput într-un cadru intim, în care zgomotele cotidiene nu își au locul în cadrul locuinței. Pentru momente ce merită trăite acasă, te invităm să faci parte din povestea noastră. Locuri de parcare tip Klauss 22.000 E+ Tva( 2 locuri )
Citește mai mult Citește mai puțin
Confort 1 Decomandat Nemobilat 1 Balcon Centrală proprie Încălzire prin pardoseală

Detalii apartament

ID anunț: X81N1008A Copiat! 274818017 Copiat!
Actualizat în: 06 Februarie 2026
Suprafață construită: 82 mp
Nr. bucătării: 1
Nr. băi: 1
Structură rezistență: Cărămidă
Tip imobil: Bloc de apartamente
Regim înălțime: S+P+9E

Utilități

Destinație
Rezidențial
Pereți
Faianță Vopsea lavabilă
Podele
Gresie Parchet
Ușă intrare
Metal
Uși interior
Lemn
Contorizare
Apometre Contor căldură Contor gaz
Diverse
Telecomandă poartă garaj
Dotări imobil
Acoperiș Interfon Lift
Utilități
Curent Apă Canalizare CATV Gaze Telefon
Acces internet
Cablu
Amenajare străzi
Iluminat stradal Mijloace de transport în comun Asfaltate
Comision
0%

Vecinătăți:

PIATA OBOR , MALL VERANDA

Disponibilitate proprietate:

Imediat

Puncte de interes

Mijloace transport
tram-station
Halele Obor
Stații tramvai aprox. 48 m
bus-station
Statia Soseaua Colentina / Ziduri Mosi, linia 143, 682, 254, N101, 101, 21, 36,66
Stații autobuz aprox. 278 m
metro-station
Metrorex. Stația Obor (M1)(1989)(Fosta statie de tramvai subterana)
Stații metrou aprox. 418 m
trolleybus-station
Statia Teiul Doamnei, linia 66
Stații troleibuz aprox. 450 m
Școală
university
Universitatea Spiru Haret - Facultatea de Medicina veterinara
Universități aprox. 443 m
kindergarten
Gradinita Sakura
Gradinițe aprox. 524 m
school
Bazin de inot
Școli aprox. 558 m
university
UTCB-Laborator de Hidraulica si Protectia Mediului
Universități aprox. 1265 m
Recreere
park
Parcul Pasarari
Parcuri aprox. 88 m
supermarket
Veranda Mall
Supermarket aprox. 136 m
public-square
Piata Bucur Obor
Piețe publice aprox. 354 m
sports-ground
Parter - Hala mare
Terenuri sport aprox. 497 m

Detalii despre preț și costuri

Prețul pe piață

Preț cerut: 150.000 €

Preț min. zonă 64.000 €
Preț max. zonă 169.000 €

83% dintre proprietățile similare ca zonă și nr. camere au prețul cerut mai mic. mai multe...

Bine de știut: prețul unei proprietăți este influențat și de alte caracteristici, cum ar fi: vechime, localizare, vecinătăți, suprafață, compartimentare, amenajări, dotări, etc. mai puțin...

Costuri cu achiziția

Fără credit
9.132 RON
Credit ipotecar
11.015 RON
Noua casă
1.065 RON+ taxe notariale

i

Costuri adiționale mai puțin știute la achiziție: taxe notariale, comisioane etc.

Proprietăți recomandate

Detalii de contact

THE MIDDLEMAN

Alina Mocanu Senior Account Manager

5.00(3 review-uri)

THE MIDDLEMAN
PRO

Abonează-te la newsletter să fii primul care primește cele mai noi recomandări de proprietăți și sfaturi de la experți.

CONTACT

Creează alertă

Salvează căutarea ca să primești pe email ultimele anunțuri publicate

Apartamente cu 2 camere de vânzare în zona Obor, Sector 2