Apartament 4 camere, decomandat, 82 mp - Trapezului, Metrou 1 Decembrie 1918

105.000 €

1 Decembrie 1918, București

Nr. cam.:
4
Sup. utilă:
82 mp
Etaj:
3 / 4
An constr.:
1975 (Finalizată)
  • • Exclusivitate
  • • Locație exactă

Descriere apartament

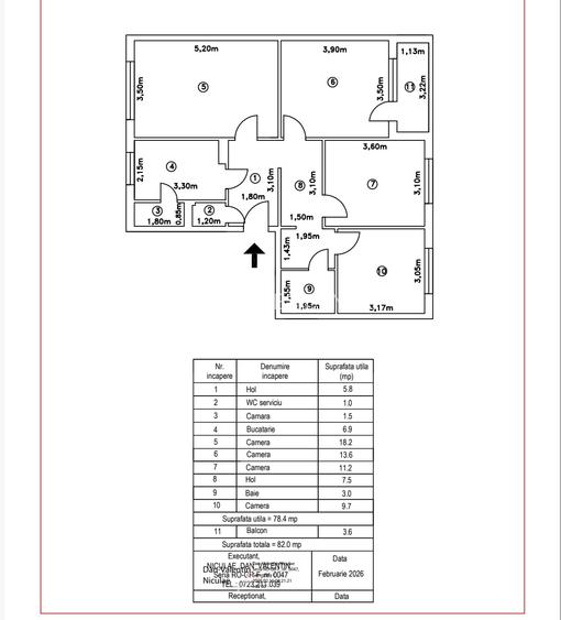
Trapezului, Metrou 1 Decembrie 1918, Str. Mizil Vă propunem un apartament de 4 camere decomandate, 2 băi, 1 balcon, cu un spațiu generos de 82 mp, ce permite o organizare flexibilă a camerelor, fiind ideal pentru o familie sau pentru cei care apreciază un mediu confortabil și luminos. Situat la etajul 3/4 al unui bloc construit în anul 1975, reabilitat termic, casa scării curată . Renovare la alegerea dumneavoastră! Apartamentul necesită renovare, ceea ce oferă oportunitatea să-l personalizați în totalitate și să-l transformați în locuința perfectă pentru stilul dumneavoastră de viață. Imobilul beneficiază de o locație liniștită, dar foarte aproape de mijloacele de transport și de multe alte puncte de interes. Acces rapid la transportul public: Stațiile STB (243, 619, 627) și stația de metrou 1 Decembrie 1918 sunt la 10 minute de imobil, oferindu-vă conexiuni rapide în toate zonele capitalei. În vecinătate: - Creșa Greierașul, Ludo; - Grădinițele nr. 221, nr. 232; - Școlile nr. 20, nr. 92; - Mega Image, Lidl; Preț 105.000euro Comision 3%
Citește mai mult Citește mai puțin
Confort 1 Decomandat 1 Balcon / Terasă / Logie

Detalii apartament

ID anunț: XAHO0008G Copiat! 275120623 Copiat!
Actualizat în: 26 Februarie 2026
Suprafață utilă totală: 82 mp
Nr. bucătării: 1
Nr. băi: 2
Tip imobil: Bloc de apartamente
Regim înălțime: P+4E

Utilități

Comision
3%

Puncte de interes

Mijloace transport
tram-station
statie tramvai -23, 27 si 40 - ozana
Stații tramvai aprox. 396 m
tram-station
Ozana
Stații tramvai aprox. 407 m
metro-station
Metrorex. Stația 1 Decembrie 1918(M3)(2008)
Stații metrou aprox. 515 m
bus-station
statie tramvai -23, 27 si 40 - PIATA TRAPEZULUI / Bd. 1 Decembrie 1918
Stații autobuz aprox. 559 m
Școală
school
Scoala cu Clasele I-VIII Nr. 20 "Simion Mehedinti"
Școli aprox. 276 m
school
Colegiul tehnic de chimie "Costin Nenitescu"
Școli aprox. 336 m
kindergarten
Gradinita de copii nr. 211
Gradinițe aprox. 416 m
kindergarten
Gradinita nr. 211
Gradinițe aprox. 416 m
Recreere
supermarket
Lidl
Supermarket aprox. 254 m
park
Parc
Parcuri aprox. 405 m
sports-ground
Teren sportiv
Terenuri sport aprox. 526 m
hypermarket
Decathlon
Hipermarket aprox. 1839 m

Detalii despre preț și costuri

Prețul pe piață

Preț cerut: 105.000 €

Preț min. zonă 110.000 €
Preț max. zonă 294.900 €

i

Proprietate cu prețul cerut în afara intervalului mai multe...

Posibile explicații pentru faptul că prețul proprietății este sub cel minim: imobil cu risc seismic, imobil cu probleme structurale, imobil demolabil, poziționare în altă zonă
Bine de știut: prețul unei proprietăți este influențat și de alte caracteristici, cum ar fi: vechime, localizare, vecinătăți, suprafață, compartimentare, amenajări, dotări, etc.

Costuri cu achiziția

Fără credit
22.397 RON
Credit ipotecar
23.955 RON
Noua casă
675 RON+ taxe notariale

i

Costuri adiționale mai puțin știute la achiziție: taxe notariale, comisioane etc.

Proprietăți similare

Apartament cu 2 camere decomandat în 1 Decembrie 1918
95.371 € + TVA
București, 1 Decembrie 1918
2 camere
56 mp
Etaj 2
Apartament cu 3 camere decomandat, mobilat în 1 Decembrie 1918
111.000 €
București, 1 Decembrie 1918
3 camere
59,93 mp
Etaj 1 / 4
Apartament cu 4 camere decomandat în 1 Decembrie 1918
105.000 €
București, 1 Decembrie 1918
4 camere
82 mp
Etaj 3

Detalii de contact

PISONI RESIDENCE

Administrator

PISONI RESIDENCE

Abonează-te la newsletter să fii primul care primește cele mai noi recomandări de proprietăți și sfaturi de la experți.

CONTACT

Creează alertă

Salvează căutarea ca să primești pe email ultimele anunțuri publicate

Apartamente cu 4+ camere de vânzare în zona 1 Decembrie 1918, Sector 3