APARTAMENT 3 CAMERE - PARCUL IOR - BABA NOVAC

116.000 €

Baba Novac, București

Nr. cam.:
3
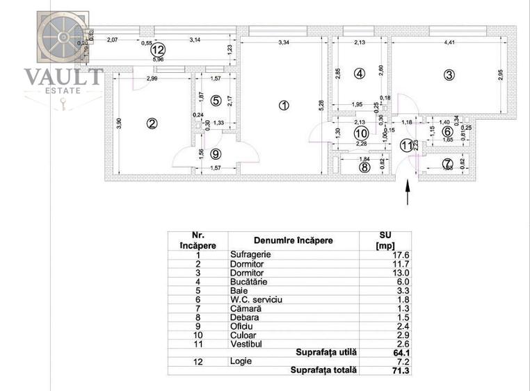
Sup. utilă:
71,3 mp
Etaj:
7 / 10
An constr.:
1966 (Finalizată)
  • • Locație aproximativă

Descriere apartament

COD PROPRIETATE: P36593 Agentia VAULT ESTATE va prezinta un apartament cu 3 camere, de vanzare, tip compartimentare semidecomandat, situat in zona Baba Novac din Bucuresti. Proprietatea este amplasata intr-un imobil de tip bloc, construit in anul 1966, anvelopat in anul 2015, la etajul 7/10. Dispune de o suprafata totala de 71 mp. Apartamentul necesita renovare. Imobilul dispune de o pozitie excelenta cu acces facil catre mijloace de transport si catre multe puncte de interes, acesta fiind situat chiar la intrarea in PARCUL IOR si avand ca alte vecinatati precum PARK LAKE MALL, STADIONUL SI PARCUL NATIONAL, plus multe spatii comerciale si scoli, gradinite precum SCOALA GIMNAZIALA DE ARTENR.5 sau FACULTATEA DE MEDICINA TITU MAIORESCU. Utilitati generale: curent electric, apa, canalizare Sistem de incalzire: termoficare, calorifere Daca zona si caracteristicile acestui apartament se aliniaza nevoilor dumneavoastra, va invitam sa ne contactati pentru mai multe detalii si pentru a programa o vizionare. Beneficiile colaborarii cu Vault Estate: • Succesul incepe cu alegerile inteligente. Doar pentru ca ne-ati contactat, aveti acces GRATUIT la sprijinul unui expert financiar, indiferent daca achizitionati prin noi, prin alta agentie sau pe cont propriu. • Va oferim acces la cele mai bune solutii de credite ipotecare si credite de nevoi personale, pentru ca timpul, banii si linistea dumneavoastra sa fie protejate. • Suntem alaturi de dumneavoastra la fiecare pas, pentru ca visele sa devina realitate. Clarificari aditionale: • Informatiile tehnice au caracter orientativ, ele fiind preluate de la proprietari. • Se percepe comision.
Citește mai mult Citește mai puțin
Confort 1 Semidecomandat 1 Balcon / Terasă / Logie Calorifere Termoficare

Detalii apartament

ID anunț: XDTA10SI4 Copiat! 274994785 Copiat!
Actualizat în: 19 Februarie 2026
Suprafață construită: 71.3 mp
Nr. bucătării: 1
Nr. băi: 2
Structură rezistență: Beton
Tip imobil: Bloc de apartamente
Regim înălțime: P+10E

Utilități

Destinație
Rezidențial
Utilități
Curent Apă Canalizare
Ușă intrare
Metal
Uși interior
Lemn
Izolații termice
Bloc izolat termic
Amenajare străzi
Asfaltate Iluminat stradal Mijloace de transport în comun
Facilități imobil
Interfon Lift
Comision
2.5%+TVA

Disponibilitate proprietate:

imediat

Puncte de interes

Mijloace transport
bus-station
Dristor 2
Stații autobuz aprox. 210 m
metro-station
Metrorex. Stația Dristor 2 (M1)(1989).
Stații metrou aprox. 219 m
tram-station
Dristorului
Stații tramvai aprox. 318 m
trolleybus-station
statie troleu 70,92,79 (en)
Stații troleibuz aprox. 1399 m
Școală
kindergarten
Gradinita nr. 239
Gradinițe aprox. 272 m
school
Scoala Nr. 80 - Cladirea Veche (monument istoric)
Școli aprox. 396 m
kindergarten
Gradinita de copii nr.239
Gradinițe aprox. 408 m
university
Facultatea Științe Economice, Titu Maiorescu ( Facultatea Tatianei )
Universități aprox. 1260 m
Recreere
supermarket
Mega Image Dristor Non-Stop
Supermarket aprox. 185 m
park
Parc
Parcuri aprox. 191 m
sports-ground
Teren sportiv
Terenuri sport aprox. 384 m
mall
Bucharest, Calea Vitan nr. 8, Bl V51, near VITAN Mall
Mall aprox. 1396 m

Detalii despre preț și costuri

Prețul pe piață

Preț cerut: 116.000 €

Preț min. zonă 93.000 €
Preț max. zonă 199.000 €

63% dintre proprietățile similare ca zonă și nr. camere au prețul cerut mai mare. mai multe...

Bine de știut: prețul unei proprietăți este influențat și de alte caracteristici, cum ar fi: vechime, localizare, vecinătăți, suprafață, compartimentare, amenajări, dotări, etc. mai puțin...

Costuri cu achiziția

Fără credit
6.861 RON
Credit ipotecar
8.466 RON
Noua casă
731 RON+ taxe notariale

i

Costuri adiționale mai puțin știute la achiziție: taxe notariale, comisioane etc.

Proprietăți recomandate

Detalii de contact

VAULT ESTATE

Sorin Dumitru

VAULT ESTATE
PRO

Abonează-te la newsletter să fii primul care primește cele mai noi recomandări de proprietăți și sfaturi de la experți.

CONTACT

Creează alertă

Salvează căutarea ca să primești pe email ultimele anunțuri publicate

Apartamente cu 3 camere de vânzare în zona Baba Novac, Sector 3