Apartament 3 camere Titan Parc

123.500 €

Titan, București

Nr. cam.:
3
Sup. utilă:
63 mp
Etaj:
6 / 10
An constr.:
1967 (Finalizată)
  • • Locație aproximativă
  • • Vizionare prin apel video

Descriere apartament

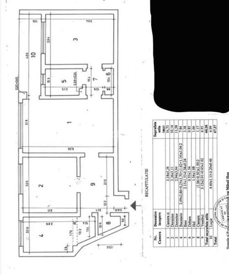
ID intern: 363393. Va propunem spre vanzare un apartament cu 3 camere, decomandat, confort 1, situat in zona Titan, reper Parc IoR, intr-un imobil construit in anul 1967, disponibil la etajul 6 din 10, cu o suprafata de 67 mp, baie, balcon, bucatarie. Imobilul este situat in apropiere de piata, statie STB, scoli, gradinita. Vizionarea acestui imobil se face doar în baza semnării unui acord de vizionare conform codului civil, art 2.096-2.102 . Acordam indrumare in vederea acordarii unui credit bancar (BRD, FIRST BANK, ALPHA BANK, PATRIA BANK, BANCA TRANSILVANIA) Se percepe comision 3%. Politica agentiei este de a optimiza negocierea pretului in raport cu comisionul.
Citește mai mult Citește mai puțin
Confort 1 Decomandat Mobilat Complet 1 Balcon Aer condiționat Termoficare

Detalii apartament

ID anunț: X9I6200JE Copiat! 274992091 Copiat!
Actualizat în: 17 Februarie 2026
Suprafață utilă totală: 63 mp
Suprafață construită: 67 mp
Nr. bucătării: 1
Nr. băi: 1
Structură rezistență: Cărămidă
Tip imobil: Bloc de apartamente
Regim înălțime: P+10E

Utilități

Destinație
Rezidențial
Pereți
Faianță Vopsea lavabilă
Podele
Parchet Gresie
Izolații termice
Exterior
Ferestre cu geam termopan
PVC
Bucătărie
Utilată Mobilată
Electrocasnice
Aragaz Hotă Frigider Cuptor microunde TV Hotă Mașină de spălat rufe
Dotări imobil
Lift
Servicii imobil
Menaj Administrare
Comision
3%

Vecinătăți:

Scoala/gradinita, Restaurant/pub, Mall, Parc, Hotel, Piata, Benzinarie, Intersectie circulata, Trafic Pietonal, Fastfood, Supermarket, Banca, Zona comerciala, Autobuz, Metrou

Puncte de interes

Mijloace transport
tram-station
statia de tramvai voluntarilor
Stații tramvai aprox. 47 m
bus-station
statia Fizicienilor, linia 330, N103, 23, 27.
Stații autobuz aprox. 346 m
metro-station
Metrorex.Stația Dristor 1 (M1) , (M3)(1981)
Stații metrou aprox. 801 m
trolleybus-station
statie troleu 70,92,79 (en)
Stații troleibuz aprox. 1458 m
Școală
kindergarten
Gradinita nr.3
Gradinițe aprox. 208 m
kindergarten
Gradinita nr. 3
Gradinițe aprox. 208 m
school
Scoala 88
Școli aprox. 222 m
university
Universitatea "Gheorghe Cristea"
Universități aprox. 1042 m
Recreere
sports-ground
Teren sportiv
Terenuri sport aprox. 232 m
supermarket
Mega Image
Supermarket aprox. 256 m
park
Parc
Parcuri aprox. 299 m
public-square
Piata Hurmuzachi / Piata Muncii (fosta Bariera Vergului)
Piețe publice aprox. 1950 m

Detalii despre preț și costuri

Prețul pe piață

Preț cerut: 123.500 €

Preț min. zonă 93.000 €
Preț max. zonă 199.000 €

67% dintre proprietățile similare ca zonă și nr. camere au prețul cerut mai mic. mai multe...

Bine de știut: prețul unei proprietăți este influențat și de alte caracteristici, cum ar fi: vechime, localizare, vecinătăți, suprafață, compartimentare, amenajări, dotări, etc. mai puțin...

Costuri cu achiziția

Fără credit
26.020 RON
Credit ipotecar
27.657 RON
Noua casă
769 RON+ taxe notariale

i

Costuri adiționale mai puțin știute la achiziție: taxe notariale, comisioane etc.

Proprietăți similare

Apartament cu 2 camere decomandat în Titan
115.500 € + TVA
București, Titan
2 camere
42 mp
Etaj 4 / 11
Apartament cu 2 camere decomandat în Titan
112.000 € + TVA
București, Titan
2 camere
62,7 mp
Etaj 2 / 3
Apartament cu 2 camere decomandat în Titan
131.900 €
București, Titan
2 camere
52,18 mp
Parter / 3

Detalii de contact

CR Imobiliare

Daniela Rogoz Broker imobiliar

4.67(8 review-uri)

CR Imobiliare
PRO

Abonează-te la newsletter să fii primul care primește cele mai noi recomandări de proprietăți și sfaturi de la experți.

CONTACT

Creează alertă

Salvează căutarea ca să primești pe email ultimele anunțuri publicate

Apartamente cu 3 camere de vânzare în zona Titan, Sector 3