Oportunitate Investiție sau Locuință: 3 Camere în Bloc Nou (2014) – Zona Calea Vitan, lângă Mall Vitan
Agenția Cristal Imobiliare vă propune spre vânzare un apartament de 3 camere situat într-un imobil modern construit în anul 2014, în zona Calea Vitan. Proprietatea beneficiază de o locație strategică, fiind situată în imediata apropiere a Mall Vitan și a sediului poliției, oferind un mix ideal între accesibilitate și siguranță.
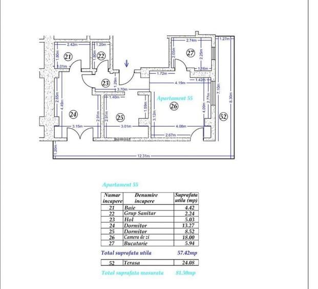
Detalii Tehnice și Compartimentare:
Tip Unitate: 3 Camere, complet decomandat. Suprafață: 58 mp utili, ajungând la o suprafață totală de 82 mp datorită spațiului exterior generos.
Nivel: Etajul 5 din 7.
An Construcție: 2014 (bloc nou, structură sigură).
Liniște și Siguranță:
Un avantaj major al acestui apartament este vecinătatea directă cu sediul poliției. Acest aspect garantează un mediu civilizat și liniștit, eliminând problemele citadine precum zgomotul stradal excesiv, muzica dată tare sau alte tulburări ale liniștii publice. Este locația ideală pentru cei care pun preț pe ordine și siguranță.
Elemente Distinctive și Amenajare:
Apartamentul se vinde mobilat și utilat, beneficiind de finisaje moderne și multă lumină naturală. Un punct forte este balconul impresionant care se întinde pe toată suprafața apartamentului. Acesta este închis cu tâmplărie termopan, o porțiune fiind transformată inteligent într-un dressing spațios pentru o organizare perfectă a locuinței.
Randament și Flexibilitate:
În prezent, apartamentul este închiriat unei familii serioase pentru suma de 650 euro pe lună, fiind o variantă excelentă pentru investiție cu venit imediat. Există flexibilitate deplină: puteți prelua contractul de închiriere sau vă puteți muta personal, în funcție de planurile dumneavoastră.
Locație și Accesibilitate:
Amplasarea asigură acces rapid la transportul public, parcuri și zone comerciale. Fiind situat practic lângă Mall Vitan, aveți la dispoziție magazine, restaurante și zone de relaxare la doar câțiva pași.
Proprietatea NU dispune de loc de parcare propriu.
Vă invităm la o vizionare pentru a vedea acest apartament situat într-una dintre cele mai sigure și dinamice zone ale capitalei!
Comision Agenție: 2%
Pentru mai multe oferte imobiliare va rugam accesati site-ul:
100%dintre proprietățile similare ca zonă și nr. camere au prețul cerutmai mic.
mai multe...
Bine de știut: prețul unei proprietăți este influențat și de alte caracteristici, cum ar fi: vechime, localizare, vecinătăți, suprafață, compartimentare, amenajări, dotări, etc.
mai puțin...
Costuri cu achiziția
Fără credit
10.551 RON
Credit ipotecar
12.609 RON
Noua casă
1.275 RON+ taxe notariale
i
Costuri adiționale mai puțin știute la achiziție: taxe notariale, comisioane etc.
Calculul ipotecarului
Proprietăți similare
219.900 €
București, Vitan Mall
4 camere
90 mp
Etaj 7
214.000 €
București, Vitan Mall
2 camere
66,23 mp
Etaj 4
217.000 €
București, Vitan Mall
3 camere
74 mp
Etaj 3
Detalii de contact
Acestă agenție te poate ajuta să obții o soluție de finanțare potrivită nevoilor tale. Solicită-i informații suplimentare.
Sediul central - Timișoara
Bulevardul Victor Babeș nr. 2, 300230, Timișoara, România
Tel: +40.374.40.44.98 / Fax: +40.256.401.179
Email: suport@imobiliare.ro
Luni - Vineri 08:00 - 20:00
Punct de lucru - București: Iride Business Park, Bld. Dimitrie
Pompeiu 9-9A, Clădirea B2B,
020335, Sector 2, București, România
CONTACT
Sediul central - Timișoara
Bulevardul Victor Babeș nr. 2, 300230, Timișoara, România
Tel: +40.374.40.44.98 / Fax: +40.256.401.179
Email: suport@imobiliare.ro
Luni - Vineri 08:00 - 20:00
Punct de lucru - București: Iride Business Park, Bld. Dimitrie
Pompeiu 9-9A, Clădirea B2B,
020335, Sector 2, București, România
Dacă te vei muta în această zonă, vei avea la dispoziție mai multe autobuze și tramvaie care te vor ajuta să te deplasezi către centrul orașului și nu numai. Printre acestea amintim tramvaiul 19 care oferă o legătură directă cu sud - estul Bucureștiului, tramvaiul 27 cu care te poți deplasa până la Piața Unirii și autobuzul 124 al cărui traseu ajunge în zona Eroilor. Cu autobuzul 133 ajungi rapid la Parcul Tineretului și la Gara Basarab. Vei avea, totodată, în apropierea viitoarei tale locuințe două stații de metrou - Timpuri Noi și Mihai Bravu. Ambele îți oferă posibilitatea de a lua trenuri care circulă atât pe magistrala 1 Dristor - Pantelimon, cât și pe magistrala 3 Preciziei - Anghel Saligny. Consultă harta și vezi care vor fi cele mai apropiate stații de viitoarea ta locuință.
Dacă te vei muta în zona Vitan Mall - Nerva Traian - Mihai Bravu, vei avea la doi pași de casă mai multe unități de învățământ. Printre acestea amintim Grădinița Brândușa de pe Strada Brândușelor, Școala Gimnazială nr. 84 situată lângă Complexul Comercial Prosper și Școala Gimnazială nr. 81 de pe Strada Nerva Traian. În apropierea stației de metrou Timpuri Noi se află sediile mai multor instituții private de învățământ superior. Este vorba despre Universitatea "Titu Maiorescu", Universitatea "Nicolae Titulescu" și despre Universitatea Creștină "Dimitrie Cantemir". Vezi ce hartă ce alte unități de învățământ există în zona Vitan Mall - Nerva Traian - Mihai Bravu.
Vrei să te muți în zona Vitan Mall - Nerva Traian - Mihai Bravu și te gândești deja unde îți vei putea face cumpărăturile? În primul rând, vei avea la dispoziție numeroase magazine de cartier, având în vedere faptul că multe dintre blocurile din această parte a orașului dispun de spații comerciale la parter. București Mall, primul complex comercial de acest tip din Capitală, poate fi o altă opțiune excelentă. Cu mașina ajungi destul de ușor și la mall-urile ParkLake și Sun Plaza. Vrei să cumperi legume și fructe proaspete? Atunci trebuie să știi că o piață este amplasată pe Strada Foișorului. Un magazin Lidl a fost deschis în zona Pasajului Mihai Bravu. În plus, în apropiere vei avea și Complexul Comercial Prosper și un magazin de bricolaj. În apropiere ai la dispoziție și o serie de magazine cu materiale de construcții sau finisaje. La doi pași de toate acestea găsești și un complex comercial ce include mai mulți retaileri, inclusiv două pet shop-uri. Ajungi destul de rapid și la hipermarketul Auchan Vitan și la Unirea Shopping Center. Află unde sunt localizate toate acestea de pe hartă.
De multe ori, la orele de vârf, vei întâmpina aglomerație în trafic pe Calea Vitan sau pe celelalte artere principale din această zonă, motiv pentru care este posibil să ai unele dificultăți în găsirea unui loc de parcare. Îți recomandăm, totodată, să apelezi la Direcția Generală de Impozite și Taxe Locale Sector 3 pentru a închiria un loc de parcare în apropierea locuinței tale. Dacă optezi pentru un apartament într-un ansamblu rezidențial nou, atunci discută direct cu dezvoltatorul și vezi ce ofertă îți pune la dispoziție. Astfel, te vei asigura că nu mai pierzi timpul seara căutând un loc de parcare. Consultă harta și află ce opțiuni ai în zona Vitan Mall - Nerva Traian - Mihai Bravu.
În zona Vitan Mall - Nerva Traian - Mihai Bravu vei avea la dispoziție câteva spații verzi de mici dimensiuni, amenajate cu locuri de joacă pentru copii, cel mai mare dintre acestea fiind Parcul Emil Gârleanu. Vei ajunge însă destul de rapid de aici la Parcul Alexandru Ioan Cuza (fostul IOR) sau la Parcul Tineretului. O altă variantă bună pentru cei care își doresc să facă o plimbare prin natură este o vizită în Parcul Natural Văcărești la care ajungi foarte ușor. Pe marginea deltei te poți plimba chiar și cu bicicleta. Multe dintre blocurile situate la principalele artere de circulație din această zonă dispun de spații comerciale la parter, într-unele dintre acestea fiind deschise restaurante și baruri. Pentru mai multă diversitate, vei avea la o aruncătură de băț Centrul Vechi al Bucureștiului. În zona Pasajului Mărășești vei putea merge la un spectacol pus în scenă de echipa Teatrului de Operetă și Musical "Ion Dacian". Preferi să te relaxezi la film? Un cinematograf este disponibil în București Mall - primul centru comercial de acest tip din oraș, situat pe Calea Vitan. O altă opțiune poate fi găsită în mall-ul ParkLake din zona Parcului Alexandru Ioan Cuza. Vezi ce alte alternative de petrecere a timpului liber vei avea dacă te muți în zona Vitan Mall - Nerva Traian - Mihai Bravu.
Principalele unități sanitare din această zonă sunt Policlinica Vitan Dudești și spitalul privat de oftalmologie Westeye Hospital. Unul dintre cele mai apropiate spitale de stat la care vei avea acces, dacă te vei muta aici, este Spitalul Clinic "Dr. Victor Babeș". O altă opțiune poate fi și Spitalul Clinic de Urgență "Sfântul Ioan" de la Șoseaua Vitan-Bârzești. O serie de unități medicale sunt disponibile și pe Șoseaua Berceni la care poți să ajungi în doar câteva minute cu mașina. Dacă preferi o clinică privată, atunci printre cele mai apropiate se numără clinica Regina Maria Mărășești sau Monza Metropolitan Hospital. Găsești pe harta de mai jos și farmaciile disponibile în zona Vitan Mall - Nerva Traian - Mihai Bravu.
Câteva restaurante găsești pe Strada Nerva Traian, iar pe Calea Vitan ai la dispoziție mai multe fast food-uri. Un food court cu restaurante destul de diverse găsești, de asemenea, la etaj în București Mall. Pentru pâine caldă, o gustare sau o prăjitură merită să încerci și brutăria Koksal aflată la doi pași de mall. Dacă ești grăbit, poți să mergi repede până la drive through-ul KFC de pe Șoseaua Mihai Bravu sau la restaurantul McDonald"™s din Dristor de unde poți să-ți comanzi, de asemenea, mâncarea direct din mașină. Alte food court-uri ai în apropiere la mall-urile ParkLake și Sun Plaza, dacă nu te deranjează să mergi câteva minute cu mașina. Ajungi extrem de repede din această zonă și în Centrul Vechi al orașului unde găsești restaurante și terase pentru toate gusturile. Vezi ce alte restaurante găsești în zona Vitan Mall - Nerva Traian - Mihai Bravu și în vecinătatea acesteia consultând harta.
Ai nevoie de o bancă sau de un ATM? Pe Strada Nerva Traian găsești un Libra Bank și o sucursală ING. În București Mall ai la dispoziție alte câteva opțiuni. Consultă harta pentru mai multe informații.
Înainte să pleci...
Ești sigur că ai văzut și aceste proprietăți?
219.900 €
București, Vitan Mall
4 camere
90 mp
Etaj 7
214.000 €
București, Vitan Mall
2 camere
66,23 mp
Etaj 4
217.000 €
București, Vitan Mall
3 camere
74 mp
Etaj 3
Creează alertă
Salvează căutarea ca să primești pe email ultimele anunțuri publicate
Apartamente cu 3 camere de vânzare în zona Vitan Mall, Sector 3
Cere detalii prin email
*
*
*
*
Detaliile tale de contact vor fi partajate cu Cristal Imobiliare
Asigurare de viață/lună Costul este variabil. În funcție de banca aleasă, procentul variază între 0.0259% și 0.035% din soldul creditului.
Costuri cu achiziția12.609 RON
Comision agenție Întreabă agenţia
Onorariu notarial8.848 RON
Taxă întabulare OCPI1.703 RON
Autentificare contract credit2.058 RON
Preț de achiziție1.135.299 RON
Preț locuință1.135.299 RON
TVA 0%Inclus în prețul cerut
Preț de achiziție1.135.299 RON
Preț locuință1.135.299 RON
TVA 0%
Inclus în prețul cerut
Avans minim528.923 RON
Credit pe 30 de ani606.376 RON
Cost achitat în prima lună
Taxa evaluare imobil(până la)
575 RON
Rata lunară (variabilă)4.261 RON
Depozit colateral12.783 RON
Comision de garantare FNGCIMM95 RON
Asigurare anuală imobil1.135 RON
Poliță PAD130 RON
Tarif arhivă electronică102 RON
Costuri adiționale1.275 RON + taxe notariale
Asigurare viață și complexă (opțională)Costul este variabil. În funcție de banca aleasă, procentul variază între 0.0259% și 0.035% din soldul creditului
Onorariu notarialconform tarif notarial
Taxă întabulare OCPI1.275 RON
i
Toate valorile de mai sus sunt estimative și nu reprezintă în mod obligatoriu costurile exacte pe care le veți primi de la companiile/instituțiile prin care veți încheia tranzacția.