2

Apartament 2 camere decomandat Emil Racovita

74.899 €

Berceni, București

Nr. cam.:
2
Sup. utilă:
52 mp
Etaj:
4
An constr.:
1972
  • • Locație aproximativă
  • • Vizionare prin apel video

Descriere apartament

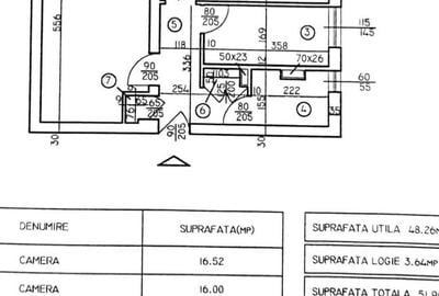
Apartament de 2 camere, decomandat, cu o suprafata totala de aproximativ 52 mp. Este situat la etajul 4 al unui bloc de 10 etaje,construit in 1972. Apartamentul necesita renovare, insa are urmatoarele avantaje: -este compartimentat eficient, fiind decomandat - beneficiaza de un balcon patios si loc de depozitare -este un apartament luminos si spatios -este aproape de scoli si gradinite Pentru detalii si vizionari : - Roxana Druga Comision standard
Citește mai mult Citește mai puțin
Confort 1 Decomandat Nemobilat 1 Balcon Aer condiționat Calorifere Termoficare Necesită renovare

Detalii apartament

ID anunț: XCRN103FJ Copiat! 274659441 Copiat!
Actualizat în: 02 Februarie 2026
Nr. bucătării: 1
Nr. băi: 1
Structură rezistență: Beton
Tip imobil: Bloc de apartamente
Regim înălțime: P+10E

Utilități

Pereți
Faianță Vopsea lavabilă
Podele
Linoleum
Uși interior
Lemn
Ferestre cu geam termopan
PVC
Dotări imobil
Interfon Lift
Utilități
Curent Apă Canalizare CATV Gaze Telefon
Acces internet
Cablu
Amenajare străzi
Iluminat stradal Mijloace de transport în comun Asfaltate

Disponibilitate proprietate:

Imediat

Puncte de interes

Mijloace transport
bus-station
Aleea Raul Targului
Stații autobuz aprox. 190 m
bus-station
statia ciceu linii:74,202,125,232,312
Stații autobuz aprox. 404 m
metro-station
Aparatorii Patriei (M2)
Stații metrou aprox. 785 m
tram-station
Stadion
Stații tramvai aprox. 970 m
Școală
school
Școala nr. 93 Emil Racovita
Școli aprox. 76 m
school
Scoala Generala nr. 93 Emil Racovita
Școli aprox. 84 m
kindergarten
Gradinita Nr. 199
Gradinițe aprox. 111 m
university
Universitatea "Spiru Haret" (Fosta Casă de Cultură IMGB).
Universități aprox. 572 m
Recreere
supermarket
Speed Market for you
Supermarket aprox. 48 m
park
Parc
Parcuri aprox. 176 m
hypermarket
Hornbach
Hipermarket aprox. 1152 m
mall
Cora Sun Plaza
Mall aprox. 1635 m

Detalii despre preț și costuri

Prețul pe piață

Preț cerut: 74.899 €

Preț min. zonă 59.000 €
Preț max. zonă 137.900 €

79% dintre proprietățile similare ca zonă și nr. camere au prețul cerut mai mare. mai multe...

Bine de știut: prețul unei proprietăți este influențat și de alte caracteristici, cum ar fi: vechime, localizare, vecinătăți, suprafață, compartimentare, amenajări, dotări, etc. mai puțin...

Costuri cu achiziția

Fără credit
4.928 RON
Credit ipotecar
6.274 RON
Noua casă
522 RON+ taxe notariale

i

Costuri adiționale mai puțin știute la achiziție: taxe notariale, comisioane etc.

Proprietăți recomandate

Detalii de contact

Abonează-te la newsletter să fii primul care primește cele mai noi recomandări de proprietăți și sfaturi de la experți.

CONTACT

Creează alertă

Salvează căutarea ca să primești pe email ultimele anunțuri publicate

Apartamente cu 2 camere de vânzare în zona Berceni, Sector 4