Ap 2 cam Decomandat Bloc nou Parter Sos Giurgiului Dedeman

88.990 €

Berceni, București

Nr. cam.:
2
Sup. utilă:
50 mp
Etaj:
Parter / 3
An constr.:
2024
  • • Comision 0%
  • • Locație exactă

Descriere apartament

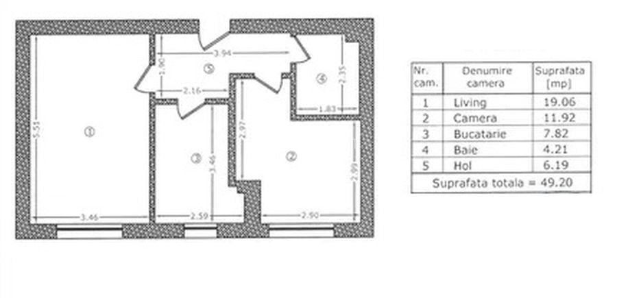
Comision 0 -- Va prezentam un apartament cu 2 camere decomandat, în suprafață de 50 mp, situat la parter într-un imobil nou cu regim de înălțime P+3, zona Șos. Giurgiului – București. Apartamentul este complet nou și beneficiază de: • Compartimentare decomandată (hol separat, camere distincte) • Suprafață utilă 50 mp • Instalații noi • Bloc nou, cu doar 3 etaje Apartamentul este liber și se poate preda imediat. Proprietatea beneficiaza de urmatoarele utilitati: apa, electricitate, gaz, canalizare, CATV, internet fibra optica. Se accepta si plata prin credit bancar. La cerere oferim si creditul imobiliar necesar pentru achizitia proprietatii. Proprietatea are toate actele la zi iar vanzarea/cumpararea se poate face intr-un timp scurt. Pentru alte detalii sau oferte similare, persoanele interesate pot lua legatura cu noi in vederea stabilirii unei vizionari de Luni pana Duminica inclusiv. - Pretul imobilului include TVA.
Citește mai mult Citește mai puțin
Confort 1 Decomandat Nemobilat Calorifere Centrală proprie

Detalii apartament

ID anunț: XG0F00013 Copiat! 274999953 Copiat!
Actualizat în: 17 Februarie 2026
Nr. bucătării: 1
Nr. băi: 1
Structură rezistență: Beton
Tip imobil: Bloc de apartamente
Regim înălțime: P+3E

Utilități

Pereți
Faianță Vopsea lavabilă
Podele
Gresie Parchet
Ușă intrare
Metal
Uși interior
Lemn
Izolații termice
Exterior
Ferestre cu geam termopan
PVC
Contorizare
Contor gaz Apometre
Dotări imobil
Interfon
Utilități
CATV Gaze Curent Canalizare Apă
Acces internet
Fibră optică Cablu
Amenajare străzi
Asfaltate Iluminat stradal Mijloace de transport în comun
Comision
0%

Certificat energetic:

Clasa energetică: A

Puncte de interes

Mijloace transport
bus-station
Statia Tudor Gociu, linia 216
Stații autobuz aprox. 207 m
tram-station
Cap. Raducanu Cristea
Stații tramvai aprox. 453 m
bus-station
Statia Anghel Moldoveanu / Capitan Raducanu Cristea, linia N107, 216, 202, 116, tramvai: 7, 25, 4
Stații autobuz aprox. 463 m
train-station
Gara CFR Progresul
Stații tren aprox. 1038 m
Școală
school
Clubul Sportiv Scolar 6
Școli aprox. 642 m
school
Scoala 165
Școli aprox. 778 m
kindergarten
Gradinita
Gradinițe aprox. 995 m
kindergarten
Gradinita nr 243 "Insir'te Margarite"
Gradinițe aprox. 1025 m
Recreere
supermarket
Dedeman
Supermarket aprox. 433 m
park
Parc
Parcuri aprox. 859 m
hypermarket
Selgros
Hipermarket aprox. 1583 m
sports-ground
Teren sportiv
Terenuri sport aprox. 1652 m

Detalii despre preț și costuri

Prețul pe piață

Preț cerut: 88.990 €

Preț min. zonă 59.000 €
Preț max. zonă 137.900 €

53% dintre proprietățile similare ca zonă și nr. camere au prețul cerut mai mic. mai multe...

Bine de știut: prețul unei proprietăți este influențat și de alte caracteristici, cum ar fi: vechime, localizare, vecinătăți, suprafață, compartimentare, amenajări, dotări, etc. mai puțin...

Costuri cu achiziția

Fără credit
5.592 RON
Credit ipotecar
7.049 RON
Noua casă
594 RON+ taxe notariale

i

Costuri adiționale mai puțin știute la achiziție: taxe notariale, comisioane etc.

Proprietăți similare

Apartament cu 2 camere decomandat în Berceni
91.000 €
București, Berceni
2 camere
59 mp
Etaj 2 / 7
Apartament cu 2 camere decomandat în Berceni
95.000 €
București, Berceni
2 camere
45,2 mp
Etaj 9 / 10
Apartament cu 2 camere decomandat în Berceni
82.500 € + TVA
București, Berceni
2 camere
58 mp
Etaj 2 / 6

Detalii de contact

IRENE SUPPORT

Top Imobiliar Real Estate

IRENE SUPPORT
PRO

Abonează-te la newsletter să fii primul care primește cele mai noi recomandări de proprietăți și sfaturi de la experți.

CONTACT

Creează alertă

Salvează căutarea ca să primești pe email ultimele anunțuri publicate

Apartamente noi cu 2 camere de vânzare în zona Berceni, Sector 4