Brâncoveanu - 3 Camere, Etaj 3/4 | COMISION 0% | Ideal Investiție/Renovare!

89.900 €

Brâncoveanu, București

Nr. cam.:
3
Sup. utilă:
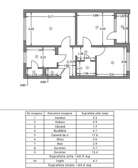
64,6 mp
Etaj:
3 / 4
An constr.:
1974 (Finalizată)
  • • Comision 0%
  • • Locație exactă
  • • Proprietate nelocuită

Descriere apartament

Ești la început de drum și cauți acel loc pe care să îl numești „acasă”, dar vrei să îl configurezi exact după gustul tău? Vă prezint astăzi un apartament de 3 camere, situat strategic în cartierul Berceni, pe Aleea Izvorul Oltului. Este spațiul ideal pentru un cuplu tânăr care își dorește un proiect de design propriu, într-o zonă verde și liniștită, la un preț de achiziție corect. Oferta Momentului: Preț: 89.900 Euro (Preț imbatabil pentru zonă și etaj!) Comision: 0% pentru Cumpărător (Economisești de la început pentru renovare!) Detalii tehnice care contează: Suprafață utilă: 64.6 mp – un spațiu generos și bine compartimentat. Etaj: 3 din 4 – un etaj ideal, oferind atât intimitate, cât și o eficiență termică mai bună. An construcție: 1974 (bloc solid, fără risc seismic). Stare: Necesită renovare integrală – avantajul tău? Nu plătești pentru finisajele altora și poți supraveghea calitatea lucrărilor de la zero! Locație și Facilități (Totul la câțiva pași): Berceni este recunoscut pentru infrastructura excelentă dedicată familiilor: Educație: În imediata apropiere ai unități de prestigiu, precum Școala Gimnazială nr. 129, Școala nr. 190 sau Grădinița „Scufița Roșie”. Transport: Conexiune rapidă către centrul orașului. Ai acces facil la liniile de STB și ești la o distanță rezonabilă de stațiile de metrou Piața Sudului sau Apărătorii Patriei. Interes local: Ești aproape de Grand Arena Mall, Piața Străduinței și zonele de relaxare din Parcul Lumea Copiilor / Tineretului. Avantaje la vânzare: Ca broker, am pregătit totul pentru ca procesul să fie cât mai simplu pentru tine: Acte la zi: Cadastru, intabulare – totul este pregătit pentru vânzare. Disponibilitate: Apartamentul este liber, deci poți începe renovarea imediat după semnare! Finanțare: Se acceptă orice formă de credit bancar. Sfatul meu de broker: La un preț de sub 90.000 Euro pentru 3 camere la etaj intermediar, această proprietate reprezintă o investiție sigură. Cu un buget de renovare bine gestionat, vei avea o locuință modernă într-o zonă în continuă dezvoltare. Vreți să vedeți potențialul acestui apartament? Hai să programăm o vizionare!
Citește mai mult Citește mai puțin
Confort 1 Decomandat Acceptă animale de companie Mobilat Parțial mobilat 1 Balcon / Terasă / Logie Calorifere Termoficare Necesită renovare

Detalii apartament

ID anunț: XDN700066 Copiat! 275155696 Copiat!
Actualizat în: 01 Martie 2026
Suprafață utilă totală: 64.6 mp
Suprafață construită: 75 mp
Nr. bucătării: 1
Nr. băi: 1
Structură rezistență: Beton
Tip imobil: Bloc de apartamente
Regim înălțime: P+4E

Utilități

Destinație
Rezidențial
Pereți
Faianță Vopsea lavabilă
Podele
Gresie
Ușă intrare
Metal
Uși interior
Panel
Contorizare
Contor căldură Apometre
Diverse
Senzor de fum
Alte spații utile
Debara
Utilități
Gaze Curent Canalizare Apă
Servicii imobil
Administrare Menaj Supraveghere video
Amenajare străzi
Mijloace de transport în comun Iluminat stradal
Comision
0%

Vecinătăți:

Bl. C-tin Brancoveanu, Luica, Grand Arena, Bl. Alexandru Obregia, Berceni, Spitalul Bagdasar Arseni, Spitalul Sf. Ioan, Parcul Natural Vacaresti, Scoala 108, 89, 99, Resita, Tineretului, Carefour,Gradinita Floarea Albastra, Lidl, Gradinita 149, Nitu Vasile, Soseaua Oltenitei, Turnu Magurele, Sun Plaza.

Disponibilitate proprietate:

Liber!Mutare imediata!

Puncte de interes

Mijloace transport
bus-station
Statia Covasna / Turnu Magurele, linia 141,116
Stații autobuz aprox. 122 m
bus-station
Statia Izvorul Oltului, linia 220, 216, 202, 116
Stații autobuz aprox. 284 m
tram-station
Soseaua Giurgiului
Stații tramvai aprox. 1470 m
metro-station
Piata Sudului (M2)
Stații metrou aprox. 1930 m
Școală
school
Gradinita 167
Școli aprox. 283 m
kindergarten
Gradinita
Gradinițe aprox. 308 m
school
Scoala generala nr. 99
Școli aprox. 563 m
university
Universitatea "Spiru Haret" (Fosta Casă de Cultură IMGB).
Universități aprox. 1851 m
Recreere
park
Parc
Parcuri aprox. 55 m
supermarket
supermarket
Supermarket aprox. 125 m
hypermarket
Selgros
Hipermarket aprox. 633 m
sports-ground
Teren sportiv
Terenuri sport aprox. 889 m

Detalii despre preț și costuri

Prețul pe piață

Preț cerut: 89.900 €

Preț min. zonă 84.000 €
Preț max. zonă 219.000 €

78% dintre proprietățile similare ca zonă și nr. camere au prețul cerut mai mare. mai multe...

Bine de știut: prețul unei proprietăți este influențat și de alte caracteristici, cum ar fi: vechime, localizare, vecinătăți, suprafață, compartimentare, amenajări, dotări, etc. mai puțin...

Costuri cu achiziția

Fără credit
5.634 RON
Credit ipotecar
7.098 RON
Noua casă
598 RON+ taxe notariale

i

Costuri adiționale mai puțin știute la achiziție: taxe notariale, comisioane etc.

Proprietăți similare

Apartament cu 2 camere decomandat în Brâncoveanu
87.500 € + TVA
București, Brâncoveanu
2 camere
55 mp
Etaj 2
Apartament cu 2 camere decomandat în Brâncoveanu
97.900 € + TVA
București, Brâncoveanu
2 camere
58 mp
Etaj 1
Apartament cu 2 camere decomandat în Brâncoveanu
88.900 €
București, Brâncoveanu
2 camere
52 mp
Etaj 3

Detalii de contact

SMARTSELLER

Beatrice Ichim

5.00(3 review-uri)

SMARTSELLER

Abonează-te la newsletter să fii primul care primește cele mai noi recomandări de proprietăți și sfaturi de la experți.

CONTACT

Creează alertă

Salvează căutarea ca să primești pe email ultimele anunțuri publicate

Apartamente cu 3 camere de vânzare în zona Brâncoveanu, Sector 4