Apartament 3 camere sut 80,86mp | Lux | Ela Cotroceni Faza II |

204.914 € + TVA

13 Septembrie, București

Nr. cam.:
3
Sup. utilă:
80,84 mp
Etaj:
6 / 11
An constr.:
2025 (Finalizată)
  • • Locație exactă

Descriere apartament

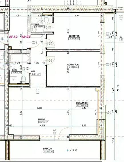
COMISION 0 % ! Ultimul apartament cu 3 camere. Va propunem spre vanzare un apartament cu 3 camere, decomandat, bucatarie deschisa cu posibilitate de a se inchide, sut 80,86mp din care balcon 11,97 mp situat la etajul 6 al unui imobil cu regim de inaltime S+P+4E+5R+8R+9R+10R+11E Duplex Imobilul este construit pe structura din stalpi si diafragme cu lățimea de 40 cm din beton armat, grinzi și planșee din beton armat. Fațada este parțial ventilată cu fibrociment Eqitone gama Tectiva sau similar cu vopsea structurata. Pe zona de parter și parțial pe la etajele superioare, clădirea se va termoizolata cu vata minerala bazaltică. Tâmplăria exterioară este realizată din PVC de tip Salamander, Veka sau similar. Feroneria folosită este perimetrala cu balamale ascunse. Sticla folosită la vitraje va fi în sistem tripan. Ușa principală de acces în bloc va fi din aluminiu, proiectată pentru trafic intens. Finisaje interioare Pereții de compartimentare sunt executați din BCA Ytong de 12,5 cm. Pereții exteriori vor fi realizati din BCA Ytong de 30 cm, iar pereții dintre apartamente vor fi realizați din BCA Ytong de 30 cm. Toți pereții vor fi finisați cu un strat de tencuială aplicat mecanizat, două straturi de glet (glet de încarcare, glet de finisaj), respectiv vopsea lavabilă de culoare albă aplicată în două straturi. În băi și grupuri sanitare pereții vor fi placați cu faianță. Pardoselile vor fi prevăzute cu sistem de încălzire cu sape armate pe suport de placă cu nuturi, cu rol de izolație termică și fonică. Plafoanele vor fi placate cu gips carton sau tencuite. Tavanele vor fi integral gletuite, zugrăvelile urmând a se realiza cu vopsea lavabilă de culoare albă. Sistem de încălzire: Sistemul de încălzire utilizează apa caldă ca agent termic, iar pentru cedarea căldurii în încăperi s-a ales un sistem cu temperatura joasă (incalzire în pardoseală) realizată din țevi multistrat cu barieră de oxigen. Agentul termic va fi asigurat cu ajutorul a 4 centrale de bloc a câte 480kW fiecare. Toate materialele folosite la finisaje și dotări sunt premium, oferind clădirii un înalt standard de calitate, durabilitate și siguranță. Zona este bine conectata la mijloacele de transport in comun, oferind acces rapid la toate punctele de interes din oras. De asemenea, exista o varietate de magazine, restaurante si servicii la doar cativa pasi de proprietate. Acest apartament este o oportunitate perfecta pentru cei care doresc sa traiasca intr-un mediu linistit, cu acces la facilitatile si convenientele orasului. Apartamentul se preda "la alb" (fara gresie, parchet si usi de interior), urmand ca finisajele (materialele + manopera) sa fie contractate separat, prin partenerii nostri Delta Studio la un pret preferential sau de la orice alta firma de finisaje interioare. Pret apartament 204914 euro +tva Locuri de parcare subteran tip Klaus - 23000 euro +tva ( 2 locuri ) Locuri de parcare suprateran parcare simpla descoperita -18000 euro + tva tip Klaus -22000 euro + tva ( 2 locuri ) Pozele sunt cu titlu de prezentare. Pentru mai multe informatii sau pentru a programa o vizionare nu ezitați sa mă contactati! Oana Sipoteanu VAUNT ID: 110439
Citește mai mult Citește mai puțin
Confort 1 Decomandat 1 Balcon / Terasă / Logie Curte comună Centrală imobil Încălzire prin pardoseală Bine întreținut (Bună)

Detalii apartament

ID anunț: X7QH20177 Copiat! 275127460 Copiat!
Actualizat în: 26 Februarie 2026
Suprafață utilă totală: 80.84 mp
Nr. bucătării: 1
Nr. băi: 2
Structură rezistență: Beton
Tip imobil: Bloc de apartamente
Regim înălțime: S+P+11E

Utilități

Destinație
Rezidențial
Pereți
Faianță
Podele
Gresie
Ușă intrare
Parchet Metal
Izolații termice
Exterior
Ferestre cu geam termopan
PVC
Contorizare
Apometre
Diverse
Senzor de fum Sistem de alarmă
Facilități imobil
Videointerfon Interfon Lift
Utilități
CATV Curent Apă Canalizare
Internet
Fibră optică
Servicii imobil
Supraveghere video
Amenajare străzi
Iluminat stradal Mijloace de transport în comun Asfaltate

Puncte de interes

Mijloace transport
tram-station
Aprodex
Stații tramvai aprox. 259 m
bus-station
Statia Sebastian, linia 173, 385, N121, N122, 226, 122, 47
Stații autobuz aprox. 293 m
metro-station
Orizont (M5)
Stații metrou aprox. 686 m
train-station
Fosta Gara Regala Cotroceni (en)
Stații tren aprox. 1257 m
Școală
kindergarten
GRĂDINIȚA DE COPII NR. 75
Gradinițe aprox. 277 m
school
aa
Școli aprox. 317 m
kindergarten
Gradinita nr. 75
Gradinițe aprox. 341 m
university
Universitatea Nationala de Aparare "Carol I"
Universități aprox. 710 m
Recreere
park
Parc
Parcuri aprox. 146 m
supermarket
Lidl
Supermarket aprox. 192 m
sports-ground
Teren sportiv
Terenuri sport aprox. 532 m
public-square
Jose Rizal Square (en)
Piețe publice aprox. 664 m

Detalii despre preț și costuri

Prețul pe piață

Preț cerut: 204.914 €

Preț min. zonă 109.000 €
Preț max. zonă 306.000 €

69% dintre proprietățile similare ca zonă și nr. camere au prețul cerut mai mic. mai multe...

Bine de știut: prețul unei proprietăți este influențat și de alte caracteristici, cum ar fi: vechime, localizare, vecinătăți, suprafață, compartimentare, amenajări, dotări, etc. mai puțin...

Costuri cu achiziția

Fără credit
11.414 RON
Credit ipotecar
13.579 RON
Noua casă
1.403 RON+ taxe notariale

i

Costuri adiționale mai puțin știute la achiziție: taxe notariale, comisioane etc.

Proprietăți similare

Apartament cu 3 camere decomandat, mobilat în 13 Septembrie
209.500 €
București, 13 Septembrie
3 camere
72 mp
Etaj 4
Apartament cu 3 camere decomandat, mobilat în 13 Septembrie
209.500 €
București, 13 Septembrie
3 camere
72 mp
Etaj 4 / 8
Apartament cu 3 camere decomandat, mobilat în 13 Septembrie
190.000 €
București, 13 Septembrie
3 camere
81 mp
Etaj 1

Detalii de contact

R&D ADVISERS

Oana Sipoteanu Project Manager

4.29(7 review-uri)

R&D ADVISERS
PRO

Abonează-te la newsletter să fii primul care primește cele mai noi recomandări de proprietăți și sfaturi de la experți.

CONTACT

Creează alertă

Salvează căutarea ca să primești pe email ultimele anunțuri publicate

Apartamente noi cu 3 camere de vânzare în zona 13 Septembrie, Sector 5