2 camere | semidecomandat | Ghencea | Bld Ghencea

89.900 €

Ghencea, București

Nr. cam.:
2
Sup. utilă:
55 mp
Etaj:
6
An constr.:
1981
  • • Locație aproximativă

Descriere apartament

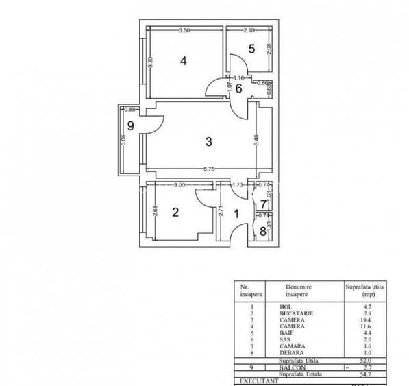
COD PROPRIETATE: P150695 Va ofer spre vanzare apartament cu 2 camere, semidecomandat cu o suprafata utila de 55 mp, situat in zona Ghencea din Bucuresti la etajul 6 dintr-o cladire cu 8 etaje, construita in anul 1981. Locuinta dispune de 2 dormitoare, 1 baie, 1 bucatarie si 1 balcon cu o suprafata de 4 mp. Proprietatea face parte dintr-o cladire tip bloc, cu structura din beton. Puncte de interes: Bld Ghencea Utilitati generale: curent electric, apa, canalizare, gaz, termoficare, calorifere, Finisaje: necesita renovare, interior, vopsea lavabila, faianta, parchet, gresie, pvc, usa intrare din metal si usile din interior din lemn jaluzele rulouri din Dotari: mobilat nemobilat, bucataria este nemobilata, apometre, contor gaz, contor curent electric, contorizare separata, interfon, supraveghere video, lift Pentru mai multe detalii sau pentru a programa o vizionare, nu ezitati sa ma contactati.
Citește mai mult Citește mai puțin
Confort 1 Semidecomandat Nemobilat 1 Balcon Calorifere Termoficare Necesită renovare

Detalii apartament

ID anunț: XG2910059 Copiat! 274938546 Copiat!
Actualizat în: 14 Februarie 2026
Suprafață construită: 65 mp
Nr. bucătării: 1
Nr. băi: 1
Structură rezistență: Beton
Tip imobil: Bloc de apartamente
Regim înălțime: P+8E

Utilități

Destinație
Rezidențial
Pereți
Vopsea lavabilă Faianță
Podele
Parchet Gresie
Ușă intrare
Metal
Uși interior
Lemn
Izolații termice
Interior
Ferestre cu geam termopan
PVC
Contorizare
Apometre Contor gaz
Alte spații utile
Debara
Dotări imobil
Interfon Lift
Utilități
Curent Apă Canalizare Gaze
Amenajare străzi
Asfaltate Iluminat stradal Mijloace de transport în comun
Comision
standard

Vecinătăți:

Bld Ghencea

Disponibilitate proprietate:

imediat

Puncte de interes

Mijloace transport
bus-station
Statia Bascov, linia 185
Stații autobuz aprox. 515 m
tram-station
Brasov
Stații tramvai aprox. 600 m
metro-station
Râul Doamnei (M5)
Stații metrou aprox. 1130 m
trolleybus-station
Statia RATB Favorit, linia troleibuz 69,71 si linia autobuz 126
Stații troleibuz aprox. 1902 m
Școală
kindergarten
Gradinita 273
Gradinițe aprox. 688 m
kindergarten
Gradinita nr. 273
Gradinițe aprox. 688 m
school
Liceul Teoretic Eugen Lovinescu
Școli aprox. 828 m
school
Liceul Eugen Lovinescu
Școli aprox. 851 m
Recreere
supermarket
Lidl
Supermarket aprox. 413 m
restaurant
Shaorma
Restaurant aprox. 536 m
park
Parc si loc de joaca copii
Parcuri aprox. 562 m
sports-ground
Teren sportiv
Terenuri sport aprox. 849 m

Detalii despre preț și costuri

Prețul pe piață

Preț cerut: 89.900 €

Preț min. zonă 61.000 €
Preț max. zonă 125.000 €

50% dintre proprietățile similare ca zonă și nr. camere au prețul cerut mai mare. mai multe...

Bine de știut: prețul unei proprietăți este influențat și de alte caracteristici, cum ar fi: vechime, localizare, vecinătăți, suprafață, compartimentare, amenajări, dotări, etc. mai puțin...

Costuri cu achiziția

Fără credit
5.634 RON
Credit ipotecar
7.098 RON
Noua casă
598 RON+ taxe notariale

i

Costuri adiționale mai puțin știute la achiziție: taxe notariale, comisioane etc.

Proprietăți recomandate

Detalii de contact

SOURCE CAPITAL & REAL ESTATE

Daniel Serbanel

3.86(5 review-uri)

SOURCE CAPITAL & REAL ESTATE
PRO

Abonează-te la newsletter să fii primul care primește cele mai noi recomandări de proprietăți și sfaturi de la experți.

CONTACT

Creează alertă

Salvează căutarea ca să primești pe email ultimele anunțuri publicate

Apartamente cu 2 camere de vânzare în zona Ghencea, Sector 5