Apartament 2 camere decomandat Drumul Taberei | Bloc dupa cutremur |

106.000 €

Drumul Taberei, București

Nr. cam.:
2
Sup. utilă:
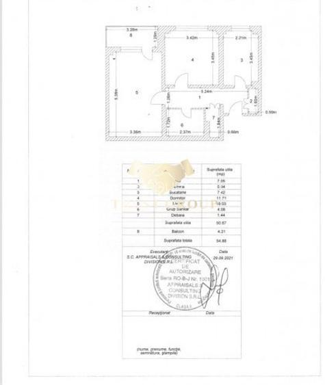
50,57 mp
Etaj:
7 / 10
An constr.:
1979 (Finalizată)
  • • Locație aproximativă

Descriere apartament

Va propunem un apartament de doua camere in zona Drumul Taberei , in apropiere de mijloacele de transport in comun, parc si alte facilitati. Apartamentul este situat la etajul 7 al unui imobil finalizat in anul 1979, si securizat cu interfon. Dispune de o suprafata totala de 55mp, este decomandat si compartimentat astfel: living, bucatarie, dormitor, baie, hol, spatiii de depozitare si un balcon. Apartamentul se preteaza ca si locuinta de familie sau investitie si se vinde mobilat si utilat. -Clasa energetica : B *Proprietatea a fost verificata si este valabila, confirmarea fiind facuta, atat timp cat este la promovare. *Pentru mai multe detalii si pentru programarea unei vizionari, sunati in orice zi intre orele 09:00 si 21:00 inclusiv in week-end incepand cu ora 10:00 pana la 22:00.
Citește mai mult Citește mai puțin
Confort 1 Decomandat Mobilat Mobilat 1 Balcon / Terasă / Logie Calorifere Termoficare Bine întreținut (Bună)

Detalii apartament

ID anunț: XC4520148 Copiat! 275124162 Copiat!
Actualizat în: 26 Februarie 2026
Suprafață construită: 54.88 mp
Nr. bucătării: 1
Nr. băi: 1
Tip imobil: Bloc de apartamente
Regim înălțime: P+10E

Utilități

Destinație
Rezidențial
Pereți
Vopsea lavabilă Faianță
Podele
Parchet Gresie
Ușă intrare
Metal
Uși interior
Lemn
Contorizare
Apometre Contor căldură Contor gaz
Bucătărie
Mobilată Utilată
Alte spații utile
Debara
Facilități imobil
Interfon Lift
Utilități
Curent Apă Canalizare Gaze CATV
Amenajare străzi
Asfaltate Iluminat stradal Mijloace de transport în comun
Comision
standard

Certificat energetic:

Clasa energetică: A

Disponibilitate proprietate:

imediat

Puncte de interes

Mijloace transport
bus-station
Brasov
Stații autobuz aprox. 122 m
tram-station
Statia Bd. Ghencea / Brasov, linia 41
Stații tramvai aprox. 190 m
metro-station
Parc Drumul Taberei (M5)
Stații metrou aprox. 727 m
trolleybus-station
Statia RATB Favorit, linia troleibuz 69,71 si linia autobuz 126
Stații troleibuz aprox. 1385 m
Școală
kindergarten
Grădiniță copii nr 87 Spiridusii
Gradinițe aprox. 100 m
school
Scoala generala Nr. 154
Școli aprox. 362 m
school
Liceul Teoretic Eugen Lovinescu
Școli aprox. 380 m
kindergarten
Gradinita 273
Gradinițe aprox. 414 m
Recreere
park
Parc si loc de joaca copii
Parcuri aprox. 172 m
restaurant
Shaorma
Restaurant aprox. 180 m
sports-ground
Teren sportiv
Terenuri sport aprox. 248 m
supermarket
Auchan
Supermarket aprox. 254 m

Detalii despre preț și costuri

Prețul pe piață

Preț cerut: 106.000 €

Preț min. zonă 61.900 €
Preț max. zonă 140.000 €

66% dintre proprietățile similare ca zonă și nr. camere au prețul cerut mai mic. mai multe...

Bine de știut: prețul unei proprietăți este influențat și de alte caracteristici, cum ar fi: vechime, localizare, vecinătăți, suprafață, compartimentare, amenajări, dotări, etc. mai puțin...

Costuri cu achiziția

Fără credit
6.392 RON
Credit ipotecar
7.955 RON
Noua casă
680 RON+ taxe notariale

i

Costuri adiționale mai puțin știute la achiziție: taxe notariale, comisioane etc.

Proprietăți similare

Apartament cu 2 camere decomandat, mobilat în Drumul Taberei
99.990 €
București, Drumul Taberei
2 camere
48 mp
Parter / 10
Apartament cu 2 camere semidecomandat, mobilat în Drumul Taberei
110.000 €
București, Drumul Taberei
2 camere
45 mp
Etaj 1 / 8
Apartament cu 2 camere nedecomandat în Drumul Taberei
116.600 € + TVA
București, Drumul Taberei
2 camere
40,3 mp
Etaj 4 / 11

Detalii de contact

TRUST GROUP ESTATE

Mihai Vladia Senior Consultant Imobiliar

4.63(13 review-uri)

TRUST GROUP ESTATE
PRO

Abonează-te la newsletter să fii primul care primește cele mai noi recomandări de proprietăți și sfaturi de la experți.

CONTACT

Creează alertă

Salvează căutarea ca să primești pe email ultimele anunțuri publicate

Apartamente cu 2 camere de vânzare în zona Drumul Taberei, Sector 6