3 camere | decomandat | Gorjului | Metrou Gorjului

118.000 €

Gorjului, București

Nr. cam.:
3
Sup. utilă:
71 mp
Etaj:
3 / 10
An constr.:
1972 (Finalizată)
  • • Locație aproximativă

Descriere apartament

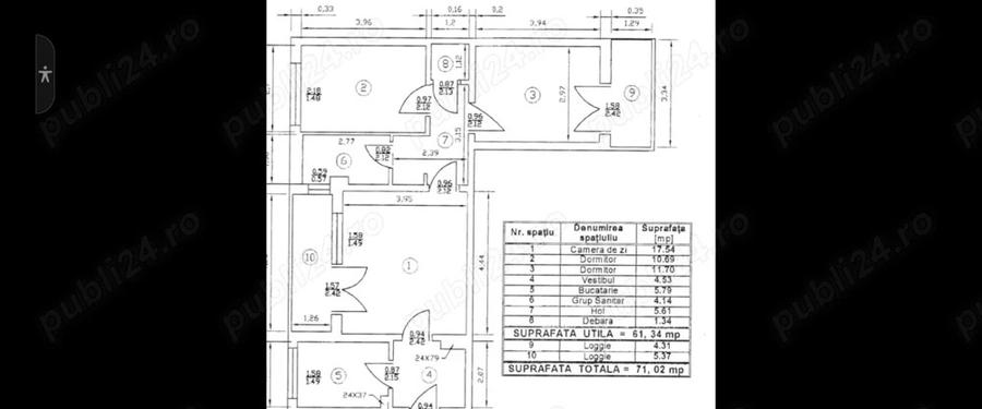
COD PROPRIETATE: P148457 Va ofer spre vanzare apartament cu 3 camere, decomandat cu o suprafata utila de 71 mp, situat in zona Gorjului din Bucuresti la etajul 3 dintr-o cladire cu 10 etaje, construita in anul 1972. Locuinta dispune de 3 dormitoare, 1 baie, 1 bucatarie si 1 balcon cu o suprafata de 4 mp. Proprietatea face parte dintr-o cladire tip bloc, cu structura din beton. Puncte de interes: Metrou Gorjului Utilitati generale: curent electric, apa, canalizare, gaz, termoficare, calorifere, aer conditionat Finisaje: necesita renovare, exterior, bloc izolat termic, vopsea lavabila, faianta, parchet, gresie, pvc, usa intrare din metal si usile din interior din lemn jaluzele rulouri din Dotari: mobilat nemobilat, bucataria este mobilata, utilata, apometre, contor gaz, contor curent electric, contorizare separata, interfon, supraveghere video, lift Pentru mai multe detalii sau pentru a programa o vizionare, nu ezitati sa ma contactati.
Citește mai mult Citește mai puțin
Confort 1 Decomandat Nemobilat 1 Balcon / Terasă / Logie Aer condiționat Calorifere Termoficare Necesită renovare

Detalii apartament

ID anunț: XEBL100SA Copiat! 275153328 Copiat!
Actualizat în: 01 Martie 2026
Suprafață construită: 81 mp
Nr. bucătării: 1
Nr. băi: 1
Structură rezistență: Beton
Tip imobil: Bloc de apartamente
Regim înălțime: P+10E

Utilități

Destinație
Rezidențial
Pereți
Vopsea lavabilă Faianță
Podele
Parchet Gresie
Ușă intrare
Metal
Uși interior
Lemn
Izolații termice
Exterior Bloc izolat termic
Ferestre cu geam termopan
PVC
Contorizare
Apometre Contor gaz
Bucătărie
Mobilată Utilată
Alte spații utile
Debara
Facilități imobil
Interfon Lift
Utilități
Curent Apă Canalizare Gaze
Amenajare străzi
Asfaltate Iluminat stradal Mijloace de transport în comun
Comision
standard

Vecinătăți:

Metrou Gorjului

Disponibilitate proprietate:

imediat

Puncte de interes

Mijloace transport
bus-station
Statia Valea Lunga, linia 137, 236, 336, 136, N115, 138,61,62
Stații autobuz aprox. 141 m
trolleybus-station
statia Piața Gorjului: 61, 62
Stații troleibuz aprox. 505 m
metro-station
Metrorex. Stația Gorjului (M3)(1994/1998)
Stații metrou aprox. 516 m
tram-station
Frigocom
Stații tramvai aprox. 996 m
Școală
school
Gradinita 198 Dumbrava Minunilor
Școli aprox. 176 m
school
Gradinita Blue Fairy
Școli aprox. 177 m
kindergarten
Dumbrava Minunilor
Gradinițe aprox. 196 m
university
Colegiu Penticostal
Universități aprox. 1160 m
Recreere
park
Parc
Parcuri aprox. 128 m
restaurant
Restaurant-bar Cristal
Restaurant aprox. 197 m
supermarket
Carrefour Market - Piata Gorjului
Supermarket aprox. 346 m
sports-ground
Baza Sportiva Givova
Terenuri sport aprox. 573 m

Detalii despre preț și costuri

Prețul pe piață

Preț cerut: 118.000 €

Preț min. zonă 85.000 €
Preț max. zonă 255.000 €

72% dintre proprietățile similare ca zonă și nr. camere au prețul cerut mai mare. mai multe...

Bine de știut: prețul unei proprietăți este influențat și de alte caracteristici, cum ar fi: vechime, localizare, vecinătăți, suprafață, compartimentare, amenajări, dotări, etc. mai puțin...

Costuri cu achiziția

Fără credit
6.954 RON
Credit ipotecar
8.567 RON
Noua casă
741 RON+ taxe notariale

i

Costuri adiționale mai puțin știute la achiziție: taxe notariale, comisioane etc.

Proprietăți similare

Apartament cu 3 camere semidecomandat, mobilat în Gorjului
119.500 €
București, Gorjului
3 camere
60 mp
Etaj 3
Apartament cu 2 camere semidecomandat, mobilat în Gorjului
110.000 €
București, Gorjului
2 camere
45,23 mp
Etaj 6 / 9
Apartament cu 3 camere semidecomandat, mobilat în Gorjului
114.900 €
București, Gorjului
3 camere
75 mp
Etaj 4

Detalii de contact

RISING SUNSHINE

Daniel Serbanel

4.89(3 review-uri)

RISING SUNSHINE
PRO

Abonează-te la newsletter să fii primul care primește cele mai noi recomandări de proprietăți și sfaturi de la experți.

CONTACT

Creează alertă

Salvează căutarea ca să primești pe email ultimele anunțuri publicate

Apartamente cu 3 camere de vânzare în zona Gorjului, Sector 6