3 Camere de vanzare | Lujerului | Metrou | renovat | parcare inclusa

164.000 €

Lujerului, București

Nr. cam.:
3
Sup. utilă:
70 mp
Etaj:
4 / 4
An constr.:
1988 (Finalizată)
  • • Comision 0%
  • • Locație aproximativă

Descriere apartament

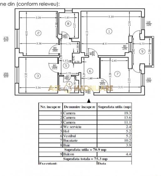
P243443 ACE Imobiliare va ofera spre vanzare un apartament cu 3 camere, situat in zona Lujerului. Locuinta are o suprafata de 70 mp mp si se afla la etajul 4, intr-un imobil cu regim de inaltime P+4. Apartamentul este mobilat si utilat, pregatit pentru noii proprietari. Zona beneficiaza de acces facil la transportul public, restaurante, centre comerciale si alte facilitati urbane, ceea ce face din acest apartament o alegere excelenta pentru un stil de viata confortabil si echilibrat sau pentru o investitie sigura. Pentru detalii suplimentare si pentru a programa o vizionare, va invitam sa ne contactati. ACE Imobiliare – acasa incepe cu noi. Comisionul de intermediere este de 0% din pretul de tranzactie. Consultant imobiliar: Bogdan Mirica
Citește mai mult Citește mai puțin
Confort 1 Decomandat Mobilat Mobilat 1 Balcon / Terasă / Logie Aer condiționat Termoficare

Detalii apartament

ID anunț: XG32100H8 Copiat! 275092215 Copiat!
Actualizat în: 24 Februarie 2026
Suprafață construită: 83 mp
Nr. bucătării: 1
Nr. băi: 1
Structură rezistență: Beton
Tip imobil: Bloc de apartamente
Regim înălțime: P+4E

Utilități

Destinație
Rezidențial
Jaluzele
Verticale
Pereți
Vopsea lavabilă
Podele
Parchet
Rulouri/Obloane
Aluminiu
Ușă intrare
Metal
Uși interior
Celulare
Izolații termice
Exterior
Ferestre cu geam termopan
PVC
Contorizare
Apometre Contor căldură Contor gaz
Bucătărie
Mobilată Utilată
Electrocasnice
Mașină de spălat Frigider Aragaz Mașină spălat vase TV Cafetieră Hotă
Alte spații utile
Terasă
Facilități imobil
Interfon
Utilități
Curent Apă Canalizare Gaze
Amenajare străzi
Asfaltate Iluminat stradal Mijloace de transport în comun

Certificat energetic:

Clasa energetică: A

Disponibilitate proprietate:

imediat

Puncte de interes

Mijloace transport
bus-station
statia RATB Răsăritului: 61, 62, 106, 136, 236, 336
Stații autobuz aprox. 104 m
metro-station
Metrorex. Statia Gorjului (M3).
Stații metrou aprox. 211 m
trolleybus-station
statia Piața Gorjului: 61, 62
Stații troleibuz aprox. 251 m
tram-station
Statia Bd. Uverturii / Pasajul Lujerului, linia 41
Stații tramvai aprox. 862 m
Școală
school
Școala Generală nr. 174 "Constantin Brâncuși"
Școli aprox. 335 m
school
Scoala cu clasele 1-8 nr. 142
Școli aprox. 348 m
kindergarten
Gradinita nr.250
Gradinițe aprox. 567 m
university
Colegiu Penticostal
Universități aprox. 1189 m
Recreere
restaurant
Restaurant Casa Mino
Restaurant aprox. 88 m
supermarket
Carrefour
Supermarket aprox. 114 m
park
Parc
Parcuri aprox. 333 m
sports-ground
Baza Sportiva Givova
Terenuri sport aprox. 897 m

Detalii despre preț și costuri

Prețul pe piață

Preț cerut: 164.000 €

Preț min. zonă 85.000 €
Preț max. zonă 255.000 €

70% dintre proprietățile similare ca zonă și nr. camere au prețul cerut mai mic. mai multe...

Bine de știut: prețul unei proprietăți este influențat și de alte caracteristici, cum ar fi: vechime, localizare, vecinătăți, suprafață, compartimentare, amenajări, dotări, etc. mai puțin...

Costuri cu achiziția

Fără credit
8.532 RON
Credit ipotecar
10.341 RON
Noua casă
976 RON+ taxe notariale

i

Costuri adiționale mai puțin știute la achiziție: taxe notariale, comisioane etc.

Proprietăți similare

Apartament cu 2 camere decomandat în Lujerului
179.000 €
București, Lujerului
2 camere
50 mp
Etaj 8
Apartament cu 2 camere decomandat, mobilat în Lujerului
180.000 € + TVA
București, Lujerului
2 camere
65 mp
Etaj 10
Apartament cu 2 camere semidecomandat în Lujerului
168.000 €
București, Lujerului
2 camere
56 mp
Parter

Detalii de contact

ACE Imobiliare

ACE Imobiliare Agent

3.45(4 review-uri)

ACE Imobiliare
PRO

Abonează-te la newsletter să fii primul care primește cele mai noi recomandări de proprietăți și sfaturi de la experți.

CONTACT

Creează alertă

Salvează căutarea ca să primești pe email ultimele anunțuri publicate

Apartamente cu 3 camere de vânzare în zona Lujerului, Sector 6