2 camere decomandat| 59mp | Rotar Park 1 | Metrou Pacii 1 minut

149.900 €

Păcii, București

Nr. cam.:
2
Sup. utilă:
54 mp
Etaj:
11 / 11
An constr.:
2019 (Finalizată)
  • • Locație aproximativă

Descriere apartament

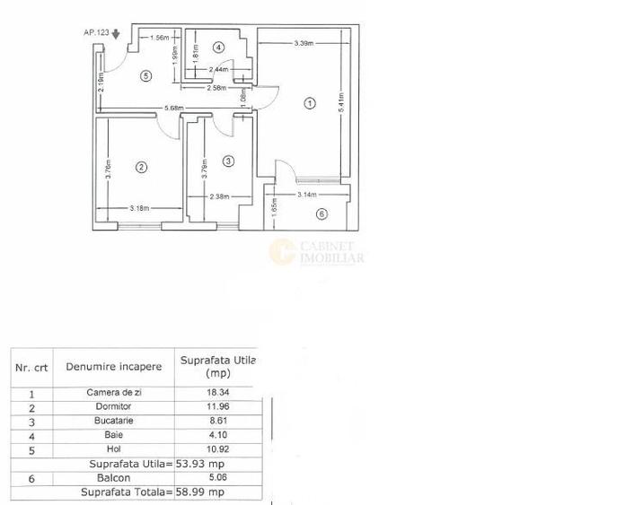
Cabinet Imobiliar Bucharest vă propune spre vânzare un apartament cu 2 camere, decomandat, situat în complexul rezidențial Rotar Park Residence 1, Sector 6. Caracteristici apartament: • Suprafață totala: 59 mp • Suprafață utila: 54 mp • An construcție: 2019 • Compartimentare decomandată • Balcon generos Compartimentare: • Living: 18,34 mp • Dormitor: 11,96 mp • Bucătărie închisă: 8,61 mp • Baie cu geam: 4,10 mp • Hol: 10,92 mp • Balcon: 5,06 mp Dotări și finisaje: • Se vinde complet mobilat și utilat • Centrală termică proprie prin condensare • Aer condiționat • Aragaz, hotă, frigider • Mașină de spălat rufe • Televizoare LED • Finisaje moderne Complex rezidențial: • Pază 24/7 • Acces pietonal cu cartelă • Supraveghere video • Parc și locuri de joacă • Supermarket, restaurant, farmacie • Sală fitness, clinică stomatologică Localizare și acces: • Metrou Păcii la aproximativ 200 m • Stații STB: 61, 62, 136, 137, 138, 178, 236 • Acces pietonal către Kaufland, Lidl și Mega Image Vizionarea se face doar pe baza semnării unui contract de vizionare, în conformitate cu dispozițiile Codului Civil (art. 1169) privind libertatea contractuală. Cabinet Imobiliar Bucharest
Citește mai mult Citește mai puțin
Confort 1 Decomandat Mobilat Mobilat 1 Balcon / Terasă / Logie Aer condiționat Calorifere Centrală proprie

Detalii apartament

ID anunț: XFO6100GK Copiat! 275129664 Copiat!
Actualizat în: 26 Februarie 2026
Nr. bucătării: 1
Nr. băi: 1
Structură rezistență: Beton
Tip imobil: Bloc de apartamente
Regim înălțime: P+11E

Utilități

Destinație
Rezidențial
Pereți
Faianță Vopsea lavabilă
Podele
Gresie Parchet
Ușă intrare
Metal
Izolații termice
Exterior
Ferestre cu geam termopan
PVC
Contorizare
Apometre Contor gaz
Bucătărie
Mobilată Utilată
Electrocasnice
Aragaz Frigider Hotă
Facilități imobil
Interfon Lift Videointerfon
Utilități
Curent Apă Canalizare Gaze Telefon
Servicii imobil
Pază
Amenajare străzi
Asfaltate
Comision
standard

Disponibilitate proprietate:

Imediat

Puncte de interes

Mijloace transport
bus-station
Statia Valea Lunga, linia 137, 236, 336, 136, N115, 138,61,62
Stații autobuz aprox. 55 m
trolleybus-station
statia Piața Gorjului: 61, 62
Stații troleibuz aprox. 391 m
metro-station
Metrorex. Stația Gorjului (M3)(1994/1998)
Stații metrou aprox. 404 m
tram-station
Frigocom
Stații tramvai aprox. 918 m
Școală
school
Gradinita Blue Fairy
Școli aprox. 178 m
school
Gradinita 198 Dumbrava Minunilor
Școli aprox. 276 m
kindergarten
Dumbrava Minunilor
Gradinițe aprox. 289 m
university
Colegiu Penticostal
Universități aprox. 1203 m
Recreere
restaurant
Shaorma Gorjului
Restaurant aprox. 173 m
supermarket
Carrefour Market - Piata Gorjului
Supermarket aprox. 237 m
park
Parc
Parcuri aprox. 240 m
sports-ground
Baza Sportiva Givova
Terenuri sport aprox. 511 m

Detalii despre preț și costuri

Prețul pe piață

Preț cerut: 149.900 €

Preț min. zonă 56.998 €
Preț max. zonă 190.400 €

83% dintre proprietățile similare ca zonă și nr. camere au prețul cerut mai mic. mai multe...

Bine de știut: prețul unei proprietăți este influențat și de alte caracteristici, cum ar fi: vechime, localizare, vecinătăți, suprafață, compartimentare, amenajări, dotări, etc. mai puțin...

Costuri cu achiziția

Fără credit
8.049 RON
Credit ipotecar
9.798 RON
Noua casă
904 RON+ taxe notariale

i

Costuri adiționale mai puțin știute la achiziție: taxe notariale, comisioane etc.

Proprietăți similare

Apartament cu 2 camere decomandat în Păcii
150.000 €
București, Păcii
2 camere
55 mp
Etaj 11 / 11
Apartament cu 4 camere decomandat în Păcii
135.000 €
București, Păcii
4 camere
80 mp
Etaj 3 / 4
Apartament cu 2 camere decomandat în Păcii
149.900 €
București, Păcii
2 camere
53,93 mp
Etaj 11 / 11

Detalii de contact

Cabinet Imobiliar Bucharest

Vlad Nita Manager

5.00(4 review-uri)

Cabinet Imobiliar Bucharest
PRO

Abonează-te la newsletter să fii primul care primește cele mai noi recomandări de proprietăți și sfaturi de la experți.

CONTACT

Creează alertă

Salvează căutarea ca să primești pe email ultimele anunțuri publicate

Apartamente cu 2 camere de vânzare în zona Păcii, Sector 6