Penthouse 3 camere, 2 bai, dressing, intabulat + terasa 9.42

165.000 €

Exterior Vest, Sibiu

Nr. cam.:
3
Sup. utilă:
100,4 mp
Etaj:
2 / 2
An constr.:
2023 (Finalizată)
  • • Comision 0%
  • • Locație aproximativă

Descriere apartament

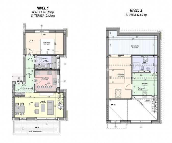
Penthouse cu 3 camere, 2 bai, dressing cu o suprafata utila de 100.4 mp si terasa cu suprafata de 9.42 mp. Imobilul este intabulat si se preda la stadiul de finisat la alb. Acesta poate fi achizitionat si cu ajutorul unui credit bancar. Contoarele de gaz si curent sunt montate, astfel te poti muta imediat. Caracteristici tehnice de constructie: - Eficienta energetica prin: izolatie cu vata bazaltica, incalzire in pardoseala, centrala termica in condensatie, tamplarie PVC cu 5 camere si 3 foi de sticla, jaluzele electrice pe partea sudica - Balcon finisat cu granit si balustrada din sticla securizata - Casa scarii placata cu granit - Fatada decorata cu larice siberian si piatra naturala. Caracteristici ansamblu rezidential DaVinci Homes: - 45% din suprafata destinata spatiilor verzi - Sistem automatizat de irigatie pentru spatiile verzi - Arbori ornamentali maturi inca din prima zi - Priveliste panoramica spre munti - Orientare sudica pentru toate balcoanele - Locuire in vile cu 6, 9 sau 12 apartamente - 4 intrari si iesiri in cadrul ansamblului - Locuri de joaca amenajate in cartier - Locuri de parcare incluse - Drumuri complet pavate - Vile construite in trepte de nivel Locatie: Zona de Vest a orasului Sibiu, in cartierul rezidential DaVinci Homes. Acesta este situat la o distanta de 4 minute pana la Metro si 15 minute pana in centrul istoric al Sibiului. (apartamentul nr. 6 vila 51M) Vino in ansamblul nostru, programeaza acum o vizionare.
Citește mai mult Citește mai puțin
Confort lux Semidecomandat Nemobilat 1 Balcon / Terasă / Logie Centrală proprie Încălzire prin pardoseală 1 Parcare

Detalii apartament

ID anunț: XF4N100AV Copiat! 275122687 Copiat!
Actualizat în: 27 Februarie 2026
Suprafață construită: 115 mp
Nr. bucătării: 1
Nr. băi: 2
Structură rezistență: Cărămidă
Tip imobil: Casă/Vilă
Regim înălțime: P+2E

Utilități

Destinație
Rezidențial
Jaluzele
Verticale
Pereți
Faianță Vopsea lavabilă
Podele
Gresie Parchet
Izolații termice
Exterior
Facilități imobil
Acoperiș Interfon Videointerfon
Utilități
Curent Apă Canalizare CATV Gaze Telefon
Internet
Cablu
Amenajare străzi
Iluminat stradal Mijloace de transport în comun Asfaltate
Comision
0%

Certificat energetic:

Clasa energetică: B

Disponibilitate proprietate:

Imediat

Detalii despre preț și costuri

Prețul pe piață

Preț cerut: 165.000 €

Preț min. zonă 79.000 €
Preț max. zonă 199.900 €

71% dintre proprietățile similare ca zonă și nr. camere au prețul cerut mai mare. mai multe...

Bine de știut: prețul unei proprietăți este influențat și de alte caracteristici, cum ar fi: vechime, localizare, vecinătăți, suprafață, compartimentare, amenajări, dotări, etc. mai puțin...

Costuri cu achiziția

Fără credit
8.567 RON
Credit ipotecar
10.380 RON
Noua casă
981 RON+ taxe notariale

i

Costuri adiționale mai puțin știute la achiziție: taxe notariale, comisioane etc.

Proprietăți similare

Apartament cu 3 camere semidecomandat, mobilat în Exterior Vest
181.000 €
Sibiu, Exterior Vest
3 camere
88,5 mp
Etaj 2 / 2
Apartament cu 3 camere decomandat, mobilat în Exterior Vest
179.000 € + TVA
Sibiu, Exterior Vest
3 camere
89 mp
Etaj 4
Apartament cu 4 camere decomandat în Exterior Vest
166.000 € + TVA
Sibiu, Exterior Vest
4 camere
90 mp
Etaj 2

Detalii de contact

NEW CONCEPT LIVING

DaVinci Homes Manager Vanzari DaVinci

NEW CONCEPT LIVING
PRO

Abonează-te la newsletter să fii primul care primește cele mai noi recomandări de proprietăți și sfaturi de la experți.

CONTACT

Creează alertă

Salvează căutarea ca să primești pe email ultimele anunțuri publicate

Apartamente noi cu 3 camere de vânzare în zona Exterior Vest, Sibiu