District Real Estate va propune spre vanzare un apartament decomandat cu 3 camere în zona, Olimpia-Stadion situat la etajul 1 al unui bloc cu 10 etaje, in apropiere de Spitalul Judetean, magazine alimentare, restaurante etc, avand acces rapid la mijloacele de transport in comun.
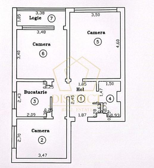
Apartamentul se desfasoara pe o suprafata de 56mp si dispune de un balcon inchis de 3.38mp.
Compartimentarea se prezinta astfel:
- Hol acces,
- Bucatarie inchisa,
- 3 camere
- Baie dotata cu cada,
- Balcon
Mai multe detalii:
- Blocul dispune de lift,
- Se poate monta centrala proprie, conducta de gaz fiind pe etaj,
- 2 Aparate de aer conditionat,
- Rulouri la fiecare geam,
- Video la cerere
Apartamentul se vinde nemobilat si este disponibil imediat.
Necesita renovare.
Pretul de vanzare este de 105.000 Euro negociabil.
Oferim consultanta si solutii financiare in vederea obtinerii unui credit imobiliar avantajos, cu ajutorul colaboratorilor nostri.
Pentru vizionari si alte detalii va stam la dispozitie.
61%dintre proprietățile similare ca zonă și nr. camere au prețul cerutmai mic.
mai multe...
Bine de știut: prețul unei proprietăți este influențat și de alte caracteristici, cum ar fi: vechime, localizare, vecinătăți, suprafață, compartimentare, amenajări, dotări, etc.
mai puțin...
Costuri cu achiziția
Fără credit
6.346 RON
Credit ipotecar
7.904 RON
Noua casă
675 RON+ taxe notariale
i
Costuri adiționale mai puțin știute la achiziție: taxe notariale, comisioane etc.
Calculul ipotecarului
Proprietăți similare
104.900 €
Timișoara, Olimpia-Stadion
3 camere
65 mp
Etaj 5
94.990 €
Timișoara, Olimpia-Stadion
3 camere
68 mp
Etaj 8
104.990 €
Timișoara, Olimpia-Stadion
3 camere
53 mp
Etaj 1
Detalii de contact
Acestă agenție te poate ajuta să obții o soluție de finanțare potrivită nevoilor tale. Solicită-i informații suplimentare.
Sediul central - Timișoara
Bulevardul Victor Babeș nr. 2, 300230, Timișoara, România
Tel: +40.374.40.44.98 / Fax: +40.256.401.179
Email: suport@imobiliare.ro
Luni - Vineri 08:00 - 20:00
Punct de lucru - București: Iride Business Park, Bld. Dimitrie
Pompeiu 9-9A, Clădirea B2B,
020335, Sector 2, București, România
CONTACT
Sediul central - Timișoara
Bulevardul Victor Babeș nr. 2, 300230, Timișoara, România
Tel: +40.374.40.44.98 / Fax: +40.256.401.179
Email: suport@imobiliare.ro
Luni - Vineri 08:00 - 20:00
Punct de lucru - București: Iride Business Park, Bld. Dimitrie
Pompeiu 9-9A, Clădirea B2B,
020335, Sector 2, București, România
Sună acum și cere detalii sau programează o vizionare.
Cere detalii prin email
*
*
*
*
Stații autobuz
Stații tramvai
Stații troleibuz
Școli
Gradinițe
Universități
Supermarket
Parcări
Terenuri sport
Parcuri
Piețe publice
Spital
Farmacie
Restaurant
Bar
Pub
Cafenea
Bancă
Autogara Normandia
aprox.
361 m
Statie Fabrica de detergenti Tv4, Tv8
aprox.
427 m
Statie Stefan cel Mare A21
aprox.
677 m
Statie Pindului A21
aprox.
777 m
Statie Torac A21
aprox.
840 m
Spitalul Judetean
aprox.
922 m
Statie Spitalul judetean T16, E2
aprox.
927 m
Spitalul Judetean
aprox.
937 m
Hotel Lido
aprox.
941 m
Statie Spitalul judetean T16, E2
aprox.
942 m
Statie Cluj T15, T16, T19, E2, E3
aprox.
960 m
Statie Calea martirilor T15, T19, E3
aprox.
1052 m
Apateu
aprox.
1059 m
Calea Martirilor
aprox.
1071 m
Statie Apateu A21
aprox.
1089 m
Statie Abator Tv6, Tv8 si Tv5
aprox.
371 m
Banatim
aprox.
520 m
Statie Banatim Tv4, Tv8
aprox.
525 m
Statie Banatim Tv5, Tv6 retur
aprox.
534 m
Statie Sala Olimpia Tv 6, Tv8, Tv5
aprox.
667 m
Statie Mecatim Tv4, Tv8
aprox.
803 m
Bulevardul Sudului
aprox.
820 m
Statie B-dul Sudului Tv9
aprox.
826 m
Bulevardul Sudului
aprox.
838 m
Statie Spitalul judetean Tv9
aprox.
921 m
Spitalul Judetean
aprox.
947 m
Statie Cluj Tram 5 si 8 retur
aprox.
963 m
Spitalul Judetean
aprox.
988 m
Cluj
aprox.
1004 m
Statie Spitalul judetean Tv9
aprox.
1005 m
Statie B-dul Sudului T16
aprox.
930 m
Statie Sudului bucla T16
aprox.
1456 m
Statie Maresal C-tin Prezan bucla T15, T19
aprox.
1587 m
Statie B-dul Mihai Eminescu T19
aprox.
1616 m
Statie Maresal C-tin Prezan T15, T19
aprox.
1704 m
Statie Bastion T11, T17
aprox.
1891 m
Statie Politia Jud. Timis T11, T17
aprox.
1893 m
LICEUL TEORETIC "VLAD TEPES"
aprox.
227 m
Centrul de Zi pentru Copii cu Dizabilitati Podul Lung
aprox.
1047 m
Scoala Gimnaziala nr. 1
aprox.
1069 m
ȘCOALA GIMNAZIALĂ NR.1
aprox.
1079 m
Scoala generala nr. 28
aprox.
1106 m
Liceul Teoretic Jean-Louis Calderon
aprox.
1146 m
LICEUL TEORETIC "J.L.CALDERON" TIMISOARA
aprox.
1149 m
COLEGIUL NATIONAL DE ARTA "ION VIDU" TIMISOARA
aprox.
1187 m
Colegiul National de Arta Ion Vidu
aprox.
1193 m
Scoala generala nr. 30
aprox.
1217 m
SCOALA GIMNAZIALĂ NR.30
aprox.
1223 m
Liceul Waldorf - atelier practic
aprox.
1231 m
Scoala Gimnaziala nr. 30
aprox.
1234 m
Gradinita lui Larisa
aprox.
1262 m
Liceul Teoretic William Shakespeare
aprox.
1309 m
Gradinita Program Prelungit Nr. 28
aprox.
842 m
Gradinita Program Normal Nr. 20
aprox.
950 m
Gradinita Program Prelungit Nr. 45
aprox.
1098 m
Gradinita Program Prelungit Nr. 53
aprox.
1198 m
Gradinita Program Normal Nr. 5
aprox.
1255 m
Gradinita nr. 11
aprox.
1266 m
Gradinita Program Prelungit Nr. 11
aprox.
1429 m
Gradinita Program Normal Nr. 19
aprox.
1445 m
Gradinita nr. 32
aprox.
1461 m
Gradinita Broscuta Fermecata
aprox.
1462 m
Gradinita Program Prelungit Nr. 19
aprox.
1466 m
Gradinita Program Prelungit Posta
aprox.
1576 m
Gradinita nr. 12
aprox.
1595 m
Gradinita Program Prelungit Nr. 16
aprox.
1601 m
Gradinita particulara Chip & Dale
aprox.
1627 m
Universitatea Tibiscus
aprox.
982 m
Universitatea Dimitrie Cantemir
aprox.
1082 m
Facultatea de Economie și de Administrare a Afacerilor
aprox.
1089 m
Facultatea de Economie si de Administrarea a Afacerilor
aprox.
1099 m
Facultatea de Chimie Industriala si Ingineria Mediului
aprox.
1281 m
Facultate de Chimie Industriala
aprox.
1299 m
Atelier Scolar pentru Proiectare si Cercetare
aprox.
1402 m
Aula Magna (en)
aprox.
1414 m
Laboratorul de gradul I de Gerotehnică și Căi de Comunicație Terestre
aprox.
1436 m
Centrul de Igiena U.M.F.
aprox.
1441 m
Universitatea de Vest
aprox.
1445 m
Universitatea de Vest din Timisoara
aprox.
1447 m
Departamentul de Constructii Metalice si Mecanica Constructiilor
aprox.
1451 m
Facultatea de Constructii si Arhitectura
aprox.
1462 m
Catedra de Constructii Metalice (en)
aprox.
1474 m
Profi
aprox.
510 m
Profi City
aprox.
728 m
Carrefour Market
aprox.
736 m
Profi
aprox.
857 m
Profi
aprox.
919 m
Billa
aprox.
994 m
Carrefour Market
aprox.
1137 m
Profi City
aprox.
1198 m
Lidl
aprox.
1283 m
Profi
aprox.
1474 m
Nova Tim
aprox.
1580 m
Profi
aprox.
1675 m
Profi str. Dacilor
aprox.
1696 m
Profi
aprox.
1706 m
Profi
aprox.
1855 m
Parcare pentru clienti
aprox.
444 m
Parcare privata
aprox.
489 m
Parcare pentru clienti
aprox.
528 m
Parcare
aprox.
531 m
Parcare
aprox.
536 m
Parcare pentru clienti
aprox.
636 m
Parcare
aprox.
665 m
Parcare
aprox.
689 m
Parcare
aprox.
715 m
Parcare cu plata
aprox.
726 m
Parcare
aprox.
762 m
Parcare
aprox.
775 m
Parcare
aprox.
784 m
Parcare
aprox.
797 m
Parcare cu plata
aprox.
812 m
Teren sportiv
aprox.
230 m
Teren sportiv
aprox.
254 m
Teren sportiv
aprox.
262 m
Teren sportiv
aprox.
265 m
Teren sportiv
aprox.
276 m
Teren sportiv
aprox.
293 m
Teren Fotbal
aprox.
317 m
Teren sportiv
aprox.
334 m
Teren sportiv
aprox.
341 m
Teren Sintetic Fotbal
aprox.
371 m
Teren sportiv
aprox.
376 m
Teren sportiv
aprox.
397 m
Teren Fotbal
aprox.
428 m
Teren sportiv
aprox.
453 m
Teren Fotbal
aprox.
545 m
Parcul Karlsruhe
aprox.
390 m
Piata Iosif cel Nou / Bihor
aprox.
396 m
Parc
aprox.
446 m
Parc
aprox.
465 m
Complex Heaven
aprox.
531 m
Parcul Constructorilor
aprox.
573 m
Parc pentru copii (en)
aprox.
583 m
Parc
aprox.
583 m
Parc
aprox.
611 m
Parc
aprox.
663 m
Baza Sportiva Proiectantul
aprox.
685 m
Helios Sport Club
aprox.
733 m
Parc
aprox.
762 m
Club Lemon
aprox.
769 m
No Name
aprox.
777 m
Piata Leonardo Da Vinci
aprox.
1188 m
Piata Aurel Vlaicu
aprox.
1205 m
Piata Romanilor
aprox.
1390 m
Piata Corneliu Micloși
aprox.
1444 m
Piata Traian
aprox.
1472 m
Piata Sarmisegetuza
aprox.
1766 m
Piata Aron Cotrus
aprox.
1823 m
Profilaxis
aprox.
338 m
Policlinica Sanatatea
aprox.
762 m
Casa Austria Hospital (en)
aprox.
924 m
Policlinica Studenteasca
aprox.
935 m
Centrul Medical Profilaxia
aprox.
947 m
Ambulatoriu Integrat Policlinica 3
aprox.
978 m
Spitalul Județean (en)
aprox.
1040 m
Clinica de Recuperare
aprox.
1426 m
Clinica BEGA Obstetrica Ginecologie
aprox.
1441 m
Cabinet Acupunctura - Dr. Claici
aprox.
1478 m
Neuromed
aprox.
1529 m
Clinica Universitara de Obstetrica Ginecologie Bega
aprox.
1559 m
Dispensar Giratoriu Buziasului. Centru de permanenta
aprox.
1573 m
Clinica de Oto-Rino-Laringologie
aprox.
1607 m
Medici's
aprox.
1663 m
Sensiblu
aprox.
523 m
Dona
aprox.
583 m
Farmacie
aprox.
1016 m
Help Net
aprox.
1177 m
Farmacia Dona
aprox.
1405 m
Farmacia Catena
aprox.
1437 m
Farmacia HelpNet
aprox.
1452 m
Farmacia Dona
aprox.
1502 m
Catena
aprox.
1554 m
Apothecaria
aprox.
1573 m
Help Net
aprox.
1576 m
Imedas
aprox.
1586 m
Kovacs
aprox.
1650 m
Farmacia Dona
aprox.
1872 m
Mihai Viteazul
aprox.
1899 m
DaToni
aprox.
645 m
Da Toni
aprox.
648 m
Pizzeria Da Toni - Pizza Taxi
aprox.
675 m
AGIL
aprox.
694 m
Restaurant Cactus
aprox.
696 m
Casa Romaneasca
aprox.
741 m
Restaurant Chic
aprox.
741 m
ROMA
aprox.
757 m
Eurohotel
aprox.
805 m
Valentina
aprox.
812 m
Restaurant Universitar Politehnica
aprox.
861 m
Zet
aprox.
866 m
Cantina Studenteasca
aprox.
868 m
Restaurant Oxford Timisoara (en)
aprox.
873 m
3F
aprox.
882 m
PAGO
aprox.
680 m
Atu
aprox.
1037 m
WakeUp
aprox.
1057 m
Club Fratelli
aprox.
1158 m
Orizont Club
aprox.
1190 m
Cafe Saloon
aprox.
1481 m
Zone Cafe
aprox.
1501 m
Mateo Cafe
aprox.
1728 m
Club As
aprox.
1749 m
Swiss House Club
aprox.
1799 m
MGM Bastion
aprox.
1880 m
Curtea Berarilor
aprox.
1891 m
Scart Loc Lejer
aprox.
1958 m
Porky's
aprox.
797 m
The 80's Pub
aprox.
840 m
Charlie's Pub
aprox.
841 m
Oxford Pub & Restaurant
aprox.
886 m
Factory Pub
aprox.
1116 m
Habitat
aprox.
1399 m
La Capite
aprox.
1510 m
Vineri15
aprox.
1551 m
Wake Up
aprox.
1706 m
Barista
aprox.
897 m
BiblioTech Cafe
aprox.
1632 m
Terasa D'Arc
aprox.
1931 m
Raiffeisen Bank
aprox.
768 m
Banca Transilvania
aprox.
832 m
Banca Transilvania
aprox.
843 m
BRD
aprox.
917 m
BRD
aprox.
934 m
ING
aprox.
944 m
Banca Romaneasca
aprox.
944 m
Alpha Bank
aprox.
944 m
Bancpost
aprox.
950 m
Garanti Bank
aprox.
951 m
CEC Bank
aprox.
957 m
Raiffeisen Bank
aprox.
958 m
Sucursală CEC
aprox.
964 m
BRD
aprox.
1065 m
BRD, sediul principal Timisoara
aprox.
1071 m
În ceea ce privește mijloacele de transport în comun, locuitorii acestui cartier sunt deserviți atât de tramvaie (liniile 6, 8 și 10), cât și de autobuze (liniile 22 și E8, care ajung în nordul cartierului, aproape de limita cu centrul). La fel ca cei din Cetate, iubitorii de ciclism din Complex-Stadion au la dispoziție mai multe piste special amenajate, pe străzi precum Bulevardul Eroilor de la Tisa, Bulevardul Mihai Viteazu, Bulevardul Victor Babeș, Strada Cluj, Strada Arieș sau Strada Johann Heinrich Pestalozzi.
Complex-Stadion poate fi considerată cea mai ofertantă zonă din punctul de vedere al oportunităților de educație. La capitolul școli și licee, de menționat aici ar fi Colegiul Național de Artă "Ion Vidu" (de pe Strada Cluj, nr. 12), Liceul Teoretic "Vlad Țepeș" (Strada Surorile Martir Caceu, nr. 47), Liceul cu Program Sportiv "Banatul" (pe Strada FC Ripensia, nr. 29), dar și Liceul Teoretic "Jean Louis Calderon" (pe Strada Johann Heinrich Pestalozzi, nr. 14). Cartierul oferă numeroase opțiuni și la capitolul învățământ superior, dat fiind că aici se află chiar Universitatea de Vest, de care aparțin peste zece facultăți reputate (printre care Arte și Design, Litere, Istorie și Teologie, dar și cea de Matematică și Informatică). Tot în zonă se găsește și Universitatea privată "Tibiscus", ce oferă specializări în Calculatoare și Informatică Aplicată, în Drept și Administrație Publică, în Psihologie și Științe Economice. Mai jos poți vedea în detaliu ce unități de învățământ există în Complex-Stadion:
Locuitorii din Complex-Stadion sunt deserviți, strict între granițele propriului cartier, de magazine de mici dimensiuni (printre care se numără mai multe magazine Profi). Cei care locuiesc aici au acces, însă, și la oportunitățile de cumpărături oferite de zonele învecinate. În Cetate, spre exemplu, de menționat este un centru comercial "cu tradiție", anume Bega Shopping Center (localizat în apropiere de Parcul Civic). De asemenea, în învecinatul Soarelui se găsesc două supermarketuri din rețeaua Carrefour (unul pe Bulevardul Liviu Rebreanu, nr. 160, iar celălalt pe Strada Uranus, nr. 9), precum și două magazine Profi City (unul pe Strada Aștrilor, iar celălalt pe Strada Mareșal Constantin Prezan). De adăugat ar fi că atât în zona Buziașului, cât și în Girocului, se găsește câte un supermarket din rețeaua Lidl (cel dintâi situat pe Bulevardul Liviu Rebreanu, nr. 37, iar cel de-al doilea pe Calea Martirilor 1989, nr. 98).
În Complex-Stadion, una dintre principalele artere de circulație ar fi Bulevardul Eroilor de Tisa, care ajunge în apropierea Universității de Vest din Timișoara și face legătura cu învecinatul Fabric; de menționat ar fi și Bulevardul Corneliu Coposu, în apropiere de "granița" cu zona Cetate, dar și Bulevardul Liviu Rebreanu, la limita cu Girocului și Soarelui. Dată fiind numărul ridicat de blocuri din acest cartier, găsirea unui loc permanent de parcare în Complex-Stadion poate ridica probleme uneori. Acesta este motivul pentru care șoferii interesați de închirierea unui asemenea spațiu se pot adresa reprezentanților autorităților locale (al sediul Primăriei se găsește în zona Cetate, mai exact pe Bulevardul Constantin Diaconovici Loga, nr. 1).
La capitolul oportunități de recreere, Complex-Stadion este una dintre cele mai ofertante zone ale Timișoarei, principalul său punct forte fiind reprezentat, așa cum i-o arată și numele, de facilitățile sportive disponibile aici. Astfel, în partea de sud a cartierului se găsește Stadionul "Dan Păltinișanu", alături de o serie de terenuri de sport ce țin de Baza Sportivă Politehnica Nr. 2; tot aici se află și două ștranduri publice, ce reprezintă un important punct de atracție în timpul sezonului estival. La capitolul parcuri, de menționat aici ar fi Parcul Karlsruhe; locuitorii cartierului au acces, bineînțeles, și la multitudinea de parcuri din zona Cetate, mai ales că unele dintre acestea sunt situate chiar la "granița" cu Complex-Stadion "“ este vorba despre Parcul "Regina Maria", Parcul Rozelor și Parcul Copiilor "Ion Creangă"; acestora li se adaugă și obiectivele de interes cultural și turistic existente în centrul orașului. Află, mai jos, ce alte opțiuni de petrecere a timpului liber mai ai în Complex-Stadion:
Datorită vecinătăților sale, dar nu numai, zona Complex-Stadion poate fi considerată una bine deservită la capitolul servicii medicale. Astfel, locuitorii săi au acces atât la unitățile de profil din propriul cartier (Policlinica 3, de pe Strada Daliei, Spitalul de Dermato-venerologie Timișoara, de pe Strada Ofcea, nr. 24), cât și la cele din zona Cetate (Spitalul Clinic Municipal de Urgență Timișoara, Spitalul Militar de Urgență "Dr. Victor Popescu", Spitalul Clinic de Urgență pentru Copii "Louis Țurcanu") și din Elisabetin-Odobescu (Maternitatea Bega, Clinica de Oncologie Medicală, Clinica de Neuropsihiatrie Infantilă). Pe lângă o serie de cabinete particulare, în acest cartier se găsește și o clinică din rețeaua Medlife. Amplasată pe Bulevardul Eroilor de la Tisa, nr. 28, aceasta oferă o multitudine de specializări, precum alergologie, cardiologie, chirurgie generală, diabet și nutriție, endocrinologie, oftalmologie, ORL ortopedie etc. Pe harta de mai jos găsești localizarea exactă a spitalelor și clinicilor din zonă:
Cele mai multe restaurante din această zonă sunt concentrate în complexul studențesc "“ pe Aleea Studenților, unde regăsim atât fast-food-uri, cât și pizzerii, restaurante sau cafenele. Cu mașina, pe jos, sau cu bicicleta poți să ajungi repede în Piețele din centrul orașului (cartierul Cetate), iar dacă nici localurile de aici nu te satisfac, cu siguranță vei găsi ceva pe gustul tău mergând la Iulius Town. Aruncă o privire pe hartă și vezi unde vei găsi cel mai apropiat restaurant de viitoarea ta locuință.
Găsești un bancomat BRD (Aleea Studenților), BCR (pe Aleea Studenților), și Banca Transilvania (pe Strada Daliei). Fiind o zonă universitară, mai multe atm-uri găsești la Universitatea de Vest, pe bulevardul Pirvan, unde se află și o sucursală BRD. Consultă harta și află unde sunt localizate și alte bănci sau ATM-uri în zona de care ești interesat.
Înainte să pleci...
Ești sigur că ai văzut și aceste proprietăți?
104.900 €
Timișoara, Olimpia-Stadion
3 camere
65 mp
Etaj 5
94.990 €
Timișoara, Olimpia-Stadion
3 camere
68 mp
Etaj 8
104.990 €
Timișoara, Olimpia-Stadion
3 camere
53 mp
Etaj 1
Creează alertă
Salvează căutarea ca să primești pe email ultimele anunțuri publicate
Apartamente cu 3 camere de vânzare în zona Olimpia-Stadion, Timișoara
Cere detalii prin email
*
*
*
*
Detaliile tale de contact vor fi partajate cu District Real Estate
Statistici proprietate
Apartamente 3 camere de vânzare
- Timișoara
- Zona Olimpia-Stadion
Asigurare de viață/lună Costul este variabil. În funcție de banca aleasă, procentul variază între 0.0259% și 0.035% din soldul creditului.
Costuri cu achiziția7.904 RON
Comision agenție Întreabă agenţia
Onorariu notarial5.543 RON
Taxă întabulare OCPI803 RON
Autentificare contract credit1.558 RON
Preț de achiziție535.038 RON
Preț locuință535.038 RON
TVA 0%Inclus în prețul cerut
Preț de achiziție535.038 RON
Preț locuință535.038 RON
TVA 0%
Inclus în prețul cerut
Avans minim80.256 RON
Credit pe 30 de ani454.782 RON
Cost achitat în prima lună
Taxa evaluare imobil(până la)
575 RON
Rata lunară (variabilă)3.195 RON
Depozit colateral9.585 RON
Comision de garantare FNGCIMM45 RON
Asigurare anuală imobil535 RON
Poliță PAD130 RON
Tarif arhivă electronică102 RON
Costuri adiționale675 RON + taxe notariale
Asigurare viață și complexă (opțională)Costul este variabil. În funcție de banca aleasă, procentul variază între 0.0259% și 0.035% din soldul creditului
Onorariu notarialconform tarif notarial
Taxă întabulare OCPI675 RON
i
Toate valorile de mai sus sunt estimative și nu reprezintă în mod obligatoriu costurile exacte pe care le veți primi de la companiile/instituțiile prin care veți încheia tranzacția.