UNIRII -NATIUNILE UNITE 5 camere CENTRALA GAZE

Preț necomunicat

Centrul Civic, București

Nr. cam.:
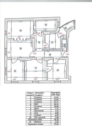
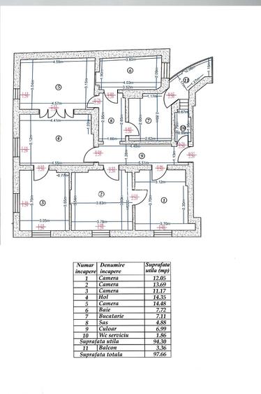
5
Sup. utilă:
98 mp
Etaj:
4 / 4
An constr.:
1935 (Finalizată)
  • • Exclusivitate
  • • Locație exactă
  • • Proprietate nelocuită

Descriere apartament

UNIRII-NATIUNILE UNITE,apartament 5 camere, decomandate ,et 4/5, supr-100 mp -bloc de caramida,an constr-1935,liftCENTRALA PROPRIE pe GAZE FARA BULINA;FARA LEGEA 112, vedere mixta,LUMINOS 2 bai,,Bloc ANVELOPAT,amenajat,liber la vanzare COMISION CUMPARATOR 2%
Citește mai mult Citește mai puțin
Confort 1 Decomandat Mobilat Parțial mobilat 1 Balcon / Terasă / Logie Aer condiționat Calorifere Centrală proprie 1 Parcare Bine întreținut (Bună)

Detalii apartament

ID anunț: X2F20002D Copiat! 272841281 Copiat!
Actualizat în: 25 Februarie 2026
Suprafață utilă totală: 100 mp
Suprafață construită: 120 mp
Nr. bucătării: 1
Nr. băi: 2
Structură rezistență: Cărămidă
Tip imobil: Bloc de apartamente
Regim înălțime: D+P+4E+M

Utilități

Destinație
Rezidențial Birouri De vacanță
Pereți
Faianță Vinarom
Podele
Gresie Parchet
Ușă intrare
Lemn
Uși interior
Lemn
Izolații termice
Interior Exterior
Ferestre cu geam termopan
PVC
Contorizare
Contor gaz Apometre
Bucătărie
Mobilată Utilată
Electrocasnice
Cuptor microunde Frigider Mașină de spălat
Alte spații utile
WC Serviciu
Facilități imobil
Lift Interfon
Utilități
Gaze Curent Canalizare Apă
Servicii imobil
Administrare
Amenajare străzi
Mijloace de transport în comun Asfaltate Iluminat stradal
Comision
2%

Vecinătăți:

CURTEA DE APEL,HANUL BERARILOR

Alte detalii:

ORIENTARE EST;SUD;VEST

Alte detalii despre preț:

negociabil putin

Disponibilitate proprietate:

IMEDIATA

Puncte de interes

Mijloace transport
tram-station
11 Iunie
Stații tramvai aprox. 221 m
bus-station
Statia Piata Natiunilor Unite, linia 385, 124, N115, N120, N121, N122, 104, 123
Stații autobuz aprox. 386 m
metro-station
Metrorex. Stația Piața Unirii 1 (M1) (en)
Stații metrou aprox. 499 m
trolleybus-station
Statia Facultatea de Drept, linia 61,69,90,91
Stații troleibuz aprox. 1382 m
Școală
kindergarten
Gradinita nr.192, "Pisicile Aristocrate"
Gradinițe aprox. 172 m
kindergarten
Gradinita nr. 192 (Pisicile aristocrate)
Gradinițe aprox. 173 m
school
Elohim Academi
Școli aprox. 425 m
university
Facultatea de Teologie Ortodoxa
Universități aprox. 531 m
Recreere
park
Parc
Parcuri aprox. 104 m
supermarket
Mega Image
Supermarket aprox. 171 m
public-square
Piața Constituției
Piețe publice aprox. 321 m
sports-ground
Teren sportiv
Terenuri sport aprox. 786 m

Detalii despre preț și costuri

Costuri cu achiziția

Fără credit
32.860 RON
Credit ipotecar
34.906 RON
Noua casă
1.260 RON+ taxe notariale

i

Costuri adiționale mai puțin știute la achiziție: taxe notariale, comisioane etc.

Proprietăți recomandate

Detalii de contact

REGAL SERVICE

Dragan Georgeta Agent imobiliar

4.83(4 review-uri)

REGAL SERVICE
PRO

Abonează-te la newsletter să fii primul care primește cele mai noi recomandări de proprietăți și sfaturi de la experți.

CONTACT

Creează alertă

Salvează căutarea ca să primești pe email ultimele anunțuri publicate

Apartamente cu 4+ camere de vânzare în zona Centrul Civic, Ultracentral