Vă propunem spre vânzare un apartament cu 4 camere, situat pe Calea Dorobanților, în imediata apropiere a Pieței Romane – o zonă centrală, excelent conectată, la doar câteva minute de mers pe jos de stațiile mijloacelor de transport în comun, centre comerciale, unități de învățământ și parcuri.
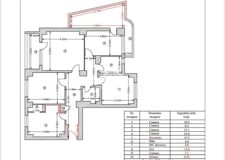
Apartamentul este amplasat la etajul 3 al unui imobil reabilitat, construit în 1980, cu 10 etaje. Are o suprafață totală de 97 mp și o compartimentare decomandată, care include: living, trei dormitoare, bucătărie, două băi, un balcon închis de aproximativ 3 mp și o terasă de 10 mp.
Imobilul beneficiază de sistem de termoficare, iar apartamentul este dotat cu aer condiționat și geamuri termopan montate în cadrul reabilitării, contribuind la un confort termic și fonic îmbunătățit. Un avantaj important îl reprezintă locul de parcare disponibil în curtea imobilului, un beneficiu rar într-o zonă centrală.
Apartamentul necesită renovare completă, oferind viitorului proprietar posibilitatea de a-l amenaja integral după propriul gust și necesități. Se vinde în starea prezentată în fotografii.
Pentru mai multe detalii sau pentru a programa o vizionare, vă rugăm să ne contactați la .
87%dintre proprietățile similare ca zonă și nr. camere au prețul cerutmai mic.
mai multe...
Bine de știut: prețul unei proprietăți este influențat și de alte caracteristici, cum ar fi: vechime, localizare, vecinătăți, suprafață, compartimentare, amenajări, dotări, etc.
mai puțin...
Costuri cu achiziția
Fără credit
13.201 RON
Credit ipotecar
15.587 RON
Noua casă
1.669 RON+ taxe notariale
i
Costuri adiționale mai puțin știute la achiziție: taxe notariale, comisioane etc.
Calculul ipotecarului
Proprietăți recomandate
Pornind de la căutarea ta îți recomandăm următoarele anunțuri
300.000 €
București, Romană
4 camere
77 mp
Etaj 3 / 8
305.000 € + TVA
București, Eminescu
3 camere
95 mp
Etaj 1 / 4
289.999 €
București, Ultracentral
3 camere
71 mp
Etaj 5
249.000 €
București, Victoriei
3 camere
72 mp
Parter / 1
253.000 € + TVA
București, Romană
3 camere
70,37 mp
Etaj 4 / 4
286.900 €
București, Centrul Civic
3 camere
90 mp
Etaj 1
310.000 €
București, Calea Victoriei
4 camere
97 mp
Etaj 3
145.000 €
București, Calea Plevnei
1 camere
43 mp
Etaj 10 / 10
Detalii de contact
Acestă agenție te poate ajuta să obții o soluție de finanțare potrivită nevoilor tale. Solicită-i informații suplimentare.
Sediul central - Timișoara
Bulevardul Victor Babeș nr. 2, 300230, Timișoara, România
Tel: +40.374.40.44.98 / Fax: +40.256.401.179
Email: suport@imobiliare.ro
Luni - Vineri 08:00 - 20:00
Punct de lucru - București: Iride Business Park, Bld. Dimitrie
Pompeiu 9-9A, Clădirea B2B,
020335, Sector 2, București, România
CONTACT
Sediul central - Timișoara
Bulevardul Victor Babeș nr. 2, 300230, Timișoara, România
Tel: +40.374.40.44.98 / Fax: +40.256.401.179
Email: suport@imobiliare.ro
Luni - Vineri 08:00 - 20:00
Punct de lucru - București: Iride Business Park, Bld. Dimitrie
Pompeiu 9-9A, Clădirea B2B,
020335, Sector 2, București, România
Gradinita cu program normal si prelungit Happy Kids
aprox.
313 m
Gradinita nr. 252 cu program prelungit
aprox.
604 m
Gradinita de copii nr.251
aprox.
620 m
Grădinița nr. 252
aprox.
645 m
Gradinita nr. 85
aprox.
851 m
Gradinita nr. 138 cu program prelungit
aprox.
893 m
Paradisul Copiilor
aprox.
900 m
Gradinita numarul 12 Albinuta
aprox.
1033 m
Gradinita nr. 12 Albinuta
aprox.
1038 m
Gradinita nr. 2
aprox.
1109 m
Gradinita nr. 116
aprox.
1278 m
Ioanid
aprox.
1279 m
Gradinita Ioanid
aprox.
1295 m
Gradinita numarul 133
aprox.
1394 m
Gradinita cu program normal ""Ge Ce Pic Englishkinder"
aprox.
1402 m
SNSPA
aprox.
735 m
Scoala Nationala de Studii Politice si Administrative (SNSPA)
aprox.
757 m
Scoala Nationala de Studii Politice si Administrative
aprox.
757 m
Universitatea Atenaeum
aprox.
832 m
Athenaeum University (en)
aprox.
838 m
ASE - Sala de sport
aprox.
909 m
ASE - Cladirea Cihoschi
aprox.
931 m
ASE Cladirea Veche 1916 - 1926 (en)
aprox.
943 m
ASE - Cibernetica
aprox.
952 m
ASE Cibernetica (en)
aprox.
958 m
Amfiteatrele ASE
aprox.
964 m
Academia de Studii Economice
aprox.
976 m
CROS - Universitatea Alternativa
aprox.
980 m
ASE - Facultatea de Comert
aprox.
991 m
Academia Romana
aprox.
1327 m
Mega Image
aprox.
331 m
Mario Plaza
aprox.
345 m
Mega Image - IANCU DE HUNEDOARA
aprox.
420 m
Nic Dorobanti Non-Stop
aprox.
593 m
Bila Supermarket
aprox.
879 m
BILLA - Dorobanti
aprox.
883 m
Mega Image
aprox.
1163 m
Kaufland Barbu Vacarescu
aprox.
1350 m
Bacania Coco
aprox.
1351 m
BILLA - B. Vacarescu
aprox.
1356 m
Mega Image
aprox.
1361 m
Nik Non-Stop
aprox.
1379 m
Mega Image Amzei Non-Stop
aprox.
1418 m
Mega Image Magheru
aprox.
1454 m
Mega Image
aprox.
1488 m
"METROPLIS CENTER"
aprox.
431 m
Parcare
aprox.
144 m
Parcare
aprox.
275 m
Parcare
aprox.
288 m
Parcare spital
aprox.
326 m
Parcare
aprox.
326 m
Parcare Mario Plaza
aprox.
345 m
Parcare
aprox.
394 m
Parcare Subterana Metropolis Center
aprox.
409 m
Parcare
aprox.
414 m
Parcare
aprox.
455 m
Parcare privata
aprox.
479 m
Parcare
aprox.
590 m
Parcare
aprox.
624 m
Parcare
aprox.
686 m
Parcare
aprox.
767 m
Parc
aprox.
168 m
Parc
aprox.
183 m
Parc
aprox.
358 m
Perla park
aprox.
358 m
Piata Dorobantilor
aprox.
466 m
Piata Dorobanti
aprox.
470 m
Parc
aprox.
479 m
Parc
aprox.
537 m
Parcul Khalil Gibran
aprox.
544 m
Parc
aprox.
544 m
Parc
aprox.
597 m
George Calinescu Round (en)
aprox.
694 m
Parc
aprox.
694 m
Parc
aprox.
758 m
Automatica Park (en)
aprox.
768 m
Teren sportiv
aprox.
371 m
Teren sportiv
aprox.
419 m
Stadionul Dinamo
aprox.
424 m
Teren sportiv
aprox.
433 m
Teren sportiv
aprox.
482 m
Teren sportiv
aprox.
521 m
Teren sportiv
aprox.
556 m
Teren sportiv
aprox.
1431 m
ICSIM
aprox.
1488 m
Teren sportiv
aprox.
1505 m
Teren sportiv
aprox.
1533 m
Teren sportiv
aprox.
1560 m
Teren sportiv
aprox.
1585 m
Skatepark 1
aprox.
1623 m
Piața Aviatorilor
aprox.
976 m
Piața Romană
aprox.
1032 m
Piata Revolutiei
aprox.
1910 m
Farmacia HelpNet
aprox.
31 m
Help Net Farma
aprox.
38 m
Crisia-Farm
aprox.
70 m
Farmacia Dona 17
aprox.
158 m
Catena Farmacia
aprox.
160 m
Farmacia Crisia
aprox.
202 m
Sensiblu
aprox.
300 m
Farmacia Dona 54
aprox.
309 m
Centrofarm 9
aprox.
342 m
Farmacia HelpNet
aprox.
409 m
Farmacia Dona 152
aprox.
428 m
Help Net Farma
aprox.
446 m
SC. Farmed SRL
aprox.
455 m
Farmacia Punkt
aprox.
477 m
Farmacia Arta
aprox.
502 m
Policlinica
aprox.
254 m
Regina Maria Floreasca
aprox.
279 m
Spitalul Euroclinic - Regina Maria
aprox.
343 m
Spitalul Euroclinic
aprox.
356 m
ProEstetica
aprox.
375 m
Camera de Garda - Spitalul de Urgenta Floreasca
aprox.
406 m
Spitalul de Urgenta Floreasca
aprox.
421 m
Spitalul de Urgență Floreasca
aprox.
421 m
Policlinica C.M.D.T.A.M.P.
aprox.
550 m
Ambulatoriul de specialitate al Spitalului de copii Grigore Alexandrescu
aprox.
570 m
Syromed+
aprox.
626 m
INFOSAN Clinica Oftalmologica
aprox.
639 m
Spitalul clinic de urgenta pentru copii Grigore Alexandrescu
aprox.
641 m
policlinica de copii Grigore Alexandrescu
aprox.
642 m
Spitalul Grigore Alexandrescu
aprox.
660 m
Restaurant "La Templu" (coa) (calea Dorobantilor 127-129)
aprox.
86 m
Restaurant Perla (en)
aprox.
292 m
Perla
aprox.
292 m
Vivo Fusion Food Bar
aprox.
298 m
Genin Shaorma
aprox.
298 m
Trattoria "As del Cuore"
aprox.
304 m
Balcic
aprox.
316 m
Fornetti
aprox.
350 m
Casa Enache
aprox.
468 m
Casa Enache (en)
aprox.
490 m
Restaurant arabesc
aprox.
491 m
La Finca by Alioli
aprox.
498 m
Domino's Pizza
aprox.
524 m
Sangria
aprox.
536 m
Exile
aprox.
548 m
Sky Bar
aprox.
163 m
Cup & Cake
aprox.
713 m
Happy Pub
aprox.
744 m
ACAB Pub
aprox.
851 m
Zappa Rock & More
aprox.
909 m
El Bistro
aprox.
1039 m
Lokal
aprox.
1074 m
Clubul Taranului
aprox.
1153 m
Frame
aprox.
1177 m
Alan Dala
aprox.
1179 m
Piua Book Bar
aprox.
1353 m
La Baraca
aprox.
1463 m
A1
aprox.
1467 m
Fratelli Espresso Bar
aprox.
1710 m
MIM Bistro
aprox.
1740 m
Studio Martin
aprox.
345 m
Doncafe Brasserie
aprox.
499 m
Open Pub
aprox.
849 m
Panik & Pub
aprox.
1035 m
Restaurant-pizzerie BONA DA ELENA
aprox.
1176 m
OLD NICK PUB
aprox.
1272 m
Le Cafe Inmedio
aprox.
1288 m
Waldo's
aprox.
1301 m
The Dubliner
aprox.
1653 m
The Place
aprox.
1719 m
Smart's Pub & Bistro
aprox.
1795 m
Fitto Cafe
aprox.
347 m
Randez Vous
aprox.
377 m
Reader's Cafe
aprox.
431 m
High Heels
aprox.
543 m
Nuba Cafe
aprox.
660 m
Ganesha Cafe
aprox.
665 m
The Eatery
aprox.
694 m
Ambiance Caffe
aprox.
889 m
Cafe Boheme
aprox.
891 m
Tucano Coffee - Dorobanti
aprox.
924 m
Tucano Coffee
aprox.
948 m
Admiral Cafe
aprox.
998 m
Cafe 3
aprox.
1016 m
Venchi 1878
aprox.
1023 m
Mon Amour
aprox.
1035 m
BRD
aprox.
45 m
ING Dorobanti
aprox.
66 m
Erste (BCR)
aprox.
130 m
Garanti bank sediu
aprox.
153 m
Banca Transilvania - Ag. Perla
aprox.
208 m
Credit Europe Bank
aprox.
211 m
Raiffeisen Bank - Agentia Dorobanti
aprox.
357 m
Banca Romana de Credite si Investitii
aprox.
391 m
Raiffeisen Bank
aprox.
395 m
ING Bank Metropolis
aprox.
398 m
Alpha Bank
aprox.
407 m
Volksbank
aprox.
435 m
ING Bank - Sediul Central
aprox.
447 m
CEC Bank
aprox.
451 m
Credit Europe Bank - Suc. Dorobanti VIP (en)
aprox.
455 m
Fiind o zonă ultracentrală, aceasta oferă numeroase opțiuni de călătorie cu mijloacele de transport în comun, și este bine conectată cu restul orașului. Ai, în primul rând, la dispoziție stațiile de metrou Piața Victoriei, Piața Romană și Universitate. Astfel, te vei putea deplasa rapid prin oraș, evitând aglomerația de la suprafață. Toate acestea sunt situate pe magistrala 2 care traversează Bucureștiul de la nord la sud. În plus, de la Piața Victoriei vei putea lua metroul și pe magistrala 1 pentru a ajunge, de exemplu, în cartierul Pantelimon sau în zona Eroilor. Prin Piața Universității urmează să treacă și magistrala 5 care va lega cartierele Drumul Taberei și Pantelimon. Până acum, s-au deschis însă doar stațiile de metrou aflate în zona Drumul Taberei. Alte mijloace de transport în comun care ar putea să-ți fie de ajutor atunci când te vei muta în această zonă sunt autobuzele 300 și 381. Primul face legătura dintre Piața Romană și Piața Victoriei continuându-și apoi traseul de-a lungul Bulevardului Ion Mihalache, iar cel de-al doilea conectează Piața Victoriei cu zona Tineretului și cu cartierul Berceni. De pe Bulevardul Regina Elisabeta vei putea lua troleibuzul 90 pentru a ajunge în Drumul Taberei sau în zona Arenei Naționale, iar în fața Spitalului Colțea vei găsi stația autobuzului 381 care merge în cartierul Berceni. Iar dacă preferi să te deplasezi pe două roți, vei avea la dispoziție una dintre pistele speciale destinate bicicliștilor pe Calea Victoriei. Aceasta îți va oferi, în plus, oportunitatea ideală de a admira arhitectura deosebită a clădirilor aflate de o parte și de alta a uneia dintre cele mai frumoase străzi din București. Consultă harta pentru a afla unde sunt localizate stațiile mijloacelor de transport în comun.
În această zonă găsim sediul central al Universității din București și cel al Academiei de Studii Economice din București (ASE), unele dintre cele mai prestigioase instituții de învățământ superior din România. Tot aici se află și sediile mai multor facultăți. Ai și alte instituții de învățământ cu renume la doi pași de casă, precum precum Colegiul Național "Sfântul Sava", Colegiul Național "Gheorghe Lazăr", Liceul Teoretic Bulgar "Hristo Botev" și Universitatea Națională de Muzică. De menționat este și Căminul Moxa, aflat în zona Calea Victoriei, în care sunt cazați unii dintre studenții ASE. Consultă harta de mai jos pentru a vedea și celelalte unități de învățământ din zonă.
În această parte a orașului vei găsi numeroase reprezentanțe ale unor branduri de lux. Cele mai multe magazine alimentare din zonă au dimensiuni reduse. Pentru cumpărături îți recomandăm Piața Amzei, aflată la doi pași de Romană și modernizată recent. Aici găsești, pe lângă comercianți de unde poți cumpăra legume și fructe și câteva magazine cu preparate proaspete de la burgeri, la pâine artizanală sau înghețată. Centrul Vechi găzduiește, totodată, reprezentanțe ale unor retaileri de modă. Tot aici găsești și librăria Cărturești Carusel, una dintre cele mai frumoase din oraș. O librărie Cărturești deschisă într-o altă clădire deosebită poate fi găsită și în apropiere de Piața Romană. Un spațiu comercial cu renume este Magazinul Victoria, un monument istoric al orașului. Magazinul București, amplasat la intersecția străzilor I.C. Brătianu și Lipscani a fost reconstruit recent cu o investiție substanțială. Ai în apropiere magazinul Cocor, centrul comercial Unirea Shopping City și un hipermarket Carrefour. Cu mașina sau metroul poți să ajungi destul de repede la mall-ul AFI Cotroceni. Consultă harta și vezi ce magazine vei avea în apropierea noii tale case.
Aceasta este una dintre cele mai aglomerate zone din București la orele de vârf. Aici găsești însă și unele dintre puținele parcări subterane din Capitală. Chiar vis-a-vis de Universitatea București ai intrarea într-o astfel de parcare cu peste 400 de locuri. O parcare destul de încăpătoare poate fi găsită și în Piața Victoriei. Atenție, însă, această zonă se poate aglomera nu doar din cauza traficului, ci și din cauza diverselor manifestări sau proteste care se organizează, de obicei, în fața Palatului Victoria, sediul Guvernului României. Dacă te hotărăști să te muți în zonă, atunci îți recomandăm să te interesezi de posibilitatea închirierii unui loc de parcare pentru mașina ta. Poți face acest lucru apelând la Serviciul Parcaje al ADP Sector 1. Consultă harta pentru a afla unde găsești și alte parcări în zona Victoriei-Romană-Universitate.
Zona Victoriei - Romană - Universitate este un epicentru cultural al Capitalei și oferă numeroase opțiuni de petrecere a timpului liber. Aici vei găsi numeroase muzee impresionante pe care le poți vizita în timpul liber (Muzeul Național de Istorie Naturală "Grigore Antipa", Muzeul Țăranului Român, Muzeul Național George Enescu, etc), vei putea participa la evenimentele în aer liber desfășurate pe Calea Victoriei sau în Piața George Enescu sau vei putea merge la un spectacol organizat pe scena Ateneului Român sau pe cea a Teatrului Notarra. Nu rata nici o vizită la Teatrul Național "I.L. Caragiale" și la Muzeul Național de Artă al României. Observatorul Astronomic Amiral Vasile Urseanu te așteaptă cu o experiență extrem de educativă care va fi, cu siguranță, apreciată de micuțul tău. Dacă îți place să ieși la o cafea în timpul liber alături de prietenii tăi, atunci în această zonă vei putea alege dintr-o multitudine de restaurante, terase și pub-uri. Nu lipsesc nici skybar-urile, care îți oferă priveliști de excepție de la înălțime. Cele câteva parcuri din zona Victorieim - Romană - Universitate au dimensiuni destul de reduse, dar sunt frumos îngrijite. Printre acestea amintim Parcul Ateneului și Parcul Nicolae Iorga. Dacă preferi plimbările lungi în weekend, atunci vei avea la dispoziție în apropiere parcurile Kiseleff și Cișmigiu. Nu uita, de asemenea, că te vei afla la doi pași de Centrul Vechi al Capitalei, dar și că vei putea să faci o plimbare cu bicicleta pe Calea Victoriei. În condiții normale, se organizează periodic evenimente în centrul orașului, atât în cadrul Sălii Palatului, cât și în aer liber în Piața Revoluției. În Piața Universității sunt organizate, totodată, diferite târguri și concerte. Vezi pe hartă mai multe puncte de interes din zona Victoriei-Romană-Universitate.
Chiar la Piața Universității se află principala unitate sanitară din zonă. Este vorba despre Spitalul Clinic Colțea, primul înființat în București. În zona Victoriei - Romană - Universitate vei întâlni mai multe clinici private, precum Policlinica Enescu din cadrul rețelei de sănătate Regina Maria și Spitalul Clinic Sanador. La doi pași de Piața Romană se află Spitalul Clinic de Urgențe Oftalmologice, cel mai mare din România cu o astfel de specializare. Consultă harta pentru a afla ce clinici private ai în apropierea casei, dacă te muți în această parte a orașului.
Găsești numeroase restaurante, terase și cafenele potrivite pentru toate gusturile în Centrul Vechi al orașului, pe Calea Victoriei sau în zona din spatele Ateneului Român. Câteva fast food-uri ai la dispoziție în Unirea Shopping Center. Nu foarte departe, în zona Romană, ai și alte opțiuni. Află de pe hartă unde găsești cel mai apropiat restaurant de noua ta casă.
Sucursale ale diferitelor bănci sunt dispuse de-a lungul principalelor artere de circulație sau în marile intersecții din zonă. Un BRD, spre exemplu, găsești chiar lângă Cercul Militar Național. Pe Bulevardul Nicolae Bălcescu o sucursală Banca Transilvania și ING Bank. La doi pași de Piața Universității se află și Palatul Băncii Naționale a României. Consultă harta pentru mai multe detalii.
Înainte să pleci...
Ești sigur că ai văzut și aceste proprietăți?
300.000 €
București, Romană
4 camere
77 mp
Etaj 3 / 8
305.000 € + TVA
București, Eminescu
3 camere
95 mp
Etaj 1 / 4
289.999 €
București, Ultracentral
3 camere
71 mp
Etaj 5
249.000 €
București, Victoriei
3 camere
72 mp
Parter / 1
253.000 € + TVA
București, Romană
3 camere
70,37 mp
Etaj 4 / 4
286.900 €
București, Centrul Civic
3 camere
90 mp
Etaj 1
Creează alertă
Salvează căutarea ca să primești pe email ultimele anunțuri publicate
Apartamente cu 4+ camere de vânzare în zona Romană, Ultracentral
Cere detalii prin email
*
*
*
*
Detaliile tale de contact vor fi partajate cu Innexa Group Realty
Statistici proprietate
Apartamente 4 camere de vânzare
- București
- Zona Romană
Asigurare de viață/lună Costul este variabil. În funcție de banca aleasă, procentul variază între 0.0259% și 0.035% din soldul creditului.
Costuri cu achiziția15.587 RON
Comision agenție Întreabă agenţia
Onorariu notarial10.908 RON
Taxă întabulare OCPI2.293 RON
Autentificare contract credit2.386 RON
Preț de achiziție1.528.674 RON
Preț locuință1.528.674 RON
TVA 0%Inclus în prețul cerut
Preț de achiziție1.528.674 RON
Preț locuință1.528.674 RON
TVA 0%
Inclus în prețul cerut
Avans minim922.299 RON
Credit pe 30 de ani606.376 RON
Cost achitat în prima lună
Taxa evaluare imobil(până la)
575 RON
Rata lunară (variabilă)4.261 RON
Depozit colateral12.783 RON
Comision de garantare FNGCIMM127 RON
Asigurare anuală imobil1.529 RON
Poliță PAD130 RON
Tarif arhivă electronică102 RON
Costuri adiționale1.669 RON + taxe notariale
Asigurare viață și complexă (opțională)Costul este variabil. În funcție de banca aleasă, procentul variază între 0.0259% și 0.035% din soldul creditului
Onorariu notarialconform tarif notarial
Taxă întabulare OCPI1.669 RON
i
Toate valorile de mai sus sunt estimative și nu reprezintă în mod obligatoriu costurile exacte pe care le veți primi de la companiile/instituțiile prin care veți încheia tranzacția.