Apartament 2 camere 68,71mp | Lux | Parc Cismigiu I Metrou Eroilor I

235.000 € + TVA

Știrbei Vodă, București

Nr. cam.:
2
Sup. utilă:
68,71 mp
Etaj:
1 / 6
An constr.:
2025 (Finalizată)
  • • Locație exactă

Descriere apartament

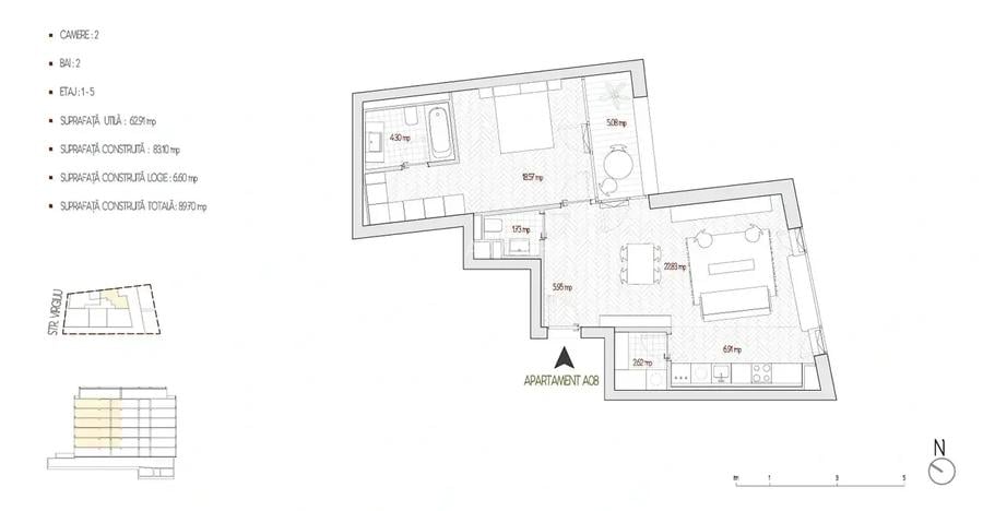
Va prezentăm un apartament modern și elegant, situat în inima Bucureștiului, în zona Stirbei Voda, parte a proiectului rezidențial de prestigiu "Millstone". Acest imobil reprezintă o oportunitate excelentă pentru cei care sunt în căutarea unui nou cămin într-o locație centrală și dinamică a capitalei. Apartamentul este amplasat la etajul 1 al unui bloc de apartamente cu o înălțime de 6 etaje, oferind o perspectivă plăcută asupra zonei înconjurătoare. Cu o suprafață utilă totala de 68,71 mp din care balcon 5,80mp și o suprafață construită de 89.7 mp, spațiul este optimizat pentru a oferi confort și funcționalitate. Unitatea locativă se caracterizează printr-o compartimentare semidecomandată și este compusă din două camere luminoase și primitoare, două băi moderne, o bucătărie deschisă care favorizează interacțiunea și socializarea, și un balcon generos perfect pentru momente de relaxare. Finisajele sunt de înaltă calitate, selectate pentru a crea un ambient plăcut și durabil. Imobilul este dotat cu lift, iar pentru siguranța și confortul rezidenților, acesta dispune de pază și supraveghere video. Administrarea eficientă a complexului asigură o întreținere optimă a spațiilor comune și a facilităților. Imobilul este proiectat pentru o eficiență energetică ridicată, în vederea certificării GREEN HOME. Locația este ideală, oferind acces facil la mijloacele de transport în comun si se distinge prin proximitatea către numeroase puncte de interes, cum ar fi magazine, restaurante, parcuri, instituții educaționale și culturale, creând un echilibru perfect între viața urbană activă și spațiile de relaxare. Această proprietate este ideală pentru cei care caută un stil de viață urban, confortabil și sigur, într-unul dintre cele mai căutate cartiere ale capitalei. Pret apartament 235000 euro +tva Loc parcare subteran 30000 euro +tva Loc parcare suprateran 20000 euro + tva Avem plăcerea de a vă invita să vizionați acest apartament, ce ar putea îndeplini cerințele dumneavoastră. Vă așteptam cu interes pentru a discuta detalii suplimentare și a explora împreună acest spațiu. Sipoteanu Oana VAUNT ID: 109721
Citește mai mult Citește mai puțin
Semidecomandat 1 Balcon Calorifere Centrală imobil Încălzire prin pardoseală

Detalii apartament

ID anunț: X7QH200U6 Copiat! 274944994 Copiat!
Actualizat în: 13 Februarie 2026
Suprafață utilă totală: 68.71 mp
Suprafață construită: 89.7 mp
Nr. bucătării: 1
Nr. băi: 2
Structură rezistență: Beton
Tip imobil: Bloc de apartamente
Regim înălțime: S+P+6E

Utilități

Destinație
Rezidențial
Pereți
Vopsea lavabilă Faianță
Podele
Gresie
Ușă intrare
Parchet Metal
Uși interior
Celulare
Izolații termice
Exterior
Ferestre cu geam termopan
Aluminiu
Contorizare
Apometre Contor căldură Contor gaz
Dotări imobil
Videointerfon Interfon Lift
Utilități
Curent Apă Canalizare
Acces internet
Fibră optică
Servicii imobil
Administrare Pază Supraveghere video
Amenajare străzi
Iluminat stradal Mijloace de transport în comun Asfaltate

Certificat energetic:

Clasa energetică: A

Puncte de interes

Mijloace transport
bus-station
Statie RATB 226, 136
Stații autobuz aprox. 98 m
tram-station
Mircea Vulcanescu
Stații tramvai aprox. 361 m
trolleybus-station
Statia Stirbei Voda, linia 96
Stații troleibuz aprox. 581 m
metro-station
Acces Stația Eroilor (M3).
Stații metrou aprox. 655 m
Școală
school
Scoala de Muzica Nr.3
Școli aprox. 145 m
kindergarten
Gradinita Smiley
Gradinițe aprox. 267 m
school
Liceul "Nicolae Tonitza"
Școli aprox. 457 m
university
Facultatea de Utilaj Tehnologic (UTCB)
Universități aprox. 472 m
Recreere
public-square
Piata Emil Cioran (Vergilius) (en)
Piețe publice aprox. 158 m
supermarket
Shop & Go - Mega Image
Supermarket aprox. 671 m
hypermarket
Intrarea in caminele C si D din grozavesti
Hipermarket aprox. 1288 m
mall
"METROPLIS CENTER"
Mall aprox. 1952 m

Detalii despre preț și costuri

Prețul pe piață

Preț cerut: 235.000 €

Preț min. zonă 75.000 €
Preț max. zonă 245.000 €

82% dintre proprietățile similare ca zonă și nr. camere au prețul cerut mai mic. mai multe...

Bine de știut: prețul unei proprietăți este influențat și de alte caracteristici, cum ar fi: vechime, localizare, vecinătăți, suprafață, compartimentare, amenajări, dotări, etc. mai puțin...

Costuri cu achiziția

Fără credit
12.661 RON
Credit ipotecar
14.980 RON
Noua casă
1.589 RON+ taxe notariale

i

Costuri adiționale mai puțin știute la achiziție: taxe notariale, comisioane etc.

Proprietăți recomandate

Detalii de contact

R&D ADVISERS

Oana Sipoteanu Project Manager

4.33(6 review-uri)

R&D ADVISERS
PRO

Abonează-te la newsletter să fii primul care primește cele mai noi recomandări de proprietăți și sfaturi de la experți.

CONTACT

Creează alertă

Salvează căutarea ca să primești pe email ultimele anunțuri publicate

Apartamente noi cu 2 camere de vânzare în zona Știrbei Vodă, Ultracentral