Apartament 2 camere, terasa, gradina| Parc Cismigiu I Metrou Eroilor I

325.000 € + TVA

Știrbei Vodă, București

Nr. cam.:
2
Sup. utilă:
72,1 mp
Etaj:
Parter / 6
An constr.:
2025 (Finalizată)
  • • Locație exactă

Descriere apartament

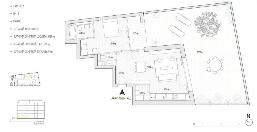
Va prezentăm un apartament modern și elegant, situat în inima Bucureștiului.Acest imobil reprezintă o oportunitate excelentă pentru cei care sunt în căutarea unui nou cămin într-o locație centrală și dinamică a capitalei. Apartamentul se vinde cu bucatarie montata. Apartamentul cu 3 camere este amplasat la parter si are suprafață utilă totala 72,10mp din care terasa 12,70mp la care se adauga gradina 99,30mp. Spațiul este optimizat pentru a oferi confort, funcționalitate si relaxare. Finisajele sunt de înaltă calitate, selectate pentru a crea un ambient plăcut și durabil. Detalii tehnice: – structura de rezistență este realizată cu cadre de beton armat, – izolația este realizată cu vată Bazaltică de 15 cm, – încălzirea și apa caldă sunt realizate cu ajutorul sistemelor de încălzire în condensație cu boiler (centrală de bloc), – parchet premium, – piatră naturală în băi, holuri și bucătărie, – obiecte sanitare premium, – tâmplărie de aluminiu Schuko cu sticlă low – e și geam tripan. Administrarea eficientă a complexului asigură o întreținere optimă a spațiilor comune și a facilităților. Imobilul este proiectat pentru o eficiență energetică ridicată, în vederea certificării GREEN HOME. Locația este ideală, oferind acces facil la mijloacele de transport în comun si se distinge prin proximitatea către numeroase puncte de interes, cum ar fi magazine, restaurante, parcuri, instituții educaționale și culturale, creând un echilibru perfect între viața urbană activă și spațiile de relaxare. Această proprietate este ideală pentru cei care caută un stil de viață urban, confortabil și sigur, într-unul dintre cele mai căutate cartiere ale capitalei. Pret apartament 325000 euro +tva Loc parcare subteran 30000 euro +tva Loc parcare suprateran 20000 euro + tva Apartamentul se poate vinde si mobilat ca in poze dar la un alt pret. Avem plăcerea de a vă invita să vizionați acest apartament, ce ar putea îndeplini cerințele dumneavoastră. Vă așteptam cu interes pentru a discuta detalii suplimentare și a explora împreună acest spațiu. Poze reale + poze cu rol de prezentare. Sipoteanu Oana VAUNT ID: 109745
Citește mai mult Citește mai puțin
Confort 1 Semidecomandat 1 Balcon Calorifere Centrală imobil Încălzire prin pardoseală

Detalii apartament

ID anunț: X7QH200V1 Copiat! 274977985 Copiat!
Actualizat în: 16 Februarie 2026
Suprafață utilă totală: 72.1 mp
Suprafață construită: 80.37 mp
Nr. bucătării: 1
Nr. băi: 2
Structură rezistență: Beton
Tip imobil: Bloc de apartamente
Regim înălțime: S+P+6E

Utilități

Destinație
Rezidențial
Pereți
Vopsea lavabilă Faianță
Podele
Gresie
Ușă intrare
Parchet Metal
Uși interior
Celulare
Izolații termice
Exterior
Ferestre cu geam termopan
Aluminiu
Contorizare
Apometre Contor căldură Contor gaz
Dotări imobil
Videointerfon Interfon Lift
Utilități
Curent Apă Canalizare
Acces internet
Fibră optică
Servicii imobil
Administrare Pază Supraveghere video
Amenajare străzi
Iluminat stradal Mijloace de transport în comun Asfaltate

Certificat energetic:

Clasa energetică: A

Puncte de interes

Mijloace transport
bus-station
Statie RATB 226, 136
Stații autobuz aprox. 98 m
tram-station
Mircea Vulcanescu
Stații tramvai aprox. 361 m
trolleybus-station
Statia Stirbei Voda, linia 96
Stații troleibuz aprox. 581 m
metro-station
Acces Stația Eroilor (M3).
Stații metrou aprox. 655 m
Școală
school
Scoala de Muzica Nr.3
Școli aprox. 145 m
kindergarten
Gradinita Smiley
Gradinițe aprox. 267 m
school
Liceul "Nicolae Tonitza"
Școli aprox. 457 m
university
Facultatea de Utilaj Tehnologic (UTCB)
Universități aprox. 472 m
Recreere
public-square
Piata Emil Cioran (Vergilius) (en)
Piețe publice aprox. 158 m
supermarket
Shop & Go - Mega Image
Supermarket aprox. 671 m
hypermarket
Intrarea in caminele C si D din grozavesti
Hipermarket aprox. 1288 m
mall
"METROPLIS CENTER"
Mall aprox. 1952 m

Detalii despre preț și costuri

Prețul pe piață

Preț cerut: 325.000 €

Preț min. zonă 75.000 €
Preț max. zonă 245.000 €

i

Proprietate cu prețul cerut în afara intervalului mai multe...

Posibile explicații pentru faptul că prețul proprietății este peste cel maxim: imobil nou cu suprafață mare, are dotări și finisaje de lux.
Bine de știut: prețul unei proprietăți este influențat și de alte caracteristici, cum ar fi: vechime, localizare, vecinătăți, suprafață, compartimentare, amenajări, dotări, etc.

Costuri cu achiziția

Fără credit
16.404 RON
Credit ipotecar
19.186 RON
Noua casă
2.144 RON+ taxe notariale

i

Costuri adiționale mai puțin știute la achiziție: taxe notariale, comisioane etc.

Proprietăți recomandate

Detalii de contact

R&D ADVISERS

Oana Sipoteanu Project Manager

4.33(6 review-uri)

R&D ADVISERS
PRO

Abonează-te la newsletter să fii primul care primește cele mai noi recomandări de proprietăți și sfaturi de la experți.

CONTACT

Creează alertă

Salvează căutarea ca să primești pe email ultimele anunțuri publicate

Apartamente noi cu 2 camere de vânzare în zona Știrbei Vodă, Ultracentral