Spațiu comercial de închiriat strada Cozia.

656 € / lună
4.82 € / mp / lună

Boul Roșu, Arad

Sup. utilă / mp. utili:
136 mp
Tip prop.:
Casă/Vilă
Niv.:
1
  • • Locație exactă

Descriere spațiu comercial

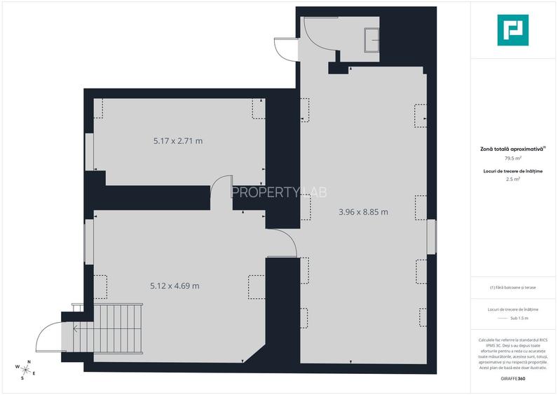
Vă propunem spre închiriere un spațiu comercial situat pe strada Cozia nr. 18, amplasat la demisolul unei clădiri istorice ce oferă un cadru aparte și un plus de caracter pentru orice tip de activitate. Suprafață totală: 136 mp. Suprafață utilă: 83 mp. Compartimentare eficientă: - Trei camere mari și spațioase. - Două grupuri sanitare. - Contorizare electrică separată. - Centrală proprie pe gaz. Locatie avantajoasă: - În apropiere de școală. - Stație de tramvai la câțiva pași. - Magazine și alte facilități în zonă. Spațiul este ideal pentru desfășurarea unei activități comerciale, birouri, cabinet, salon sau alte tipuri de afaceri care necesită un spațiu bine compartimentat și accesibil. Pentru mai multe detalii și programarea unei vizionări, mă puteți contacta: Agent Imobiliar: Alexandru Ștefănescu Email: Tel: Spațiu comercial de închiriat strada Cozia. CP2915752
Citește mai mult Citește mai puțin

Detalii spațiu comercial

ID anunț: X5I1140O1 Copiat! 275129913 Copiat!
Actualizat în: 26 Februarie 2026
Suprafață utilă: 83 mp
Etaj: Demisol / 1
Regim înălțime: S+D+P+1E
Stadiu construcție: Există

Utilități

Destinație
Comercial
Utilități
Curent Apă Canalizare
Comision
standard

Disponibilitate proprietate:

Imediat

Puncte de interes

Mijloace transport
bus-station
Piata Romana
Stații autobuz aprox. 304 m
tram-station
Piata Podgoria
Stații tramvai aprox. 1656 m
tram-station
Piata Podgoria
Stații tramvai aprox. 1757 m
bus-station
Autogara CTP
Stații autobuz aprox. 1889 m
Școală
school
Grup Scolar Industrial Aurel Vlaicu
Școli aprox. 211 m
school
Scoala Gimnaziala nr. 2
Școli aprox. 256 m
university
Facultatea de Stiinte ale Naturii
Universități aprox. 478 m
university
Vasile Goldis: Facultatea de Stiinte Juridice
Universități aprox. 517 m
Recreere
bar
Bar Loja
Bar aprox. 46 m
park
Piata Avram Iancu
Parcuri aprox. 203 m
supermarket
Cerna
Supermarket aprox. 211 m
sports-ground
Teren de sport
Terenuri sport aprox. 318 m

Proprietăți similare

Birou, de 140 mp, în Ultracentral
601 € / lună
Arad, Ultracentral
140 mp utili
Bloc de apartamente
2E
Birou, de 65 mp, în Ultracentral
599 € / lună
Arad, Ultracentral
65 mp utili
Bloc de apartamente
6E
Birou, 107 mp în Ultracentral
600 € / lună
Arad, Ultracentral
107 mp utili
Casă/Vilă
3E

Detalii de contact

PROPERTY LAB

Alexandru Stefanescu Real Estate Consultant Arad

PROPERTY LAB

Abonează-te la newsletter să fii primul care primește cele mai noi recomandări de proprietăți și sfaturi de la experți.

CONTACT

Creează alertă

Salvează căutarea ca să primești pe email ultimele anunțuri publicate

Birouri cu 3 camere de închiriat în zona Boul Roșu, Arad