Tomis III , spatii IDEAL BIROURI, 61 mp. + curte, imobil 2023

4.500 RON / lună
73.77 RON / mp / lună

Tomis III, Constanța

Sup. utilă / mp. utili:
61 mp
Tip prop.:
Clădire de birouri
Niv.:
5
An constr.:
2023 (Există)
  • • Locație aproximativă

Descriere spațiu comercial

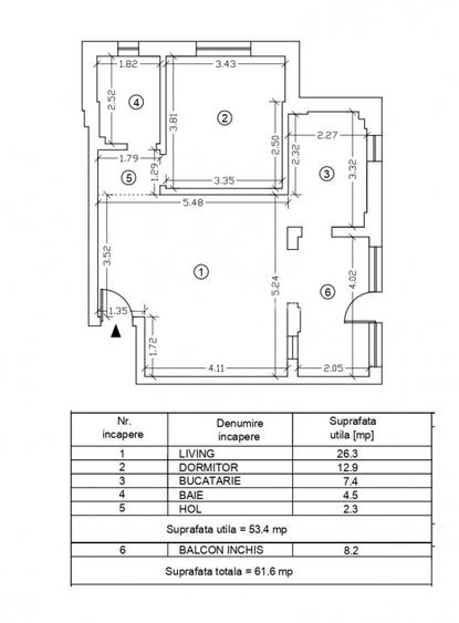
Agentia Zig-Zag va ofera sper inchiriere spatii de birouri pozitionate in zona DACIA-TOMIS III , amplasate in imobil constructie 2023 cu destinatie mixta (birou/rezidential) ce reprezinta confort, design si inovatie. Imobilul cuprinde spatii de birouri cu compartimentari generoase, camere inalte si suprafete vitrate mari. Alegerea unui spatiu implica un grad sporit de confort si siguranta. Datorita amplasarii ofera acces facil catre: City Park Mall, Parcul Tabacariei, Piata Tomis III, institutii bancare, mijloace de transport in comun, magazine, etc. Spatiul in cauza dispune de o suparafata utila de 61 mp., compartimentata in 2 camere (birou si open space 42 mp.) , grup sanitar si curte aferenta cu acces direct din imobil. Fiecarui spatiu ii este alocat un LOC DE PARCARE PROPRIU in curtea aferenta cladirii. Beneficiaza de toate utilitatile necesare desfasurarii activitatii contorizate separat (incalzire centrala gaze, 1 aparat de aer conditionat) si refacturabile. Fiind finalizat in 2023, dispune de e dotari si finisaje noi si de calitate: tamplarie PVC Salamander Bluevolution 82, geam tripan Low-E, culoare gri antracit, usa metalica antiefractie, bine antifonata, tocuri imbracate in lemn, centrala Vaillant 28KW, incalzire in pardoseala cu distribuitoare pentru fiecare camera, baie si hol, distribuitoare pentru apa calda si rece, separat pentru fiecare baie si bucatarie, parchet Egger – special pentru incalzire in pardoseala, gresie, faianta – Marazzi, usi de interior din MDF vopsit – Pinum / Porta Doors, bai hidroizolate cu banda Mapei, dotate cu obiecte sanitare: bazin incastrat Grohe, cada, set WC si obiecte sanitare Roca, rigola de dus din aluminiu, instalatia electrica cu doze modulare Gewiss, terase cu parapeti din alubond si sticla securizata, casa scarii dotata cu: marmura (placi mari), balustrada din lemn si fier, sistem de iluminat, lift Schindler, spatiu de recreere in aer liber, dotat cu elemente de peisagistica. Propritar persoana juridica (pret +TVA). Contractul de inchiriere se realizeaza pe o perioada de 3 ani. La semnarea contractului se percepe contravaloarea unei luni in avans (prima luna de chirie) si una reprezentand garantia . Comision Agentie Zig -Zag ( 50% din contravaloarea unei luni de chirie). Nr grupuri sanitare: 1 Suprafata construita: 65 mp Nr incaperi: 2 Utilitati - Sistem incalzire (Centrala proprie,Incalzire pardoseala); Climatizare (Aer conditionat); Utilitati generale (Curent,Apa,Canalizare,Gaz,CATV,Telefon) Finisaje - Izolatii termice (Exterior); Podele (Gresie,Parchet); Iluminat (Lampi,Spoturi,Lumina naturala); Ferestre cu geam termopan (PVC) Dotari - Contorizare (Apometre,Contor gaz); Dotari imobil (Curte,Interfon) Alte caracteristici - Alte spatii utile (Parcare proprie) pret inchiriere: 4500 moneda inchiriere: RON Disponibilitate proprietate: imediat
Citește mai mult Citește mai puțin
Curte Aer condiționat Centrală proprie Încălzire prin pardoseală 1 Parcare Zonă de litoral

Detalii spațiu comercial

ID anunț: XECR140F6 Copiat! 275013129 Copiat!
Actualizat în: 18 Februarie 2026
Suprafață utilă: 61 mp
Etaj: Parter / 5
Regim înălțime: P+5E
Structură rezistență: BCA
Stadiu construcție: Există

Utilități

Contorizare
Apometre Contor gaz
Dotări imobil
Interfon
Utilități
Curent Apă Canalizare Gaze CATV Telefon
Podele
Parchet Gresie
Izolații termice
Exterior
Ferestre cu geam termopan
PVC
Comision
50%

Vecinătăți:

Tomis III, City Mall, bd. Al. Lapusneanu, LIDL, Piata Tomis III

Puncte de interes

Mijloace transport
bus-station
Cap Linie 44 [44]
Stații autobuz aprox. 158 m
bus-station
Galeriile Soveja [102
Stații autobuz aprox. 297 m
bus-station
Graniceri [44]
Stații autobuz aprox. 305 m
bus-station
Galeriile Soveja [102
Stații autobuz aprox. 383 m
Școală
school
Scoala Generala Nr. 36 Comandor Dimitrie Stiubei
Școli aprox. 331 m
school
School No. 36 (en)
Școli aprox. 347 m
kindergarten
Gradinita nr. 43 Constanta
Gradinițe aprox. 508 m
university
Scoala Maistri Militari
Universități aprox. 1416 m
Recreere
cafe
Poly Caffe
Cafenea aprox. 371 m
supermarket
Supermarket Polar
Supermarket aprox. 475 m
park
Dacia Fountain (en)
Parcuri aprox. 861 m
sports-ground
Teren baschet Maritimo
Terenuri sport aprox. 904 m

Proprietăți similare

Birou, de 363 mp, în Faleza Nord
4.502 € / lună
Constanța, Faleza Nord
363 mp utili
Clădire de birouri
1E

Detalii de contact

ZIG ZAG INTERMED

Oana Barbieru

4.80(5 review-uri)

ZIG ZAG INTERMED
PRO

Abonează-te la newsletter să fii primul care primește cele mai noi recomandări de proprietăți și sfaturi de la experți.

CONTACT

Creează alertă

Salvează căutarea ca să primești pe email ultimele anunțuri publicate

Birouri de închiriat în zona Tomis III, Constanța