REC3001349 Spatiu de birouri I Capitale - Victoriei I De inchiriat

1.696 € / lună
16 € / mp / lună

Capitale, București

Sup. utilă / mp. utili:
106 mp
Tip prop.:
Casă/Vilă
Niv.:
2
An constr.:
1980 (Finalizată)
  • • Locație aproximativă
  • • Vizionare prin apel video

Descriere spațiu comercial

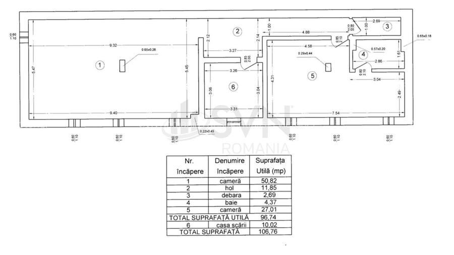
SVN ROMANIA va propune spre inchiriere un spatiu de birouri in zona Capitale - Victoriei. Statia de metrou Piata Victoriei este situata la doar 3 minute distanta pietonala. Spatiul este situat la etajul 3/3, intr-o cladire de tip boutique, un etaj intreg, cu o suprafata utila de 96.74 mp. In cladire se desfasoara doar activitati comerciale/de birou, iar in curtea acesteia se pot parca cateva masini. Imobilul dispune de lift. Spatiul dispune de contorizare individuala, iar incalzirea este cu centrala termica proprie. Acesta se inchiriaza pentru activitati de birou, complet mobilat si utilat, asa cum este prezentat in imagini. Pentru mai multe informatii sau programarea vizionarilor, contactul meu va sta la dispozitie!
Citește mai mult Citește mai puțin
Acceptă animale de companie

Detalii spațiu comercial

ID anunț: X6581492B Copiat! 274943017 Copiat!
Actualizat în: 13 Februarie 2026
Suprafață utilă: 96 mp
Etaj: Mansardă / 2
Regim înălțime: P+2E+M
Structură rezistență: Zidărie
Stadiu construcție: Finalizată

Utilități

Comision
Standard

Vicii:

Fără vicii.

Disponibilitate proprietate:

Disponibil din 29/05/2025.

Puncte de interes

Mijloace transport
metro-station
Metrou Victoriei - iesire Aviatorilor
Stații metrou aprox. 197 m
tram-station
Pasaj Victoria
Stații tramvai aprox. 261 m
bus-station
Statia RATB linia 300,381,783
Stații autobuz aprox. 277 m
trolleybus-station
Statia Piata Romana linii : 79,86
Stații troleibuz aprox. 1006 m
Școală
school
Liceul Nicolae Tonitza
Școli aprox. 237 m
school
Liceu - Scoala Europeana Bucuresti
Școli aprox. 341 m
kindergarten
Gradinita nr. 2
Gradinițe aprox. 435 m
university
SNSPA
Universități aprox. 569 m
Recreere
park
Parc
Parcuri aprox. 209 m
sports-ground
Teren sportiv
Terenuri sport aprox. 251 m
mall
"METROPLIS CENTER"
Mall aprox. 690 m
supermarket
Mega Image - IANCU DE HUNEDOARA
Supermarket aprox. 719 m

Proprietăți similare

Birou, de 124 mp, în Gara de Nord
1.612 € / lună
București, Gara de Nord
124 mp utili
Clădire de birouri
2011 (Există)
Birou, 2644 mp în Pipera
1.638 - 22.158 € / lună
București, Pipera
22.300 mp utili
Clădire de birouri
5E
Birou, 114 mp în Pipera
1.539 € / lună
București, Pipera
4.100 mp utili
Clădire de birouri
P+4E

Detalii de contact

SVN Romania | Residentialist | Victoriei

Cristian Vasile Associated Advisor

4.71(7 review-uri)

SVN Romania | Residentialist | Victoriei
PRO

Abonează-te la newsletter să fii primul care primește cele mai noi recomandări de proprietăți și sfaturi de la experți.

CONTACT

Creează alertă

Salvează căutarea ca să primești pe email ultimele anunțuri publicate

Birouri de închiriat în zona Capitale, Sector 1