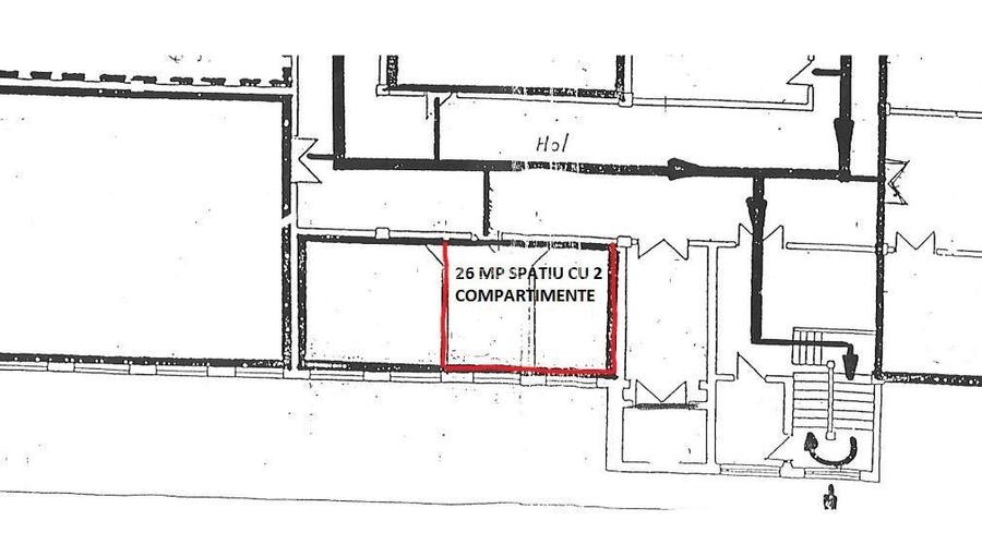
Imobiliar Expert Grup va propune spre închiriere un spațiu de birouri situat în zona Tineretului, cu acces rapid la metrou, ideal pentru activități de birou, consultanță sau sediu de firmă.
Spațiul are o suprafață de 26 mp, este compartimentat în 2 încăperi.
Detalii financiare:
Chirie: 340 € + TVA / lună
Mentenanță: 3,3 € / mp, care include:
pază complex
colectare deșeuri menajere
energie termică
apă
întreținere spații comune
centrală
echipă de mentenanță (instalator + electrician)
monitorizare video
Curentul electric se facturează conform contorului, raportat la suprafața închiriată
Avantaje:
zonă foarte bine conectată
acces facil la mijloace de transport în comun
costuri predictibile
disponibilitate imediată
Spațiul este potrivit pentru firme care caută o locație practică, bine poziționată și gata de utilizare.
Va asteptam, cu drag, la vizionare!
Colaboram si cu alte agentii!
Sediul central - Timișoara
Bulevardul Victor Babeș nr. 2, 300230, Timișoara, România
Tel: +40.374.40.44.98 / Fax: +40.256.401.179
Email: suport@imobiliare.ro
Luni - Vineri 08:00 - 20:00
Punct de lucru - București: Iride Business Park, Bld. Dimitrie
Pompeiu 9-9A, Clădirea B2B,
020335, Sector 2, București, România
CONTACT
Sediul central - Timișoara
Bulevardul Victor Babeș nr. 2, 300230, Timișoara, România
Tel: +40.374.40.44.98 / Fax: +40.256.401.179
Email: suport@imobiliare.ro
Luni - Vineri 08:00 - 20:00
Punct de lucru - București: Iride Business Park, Bld. Dimitrie
Pompeiu 9-9A, Clădirea B2B,
020335, Sector 2, București, România
Statia Universitatea Crestina Dimitrie Cantemir linii:133.
aprox.
870 m
statia Autogara Filaret, linia 232, N107, 7, 47
aprox.
894 m
Capat Universitatea Crestina Dimitrie Cantemir linii : 323.
aprox.
903 m
Autobuz 323
aprox.
910 m
Autogara Filaret
aprox.
917 m
Statie RATB Autogara Filaret 232 (en)
aprox.
963 m
Capat Piata Unirii 2 linii : 783 (express).
aprox.
1098 m
Statia Palatul Copiilor linii : 76,313,381.
aprox.
1130 m
Gradinita cu program prelungit Copiii Soarelui
aprox.
159 m
Gradinita "Scufita Rosie"
aprox.
421 m
Gradinita de Copii nr.30 "Copiii soarelui
aprox.
424 m
Gradinita (progr. prelungit) Aleea Borcea - Str. Ruginoasa
aprox.
556 m
Gradinita Barba Cot
aprox.
814 m
Cresa Micii Poznasi
aprox.
909 m
Gradinita nr. 224
aprox.
911 m
Gradinita nr.224, "Vestitorii Primaverii"
aprox.
918 m
Gradinita Pisicel
aprox.
1062 m
Gradinita nr. 192 (Pisicile aristocrate)
aprox.
1111 m
Gradinita nr.192, "Pisicile Aristocrate"
aprox.
1118 m
Gradinita Prikindel
aprox.
1178 m
GRĂDINIȚA DE COPII NR. 168
aprox.
1203 m
Gradinita cu orar prelungit nr. 168
aprox.
1203 m
Gradinita nr. 269
aprox.
1246 m
Gradinita Aniela
aprox.
325 m
Liceul Teologic Penticostal "Emanuel"
aprox.
331 m
scoala populara de arta
aprox.
407 m
Scoala de Arta
aprox.
415 m
Scoala nr.79 "Academician Nicolae Teodorescu"
aprox.
445 m
Colegiul National "Ion Creanga"
aprox.
458 m
Scoala nr.74, "Enachita Vacarescu"
aprox.
621 m
Scoala nr 94
aprox.
621 m
Liceu de Coregrafie Floria Capsali
aprox.
770 m
Liceul de Arte "Dinu Lipatti"
aprox.
807 m
Scoala Nr. 79 (en)
aprox.
854 m
Scoala nr. 79
aprox.
854 m
Liceul Teoretic "Ion Creanga" (en)
aprox.
893 m
Elohim Academi
aprox.
942 m
Școala 81
aprox.
1049 m
Academia de Studii Economice: Facultatea de Management - Administratie Publica
aprox.
931 m
Academia de Studii Economice
aprox.
931 m
Universitatea Nicolae Titulescu
aprox.
944 m
Universitatea "Nicolae Titulescu" - Bucuresti
aprox.
960 m
Universitatea "Titu Maiorescu"
aprox.
981 m
Universitatea Titu Maiorescu
aprox.
981 m
Facultatea de Teologie Ortodoxa
aprox.
1010 m
Universitatea Crestina "Dimitrie Cantemir"
aprox.
1015 m
Universitatea Titu Maiorescu - Corp M
aprox.
1017 m
Universitatea Titu Maiorescu - Rectorat
aprox.
1109 m
Academia Tehnica Militara
aprox.
1300 m
Institutul Bancar Român
aprox.
1378 m
Casa Academiei
aprox.
1430 m
Mega Image
aprox.
350 m
Giulio Pantofi la comanda
aprox.
388 m
Mega Image (en)
aprox.
501 m
Shop & Go
aprox.
572 m
Succes
aprox.
586 m
Profi Non-Stop Vacaresti
aprox.
854 m
ClicMarket
aprox.
910 m
Issa Supermarket Non-Stop
aprox.
983 m
Mega Image - Apahida
aprox.
994 m
Penny Market
aprox.
1004 m
Mega Image
aprox.
1016 m
MGV Supermarket Zeno
aprox.
1027 m
Nerva Center
aprox.
1083 m
Mega Image
aprox.
1127 m
Profi Non-Stop
aprox.
1193 m
Bucharest, Calea Vitan nr. 8, Bl V51, near VITAN Mall
aprox.
1795 m
Parcare
aprox.
70 m
Parcare
aprox.
77 m
Parcare
aprox.
310 m
Parcare
aprox.
311 m
Parcare privata
aprox.
425 m
Parcare
aprox.
434 m
Parcare
aprox.
536 m
Parcare
aprox.
638 m
Parcare
aprox.
651 m
Parcare
aprox.
808 m
Parcare
aprox.
902 m
Parcare
aprox.
906 m
Parcare
aprox.
934 m
Parcare
aprox.
939 m
Parcare
aprox.
947 m
Parc
aprox.
389 m
Fantanile - Parc Tineretului
aprox.
431 m
Parc
aprox.
443 m
Parcul Carol
aprox.
524 m
Aleea principala
aprox.
537 m
Parcul Carol I
aprox.
552 m
Parc
aprox.
665 m
Parc
aprox.
708 m
Parc
aprox.
808 m
Parcul Gara Filaret
aprox.
808 m
Parc
aprox.
867 m
Parc
aprox.
876 m
Park
aprox.
903 m
Parc
aprox.
904 m
Park (en)
aprox.
907 m
Teren sportiv
aprox.
510 m
Teren sportiv
aprox.
618 m
Teren sportiv
aprox.
620 m
Teren sportiv
aprox.
629 m
Teren sportiv
aprox.
682 m
Teren sportiv
aprox.
720 m
Teren sportiv
aprox.
782 m
Teren sportiv
aprox.
798 m
Teren sportiv
aprox.
830 m
Skate Park Tineretului
aprox.
927 m
Teren sportiv
aprox.
1090 m
Teren sportiv
aprox.
1108 m
Teren sportiv
aprox.
1109 m
Teren sportiv
aprox.
1132 m
Teren sportiv
aprox.
1144 m
Piata Bucur
aprox.
737 m
Piata Bibescu
aprox.
1082 m
Piața Regina Maria
aprox.
1147 m
Piata Eroii Revolutiei (en)
aprox.
1379 m
Piața Constituției
aprox.
1530 m
Piața Sfântul Anton
aprox.
1554 m
Piata Natiunilor Unite
aprox.
1621 m
P-ta Chirigiu
aprox.
1630 m
Piata Timpului
aprox.
1648 m
Piata Roma
aprox.
1755 m
Biostom Bucuresti
aprox.
280 m
Spitalul de dermato-venerologie "Prof. Dr. Scarlat Longhin" (ABANDONAT)
aprox.
304 m
Europe EYE Hospital (en)
aprox.
365 m
Europe Eye
aprox.
365 m
Zerlendi
aprox.
557 m
Oftapro
aprox.
571 m
Medicover (en)
aprox.
658 m
Clinica Polisano
aprox.
761 m
Maternitatea Bucur
aprox.
787 m
Clinica Audionova
aprox.
815 m
Policlinica
aprox.
844 m
Medlife Unirii
aprox.
944 m
Eurodent
aprox.
1088 m
Life Med
aprox.
1234 m
Plastic Surgery Clinic (en)
aprox.
1301 m
Tinos-Farm
aprox.
310 m
Farmacia Belladonna 17
aprox.
386 m
Help Net Farma
aprox.
397 m
Catena
aprox.
418 m
Farmacia Eliana
aprox.
535 m
Farmacia 20
aprox.
632 m
Alma Farm Com 95
aprox.
686 m
Farmacia Bucuresti Tehnoplus Farm
aprox.
870 m
Leni Farm
aprox.
958 m
Homeofarm
aprox.
961 m
2na
aprox.
968 m
Farmacia Farmadex
aprox.
1015 m
Farmacia Belladonna 63
aprox.
1060 m
Catena
aprox.
1107 m
Orbit 93
aprox.
1136 m
Rotiserie Dines Tineretului
aprox.
155 m
DRISTOR Doner Kebap (Budapesta)
aprox.
156 m
Restaurant Bucur
aprox.
199 m
Mauve Coffee
aprox.
271 m
Bellini
aprox.
308 m
Thalia Tineretului
aprox.
355 m
Restaurant PPH
aprox.
473 m
Zen Sushi
aprox.
476 m
Restaurant PRESTO
aprox.
522 m
Presto Pizza
aprox.
562 m
Restaurant
aprox.
570 m
Restaurant Rustic
aprox.
596 m
Restaurant De Cartier
aprox.
607 m
De Cartier
aprox.
607 m
Garibaldi Trattoria & Pub
aprox.
668 m
Forno d'oro
aprox.
393 m
The Temple
aprox.
531 m
Carol Cafe
aprox.
569 m
Long Fong
aprox.
719 m
Club Fabrica
aprox.
752 m
The Harp
aprox.
1077 m
Pizzeria Classic
aprox.
1283 m
Kaffa Pub
aprox.
1419 m
Beraria Berestoika
aprox.
1544 m
The Bankers
aprox.
1583 m
Goblin Club
aprox.
1607 m
The 1st Pub
aprox.
1609 m
O`Hara Irish Pub
aprox.
1612 m
The Vintage Pub
aprox.
1617 m
Queen and Clown Pub
aprox.
1619 m
Cafe Torino
aprox.
514 m
Cafe Boulevard
aprox.
536 m
Quartier
aprox.
934 m
Angel Cafe
aprox.
1169 m
Dalidana
aprox.
1213 m
Cofetaria Raisa
aprox.
1228 m
Zebra Caffe
aprox.
1252 m
Bistro 33 Cafe
aprox.
1297 m
Maroon Caffe
aprox.
1399 m
Starbucks
aprox.
1499 m
The Urbanist
aprox.
1521 m
Testa Rossa Caffebar
aprox.
1554 m
Double Deuce's
aprox.
1572 m
Gelato Mio
aprox.
1594 m
Buen Humor
aprox.
1597 m
Club Expirat
aprox.
744 m
Pe baricade
aprox.
1072 m
Nargila Grill&Bar
aprox.
1076 m
Braserie Cosbuc
aprox.
1102 m
Bar
aprox.
1324 m
B Bar
aprox.
1544 m
Network Lounge
aprox.
1554 m
Big Mamou
aprox.
1558 m
True Social Club
aprox.
1560 m
BarFly
aprox.
1579 m
Vecchio
aprox.
1598 m
Pure
aprox.
1600 m
City Grill Covaci
aprox.
1609 m
Zapata Tequilla Bar
aprox.
1617 m
Bound Club
aprox.
1619 m
ING Tineretului
aprox.
315 m
Banca Transilvania - Ag. Tineretului
aprox.
327 m
Sucursala ING Bank (en)
aprox.
328 m
Sucursala BCR Gheorghe Sincai
aprox.
353 m
BRD Sincai
aprox.
368 m
BCR
aprox.
522 m
Banca Țiriac
aprox.
532 m
UniCredit Bank - Ag. Norilor
aprox.
535 m
Banca Raiffeisen
aprox.
553 m
Raiffeisen Bank
aprox.
553 m
Raiffeisen
aprox.
574 m
BRD Serban Voda
aprox.
609 m
BCR
aprox.
824 m
Sucursala CEC Bank Timpuri Noi (en)
aprox.
881 m
Raiffeisen Bank
aprox.
1005 m
Dacă te vei muta în acest cartier, vei avea la dispoziție două stații de metrou care îți vor face călătoriile prin oraș mult mai ușoare și mai rapide. Este vorba despre Tineretului, stație situată pe magistrala 2 Berceni - Pipera, și despre Timpuri Noi, de unde poți lua metroul atât pentru a te deplasa pe ruta magistralei 1 Dristor - Pantelimon, cât și pe M2 Preciziei - Anghel Saligny. De la Tineretului ajungi, de exemplu, la Piața Universității în 5 minute și în Pipera în circa 15 minute. Alte mijloace de transport în comun care traversează zona de care ești interesat sunt tramvaiul 19, cu care poți să mergi către sud-estul orașului (Titan - Pallady), autobuzul 133 care îți oferă o legătură directă cu Piața Romană și troleibuzul 74 care ajunge la Piața Unirii.
Trei universități private își au sediul în această zonă, în imediata vecinătate a stației de metrou Timpuri Noi. Este vorba despre Universitatea "Titu Maiorescu", Universitatea "Nicolae Titulescu" și Universitatea Creștină "Dimitrie Cantemir". Alături de acestea este situat și Căminul Studențesc "Nicolae Titulescu". Unul dintre cele mai renumite licee din București poate fi găsit tot în această zonă. Colegiul Național "Gheorghe Șincai" se află lângă stația de metrou Tineretului. Caută pe hartă care vor fi cele mai apropiate instituții de învățământ de viitoarea ta locuință.
Multe dintre blocurile din această zonă dispun de spații comerciale la parter, deci chiar și atunci când vrei să faci doar câteva cumpărături rapide vei avea destul de multe opțiuni în apropiere. Poți cumpăra fructe și legume din Piața Norilor, aflată la doi pași de stația de metrou Tineretului, sau din Piața Timpuri Noi, situată lângă clădirea Universității "Titu Maiorescu". În vecinătatea acesteia vei găsi și un supermarket Profi. Chiar lângă Pasajul Mihai Bravu vei avea la dispoziție un magazin Lidl. Ajungi, totodată, rapid din zona Tineretului - Timpuri Noi la trei mall-uri: Sun Plaza, București Mall și ParkLake. La fel, în doar câteva minute ești cu mașina în centru. Consultă harta și vezi unde găsești cel mai apropiat magazin de viitoarea ta locuință.
O parcare publică cu câteva sute de locuri, dar și stații de încărcare pentru autovehiculele electrice este amplasată chiar lângă Palatul Național al Copiilor. Tot în apropiere, lângă Sala Polivalentă, ai câteva locuri de parcare la dispoziție, dacă ajungi la parc cu mașina. Îți recomandăm, totodată, să apelezi la Direcția Mobilitate Urbană Sector 4 dacă vei dori să închiriezi un loc de parcare în apropierea viitoarei tale locuințe. Un alt lucru pe care e bine să îl știi este că intersecția dintre Calea Șerban Vodă și bulevardele Tineretului, Gheorghe Șincai și Dimitrie Cantemir este una dintre cele mai aglomerate din zonă, în special la orele de vârf.
Zona Tineretului-Timpuri Noi îți oferă numeroase opțiuni de petrecere a timpului liber și poate fi ideală dacă ai copii. Vei avea la doi pași de casă Parcul Tineretului unde aceștia se pot plimba cu rolele sau cu bicicleta. Îi poți duce, totodată, la joacă în spațiile special amenajate pentru ei din Orășelul Copiilor. În zonă vei găsi un club cu terenuri de tenis, restaurant și piscină aflat vis-a-vis de Sala Polivalentă unde sunt organizate periodic târguri și diferite evenimente culturale și sportive. Palatul Național al Copiilor trebuie menționat fiind reprezentativ pentru acest cartier. Aici îți poți înscrie micuțul la diferite cluburi. În incinta sa funcționează și Teatrul Stela Popescu, iar lângă el, spre Pasajul Mihai Bravu vei găsi Parcul Lumea Copiilor. Acesta din urmă cuprinde mai multe terenuri sportive și chiar și o pistă de karting. Parcul Carol se află și el în apropiere. Aici vei găsi Arenele Romane, unde se organizează periodic concerte. Ajungi foarte rapid și în Parcul Natural Văcărești, dacă vrei să evadezi în natură câteva ore sau să te plimbi cu bicicleta. În zona Tineretului ai la dispoziție câteva restaurante și cafenele, iar pentru mai multă diversitate poți oricând să dai o fugă în Centrul Vechi al orașului. Dacă te vei muta aici, vei ajunge rapid la trei mall-uri - Sun Plaza, București Mall, ParkLake - și la centrul comercial Unirea Shopping Center. Află unde sunt localizate toate acestea de pe hartă.
La doi pași de Bulevardului Mărășești este localizată Maternitatea Bucur, iar unul dintre cele mai apropiate spitale private la care vei avea acces dacă te muți în zona Tineretului - Timpuri Noi este Monza Metropolitan Hospital de pe Calea Șerban Vodă. Institutul de Pneumologie Marius Nasta IV și Policlinica cu Plată nr. 3 pot fi găsite și ele în vecinătatea Parcului Tineretului. Consultă harta pentru a vedea ce alte unități sanitare sunt disponibile în zonă și în apropiere.
Ai la dispoziție câteva restaurante și terase pe principalele artere de circulație din zonă. Pe Bulevardul Dimitrie Cantemir găsești o cofetărie și una dintre cele mai apreciate shaormerii din oraș, pe Bulevardul Gheorghe Șincai o serie de cafenele, iar pe Calea Văcărești câteva restaurante. Poți lua o gustare și în cadrul proiectului dezvoltat de Vastit vis-a-vis de stația de metrou Timpuri Noi. Alte câteva opțiuni găsești și pe Strada Nerva Traian din apropiere. Mici terase pot fi găsite și în zona parcurilor la care ai acces în apropierea casei tale, iar dacă ai poftă de fast food poți să mergi la drive through-ul McDonald"™s situat lângă intrarea în Orășelul Copiilor sau la food court-ul din Sun Plaza. Ajungi în doar câteva minute cu mașina și la mall-urile ParkLake sau București Mall pentru o sesiune de shopping urmată de o gustare, iar dacă vrei mai multă diversitate poți să mergi, chiar și cu mijloacele de transport în comun, până în centrul orașului. Durează foarte puțin și vei găsi cu siguranță ceva pe gustul tău. Consultă harta și află ce restaurante, terase și fast food-uri ai lângă viitoarea ta locuință din zona Tineretului - Timpuri Noi.
Ai la dispoziție mai multe ATM-uri și sucursale bancare în intersecția aflată lângă Colegiul Național "Gh. Șincai" - ING, BRD, Raiffeisen Bank. La doi pași găsești și o Banca Transilvania. Consultă pe hartă și află unde se află cel mai apropiat bancomat de locuința ta.
Înainte să pleci...
Ești sigur că ai văzut și aceste proprietăți?
320 € / lună
București, Ghencea
21 mp utili
2023 (Există)
348 € / lună
București, Pipera
29 mp utili
Clădire de birouri
7E
350 € / lună
București, Vatra Luminoasă
50 mp utili
Clădire de birouri
2010
Creează alertă
Salvează căutarea ca să primești pe email ultimele anunțuri publicate
Birouri cu 2 camere de închiriat în zona Tineretului, Sector 4
Cere detalii prin email
*
*
*
*
Detaliile tale de contact vor fi partajate cu Imobiliar Expert Grup