2

Inchiriez cladire de birouri

4.400 € / lună
2 € / mp / lună

Periferie, Sibiu

Sup. utilă / mp. utili:
2.200 mp
Tip prop.:
Clădire mixtă
  • • Comision 0%
  • • Locație exactă

Descriere spațiu comercial

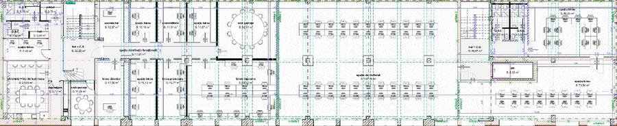
Clădire de birouri cu o suprafață desfășurată de aproximativ 2.200 mp, situată în municipiul Sibiu, pe Calea Șurii Mici, într-o zonă cu acces facil și vizibilitate foarte bună. Locația beneficiază de expunere stradală și se află în imediata apropiere a stațiilor de transport public, ceea ce facilitează atât accesul angajaților, cât și al vizitatorilor. Imobilul este proiectat pentru funcțiunea de birouri și oferă un standard modern de confort. Accesul în clădire se realizează printr-o zonă de recepție dedicată, iar circulația verticală este asigurată prin lift, completată de casa scării. Proprietatea dispune de parcare proprie pentru autoturisme, asigurând un număr suficient de locuri, un aspect esențial pentru companiile care necesită mobilitate ridicată. Din punct de vedere tehnic, clădirea este echipată cu un sistem de încălzire și răcire prin pompe de căldură, soluție eficientă energetic, ce permite menținerea unui nivel optim de climatizare pe tot parcursul anului. Pereții exteriori includ tamplărie din aluminiu, cu performanțe ridicate din punct de vedere al izolației fonice și termice. Spațiile interioare sunt luminoase, flexibile și pot fi compartimentate în funcție de necesitățile chiriașului sau ale viitorului proprietar. Grupurile sanitare sunt distribuite pentru fiecare nivel, cu băi separate pentru femei și bărbați, câte două grupuri sanitare pe etaj, oferind confort și eficiență în utilizare. În ceea ce privește partea de siguranță, clădirea deține autorizație ISU, fiind conformă cu cerințele și reglementările în vigoare privind securitatea la incendiu, un aspect esențial pentru funcționarea legală și sigură a clădirilor comerciale. Datorită suprafeței, amplasamentului și dotărilor, imobilul se pretează atât pentru sedii de companii, centre de servicii, firme de IT, call-center, instituții, cât și pentru activități cu necesar mare de spațiu administrativ. Poziționarea în Sibiu, într-o zonă aflată în plină dezvoltare, reprezintă un avantaj suplimentar pentru investitori sau companii în căutare de spații moderne.
Citește mai mult Citește mai puțin

Detalii spațiu comercial

ID anunț: XV0204VC7 Copiat! 246034646 Copiat!
Actualizat în: 13 Ianuarie 2026
Suprafață utilă: 2200 mp

Utilități

Comision
0%

Subspații disponibile

Chirie / u.m. / lună:
2 EUR/mp (total: 4400 EUR/lună), Comision 0% cumpărător
Suprafață disponibilă:
2200
Disponibilitate spațiu:
imediat

Puncte de interes

Mijloace transport
bus-station
Turnisor
Stații autobuz aprox. 450 m
bus-station
Paris 1
Stații autobuz aprox. 460 m
bus-station
Paris 2
Stații autobuz aprox. 468 m
bus-station
Kogalniceanu
Stații autobuz aprox. 739 m
Școală
kindergarten
Gradinita Nr. 19
Gradinițe aprox. 797 m
school
Scoala cu Clasele I - VIII NR. 12 Sibiu
Școli aprox. 811 m
kindergarten
Hermania
Gradinițe aprox. 1163 m
university
Laboratoare ULBS
Universități aprox. 1887 m
Recreere
park
Parc Piata Cluj
Parcuri aprox. 885 m
restaurant
Kon Tiki
Restaurant aprox. 961 m
sports-ground
Teren sportiv
Terenuri sport aprox. 1046 m
supermarket
Kaufland
Supermarket aprox. 1296 m

Proprietăți recomandate

Detalii de contact

Turcu Andrei

Turcu Andrei

Proprietar

Abonează-te la newsletter să fii primul care primește cele mai noi recomandări de proprietăți și sfaturi de la experți.

CONTACT

Creează alertă

Salvează căutarea ca să primești pe email ultimele anunțuri publicate

Birouri de închiriat în zona Periferie, Sibiu