Metropolis Center este amplasat in zona centrala a Bucurestiului, la intersectia Bulevardului Iancu de Hunedoara cu Calea Dorobantilor. Cladirea este situata la 700 metri distanta de zona ultracentrala de birouri Piata Victoriei si 800 metri de Piata Romana.
Zona adiacenta cladirii s-a dezvoltat in ultimii ani ca o prelungire a centrului de business Piata Victoriei, fiind livrate in special spatii de birouri. Vecinatatile Metropolis Center includ Avantgarde OB si hotelul de 4 stele Capital Plaza.
Cladirea beneficiaza de o accesibilitate auto excelenta datorata amplasarii pe inelul median al orasului (Bdul.Iancu de Hunedoara) si a legaturilor directe cu celelalte bulevarde si piete din zona ultracentrala. Infrastructura de transport public este bine dezvoltata, incluzand metrou la 500-700 metri distanta (statiile Stefan cel Mare, Piata Victoriei), linii de tramvai si autobuz in imediata vecinatate.
Metropolis Center este un complex mixt finalizat in 2009 prin renovarea si extinderea unei cladiri istorice, incluzand acum spatii de birouri si spatii comerciale (Mega Image, clubul Loft).
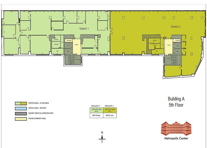
Complexul include o suprafata totala de birouri de 18.700 m2, cu o suprafata maxima pe nivel de 1.270 m2. Spatiile au specificatii de clasa A, cu layout open-space, BMS, HVAC, podea inaltata si tavan suspendat, ferestre cu deschidere, access securizat etc. Parcarea dedicata spatiilor de birouri este integral subterana si include 186 locuri.
Mai multe detalii despre aceasta oferta in link-ul de mai jos:
spatii-de-birouri.ro/inchiriere-vanzare/bucuresti-metropolis-business-center
Pe platforma SPATII-DE-BIROURI.RO gasiti peste 400 de cladiri de birouri din Bucuresti, cu toate informatiile actualizate si comision 0% (reprezentam proprietarii).
Sediul central - Timișoara
Bulevardul Victor Babeș nr. 2, 300230, Timișoara, România
Tel: +40.374.40.44.98 / Fax: +40.256.401.179
Email: suport@imobiliare.ro
Luni - Vineri 08:00 - 20:00
Punct de lucru - București: Iride Business Park, Bld. Dimitrie
Pompeiu 9-9A, Clădirea B2B,
020335, Sector 2, București, România
CONTACT
Sediul central - Timișoara
Bulevardul Victor Babeș nr. 2, 300230, Timișoara, România
Tel: +40.374.40.44.98 / Fax: +40.256.401.179
Email: suport@imobiliare.ro
Luni - Vineri 08:00 - 20:00
Punct de lucru - București: Iride Business Park, Bld. Dimitrie
Pompeiu 9-9A, Clădirea B2B,
020335, Sector 2, București, România
Vechea "Gara a Targovistei" astazi parte din Gara de Nord
aprox.
1938 m
Gradinita nr. 252 cu program prelungit
aprox.
208 m
Gradinita nr. 85
aprox.
440 m
Gradinita cu program normal si prelungit Happy Kids
aprox.
681 m
Gradinita nr. 138 cu program prelungit
aprox.
698 m
Gradinita nr. 116
aprox.
855 m
Gradinita de copii nr.251
aprox.
891 m
Ioanid
aprox.
895 m
Grădinița nr. 252
aprox.
903 m
Gradinita Ioanid
aprox.
913 m
Gradinita numarul 133
aprox.
1050 m
Gradinita nr. 2
aprox.
1151 m
Paradisul Copiilor
aprox.
1282 m
Gradinita nr. 203 program prelungit
aprox.
1305 m
Gradinita nr.203 (fosta Clementa)
aprox.
1331 m
Gradinita numarul 257
aprox.
1370 m
Cambridge School
aprox.
395 m
Scoala Generala Elena Vacarescu
aprox.
395 m
Cambridge School Of Bucharest (en)
aprox.
405 m
Scoala 186
aprox.
406 m
Scoala Americana
aprox.
418 m
Liceul Nicolae Tonitza
aprox.
479 m
Cladirea Virgil Madgearu
aprox.
528 m
Clubul Sportiv Dinamo Bucuresti
aprox.
529 m
Badulescu Aurelia (en)
aprox.
591 m
Liceul Alexandru Vlahuta + Scoala 15 (en)
aprox.
620 m
Scoala nr. 15
aprox.
651 m
Liceul Teoretic "Alexandru Vlahuta"
aprox.
651 m
Liceu - Scoala Europeana Bucuresti
aprox.
654 m
Scoala de teatru
aprox.
664 m
Colegiul National "Ion Luca Caragiale"
aprox.
666 m
SNSPA
aprox.
395 m
Scoala Nationala de Studii Politice si Administrative (SNSPA)
aprox.
400 m
Scoala Nationala de Studii Politice si Administrative
aprox.
400 m
ASE - Sala de sport
aprox.
484 m
ASE - Cladirea Cihoschi
aprox.
506 m
ASE Cladirea Veche 1916 - 1926 (en)
aprox.
519 m
ASE - Cibernetica
aprox.
531 m
ASE Cibernetica (en)
aprox.
535 m
Amfiteatrele ASE
aprox.
539 m
Academia de Studii Economice
aprox.
551 m
ASE - Facultatea de Comert
aprox.
566 m
CROS - Universitatea Alternativa
aprox.
647 m
Academia Romana
aprox.
980 m
Facultatea de Administrarea Afacerilor cu predare in limbi straine
aprox.
1055 m
Scoala de Inalte Studii Postuniversitare de Management
aprox.
1055 m
Mega Image - IANCU DE HUNEDOARA
aprox.
7 m
Bila Supermarket
aprox.
455 m
BILLA - Dorobanti
aprox.
461 m
Mega Image
aprox.
737 m
Mario Plaza
aprox.
750 m
Bacania Coco
aprox.
936 m
Nik Non-Stop
aprox.
957 m
Mega Image Amzei Non-Stop
aprox.
999 m
Nic Dorobanti Non-Stop
aprox.
1003 m
Mega Image Magheru
aprox.
1029 m
ilanplant
aprox.
1195 m
Mega Image - Icoanei
aprox.
1237 m
Mega Image Rosetti Non-Stop
aprox.
1314 m
OK Non-stop Supermarket (en)
aprox.
1344 m
OK Non-Stop
aprox.
1344 m
"METROPLIS CENTER"
aprox.
28 m
Parcare Subterana Metropolis Center
aprox.
17 m
Parcare
aprox.
141 m
Parcare
aprox.
153 m
Parcare
aprox.
163 m
Parcare
aprox.
263 m
Parcare privata
aprox.
317 m
Parcare
aprox.
333 m
Parcare spital
aprox.
386 m
Parcare
aprox.
386 m
Parcare cu plata
aprox.
467 m
Parcare
aprox.
493 m
Parcare
aprox.
565 m
Parcare
aprox.
637 m
Parcare
aprox.
711 m
Parcare Mario Plaza
aprox.
750 m
Parc
aprox.
181 m
Perla park
aprox.
181 m
Parc
aprox.
195 m
Parc
aprox.
495 m
Parc
aprox.
501 m
Parc
aprox.
511 m
Parcul Piata Romana
aprox.
673 m
Parcul Nicolae Iorga
aprox.
819 m
Parcul Nicolae Iorga
aprox.
828 m
Statuia lui Ion (Ionel) I.C. Bratianu
aprox.
840 m
Parcul Ion C. Bratianu
aprox.
843 m
Parc
aprox.
850 m
Parcul Ion I. C. Bratianu
aprox.
850 m
Parcul Khalil Gibran
aprox.
854 m
Parc
aprox.
854 m
Stadionul Dinamo
aprox.
478 m
Teren sportiv
aprox.
545 m
Teren sportiv
aprox.
590 m
Teren sportiv
aprox.
622 m
Teren sportiv
aprox.
672 m
Teren sportiv
aprox.
725 m
Teren sportiv
aprox.
822 m
Teren sportiv
aprox.
1253 m
Teren sportiv
aprox.
1320 m
Teren sportiv
aprox.
1640 m
Teren sportiv
aprox.
1662 m
ICSIM
aprox.
1801 m
Teren sportiv
aprox.
1930 m
Skatepark 1
aprox.
1970 m
Respawn B
aprox.
1981 m
Piața Romană
aprox.
610 m
Piața Aviatorilor
aprox.
1222 m
Piata Revolutiei
aprox.
1484 m
Piata Emil Cioran (Vergilius) (en)
aprox.
1836 m
Piata Universitatii
aprox.
1872 m
Piața Drapelului (Tricolorului)
aprox.
1940 m
Piata Rosetti
aprox.
1941 m
Farmacia HelpNet
aprox.
88 m
Sensiblu
aprox.
158 m
Farmacia Dona 152
aprox.
175 m
Centrofarm 9
aprox.
201 m
SC. Farmed SRL
aprox.
230 m
Farmacia Crisia
aprox.
230 m
Farmacia Punkt
aprox.
252 m
Farmacia Dona 54
aprox.
256 m
Farmacia Dona 17
aprox.
274 m
Farmacia Arta
aprox.
308 m
Farmaciile Polisano
aprox.
324 m
Crisia-Farm
aprox.
364 m
Farmacia Agifarm
aprox.
395 m
Farmacia HelpNet
aprox.
395 m
Farmaplus
aprox.
424 m
Ambulatoriul de specialitate al Spitalului de copii Grigore Alexandrescu
aprox.
177 m
policlinica de copii Grigore Alexandrescu
aprox.
249 m
INFOSAN Clinica Oftalmologica
aprox.
256 m
Regina Maria Floreasca
aprox.
276 m
Camera de Garda - Spitalul de Urgenta Floreasca
aprox.
307 m
Spitalul de Urgență Floreasca
aprox.
353 m
Spitalul Euroclinic
aprox.
363 m
Policlinica
aprox.
363 m
Spitalul Euroclinic - Regina Maria
aprox.
364 m
Spitalul de Urgenta Floreasca
aprox.
365 m
Spitalul clinic de urgenta pentru copii Grigore Alexandrescu
aprox.
437 m
Spitalul Grigore Alexandrescu
aprox.
454 m
Centrul de diagnostic si tratament
aprox.
471 m
policlinica centrul de diagnostic si tratament (CDT)
aprox.
474 m
Doctor Carmen Sturza
aprox.
525 m
Reader's Cafe
aprox.
36 m
Cafe Boheme
aprox.
472 m
Tucano Coffee - Dorobanti
aprox.
508 m
Tucano Coffee
aprox.
531 m
Cafe 3
aprox.
600 m
Mon Amour
aprox.
617 m
Music Rooms Cafe
aprox.
664 m
Fitto Cafe
aprox.
690 m
Smart Change
aprox.
744 m
Randez Vous
aprox.
795 m
Venchi 1878
aprox.
798 m
Ganesha Cafe
aprox.
815 m
Admiral Cafe
aprox.
826 m
Shiva
aprox.
840 m
5 To Go Lahovari
aprox.
862 m
Casa Enache
aprox.
58 m
Casa Enache (en)
aprox.
75 m
Fornetti
aprox.
103 m
La Finca by Alioli
aprox.
137 m
Balcic
aprox.
157 m
Restaurant Perla (en)
aprox.
172 m
Perla
aprox.
172 m
Sangria
aprox.
174 m
El Puerto Iberico
aprox.
245 m
Noel
aprox.
262 m
Domino's Pizza
aprox.
329 m
Genin Shaorma
aprox.
351 m
Restaurant "La Templu" (coa) (calea Dorobantilor 127-129)
aprox.
382 m
cofetaria Nicola
aprox.
457 m
Restaurant La Mama (en)
aprox.
566 m
Studio Martin
aprox.
91 m
Panik & Pub
aprox.
635 m
Open Pub
aprox.
650 m
OLD NICK PUB
aprox.
857 m
Doncafe Brasserie
aprox.
863 m
Waldo's
aprox.
949 m
Le Cafe Inmedio
aprox.
1105 m
Restaurant-pizzerie BONA DA ELENA
aprox.
1344 m
Smart's Pub & Bistro
aprox.
1446 m
The Dubliner
aprox.
1607 m
James Joyce's Pub & Restaurant
aprox.
1718 m
Have a Cigar
aprox.
1744 m
Question Mark Social Club
aprox.
1775 m
Coloseum
aprox.
1778 m
The Place
aprox.
1784 m
Happy Pub
aprox.
326 m
ACAB Pub
aprox.
467 m
Zappa Rock & More
aprox.
490 m
Sky Bar
aprox.
555 m
Lokal
aprox.
725 m
Frame
aprox.
752 m
El Bistro
aprox.
794 m
Cup & Cake
aprox.
853 m
Alan Dala
aprox.
860 m
Piua Book Bar
aprox.
938 m
A1
aprox.
1061 m
Clubul Taranului
aprox.
1165 m
Fratelli Espresso Bar
aprox.
1285 m
MIM Bistro
aprox.
1414 m
La Baraca
aprox.
1504 m
ING Bank Metropolis
aprox.
52 m
Raiffeisen Bank
aprox.
78 m
Alpha Bank
aprox.
122 m
ING Bank - Sediul Central
aprox.
171 m
Volksbank
aprox.
191 m
CEC Bank
aprox.
222 m
Banca Transilvania - Ag. Perla
aprox.
234 m
Banca Romaneasca
aprox.
236 m
Banca Romana de Credite si Investitii
aprox.
255 m
Garanti bank sediu
aprox.
273 m
Erste (BCR)
aprox.
296 m
Piraeus Bank Romania - Agentia Stefan cel Mare
aprox.
340 m
ING Stefan cel Mare - Polona
aprox.
363 m
BCR
aprox.
411 m
BRD
aprox.
432 m
Fiind o zonă ultracentrală, aceasta oferă numeroase opțiuni de călătorie cu mijloacele de transport în comun, și este bine conectată cu restul orașului. Ai, în primul rând, la dispoziție stațiile de metrou Piața Victoriei, Piața Romană și Universitate. Astfel, te vei putea deplasa rapid prin oraș, evitând aglomerația de la suprafață. Toate acestea sunt situate pe magistrala 2 care traversează Bucureștiul de la nord la sud. În plus, de la Piața Victoriei vei putea lua metroul și pe magistrala 1 pentru a ajunge, de exemplu, în cartierul Pantelimon sau în zona Eroilor. Prin Piața Universității urmează să treacă și magistrala 5 care va lega cartierele Drumul Taberei și Pantelimon. Până acum, s-au deschis însă doar stațiile de metrou aflate în zona Drumul Taberei. Alte mijloace de transport în comun care ar putea să-ți fie de ajutor atunci când te vei muta în această zonă sunt autobuzele 300 și 381. Primul face legătura dintre Piața Romană și Piața Victoriei continuându-și apoi traseul de-a lungul Bulevardului Ion Mihalache, iar cel de-al doilea conectează Piața Victoriei cu zona Tineretului și cu cartierul Berceni. De pe Bulevardul Regina Elisabeta vei putea lua troleibuzul 90 pentru a ajunge în Drumul Taberei sau în zona Arenei Naționale, iar în fața Spitalului Colțea vei găsi stația autobuzului 381 care merge în cartierul Berceni. Iar dacă preferi să te deplasezi pe două roți, vei avea la dispoziție una dintre pistele speciale destinate bicicliștilor pe Calea Victoriei. Aceasta îți va oferi, în plus, oportunitatea ideală de a admira arhitectura deosebită a clădirilor aflate de o parte și de alta a uneia dintre cele mai frumoase străzi din București. Consultă harta pentru a afla unde sunt localizate stațiile mijloacelor de transport în comun.
În această zonă găsim sediul central al Universității din București și cel al Academiei de Studii Economice din București (ASE), unele dintre cele mai prestigioase instituții de învățământ superior din România. Tot aici se află și sediile mai multor facultăți. Ai și alte instituții de învățământ cu renume la doi pași de casă, precum precum Colegiul Național "Sfântul Sava", Colegiul Național "Gheorghe Lazăr", Liceul Teoretic Bulgar "Hristo Botev" și Universitatea Națională de Muzică. De menționat este și Căminul Moxa, aflat în zona Calea Victoriei, în care sunt cazați unii dintre studenții ASE. Consultă harta de mai jos pentru a vedea și celelalte unități de învățământ din zonă.
În această parte a orașului vei găsi numeroase reprezentanțe ale unor branduri de lux. Cele mai multe magazine alimentare din zonă au dimensiuni reduse. Pentru cumpărături îți recomandăm Piața Amzei, aflată la doi pași de Romană și modernizată recent. Aici găsești, pe lângă comercianți de unde poți cumpăra legume și fructe și câteva magazine cu preparate proaspete de la burgeri, la pâine artizanală sau înghețată. Centrul Vechi găzduiește, totodată, reprezentanțe ale unor retaileri de modă. Tot aici găsești și librăria Cărturești Carusel, una dintre cele mai frumoase din oraș. O librărie Cărturești deschisă într-o altă clădire deosebită poate fi găsită și în apropiere de Piața Romană. Un spațiu comercial cu renume este Magazinul Victoria, un monument istoric al orașului. Magazinul București, amplasat la intersecția străzilor I.C. Brătianu și Lipscani a fost reconstruit recent cu o investiție substanțială. Ai în apropiere magazinul Cocor, centrul comercial Unirea Shopping City și un hipermarket Carrefour. Cu mașina sau metroul poți să ajungi destul de repede la mall-ul AFI Cotroceni. Consultă harta și vezi ce magazine vei avea în apropierea noii tale case.
Aceasta este una dintre cele mai aglomerate zone din București la orele de vârf. Aici găsești însă și unele dintre puținele parcări subterane din Capitală. Chiar vis-a-vis de Universitatea București ai intrarea într-o astfel de parcare cu peste 400 de locuri. O parcare destul de încăpătoare poate fi găsită și în Piața Victoriei. Atenție, însă, această zonă se poate aglomera nu doar din cauza traficului, ci și din cauza diverselor manifestări sau proteste care se organizează, de obicei, în fața Palatului Victoria, sediul Guvernului României. Dacă te hotărăști să te muți în zonă, atunci îți recomandăm să te interesezi de posibilitatea închirierii unui loc de parcare pentru mașina ta. Poți face acest lucru apelând la Serviciul Parcaje al ADP Sector 1. Consultă harta pentru a afla unde găsești și alte parcări în zona Victoriei-Romană-Universitate.
Zona Victoriei - Romană - Universitate este un epicentru cultural al Capitalei și oferă numeroase opțiuni de petrecere a timpului liber. Aici vei găsi numeroase muzee impresionante pe care le poți vizita în timpul liber (Muzeul Național de Istorie Naturală "Grigore Antipa", Muzeul Țăranului Român, Muzeul Național George Enescu, etc), vei putea participa la evenimentele în aer liber desfășurate pe Calea Victoriei sau în Piața George Enescu sau vei putea merge la un spectacol organizat pe scena Ateneului Român sau pe cea a Teatrului Notarra. Nu rata nici o vizită la Teatrul Național "I.L. Caragiale" și la Muzeul Național de Artă al României. Observatorul Astronomic Amiral Vasile Urseanu te așteaptă cu o experiență extrem de educativă care va fi, cu siguranță, apreciată de micuțul tău. Dacă îți place să ieși la o cafea în timpul liber alături de prietenii tăi, atunci în această zonă vei putea alege dintr-o multitudine de restaurante, terase și pub-uri. Nu lipsesc nici skybar-urile, care îți oferă priveliști de excepție de la înălțime. Cele câteva parcuri din zona Victorieim - Romană - Universitate au dimensiuni destul de reduse, dar sunt frumos îngrijite. Printre acestea amintim Parcul Ateneului și Parcul Nicolae Iorga. Dacă preferi plimbările lungi în weekend, atunci vei avea la dispoziție în apropiere parcurile Kiseleff și Cișmigiu. Nu uita, de asemenea, că te vei afla la doi pași de Centrul Vechi al Capitalei, dar și că vei putea să faci o plimbare cu bicicleta pe Calea Victoriei. În condiții normale, se organizează periodic evenimente în centrul orașului, atât în cadrul Sălii Palatului, cât și în aer liber în Piața Revoluției. În Piața Universității sunt organizate, totodată, diferite târguri și concerte. Vezi pe hartă mai multe puncte de interes din zona Victoriei-Romană-Universitate.
Chiar la Piața Universității se află principala unitate sanitară din zonă. Este vorba despre Spitalul Clinic Colțea, primul înființat în București. În zona Victoriei - Romană - Universitate vei întâlni mai multe clinici private, precum Policlinica Enescu din cadrul rețelei de sănătate Regina Maria și Spitalul Clinic Sanador. La doi pași de Piața Romană se află Spitalul Clinic de Urgențe Oftalmologice, cel mai mare din România cu o astfel de specializare. Consultă harta pentru a afla ce clinici private ai în apropierea casei, dacă te muți în această parte a orașului.
Găsești numeroase restaurante, terase și cafenele potrivite pentru toate gusturile în Centrul Vechi al orașului, pe Calea Victoriei sau în zona din spatele Ateneului Român. Câteva fast food-uri ai la dispoziție în Unirea Shopping Center. Nu foarte departe, în zona Romană, ai și alte opțiuni. Află de pe hartă unde găsești cel mai apropiat restaurant de noua ta casă.
Sucursale ale diferitelor bănci sunt dispuse de-a lungul principalelor artere de circulație sau în marile intersecții din zonă. Un BRD, spre exemplu, găsești chiar lângă Cercul Militar Național. Pe Bulevardul Nicolae Bălcescu o sucursală Banca Transilvania și ING Bank. La doi pași de Piața Universității se află și Palatul Băncii Naționale a României. Consultă harta pentru mai multe detalii.
Înainte să pleci...
Ești sigur că ai văzut și aceste proprietăți?
6.500 € / lună
București, Romană
3.500 mp utili
Clădire de birouri
P+7E
14.202 € / lună
București, Victoriei
789 mp utili
Clădire de birouri
P+9E
17.000 € / lună
București, Dorobanți
750 mp utili
Bloc de apartamente
2E
17.000 € / lună
București, P-ța Victoriei
1.465 mp utili
Clădire de birouri
4.066 € / lună
București, P-ța Victoriei
30.000 mp utili
Clădire de birouri
P+15E
4.500 - 22.500 € / lună
București, Barbu Văcărescu
45.000 mp utili
Clădire de birouri
P+10E
Creează alertă
Salvează căutarea ca să primești pe email ultimele anunțuri publicate
Birouri de închiriat în zona Victoriei, Ultracentral
Cere detalii prin email
*
*
*
*
Detaliile tale de contact vor fi partajate cu Activ Property Services