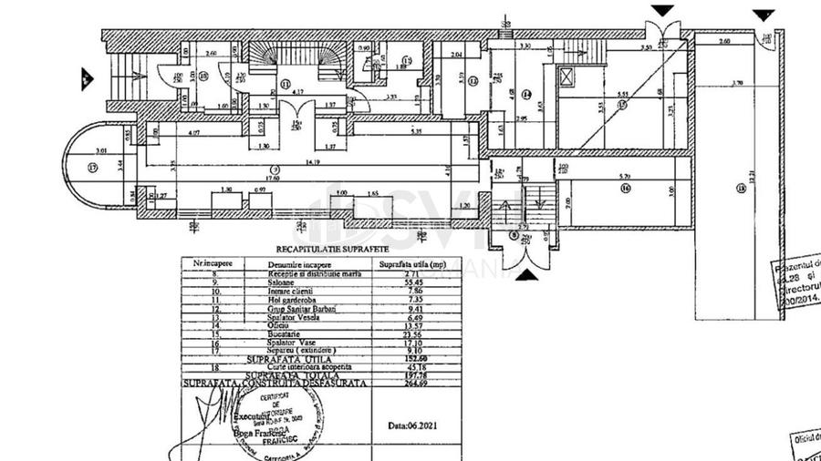
SVN Romania va propune spre inchiriere un imobil situat intr-o locatie ultracentrala in apropiere de Piata Victoriei pe bulevardul Banu Manta. Avand o suprafata utila de aproximativ 550 mp , cladirea poate fi utilizata cu scopuri diverese de la restaurant , cabinet, afterschool sau clinica. In acest moment spatiul este amenajat pentru restaurant avand creat un flux functional.
Imobilul este structurat pe subsol, parter, etaj si mansarda. Deasemenea dispune de curte libera de aproximativ
250 mp la care se adauga terasa acoperita de 50 mp.
Bucataria cuprinde echipamente profesionale pentru activitate horeca precum si camere frigorifice.
Pentru mai multe detalii , va rugam sa ne contactati.
Citește mai mult
Citește mai puțin
Acceptă animale de companie
Aer condiționat
Calorifere
Centrală proprie
Renovat
Sediul central - Timișoara
Bulevardul Victor Babeș nr. 2, 300230, Timișoara, România
Tel: +40.374.40.44.98 / Fax: +40.256.401.179
Email: suport@imobiliare.ro
Luni - Vineri 08:00 - 20:00
Punct de lucru - București: Iride Business Park, Bld. Dimitrie
Pompeiu 9-9A, Clădirea B2B,
020335, Sector 2, București, România
CONTACT
Sediul central - Timișoara
Bulevardul Victor Babeș nr. 2, 300230, Timișoara, România
Tel: +40.374.40.44.98 / Fax: +40.256.401.179
Email: suport@imobiliare.ro
Luni - Vineri 08:00 - 20:00
Punct de lucru - București: Iride Business Park, Bld. Dimitrie
Pompeiu 9-9A, Clădirea B2B,
020335, Sector 2, București, România
Statie Gara Basarab 133, 178, 282, 105, 123, 162, 780
aprox.
1294 m
Statie Pasaj Grant 65, 97, 86
aprox.
1514 m
Statie Cimitirul Sf. Vineri 65, 97, 86
aprox.
1613 m
Statia Piata Romana linii : 79,86
aprox.
1657 m
Statie Caraiman 65, 97, 86
aprox.
1770 m
Statia Calea Dorobantilor; Liniile:79, 86,
aprox.
1783 m
Gara Bucuresti Nord
aprox.
1215 m
Vechea "Gara a Targovistei" astazi parte din Gara de Nord
aprox.
1227 m
Gara Basarab
aprox.
1311 m
Colegiul National de Informatica "Tudor Vianu"
aprox.
176 m
Colegiul National de Informatica Tudor Vianu
aprox.
176 m
Scoala Generala nr. 11 - Ion Heliade Radulescu
aprox.
245 m
Scoala Comunala Mavrogheni, actualmente Scoala Generala nr. 11 “Ion Heliadeâ€(1896)
aprox.
251 m
Gradinita Little London
aprox.
298 m
Lexis School of Languages (en)
aprox.
424 m
Scoala Generala Nr.3 "Nicolae Titulescu"
aprox.
556 m
Scoala cu Clasele I-VIII NR. 3
aprox.
568 m
Gradinita de copii nr.116
aprox.
579 m
Complexul Scolar Cronos
aprox.
585 m
Scoala Generala nr. 17
aprox.
597 m
Scoala Generala Nr. 17 "Pia Bratianu"
aprox.
610 m
Liceul Teoretic Ion Neculce
aprox.
696 m
Gradinita de copii nr.52
aprox.
746 m
Scoala de Muzica si Arte Plastice 1
aprox.
766 m
Gradinita nr. 2
aprox.
265 m
Gradinita nr. 248
aprox.
486 m
Gradinita cu Program Prelungit Nr. 248
aprox.
495 m
Gradinita nr. 112
aprox.
698 m
Grădinița nr. 252
aprox.
731 m
Gradinita de Copii Nr. 52
aprox.
745 m
Gradinita cu program normal ""Ge Ce Pic Englishkinder"
aprox.
763 m
Gradinita de copii nr.251
aprox.
764 m
Gradinita nr. 206
aprox.
776 m
Gradinita 97
aprox.
1281 m
Gradinita nr. 222
aprox.
1319 m
Gradinita Zum-zum
aprox.
1468 m
Gradinita Dreams World
aprox.
1492 m
Gradinita de copii nr. 285
aprox.
1512 m
Gradinita cu program normal si prelungit Happy Kids
aprox.
1531 m
Universitatea Politehnica Bucuresti
aprox.
934 m
Universitatea Politehnica - Polizu
aprox.
934 m
Facultatea de Inginerie Aerospatiala
aprox.
988 m
Facultatea de Chimie Industriala
aprox.
994 m
Facultatea de Inginerie Medicala
aprox.
1025 m
Corp A
aprox.
1032 m
SNSPA
aprox.
1233 m
Scoala Nationala de Studii Politice si Administrative (SNSPA)
aprox.
1272 m
Scoala Nationala de Studii Politice si Administrative
aprox.
1272 m
FADD Facultatea de Arte Decorative si Design
aprox.
1361 m
Universitatea Nationala de Arte Bucuresti (facultatea de arte decorative si design)
aprox.
1363 m
Academia Romana
aprox.
1388 m
Universitatea Nationala de Arte (sculptura)
aprox.
1410 m
Institutul Medico-Militar
aprox.
1419 m
Facultatea de Administrarea Afacerilor cu predare in limbi straine
aprox.
1549 m
Mega Image
aprox.
253 m
Mega Image piata 1Mai Non-Stop
aprox.
259 m
Mega Image
aprox.
518 m
Mega Image
aprox.
633 m
Mega Image
aprox.
634 m
CARREFOUR Express Mihalache
aprox.
807 m
Best Market 1
aprox.
835 m
Mega Image
aprox.
960 m
Mega Image
aprox.
1076 m
Mega Image Titulescu 2
aprox.
1086 m
Ami Non-Stop
aprox.
1156 m
Mario Plaza
aprox.
1170 m
Mega Image
aprox.
1175 m
Nic Dorobanti Non-Stop
aprox.
1192 m
Kaufland
aprox.
1339 m
"METROPLIS CENTER"
aprox.
1369 m
Intrarea in caminele C si D din grozavesti
aprox.
1991 m
Parcare Subterana Victoria Tower
aprox.
447 m
Parcare Strada Clucerului
aprox.
519 m
Parcare
aprox.
560 m
Parcare
aprox.
561 m
Parcare
aprox.
581 m
Parcare
aprox.
581 m
Parcare cu plata
aprox.
594 m
Parcare
aprox.
653 m
Parcare
aprox.
654 m
Parcare
aprox.
681 m
Parcare
aprox.
697 m
Parcare
aprox.
717 m
Parcare
aprox.
723 m
Parcare
aprox.
726 m
Parcare
aprox.
754 m
Parcul Kiseleff(1832)
aprox.
185 m
Parcul Kiseleff
aprox.
193 m
Monumentul Infanteriei Romane
aprox.
281 m
Piateta regelui
aprox.
289 m
Parc
aprox.
339 m
Parc
aprox.
524 m
Parcul Filipescu
aprox.
532 m
Parc
aprox.
686 m
Parc
aprox.
709 m
Parc
aprox.
721 m
Parc
aprox.
850 m
Parcul Khalil Gibran
aprox.
873 m
Parc
aprox.
873 m
Parc
aprox.
880 m
Parc
aprox.
894 m
Piața Aviatorilor
aprox.
545 m
Piața Romană
aprox.
1640 m
Piata Emil Cioran (Vergilius) (en)
aprox.
1763 m
Teren sportiv
aprox.
864 m
Teren sportiv
aprox.
1046 m
Teren sportiv
aprox.
1107 m
Skatepark 1
aprox.
1205 m
Teren sportiv
aprox.
1234 m
Teren sportiv
aprox.
1416 m
FRR
aprox.
1452 m
Teren sportiv
aprox.
1523 m
Teren sportiv
aprox.
1609 m
Teren sportiv
aprox.
1632 m
Teren sportiv
aprox.
1670 m
Teren sportiv
aprox.
1671 m
Teren sportiv
aprox.
1673 m
Teren sportiv
aprox.
1677 m
Teren sportiv
aprox.
1704 m
Real Green Pharma Non-Stop
aprox.
63 m
Plafar
aprox.
68 m
Sensiblu
aprox.
115 m
Farmacia Non-Stop Alissa Retail
aprox.
120 m
Farmacie
aprox.
125 m
2 NA Farm
aprox.
263 m
Help Net Farma
aprox.
292 m
MC Serv Tour
aprox.
331 m
Hipocrat
aprox.
357 m
Sensiblu Piata 1 Mai
aprox.
358 m
Catena
aprox.
491 m
Pharma Part
aprox.
524 m
Sensiblu
aprox.
525 m
Farmacia Richter
aprox.
536 m
MC Serv Tour
aprox.
580 m
Spitalul Sfanta Maria
aprox.
156 m
Spitalul Clinic "Sfânta Maria" (fost Grivița)
aprox.
157 m
Medicover
aprox.
261 m
Spitalul de Urgenta Prof. Dr. Agrippa Ionescu
aprox.
269 m
Spitalul "Agrippa Ionescu"
aprox.
283 m
INHT C.T Nicolau
aprox.
294 m
Institutul National de Hematologie Transfuzionala Prof. Dr. C.T.Nicolau (en)
aprox.
301 m
Partea (corpul C si D) in consolidare a spitalului "Filantropia"(abandonate )
aprox.
306 m
Spitalul Clinic Filantropia
aprox.
346 m
Spitalul Filantropia
aprox.
346 m
Institutul de diabet Paulescu (en)
aprox.
362 m
Centrul De Boli Cardiovasculare Angiomedica
aprox.
362 m
Institutul de diabet Paulescu
aprox.
362 m
INGG "ANA ASLAN"
aprox.
495 m
Neuroptics
aprox.
564 m
Jerry's Pizza (en)
aprox.
78 m
Dines Non-Stop
aprox.
112 m
la Tortilla
aprox.
141 m
La Tortila
aprox.
141 m
Don Taco
aprox.
146 m
Restaurant Don Taco (en)
aprox.
171 m
Don Daniel (en)
aprox.
289 m
Bufetul de la Șosea
aprox.
311 m
Shaorma Non-Stop
aprox.
324 m
Casa Doina
aprox.
334 m
Fitto Cafe
aprox.
469 m
Hotel si Restaurant Piccolo Mondo
aprox.
472 m
McDonalds
aprox.
474 m
Casa Satya
aprox.
476 m
Piccolo Mondo
aprox.
476 m
Seneca AntiCafe
aprox.
268 m
CAFEA - La Haig Keskerian
aprox.
283 m
Starbucks
aprox.
482 m
Cafe Antipa
aprox.
504 m
Gloria Jean's
aprox.
541 m
Meron Coffee
aprox.
651 m
Admiral Cafe
aprox.
819 m
Venchi 1878
aprox.
945 m
Sufrageria cu Jocuri
aprox.
961 m
Cafe Centro
aprox.
1097 m
High Heels
aprox.
1195 m
Randez Vous
aprox.
1230 m
Nuba Cafe
aprox.
1242 m
The Eatery
aprox.
1291 m
Reader's Cafe
aprox.
1361 m
Clubul Taranului
aprox.
302 m
El Bistro
aprox.
995 m
Sky Bar
aprox.
1188 m
Happy Pub
aprox.
1462 m
Zappa Rock & More
aprox.
1720 m
A1
aprox.
1760 m
ACAB Pub
aprox.
1800 m
Frame
aprox.
1818 m
Stuf Vama Veche
aprox.
1931 m
Zodiac
aprox.
1980 m
The Place
aprox.
420 m
The Dubliner
aprox.
555 m
Le Cafe Inmedio
aprox.
838 m
Doncafe Brasserie
aprox.
1010 m
Studio Martin
aprox.
1403 m
Casa Mara
aprox.
1789 m
Panik & Pub
aprox.
1908 m
Lucky Poin
aprox.
1996 m
Filos Pub
aprox.
1998 m
Banca Italo Romena
aprox.
55 m
Banca Italo Romena
aprox.
60 m
Pireus Bank
aprox.
108 m
Libra Bank
aprox.
115 m
CEC Bank
aprox.
134 m
CEC bank
aprox.
141 m
Libra bank
aprox.
141 m
Credit Europe Bank
aprox.
188 m
BRD
aprox.
223 m
Banca
aprox.
229 m
Banca Transilvania - Ag. 1 Mai
aprox.
356 m
Eximbank Headquarters
aprox.
373 m
Palatul "Kiseleff"
aprox.
384 m
Eximbank
aprox.
384 m
BCR Victoriei
aprox.
464 m
Zona 1 Mai dispune nu doar de o poziție privilegiată față de centrul Capitalei, dar este și conectată cu alte cartiere ale orașului prin diverse mijloace de transport în comun. Poți să iei metroul de la stațiile aflate de-a lungul Căii Grivița, mai exact 1 Mai, Grivița și Basarab. Toate acestea se află pe Magistrala M4 care leagă Gara de Nord de zona Străulești. Astfel, vei ajunge de la stația Basarab la Piața Victoriei chiar și în 5 minute. Iar în zona Eroilor în circa 10 minute. Alte mijloace de transport în comun la care ai putea să apelezi dacă te muți în zona 1 Mai sunt tramvaiul 42, care leagă Piața Presei de Gara de Nord și tramvaiul 41, care ajunge în Drumul Taberei și în Ghencea. Consultă harta pentru a vedea care sunt cele mai apropiate stații de locuința de care ești interesat.
Una dintre principalele unități de învățământ din zona 1 Mai este Colegiul Național "Ion Neculce". Acesta este amplasat în apropierea Cimitirului evreiesc Filantropia. Colegiul poate fi potrivit dacă îți dorești ca încă din clasa a V-a copilul tău să învețe intensiv o limbă străină, având în vedere că acesta dispune de clase cu program intensiv în limba germană și italiană. Găsești pe hartă și alte unități de învățământ aflate în zona 1 Mai și în vecinătatea acesteia.
Ești interesat de o locuință în zona 1 Mai și te gândești unde ai putea să-ți faci cumpărăturile odată ce te muți acolo? Vei avea în zonă Piața Ion Mihalache și în apropiere Piața Domenii. Poți să ajungi destul de ușor la magazinele Kaufland sau Penny de pe Bulevardul Bucureștii Noi, iar cu mașina ajungi în câteva minute la complexul comercial Colosseum Retail Park de pe Șoseaua Chitilei. Cele mai apropiate mall-uri vor fi AFI Cotroceni, Băneasa Shopping City sau Promenada. Distanța pe care va trebui să o parcurgi pentru a ajunge la acestea va fi destul de mare, motiv pentru care vei merge la ele doar cu mașina. Află unde îți vei putea face cumpărăturile dacă te muți în zona 1 Mai consultând harta.
Dacă ai mașină sau te gândești să îți iei carnetul în curând și să nu mai circuli cu mijloacele de transport în comun, atunci trebuie să știi că traficul rutier în zona 1 Mai este concentrat pe marile artere de circulație, precum bulevardele Ion Mihalache și Banu Manta, Calea Grivița și Șoseaua Nicolae Titulescu. La marginea acestei zone se află, totodată, Pasajul Basarab care unește Sectorul 1 de Sectorul 6 și face parte din inelul interior de circulație al Bucureștiului, dar și Podul Grant care leagă Bulevardul Ion Mihalache de cartierul Crângași. La orele de vârf, traficul este de multe ori îngreunat. Îți recomandăm, totodată, să verifici dacă poți închiria un loc de parcare pentru mașina ta în apropierea locuinței de care ești interesat. Pentru a face acest lucru trebuie să te adresezi Serviciului Parcaje din cadrul ADP Sector 1. Consultă harta și află unde sunt localizate principalele parcări din zonă.
Dacă alegi să te muți în zona 1 Mai vei avea relativ aproape Parcul Regele Mihai I al României (fostul Herăstrău). Aici te vei putea plimba alături de familie în weekend-uri sau vei putea petrece câteva ore la terasă cu prietenii. Un alt parc aflat în vecinătatea acestei zone este Kiseleff, iar lângă el găsești trei muzee importante din Capitală - Antipa, Muzeul Țăranului Român și Muzeul de Geologie. Poți face aici o vizită educativă alături de copilul tău. Și Parcul Bazilescu se află în apropiere. Poți să ajungi rapid la el cu troleibuzul 97. Nici Centrul Expozițional Romexpo, unde sunt organizate periodic diferite concerte, expoziții și târguri, nu se va afla departe de noua ta locuință. O plimbare cu bicicleta în zona Parcului Regele Mihai I al României poate fi o altă variantă bună de relaxare în timpul liber. Ajungi destul de repede și pe Calea Victoriei. Și aici ai o pistă specială pentru bicicliști, dar poți să faci un popas și la una dintre cafenelele din zonă. Dacă preferi să-ți petreci ziua la cumpărături, atunci vei ajunge cu mașina în câteva minute la mall-ul Băneasa Shopping City. Consultă harta și află ce alte opțiuni de petrecere a timpului liber vei avea la dispoziție, dacă te muți în zona 1 Mai.
În zona 1 Mai și în apropierea acesteia ai la dispoziție mai multe unități sanitare la care poți apela. Amintim în acest sens Spitalul Clinic Sfânta Maria, de pe Bulevardul Ion Mihalache, spitalele Elias și CF 2 din zona Domenii și MedLife Life Memorial Hospital de pe Calea Griviței. Găsești pe hartă și alte clinici private la care ai acces în împrejurimi.
Găsești câteva restaurante pe Bulevardul Ion Mihalache și în apropierea Parcului Regele Mihai I, în special în Piața Charles de Gaulle. Ajungi destul de repede și în Piața Victoriei unde ai la dispoziție câteva restaurante de tip fast food - McDonald"™s, Subway, Springtime - și două cafenele Starbucks. Dacă pornești apoi pe Calea Victoriei ai la dispoziție numeroase localuri, inclusiv terase. Cu mașina poți să ajungi rapid și la mall-ul Băneasa Shopping CIty unde ai la dispoziție numeroase restaurante, fast food-uri, cafenele și cofetării. Aruncă o privire pe hartă și vezi unde poți lua masa în oraș, dacă te muți în zona 1 Mai.
În zona intersecției dintre Bulevardul Ion Mihalache și Calea Griviței găsești mai multe bancomate - OTP Ban, BRD, BCR. Alte sucursale bancare și ATM-uri sunt disponibile pe Bulevardul Ion Mihalache și în zona Piața Victoriei. Consultă harta. Află ce alte opțiuni ai în apropierea casei.
Înainte să pleci...
Ești sigur că ai văzut și aceste proprietăți?
7.000 € / lună
București, Iancu Nicolae
14 camere
883 mp
830 mp teren
7.500 € / lună
București, Iancu Nicolae
6 camere
450 mp
1.000 mp teren
7.500 € / lună
București, Pipera
7 camere
530 mp
590 mp teren
Creează alertă
Salvează căutarea ca să primești pe email ultimele anunțuri publicate
Case individuale cu 4+ camere de închiriat în zona Banu Manta, Sector 1
Cere detalii prin email
*
*
*
*
Detaliile tale de contact vor fi partajate cu Svn Romania | Residentialist | Victoriei