Casă la roșu în localitatea Almaș, Arad.

58.500 €

Almaș, Județul Arad

Nr. cam.:
7
Sup. utilă:
300 mp
Sup. teren:
1.201 mp
Tip prop.:
Individuală
  • • Locație aproximativă

Descriere casă

PROPERTY LAB vă prezintă spre vânzare: Casă construcție nouă structură BCA, formată din regim de înalțime P+3E în localitatea Almaș, Arad. Suprafață Teren: 1.201 mp, conform C.F. Front Stradal: 22 ml Descrierea Proprietății: Vă prezentăm o oportunitate rară de a achiziționa o casă nouă, situată într-o zonă foarte bună a localității Almas. Această proprietate este ideală pentru o familie care dorește un cămin confortabil și călduros. Comuna Almaș este situată în județul Arad, România. Această casă face parte din localitatea Almaș, care este localizată în partea de vest a țării, la 10 km de orașul Sebiș și 25 km de stațiunea Moneasa, cea mai oxigenată stațiune din România. Zona se caracterizează prin peisaje pitorești și activități agricole. Almaș este cunoscută pentru obiceiurile și tradițiile sale populare, ce includ sărbători specifice, muzică și dansuri tradiționale. Sărbătorile de Crăciun și Paște sunt deosebit de importante, cu diverse practici ce păstrează spiritul comunității. Casele din localitate reflectă stiluri arhitecturale specifice zonei, multe dintre acestea având elemente tradiționale. Biserica locală este un punct de referință important și adesea reprezintă centrul comunității. - Conectivitate Utilități: Proprietatea dispune de apă curentă, electricitate în regim trifazat. Canalizare la stradă. - Teren Generos: Cu o suprafață de 1201 mp, terenul oferă multiple posibilități de utilizare. Este ideal pentru amenajări exterioare, grădinărit sau pentru construirea de facilități suplimentare. Curtea casei este spațioasă și se poate amenaja frumos. Compartimentarea Casei: Parterul este format din Bucătărie deschisă cu sufragerie, două băi, cameră tehnică și garaj. Etjul 1 fiind format din două dormitoare mari, un șifonier și o baie mare. Etajul 2 este format din două dormitoare mari. Etajul 3 este format din două balcoane pe părțile exterior opuse, cu o priveliște superbă asupra localității și două dormitoare mici, în mijloc. Casa este dotată cu acoperiș din țiglă, burlane și jgheaburi montate. Avantaje: Proprietatea deține și o casă veche cu prispă, cît și un Hambar construit din lemn de stejar. - Zonă liniștită: Atmosferă caldă și primitoare, Amplasamentul zonal al proprietății oferă acces facil la toate facilitățile localității: școală, magazine, instituții medicale și transport public. - Spațiu Verde: Terenul mare oferă un mediu plăcut și liniștit, ideal pentru relaxare și petrecerea timpului în aer liber. - Potrivit pentru Rezidență, cât și pentru Investiție: Având în vedere dimensiunea terenului și a casei, proprietatea se pretează atât pentru locuire, cât și pentru investiție. Pentru mai multe informații sau pentru a programa o vizionare, nu ezitați să ne contactați. Aceasta este ocazia pe care așteptați să o transformați în căminul vostru perfect! Sper că această propunere îndeplinește așteptările dumneavoastră. Claudiu Coșeri - Consultant Imobiliar Propertylab Telefon: CP2276288
Citește mai mult Citește mai puțin
Nemobilat Curte 3 Parcări 1 Garaj Zonă rurală

Detalii casă

ID anunț: X5I1111K1 Copiat! 274196364 Copiat!
Actualizat în: 19 Februarie 2026
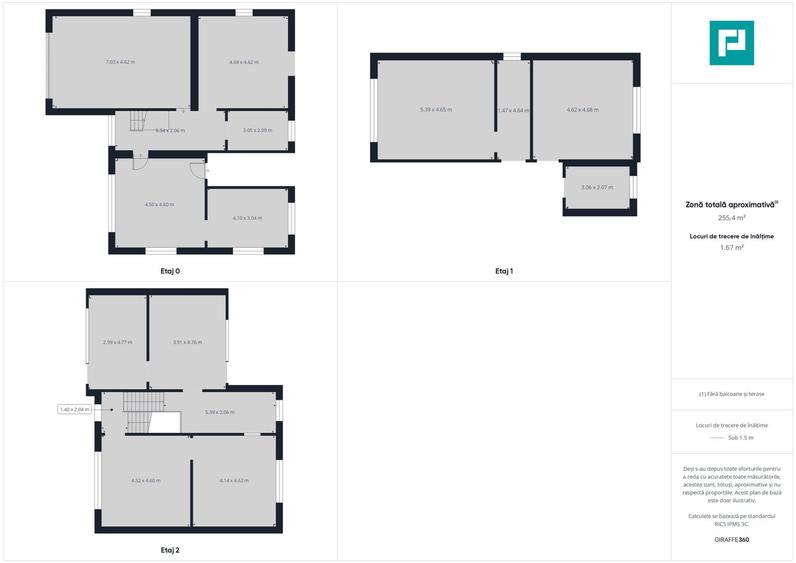
Suprafață construită: 120 mp
Suprafață desfășurată: 360 mp
Nr. bucătării: 1
Nr. băi: 2
Nr. balcoane / Terase / Logii: 2
Front stradal: 22.0 m
Învelitoare acoperiș: Țiglă
An construcție: 1998 (La roșu)
Structură rezistență: BCA
Regim înălțime: P+3E

Utilități

Diverse
Telecomandă poartă garaj
Facilități imobil
Acoperiș
Utilități
Curent Apă Canalizare
Amenajare străzi
Iluminat stradal Mijloace de transport în comun Asfaltate
Comision
standard

Disponibilitate proprietate:

Imediat

Detalii despre preț și costuri

Costuri cu achiziția

Fără credit
4.151 RON
Credit ipotecar
5.368 RON
Noua casă
438 RON+ taxe notariale

i

Costuri adiționale mai puțin știute la achiziție: taxe notariale, comisioane etc.

Proprietăți recomandate

Detalii de contact

PROPERTY LAB

Claudiu Coseri Real Estate Consultant Arad

PROPERTY LAB

Abonează-te la newsletter să fii primul care primește cele mai noi recomandări de proprietăți și sfaturi de la experți.

CONTACT

Creează alertă

Salvează căutarea ca să primești pe email ultimele anunțuri publicate

Case individuale cu 4+ camere de vânzare în Almaș, Județul Arad