Va propunem spre vanzare o vila individuala, construita in anul 2009, cu o arhitectura eleganta si functionala, situata pe un teren generos de 460 mp, cu o amprenta la sol de 143 mp si curte libera de 317 mp, ideala pentru relaxare si timp petrecut in aer liber.
Imobilul este pozitionat eficient in partea din spate a terenului, asigurand o zona verde extinsa in fata casei, ideala pentru amenajare terasa, spatiu de joaca sau gradina.
Proprietatea beneficiaza de o deschidere ampla la strada de 22.59 ml, iar fata de vecini are delimitari clare: 21.50 ml si 20.10 ml lateral, 19.74 ml pe spate.
Constructia este pe regim de inaltime Parter + Mansarda, solida, cu structura din beton armat si caramida si compartimentare excelenta:
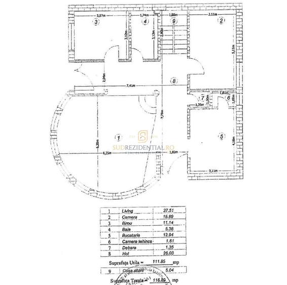
Parter – Suprafata utila: 116.89 mp
- Living spectaculos – 37.51 mp, dormitor – 15.89 mp, birou – 11.14 mp, bucatarie inchisa – 12.94 mp, baie – 5.38 mp, camera tehnica – 1.61 mp, debara – 1.35 mp, hol central – 26.03 mp
Etaj – Suprafata utila: 87.12 mp
- Dormitor 1 – 21.69 mp, dormitor 2 – 18.54 mp, baie principala – 9.39 mp, baie secundara – 4.76 mp, dressing – 9.27 mp, hol – 16.75 mp, 2 balcoane – 0.84 mp fiecare
Finisaje interioare: gresie, faianta, parchet, usi celulare, tamplarie PVC cu geam termopan, centrala termica. Casa se vinde finisata, partial mobilata, fiind gata pentru utilizare.
Utilitati complete: alimentare cu apa, energie electrica si gaze naturale.
Imobilul dispune suplimentar de un beci util pentru depozitare si de put forat, care asigura o sursa alternativa de apa – un avantaj important pentru irigarea gradinii, reducerea costurilor de intretinere si independenta fata de reteaua publica.
Curtea este complet amenajata cu gazon natural si include doua locuri de parcare, cu zona de acces pietonal delimitata. Imobilul este imprejmuit cu gard din beton si gard metalic, asigurand intimitate, siguranta si un aspect unitar al proprietatii.
Vila este situata intr-una dintre cele mai cautate zone rezidentiale din Comuna Berceni, Ilfov, intr-un cartier linistit si modern, cu vecini de calitate si acces pietonal rapid catre Bulevardul 1 Mai – principala artera de circulatie a comunei Beceni.
Accesul din Bucuresti catre Comuna Berceni se realizeaza prin Soseaua Berceni, o artera de circulatie importanta care a fost modernizata si extinsa in ultimii ani, inclusiv prin realizarea Pasajului peste DNCB – un proiect de infrastructura menit sa imbunatateasca conectivitatea intre Sudul Capitalei si zona metropolitana Ilfov.
Locuinta se afla la:
- doar cateva minute minute cu masina fata de A0 si Centura Bucuresti (DNCB)
- 4 km fata de statia de metrou Tudor Arghezi
- In apropiere se afla Park & Ride Tudor Arghezi cu 350 locuri de parcare, solutie ideala pentru cei care lucreaza in Bucuresti: masina ramane in siguranta, iar metroul reduce costurile si timpul de deplasare.
Zona beneficiaza deja de metrou, iar magistrala va fi extinsa in interiorul Comunei Berceni, acoperind inclusiv zona in care este amplasat imobilul – un avantaj major pentru viitorii proprietari.
In imediata apropiere se gasesc: unitati de invatamant, magazine mixte, supermarketuri si centre comerciale importante precum Carrefour, Lidl, Mega Image, Profi, Penny – toate accesibile rapid.
Sediul central - Timișoara
Bulevardul Victor Babeș nr. 2, 300230, Timișoara, România
Tel: +40.374.40.44.98 / Fax: +40.256.401.179
Email: suport@imobiliare.ro
Luni - Vineri 08:00 - 20:00
Punct de lucru - București: Iride Business Park, Bld. Dimitrie
Pompeiu 9-9A, Clădirea B2B,
020335, Sector 2, București, România
CONTACT
Sediul central - Timișoara
Bulevardul Victor Babeș nr. 2, 300230, Timișoara, România
Tel: +40.374.40.44.98 / Fax: +40.256.401.179
Email: suport@imobiliare.ro
Luni - Vineri 08:00 - 20:00
Punct de lucru - București: Iride Business Park, Bld. Dimitrie
Pompeiu 9-9A, Clădirea B2B,
020335, Sector 2, București, România
Sună acum și cere detalii sau programează o vizionare.
Nu rata ocazia să afli mai multe!
Sună acum și cere detalii sau programează o vizionare.
Cere detalii prin email
*
*
*
*
Stații autobuz
Stații metrou
Parcări
Restaurant
Statia Facultativa, linia 125
aprox.
920 m
Statie Facultativa, linia 125
aprox.
1080 m
Statia Romprim, linia 125
aprox.
1081 m
Statia REMAT, linia 125
aprox.
1609 m
Statia Upetrolam, linia 125
aprox.
1748 m
Tudor Arghezi (M2)
aprox.
1660 m
Parcare
aprox.
1651 m
Silflor Move
aprox.
1681 m
Înainte să pleci...
Ești sigur că ai văzut și aceste proprietăți?
225.000 €
Județul Ilfov, Berceni
4 camere
125 mp
250 mp teren
230.000 €
Județul Ilfov, Berceni
5 camere
204 mp
460 mp teren
199.900 €
Județul Ilfov, Berceni
5 camere
120 mp
300 mp teren
210.000 €
Județul Ilfov, Berceni
5 camere
150 mp
380 mp teren
246.990 €
Județul Ilfov, Berceni
6 camere
240 mp
275 mp teren
215.000 €
Județul Ilfov, Berceni
5 camere
150 mp
360 mp teren
Creează alertă
Salvează căutarea ca să primești pe email ultimele anunțuri publicate
Case individuale cu 4+ camere de vânzare în Berceni, Județul Ilfov
Cere detalii prin email
*
*
*
*
Detaliile tale de contact vor fi partajate cu Sud Rezidential
Preț total1.182.438 RON (232.119 €)
Costuri cu achiziția10.795 RON
Preț de achiziție1.171.643 RON
Costuri cu achiziția10.795 RON
Comision agenție Întreabă agenţia
Onorariu notarial9.038 RON
Taxă înscriere OCPI1.757 RON
Preț de achiziție1.171.643 RON
Preț locuință1.171.643 RON
TVA 0%Inclus în prețul cerut
Cost total191.584 RON (37.608 €)
Avans (15%)175.746 RON
Cost achitat în prima lună2.954 RON
Costuri cu achiziția12.884 RON
Cost achitat în prima lună2.954 RON
Comision analiză dosar
400 RON - 900 RON
Taxă evaluare imobil(până la)
900 RON
Rata lunară (variabilă)5.219 RON
Asigurare anuală imobil1.172 RON
Arhivă electronică102 RON
Poliță PAD130 RON
Asigurare de viață/lună Costul este variabil. În funcție de banca aleasă, procentul variază între 0.0259% și 0.035% din soldul creditului.
Costuri cu achiziția12.884 RON
Comision agenție Întreabă agenţia
Onorariu notarial9.038 RON
Taxă întabulare OCPI1.757 RON
Autentificare contract credit2.089 RON
Preț de achiziție1.171.643 RON
Preț locuință1.171.643 RON
TVA 0%Inclus în prețul cerut
Preț de achiziție1.171.643 RON
Preț locuință1.171.643 RON
TVA 0%
Inclus în prețul cerut
Avans minim565.445 RON
Credit pe 30 de ani606.198 RON
Cost achitat în prima lună
Taxa evaluare imobil(până la)
900 RON
Rata lunară (variabilă)4.259 RON
Depozit colateral12.777 RON
Comision de garantare FNGCIMM98 RON
Asigurare anuală imobil1.172 RON
Poliță PAD130 RON
Tarif arhivă electronică102 RON
Costuri adiționale1.312 RON + taxe notariale
Asigurare viață și complexă (opțională)Costul este variabil. În funcție de banca aleasă, procentul variază între 0.0259% și 0.035% din soldul creditului
Onorariu notarialconform tarif notarial
Taxă întabulare OCPI1.312 RON
i
Toate valorile de mai sus sunt estimative și nu reprezintă în mod obligatoriu costurile exacte pe care le veți primi de la companiile/instituțiile prin care veți încheia tranzacția.
Căutarea a returnat prea multe rezultate, ce pot reduce relevanța alertelor pe care le vei primi.
Îți recomandăm să aplici mai multe criterii de filtrare (ex: nr. camere, preț, zonă).