SVN Romania are placerea de a va propune in cele ce urmeaza o vila construita cu responsabilitate si bun gust, departe de zgomotul si aglomeratia urbana, ideala pentru o familie ce isi doreste securitate, liniste si aer curat.
Aceasta este amplasata in orasul Corbeanca (Tamasi), intr-o zona usor retrasa, impanzita de ansambluri rezidentiale finalizate, la doar cateva minute de strada principala (Sos. Unirii). Pozitionarea acesteia este una deosebita, intr-o zona linistita si plina de verdeata, in vecinatate regasindu-se o multitudine de zone comerciale cu magazine (complexul comercial Moara Corbeanca, restaurante, cafenele, farmacii, curatatorie haine, spalatorii auto, laborator analize medicale si multe altele), Mega Image, Lidl, Penny, Carrefour (in cadrul complexului DN1 Value Centre), cluburi de fitness, benzinarii, gradinite si scoli (atat de stat cat si private) si acces facil la mijloace de transport in comun.
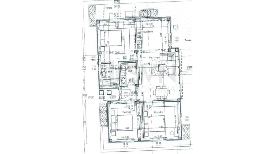
Vila individuala are regim de inaltime “Parter”, este construita pe un teren de 450 mp, cu o suprafata totala construita de 99.70 mp si suprafata utila 118.70 mp (incluzand cele 2 terase).
Imobilul beneficiaza de toate facilitatile necesare, fiind racordat la reteaua de gaze naturale, electricitate 220 V, canalizare si apa curenta.
Casa este construita cu materiale atent selectionate, de inalta calitate, foarte bine compartimentata, dispunand de 4 camere, din care 3 dormitoare, living cu zona de dining, bucatarie open space, 2 bai, 2 terase, gradina si 2 locuri de parcare interioare (inclusiv posibilitate de parcare in exterior, langa gardul proprietatii).
Astfel, intrand in detalii, la parter regasim urmatoarea configuratie:
accesul in vila se realizeaza prin intermediul unui vestibul – 2.70 mp;
din vestibul avem acces catre grupul sanitar comun, pentru vizitatori (3.80 mp) si catre un prim dormitor (12.00 mp);
living foarte spatios, bine iluminat (20.30 mp), open space cu zona de servire a mesei si cu bucataria primitoare (10.40 mp - bucatarie ce poate fi inchisa, conform preferintelor viitorilor proprietari);
din living regasim accesul catre dormitorul matrimonial spatios (14.50 mp) cu grup sanitar propriu (4.10 mp) si catre ultimul dormitor existent (13.10 mp);
din living si din dormitorul matrimonial exista iesiri pe o terasa deosebit de generoasa (30.50 mp) si mai departe accesul in gradina amenajata (pregatita pentru insamantarea gazonului), unde exista loc suficient pentru amenajarea unui spatiu de joaca pentru copii si in acelasi timp unde va puteti petrece timpul liber dupa bunul plac, alaturi de familie si cei dragi. In partea opusa a vilei, sub geamurile celor 2 dormitoare alaturate mai exista o a doua terasa (7.30 mp), spatiu unde poate fi amenajata de asemenea o zona de relaxare, in aer liber sau acoperita.
Design-ul si finisajele moderne, camerele luminoase si spatioase, materialele de cea mai buna calitate, dar si integrarea naturala intr-un ambient placut, primitor si o comunitate cu un stil de viata elitist fac din aceasta proprietate o destinatie de resedinta ideala.
Pentru orice detalii suplimentare, va stam cu placere la dispozitie si va asteptam cu mare drag la o vizionare, cu o programare prealabila.
Echipa SVN Romania este aici pentru Dumneavoastra, pentru a va facilita achizitia casei de vis!
Nu detinem informatii referitoare la certificatul energetic al imobilului.
Citește mai mult
Citește mai puțin
Acceptă animale de companie
Grădină
Centrală proprie
Încălzire prin pardoseală
2 Parcări
Sediul central - Timișoara
Bulevardul Victor Babeș nr. 2, 300230, Timișoara, România
Tel: +40.374.40.44.98 / Fax: +40.256.401.179
Email: suport@imobiliare.ro
Luni - Vineri 08:00 - 20:00
Punct de lucru - București: Iride Business Park, Bld. Dimitrie
Pompeiu 9-9A, Clădirea B2B,
020335, Sector 2, București, România
CONTACT
Sediul central - Timișoara
Bulevardul Victor Babeș nr. 2, 300230, Timișoara, România
Tel: +40.374.40.44.98 / Fax: +40.256.401.179
Email: suport@imobiliare.ro
Luni - Vineri 08:00 - 20:00
Punct de lucru - București: Iride Business Park, Bld. Dimitrie
Pompeiu 9-9A, Clădirea B2B,
020335, Sector 2, București, România
Sună acum și cere detalii sau programează o vizionare.
Cere detalii prin email
*
*
*
*
Școli
Terenuri sport
Parcuri
Spital
Scoala Nr. 1 Corbeanca
aprox.
1671 m
Scoala generala
aprox.
1711 m
Scoala Nr 1
aprox.
1717 m
Teren sportiv
aprox.
476 m
Pădurea Tămași
aprox.
523 m
Pădurea Corbeanca
aprox.
1333 m
Veterinary Clinic (en)
aprox.
1654 m
Înainte să pleci...
Ești sigur că ai văzut și aceste proprietăți?
240.000 €
Județul Ilfov, Corbeanca
4 camere
119 mp
500 mp teren
250.000 €
Județul Ilfov, Corbeanca
5 camere
141 mp
400 mp teren
240.000 €
Județul Ilfov, Corbeanca
4 camere
113 mp
280 mp teren
175.000 €
Județul Ilfov, Corbeanca
4 camere
120 mp
250 mp teren
220.000 €
Județul Ilfov, Balotești
5 camere
136 mp
600 mp teren
165.000 €
Județul Ilfov, Berceni
4 camere
120 mp
370 mp teren
Creează alertă
Salvează căutarea ca să primești pe email ultimele anunțuri publicate
Case individuale cu 4+ camere de vânzare în Corbeanca, Județul Ilfov
Cere detalii prin email
*
*
*
*
Detaliile tale de contact vor fi partajate cu Svn Romania | Residentialist | Victoriei
Preț total977.340 RON (191.849 €)
Costuri cu achiziția9.424 RON
Preț de achiziție967.916 RON
Costuri cu achiziția9.424 RON
Comision agenție Întreabă agenţia
Onorariu notarial7.972 RON
Taxă înscriere OCPI1.452 RON
Preț de achiziție967.916 RON
Preț locuință967.916 RON
TVA 0%Inclus în prețul cerut
Cost total159.281 RON (31.266 €)
Avans (15%)145.188 RON
Cost achitat în prima lună2.750 RON
Costuri cu achiziția11.343 RON
Cost achitat în prima lună2.750 RON
Comision analiză dosar
400 RON - 900 RON
Taxă evaluare imobil(până la)
900 RON
Rata lunară (variabilă)4.312 RON
Asigurare anuală imobil968 RON
Arhivă electronică102 RON
Poliță PAD130 RON
Asigurare de viață/lună Costul este variabil. În funcție de banca aleasă, procentul variază între 0.0259% și 0.035% din soldul creditului.
Costuri cu achiziția11.343 RON
Comision agenție Întreabă agenţia
Onorariu notarial7.972 RON
Taxă întabulare OCPI1.452 RON
Autentificare contract credit1.919 RON
Preț de achiziție967.916 RON
Preț locuință967.916 RON
TVA 0%Inclus în prețul cerut
Preț de achiziție967.916 RON
Preț locuință967.916 RON
TVA 0%
Inclus în prețul cerut
Avans minim361.695 RON
Credit pe 30 de ani606.222 RON
Cost achitat în prima lună
Taxa evaluare imobil(până la)
900 RON
Rata lunară (variabilă)4.260 RON
Depozit colateral12.780 RON
Comision de garantare FNGCIMM81 RON
Asigurare anuală imobil968 RON
Poliță PAD130 RON
Tarif arhivă electronică102 RON
Costuri adiționale1.108 RON + taxe notariale
Asigurare viață și complexă (opțională)Costul este variabil. În funcție de banca aleasă, procentul variază între 0.0259% și 0.035% din soldul creditului
Onorariu notarialconform tarif notarial
Taxă întabulare OCPI1.108 RON
i
Toate valorile de mai sus sunt estimative și nu reprezintă în mod obligatoriu costurile exacte pe care le veți primi de la companiile/instituțiile prin care veți încheia tranzacția.