De vanzare Vila Str. Daliei - Petresti, Corbeanca, Ilfov
Va propunem spre vanzare o proprietate exclusivista, situata in comuna Corbeanca, sat Petresti la mai putin de 3 minute de DN1, oferind acces rapid la zona de nord a capitalei.
Locatia ofera o oaza de liniste si aer curat datorita padurii Petresti aflata la 300m precum si vecini de calitate, casa fiind situata in cartierul ROMATSA.
Vila este pozitionata pe un teren in suprafata de 686 mp, cu o amprenta la sol de 160 mp.
Suprafata construita desfasurata a casei este de 400 mp si cuprinde parter, etaj si mansarda, respectiv o suprafata utila totala de 300 mp.
Structura de rezistenta este pe cadre, cu stalpi, grinzi si pansee din beton armat, iar peretii exteriori din caramida Porotherm. Izolatia exterioara este din polistiren de 10 cm, iar compartimentarea interioara este realizata din gips carton pe structura metalica cu izolatie de vata minerala.
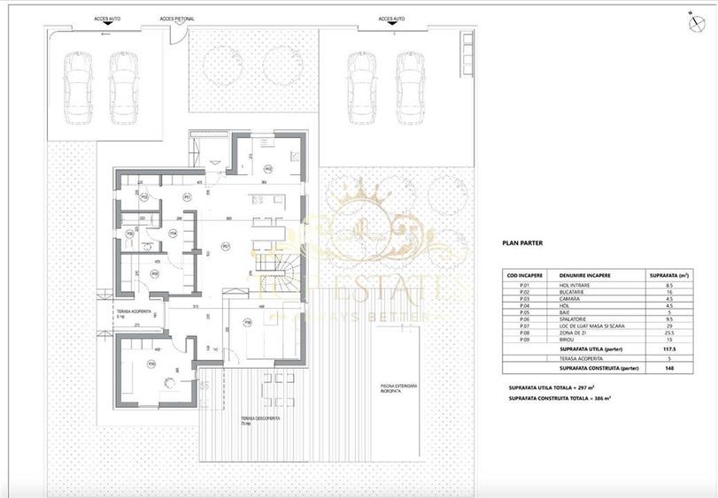
La parter, casa are un living generos, o bucatarie cu insula conectata la curent trifazic, loc de luat masa, o camera cu destinatia de dormitor sau birou, camera tehnica, spalatorie si camara.
La etaj sunt doua dormitoare matrimoniale, fiecare cu dressing si baie proprie. Dormitorul matrimonial orientat spre sud beneficiaza si de o terasa, iar baia acestuia este conectata cu spalatoria de la parter printr-un tub de rufe. Tot la etajul 1, langa dormitorul matrimonial orientat spre sud, mai este o camera ce poate fi folosita ca birou, camera de lectura sau camera pentru un nou nascut.
La mansarda se regaseste un spatiu locativ luminos, tip apartament, cu o camera de zi joaca (hobby), un dormitor, spatii depozitare si baie cu ventilatie naturala prin intermediul ferestrelor Velux.
Proprietatea este racordata la reteaua de utilitati a zonei, apa, canal, energie electrica trifazata, gaze naturale, iar pe acoperis exista posibilitatea montarii imediate de panouri solare.
Incalzirea casei se face cu ajutorul unei centrale termice proprii alimentata cu gaz, utilizand un sistem de incalzire in pardoseala, cu termostate de ambient in fiecare camera.
La nivelul acoperisului, pentru o invelitoare de calitate, s-a folosit tabla Bilka, iar pentru asigurarea confortului termic constructorul a izolat la interior intre capriori cu spuma termoizolanta in strat de 20-25 cm.
Curtea este imprejmuita cu gard de beton si metal, cu dublu acces auto, asigurandu-se 4 locuri de parcare, cu acces la priza trifazica pentru incarcarea masinii electrice.
La nivelul amenajării curții s-a acordat atenție zonelor verzi, aleile pricipale sunt prevazute cu sistem de degivrare, iar zona de living a parterului se deschide catre o terasa generoasa cu acces la punct de apa rece calda, scurgere, sursa de curent trifazic si cu posibilitate de extindere in lateralul casei in vederea amenajarii unui piscine cu dimensiune 3.5m x 8m.
Imobilul a fost construit pe baza proiectului insusit de echipa de arhitecti, care a raspuns si cerintelor unui consultant in Feng Shui.
In functie de optiunea cumparatorului, constructorul poate oferi suport impreuna cu echipa de arhitecti, in procesul de personalizare a solutiilor de amenajare si mobilare.
Partea juridica este pregatita pentru vanzare, iar pretul dorit de proprietar este de 497.000 Euro, usor negociabil! Pretul nu este supus tva, proprietatea fiind pe persoana fizica!
We offer for sale an exclusive property, located in Corbeanca commune, Petresti village, less than 3 minutes from DN1, providing quick access to the Northern area of Bucharest.
The location offers an oasis of tranquility and fresh air due to the Petrești forest located 300 meters away, as well as quality neighbors, as the house is located in the ROMATSA neighborhood.
The villa is positioned on a plot of 686 sqm, with a ground footprint of 160 sqm.
The total built area of the house is 400 sqm and includes a ground floor, first floor, and attic, having a total usable area of 300 sqm.
The structural frame is made of reinforced concrete beams and columns, with exterior walls of Porotherm brick. The exterior insulation is made of 10 cm polystyrene, and the interior partitioning is done with gypsum board on a metal frame with mineral wool insulation.
On the ground floor, the house features a spacious living room, a kitchen with an island, connected to three-phase electricity, a dining area, a room intended as a bedroom or office, a technical room, a laundry room, and a pantry.
On the first floor, there are two master bedrooms, each with its own dressing room and bathroom. The south-facing master bedroom also has a terrace, and its bathroom is connected to the laundry room on the ground floor through a laundry chute. Also on the first floor, next to the south master bedroom, there is a room that can be used as an office, reading room, or nursery.
The attic houses a bright living space, designed as a standalone apartment, with a livingroom playroom, a bedroom, storage spaces, and a bathroom with natural ventilation through Velux windows.
The property is connected to the local utilities network, including water, sewer, three-phase electricity, and natural gas. There is also the possibility of immediate installation of solar panels on the roof.
The house is heated with its own gas boiler, using an underfloor heating system with room thermostats in each room.
For the roof covering, Bilka sheet metal was used, and to ensure thermal comfort, the builder insulated the interior between the rafters with 20-25 cm thick thermal foam.
The yard is enclosed with a concrete and metal fence, with double car access, providing 4 parking spaces and access to a three-phase socket for charging an electric car.
In terms of yard arrangement, attention was given to the green areas, the main walkways are equipped with a de-icing system, and the living room area opens onto a generous terrace with access to cold hot water points, drainage, three-phase power source, and the possibility of extension on the side of the house to set up a 3.5m x 8m pool.
The property was built based on a project endorsed by a team of architects, who also met the requirements of a Feng Shui consultant.
Depending on the buyer's preference, the builder can offer support together with the team of architects in the process of customizing the furnishing and decoration solutions.
The legal part is ready for sale, and the owner's desired price is 497.000 Euro, easily negotiable! The price is not subject to VAT, the property being owned by an individual!
Citește mai mult
Citește mai puțin
Nemobilat
Piscină
Centrală proprie
Încălzire prin pardoseală
4 Parcări
Sediul central - Timișoara
Bulevardul Victor Babeș nr. 2, 300230, Timișoara, România
Tel: +40.374.40.44.98 / Fax: +40.256.401.179
Email: suport@imobiliare.ro
Luni - Vineri 08:00 - 20:00
Punct de lucru - București: Iride Business Park, Bld. Dimitrie
Pompeiu 9-9A, Clădirea B2B,
020335, Sector 2, București, România
CONTACT
Sediul central - Timișoara
Bulevardul Victor Babeș nr. 2, 300230, Timișoara, România
Tel: +40.374.40.44.98 / Fax: +40.256.401.179
Email: suport@imobiliare.ro
Luni - Vineri 08:00 - 20:00
Punct de lucru - București: Iride Business Park, Bld. Dimitrie
Pompeiu 9-9A, Clădirea B2B,
020335, Sector 2, București, România
Sună acum și cere detalii sau programează o vizionare.
Nu rata ocazia să afli mai multe!
Sună acum și cere detalii sau programează o vizionare.
Cere detalii prin email
*
*
*
*
Școli
Supermarket
Parcări
Parcuri
Terenuri sport
Spital
Restaurant
Scoala Nr. 1 Corbeanca
aprox.
1548 m
Scoala Nr 1
aprox.
1850 m
Scoala generala
aprox.
1869 m
Supermarket
aprox.
1275 m
Parcare
aprox.
1238 m
Parcare
aprox.
1362 m
Parcare
aprox.
1736 m
Parcare
aprox.
1789 m
Parcare
aprox.
1902 m
Parcare
aprox.
1945 m
Padurea Petresti
aprox.
786 m
Pădurea Corbeanca
aprox.
1567 m
Teren sportiv
aprox.
1157 m
Veterinary Clinic (en)
aprox.
1672 m
Biker's Club
aprox.
1274 m
Înainte să pleci...
Ești sigur că ai văzut și aceste proprietăți?
419.000 €
Județul Ilfov, Corbeanca
6 camere
164 mp
469 mp teren
380.000 €
Județul Ilfov, Corbeanca
4 camere
156 mp
1.080 mp teren
299.900 €
Județul Ilfov, Corbeanca
4 camere
120 mp
200 mp teren
360.000 €
Județul Ilfov, Corbeanca
4 camere
171,21 mp
563 mp teren
430.000 €
Județul Ilfov, Corbeanca
5 camere
161 mp
342 mp teren
395.000 €
Județul Ilfov, Corbeanca
4 camere
205 mp
704 mp teren
Creează alertă
Salvează căutarea ca să primești pe email ultimele anunțuri publicate
Case individuale cu 4+ camere de vânzare în Corbeanca, Județul Ilfov
Cere detalii prin email
*
*
*
*
Detaliile tale de contact vor fi partajate cu Top Estates
Preț total2.552.326 RON (500.917 €)
Costuri cu achiziția19.962 RON
Preț de achiziție2.532.364 RON
Costuri cu achiziția19.962 RON
Comision agenție Întreabă agenţia
Onorariu notarial16.163 RON
Taxă înscriere OCPI3.799 RON
Preț de achiziție2.532.364 RON
Preț locuință2.532.364 RON
TVA 0%Inclus în prețul cerut
Cost total407.353 RON (79.946 €)
Avans (15%)379.855 RON
Cost achitat în prima lună4.314 RON
Costuri cu achiziția23.184 RON
Cost achitat în prima lună4.314 RON
Comision analiză dosar
400 RON - 900 RON
Taxă evaluare imobil(până la)
900 RON
Rata lunară (variabilă)11.280 RON
Asigurare anuală imobil2.532 RON
Arhivă electronică102 RON
Poliță PAD130 RON
Asigurare de viață/lună Costul este variabil. În funcție de banca aleasă, procentul variază între 0.0259% și 0.035% din soldul creditului.
Costuri cu achiziția23.184 RON
Comision agenție Întreabă agenţia
Onorariu notarial16.163 RON
Taxă întabulare OCPI3.799 RON
Autentificare contract credit3.222 RON
Preț de achiziție2.532.364 RON
Preț locuință2.532.364 RON
TVA 0%Inclus în prețul cerut
Preț de achiziție2.532.364 RON
Preț locuință2.532.364 RON
TVA 0%
Inclus în prețul cerut
Avans minim1.926.023 RON
Credit pe 30 de ani606.341 RON
Cost achitat în prima lună
Taxa evaluare imobil(până la)
900 RON
Rata lunară (variabilă)4.260 RON
Depozit colateral12.780 RON
Comision de garantare FNGCIMM211 RON
Asigurare anuală imobil2.532 RON
Poliță PAD130 RON
Tarif arhivă electronică102 RON
Costuri adiționale2.672 RON + taxe notariale
Asigurare viață și complexă (opțională)Costul este variabil. În funcție de banca aleasă, procentul variază între 0.0259% și 0.035% din soldul creditului
Onorariu notarialconform tarif notarial
Taxă întabulare OCPI2.672 RON
i
Toate valorile de mai sus sunt estimative și nu reprezintă în mod obligatoriu costurile exacte pe care le veți primi de la companiile/instituțiile prin care veți încheia tranzacția.