Casă tip duplex I 3 camere I Curte I Panouri solare I Cristian

195.000 € + TVA

Cristian, Județul Sibiu

Nr. cam.:
3
Sup. utilă:
103 mp
Sup. teren:
479 mp
Tip prop.:
Individuală
  • • Locație aproximativă
  • • Vizionare prin apel video

Descriere casă

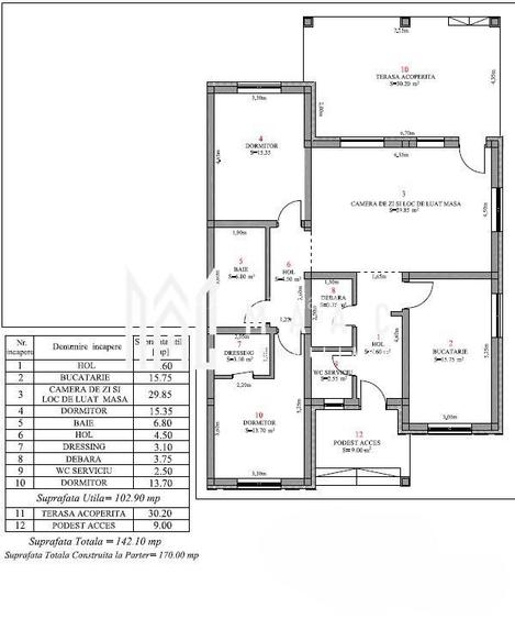
MAAC Imobiliare propune spre vânzare o parte a unei case tip duplex, construită și intabulată în 2025, amplasată într-o zonă liniștită din comuna Cristian. Proprietatea dispune de un teren de 479 mp, o amprentă la sol de 142 mp, o suprafață utilă de 103 mp, două locuri de parcare și curte proprie, oferind un echilibru ideal între confort și funcționalitate. Locuința este compartimentată eficient, cu un living generos prevăzut cu zonă de dining și acces pe terasă, bucătărie separată, două dormitoare (unul dintre ele dotat cu dressing), baie principală, baie de serviciu, cameră tehnică și hol de acces. De asemenea, podul este accesibil prin scară ascunsă și poate fi folosit ca spațiu suplimentar de depozitare. Construcția este realizată din cărămidă pe fundație de beton izolată cu polistiren extrudat, pereții exteriori fiind termoizolați cu polistiren de 15 cm, iar tavanul cu spumă poliuretanică cu celulă închisă. Acoperișul este executat din cherestea cu folie anticondens și acoperit cu țiglă Bramac gri antracit, completat de panouri solare. Tâmplăria PVC cu 3 foi de sticlă și peretele comun dublat contribuie la un nivel ridicat de izolare fonică și termică. Proprietatea este racordată la gaz, apă, canalizare și electricitate, având instalațiile interioare finalizate, încălzire în pardoseală, precum și panouri solare cu baterii de stocare deja instalate. Construită conform noilor standarde, locuința se încadrează în clasa energetică A. Predarea este programată pentru mai 2026, în stadiul de exterior la cheie, iar interiorul poate fi livrat la alb sau la cheie, în funcție de preferințele viitorului proprietar. Pentru mai multe detalii, contactați MAAC Imobiliare și specificați ID CP2937678
Citește mai mult Citește mai puțin
Nemobilat Grădină Curte Centrală proprie Încălzire prin pardoseală 2 Parcări

Detalii casă

ID anunț: XCSI111KC Copiat! 275084301 Copiat!
Actualizat în: 25 Februarie 2026
Suprafață desfășurată: 170 mp
Nr. bucătării: 1
Nr. băi: 2
Suprafață terase: 30 mp
Învelitoare acoperiș: Țiglă
An construcție: 2025
Structură rezistență: Cărămidă

Utilități

Pereți
Vopsea lavabilă
Ușă intrare
PVC
Izolații termice
Exterior Interior
Ferestre cu geam termopan
PVC
Contorizare
Apometre Contor gaz
Utilități
Curent Apă Canalizare CATV Gaze Telefon
Internet
Cablu
Amenajare străzi
Iluminat stradal Mijloace de transport în comun Asfaltate
Comision
standard

Disponibilitate proprietate:

Imediat

Puncte de interes

Mijloace transport
bus-station
Biserica Strand
Stații autobuz aprox. 386 m
bus-station
Maramuresului
Stații autobuz aprox. 386 m
bus-station
Strand
Stații autobuz aprox. 522 m
bus-station
Lidl
Stații autobuz aprox. 531 m
Școală
school
Scoala Nr. 1
Școli aprox. 570 m
school
Scoala Gimnaziala Turnisor
Școli aprox. 768 m
kindergarten
Hermania
Gradinițe aprox. 1079 m
university
Facultatea de Stiinte Agricole
Universități aprox. 1198 m
Recreere
sports-ground
Teren sportiv
Terenuri sport aprox. 281 m
park
Parcul Strand
Parcuri aprox. 463 m
supermarket
Lidl
Supermarket aprox. 497 m
restaurant
McDonald's
Restaurant aprox. 545 m

Detalii despre preț și costuri

Costuri cu achiziția

Fără credit
11.002 RON
Credit ipotecar
13.116 RON
Noua casă
1.342 RON+ taxe notariale

i

Costuri adiționale mai puțin știute la achiziție: taxe notariale, comisioane etc.

Proprietăți similare

Casă individuală cu 4 camere în Cristian
177.000 €
Județul Sibiu, Cristian
4 camere
120 mp
140 mp teren
Casă individuală cu 4 camere în Cristian
210.000 €
Județul Sibiu, Cristian
4 camere
100 mp
200 mp teren
Casă individuală cu 4 camere în Cristian
210.000 €
Județul Sibiu, Cristian
4 camere
136 mp
250 mp teren

Detalii de contact

MAAC Imobiliare

Catalin Ursu Consultant Imobiliar

MAAC Imobiliare
PRO

Abonează-te la newsletter să fii primul care primește cele mai noi recomandări de proprietăți și sfaturi de la experți.

CONTACT

Creează alertă

Salvează căutarea ca să primești pe email ultimele anunțuri publicate

Case individuale cu 3 camere de vânzare în Cristian, Județul Sibiu