1

Casă 11 camere cu livadă pe Strada Republicii, Dragomirești-Deal

220.000 €

Dragomirești-Deal, Județul Ilfov

Nr. cam.:
11
Sup. utilă:
365 mp
Sup. teren:
938 mp
Tip prop.:
Individuală
  • • Comision 0%
  • • Exclusivitate
  • • Locație exactă

Descriere casă

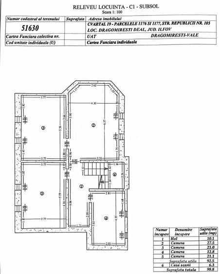
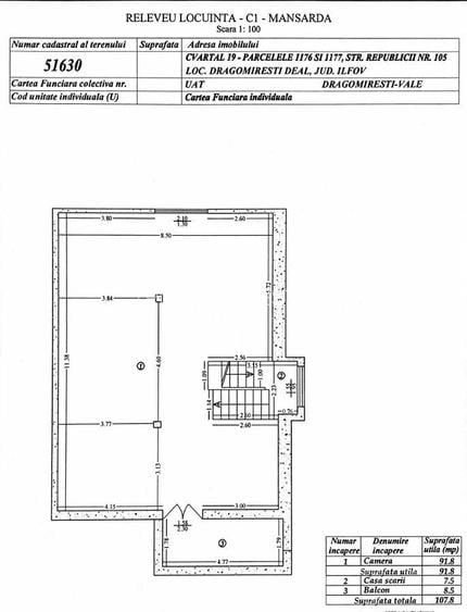
Proprietate deosebită, situată într-o zonă liniștită și bine poziționată din Dragomirești-Deal, pe Strada Republicii, drumul principal al localității, la doar 500 m de centrul localității (Centrul Bucuriei – CB). Casa oferă un confort sporit prin spațiile generoase, compartimentarea practică și curtea mare, ideală pentru o familie care caută un spațiu rezidențial elegant, confortabil și bine organizat. Detalii tehnice: Suprafață utilă: 495 mp Suprafață locuibilă (parter + etaj): 252 mp Suprafață teren: 938 mp Deschidere la stradă: 12 m An construcție: 1998 An finalizare finisaje: 2010 Compartimentare: Total camere: 11 Dormitoare: 6 Bucătării: 1 Băi: 2 Balcoane: 2 Terasă: 1 Garaj: subteran Locuri de parcare exterioare: 2 Dotări și utilități: Toate utilitățile: apă, gaz, energie electrică, canalizare Încălzire proprie Ferestre mari, cu lumină naturală abundentă Curte spațioasă, cu zonă verde și spațiu de relaxare Mobilată parțial (nu toate bunurile vor rămâne la vânzare) Necesită izolare exterioară și reparații acoperiș cu accesorii Grădină și spațiu exterior: În spatele casei se află o livadă cu pomi fructiferi pe rod, inclusiv cireși, meri, peri, gutui, pruni, dud, smochini și un nectarin, oferind un ambient natural plăcut și intimitate. Avantaje și localizare: Proprietatea se află într-o zonă de case, cu vecini liniștiți și acces ușor către București și principalele puncte de interes din Ilfov. Poziționarea pe strada Republicii, artera principală din Dragomirești-Deal, asigură acces rapid, dar și o atmosferă calmă, ideală pentru rezidență permanentă.
Citește mai mult Citește mai puțin
Mobilat Parțial mobilat Grădină Curte Aer condiționat Calorifere Centrală proprie Beci 2 Parcări 1 Garaj Bine întreținut (Bună)

Detalii casă

ID anunț: XBE511092 Copiat! 275074053 Copiat!
Actualizat în: 23 Februarie 2026
Suprafață construită: 179 mp
Nr. bucătării: 1
Nr. băi: 2
Nr. balcoane / Terase / Logii: 2
Nr. terase: 1
Front stradal: 12.0 m
Învelitoare acoperiș: Tabla
An construcție: 1998 (Finalizată)
Structură rezistență: Beton
Regim înălțime: S+P+2E+M

Utilități

Pereți
Faianță Vopsea lavabilă
Podele
Gresie Parchet
Ușă intrare
PVC
Uși interior
PVC
Contorizare
Apometre Contor căldură Contor gaz
Bucătărie
Mobilată Utilată
Electrocasnice
Aragaz Frigider Mașină de spălat TV
Alte spații utile
Dressing
Utilități
Curent Apă Canalizare CATV Gaze Telefon
Internet
Cablu Wireless
Amenajare străzi
Iluminat stradal Mijloace de transport în comun Asfaltate
Comision
0%

Vecinătăți:

DNCB, Chiajna, Militari Residence, A1, A0, Bulevarul Iuliu Maniu, Rudeni,

Disponibilitate proprietate:

Imediat

Puncte de interes

Mijloace transport
bus-station
Statia Depou Legume Chiajna, linia 405,421
Stații autobuz aprox. 1001 m

Detalii despre preț și costuri

Costuri cu achiziția

Fără credit
10.454 RON
Credit ipotecar
12.500 RON
Noua casă
1.261 RON+ taxe notariale

i

Costuri adiționale mai puțin știute la achiziție: taxe notariale, comisioane etc.

Proprietăți similare

Casă individuală cu 4 camere în Dragomirești-Deal
230.000 €
Județul Ilfov, Dragomirești-Deal
4 camere
120 mp
300 mp teren
Casă individuală cu 6 camere în Dragomirești-Deal
210.000 €
Județul Ilfov, Dragomirești-Deal
6 camere
164,8 mp
800 mp teren
Casă individuală cu 4 camere în Dragomirești-Deal
210.000 €
Județul Ilfov, Dragomirești-Deal
4 camere
117,6 mp
480 mp teren

Detalii de contact

TRIMBITASU ESTATE

Alexandru Smadoiu Agent Imobiliar

4.58(4 review-uri)

TRIMBITASU ESTATE
PRO

Abonează-te la newsletter să fii primul care primește cele mai noi recomandări de proprietăți și sfaturi de la experți.

CONTACT

Creează alertă

Salvează căutarea ca să primești pe email ultimele anunțuri publicate

Case individuale cu 4+ camere de vânzare în Dragomirești-Deal, Județul Ilfov