BLITZ va propune spre vanzare in EXCLUSIVITATE o proprietate individuala aparte, situata intr-o zona strategica din aria metropolitana Cluj, in spatele viitorului Spital Regional, la limita padurii de pini, beneficiind de intimitate si privelisti panoramice spectaculoase.
Proprietatea este gandita multifunctional, fiind potrivita atat pentru o familie numeroasa, cat si pentru activitati comerciale sau investitionale (pensiune urbana, azil de batrani, clinica, sediu firma, activitati educationale sau corporate).
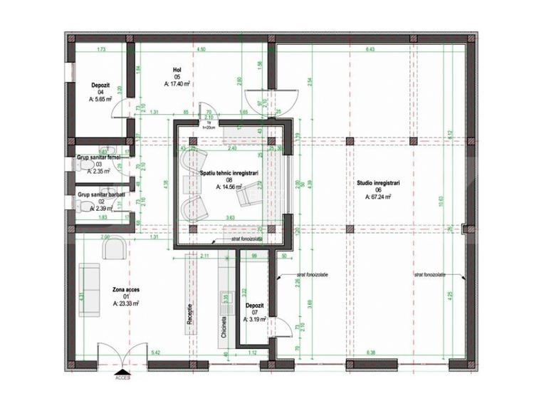
- Suprafata utila: 380 mp
- Teren: 525 mp
- Regim de inaltime: Demisol + Parter + Etaj + terasa circulabila
- Pozitionare unica: la limita padurii, fara constructii in fata
FUNCTIONALITATE dovedita – ideal pentru familie numeroasa sau business
DEMISOL:
– 136 mp utili dispune de un open space 67 mp, perfect pentru sala de activitati, recreere, conferinte, hobby sau spatiu comun
- Zona primire oaspeti
- 2 bai
- Spatii de depozitare
Ideal pentru activitati de grup, zone comune sau facilitati dedicate unui business.
PARTER – 114 mp ofera acces dublu si deci utilizare independenta
Dispune de 2 intrari separate, permitand amenajarea unui apartament complet independent de aprox. 60 mp utili, format din:
- 2 camere distincte
- Bucatarie
- Baie
- Dressing
Solutie excelenta ca si apartament de oaspeti sau: cazare separata (administrator, personal) ; birou / cabinet; inchiriere independenta
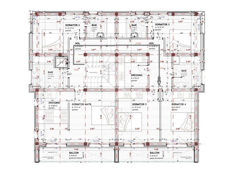
ETAJ – 131 mp utili
- 5 dormitoare
- 3 bai
- Dormitor matrimonial de 36 mp, cu baie proprie – ideal atat pentru uz rezidential, cat si pentru camera premium intr-o pensiune sau centru rezidential.
Compartimentare optima pentru: familie numeroasa; cazare multipla; camere individuale pentru rezidenti / clienti
ATU MAJOR: panorama + natura
- Priveliste panoramica deschisa, fara obstacole
- Pozitionare la marginea padurii de pini, aer curat si intimitate
- Terasa superioara circulabila, perfecta pentru relaxare, sau zone comune pentru clienti
DOTARI TEHINICE care sustin utilizarea intensiva:
- Centrala proprie, boiler, pompe
- Gaz, canalizare, curent trifazic 380V
- Internet fibra optica, Wi-Fi si TV in fiecare camera
- Sistem complet de securitate + supraveghere video
- Sistem multimedia profesional cu amplificare de semnal
- Aer conditionat inverter (demisol si living)
- Tablouri electrice separate pe fiecare zona
- Sistem fotovoltaic 8 kW + baterie 10 kW – prosumator activ
- Posibilitate incarcare masina electrica
EXTERIOR functional:
- Curte pavata cu 5–7 locuri de parcare
- Gradina amenajata, irigatie cu apa pluviala
- Foisor 15 mp + zona gratar
BONUS: Spatiu tehnic exterior din beton 20 mp (atelier / depozit)
O proprietate rara pe piata, cu suprafete mari, compartimentare flexibila si pozitionare exceptionala, care se adapteaza usor unei familii extinse, unui proiect de tip pensiune / azil / centru rezidential, sau unui business cu activitate mixta!
Cod oferta / ID BLITZ: P165328
Sediul central - Timișoara
Bulevardul Victor Babeș nr. 2, 300230, Timișoara, România
Tel: +40.374.40.44.98 / Fax: +40.256.401.179
Email: suport@imobiliare.ro
Luni - Vineri 08:00 - 20:00
Punct de lucru - București: Iride Business Park, Bld. Dimitrie
Pompeiu 9-9A, Clădirea B2B,
020335, Sector 2, București, România
CONTACT
Sediul central - Timișoara
Bulevardul Victor Babeș nr. 2, 300230, Timișoara, România
Tel: +40.374.40.44.98 / Fax: +40.256.401.179
Email: suport@imobiliare.ro
Luni - Vineri 08:00 - 20:00
Punct de lucru - București: Iride Business Park, Bld. Dimitrie
Pompeiu 9-9A, Clădirea B2B,
020335, Sector 2, București, România
Sună acum și cere detalii sau programează o vizionare.
Cere detalii prin email
*
*
*
*
Stații autobuz
Supermarket
Parcări
Parcuri
Terenuri sport
Spital
Farmacie
Restaurant
Bar
Cafenea
Tautiului S
aprox.
1064 m
Sub Cetate E
aprox.
1066 m
Tautiului N
aprox.
1085 m
Sub Cetate V
aprox.
1091 m
Poligonului V
aprox.
1385 m
Oncos S
aprox.
1389 m
Luxor N
aprox.
1394 m
Poligonului E
aprox.
1401 m
M-Poligonului E
aprox.
1401 m
Oncos N
aprox.
1402 m
Somesului
aprox.
1415 m
Luxor V
aprox.
1461 m
M-Complex Floresti
aprox.
1495 m
Iuliu Hossu
aprox.
1637 m
Eroilor E
aprox.
1907 m
Profi Floresti
aprox.
1968 m
Profi
aprox.
1968 m
Diana
aprox.
1987 m
Parcare
aprox.
775 m
Parcare
aprox.
1307 m
Parcare
aprox.
1334 m
Parcare
aprox.
1561 m
Parcare
aprox.
1580 m
Parcare
aprox.
1596 m
Parcare privata
aprox.
1669 m
Parcare
aprox.
1774 m
Parcare
aprox.
1814 m
Parcare
aprox.
1858 m
Parcare
aprox.
1897 m
Parcare cu plata
aprox.
1930 m
Parcare
aprox.
1989 m
Parcul Poligon
aprox.
756 m
Parc
aprox.
961 m
Parc
aprox.
1124 m
Faget Picnic Area
aprox.
1866 m
Teren Fotbal Sintetic
aprox.
1751 m
ConfiDens
aprox.
1531 m
Farmacia Tei
aprox.
1971 m
Farmacie
aprox.
1981 m
Atelierul de Pizza
aprox.
1358 m
Best Western Plus Fusion Hotel
aprox.
1942 m
City Cafe
aprox.
1617 m
Adveture of Henry
aprox.
1883 m
Înainte să pleci...
Ești sigur că ai văzut și aceste proprietăți?
520.000 €
Județul Cluj, Florești
9 camere
400 mp
997 mp teren
600.000 €
Județul Cluj, Florești
6 camere
360 mp
700 mp teren
499.000 €
Județul Cluj, Florești
8 camere
400 mp
650 mp teren
Creează alertă
Salvează căutarea ca să primești pe email ultimele anunțuri publicate
Case individuale cu 4+ camere de vânzare în Florești, Județul Cluj
Cere detalii prin email
*
*
*
*
Detaliile tale de contact vor fi partajate cu Blitz
Preț total2.824.196 RON (554.274 €)
Costuri cu achiziția21.781 RON
Preț de achiziție2.802.415 RON
Costuri cu achiziția21.781 RON
Comision agenție Întreabă agenţia
Onorariu notarial17.577 RON
Taxă înscriere OCPI4.204 RON
Preț de achiziție2.802.415 RON
Preț locuință2.802.415 RON
TVA 0%Inclus în prețul cerut
Cost total450.174 RON (88.350 €)
Avans (15%)420.362 RON
Cost achitat în prima lună4.584 RON
Costuri cu achiziția25.228 RON
Cost achitat în prima lună4.584 RON
Comision analiză dosar
400 RON - 900 RON
Taxă evaluare imobil(până la)
900 RON
Rata lunară (variabilă)12.483 RON
Asigurare anuală imobil2.802 RON
Arhivă electronică102 RON
Poliță PAD130 RON
Asigurare de viață/lună Costul este variabil. În funcție de banca aleasă, procentul variază între 0.0259% și 0.035% din soldul creditului.
Costuri cu achiziția25.228 RON
Comision agenție Întreabă agenţia
Onorariu notarial17.577 RON
Taxă întabulare OCPI4.204 RON
Autentificare contract credit3.447 RON
Preț de achiziție2.802.415 RON
Preț locuință2.802.415 RON
TVA 0%Inclus în prețul cerut
Preț de achiziție2.802.415 RON
Preț locuință2.802.415 RON
TVA 0%
Inclus în prețul cerut
Avans minim2.196.074 RON
Credit pe 30 de ani606.341 RON
Cost achitat în prima lună
Taxa evaluare imobil(până la)
900 RON
Rata lunară (variabilă)4.260 RON
Depozit colateral12.780 RON
Comision de garantare FNGCIMM234 RON
Asigurare anuală imobil2.802 RON
Poliță PAD130 RON
Tarif arhivă electronică102 RON
Costuri adiționale2.942 RON + taxe notariale
Asigurare viață și complexă (opțională)Costul este variabil. În funcție de banca aleasă, procentul variază între 0.0259% și 0.035% din soldul creditului
Onorariu notarialconform tarif notarial
Taxă întabulare OCPI2.942 RON
i
Toate valorile de mai sus sunt estimative și nu reprezintă în mod obligatoriu costurile exacte pe care le veți primi de la companiile/instituțiile prin care veți încheia tranzacția.