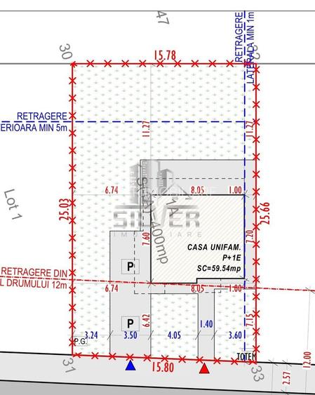
Casa individuala cu teren de 400 mp in Luna de Sus.

175.000 €

Luna de Sus, Județul Cluj

Nr. cam.:
4
Sup. utilă:
110 mp
Sup. teren:
400 mp
Tip prop.:
Individuală
  • • Locație aproximativă

Descriere casă

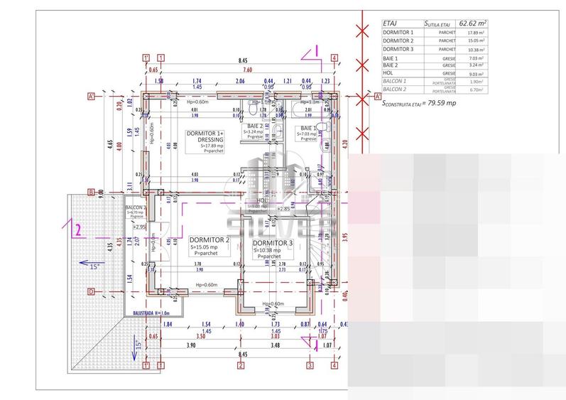
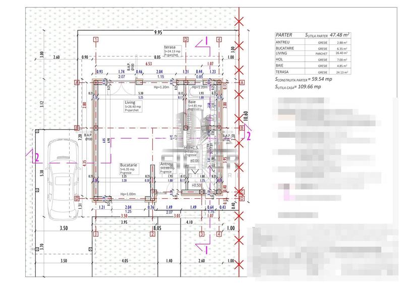
Silver Imobiliare ofera spre vanzare casa individuala cu teren de 400 mp in Luna De Sus cu acces facil spre Cluj-Napoca. Casa este dispusa pe 2 niveluri, P+E cu suprafata utila de 110 mp, fiind compartimentat astfel: Parter: - living impreuna cu bucataria ( posibilitate separare bucatarie) - baie; - terasa; - hol+casa scarilor; Etaj: - dormitor principal prevazut cu baie proprie; - dormitor 2 prevazut cu balcon; - dormitor 3; - baie ptr. deservire dormitoare 2-3; La nivel de constructie si finisaje casa se vinde la stadiul de semifinisat, dupa cum urmeaza: - fundatii stalpi si plansee din beton armat; - zidarie din caramida de 25 cm; - termosistem cu polistiren de 10cm/eps 80+tencuiala decorativa; - geamuri si usi principale termoizolante din Pvc cu 3 foi de sticla/5 camere; - pereti interiori tencuiti+2 straturi de glet; - acoperis placat total cu scandura, folie anticondens si tigla ceramica de tip Tondach; - izolatie la etaj de 20 cm constand in 10 cm de vata minerala si 10 cm de polistiren; - instalatiile sanitare si electrice trase pe pozitii; - rezervoare wc incastrate de tip TECE; - sapa de egalizare; - curtea amenajata si ingradita; - sistem de incalzire la ambele niveluri in pardoseala cu materiale TECE si centrala termica Ariston in condensare; CASA SE VINDE DE PE PERSOANA PERSOANA FIZICA, NEFIIND AFECTATA DE TVA. Pentru alte detalii sau programarea unei vizionari contactati-ne cu incredere!
Citește mai mult Citește mai puțin
Nemobilat Centrală proprie Încălzire prin pardoseală 2 Parcări Zonă rurală

Detalii casă

ID anunț: XF6T1102D Copiat! 271607133 Copiat!
Actualizat în: 31 Decembrie 2025
Suprafață construită: 60 mp
Suprafață desfășurată: 135 mp
Nr. bucătării: 1
Nr. băi: 3
Nr. balcoane / Terase / Logii: 1
Nr. terase: 1
Suprafață terase: 24 mp
Front stradal: 16.0 m
Învelitoare acoperiș: Țiglă
An construcție: 2024 (Finalizată)
Structură rezistență: Cărămidă
Regim înălțime: P+1E

Utilități

Ușă intrare
PVC
Izolații termice
Exterior
Ferestre cu geam termopan
PVC
Contorizare
Apometre Contor gaz
Utilități
Curent Apă Canalizare CATV Gaze
Internet
Cablu
Amenajare străzi
Iluminat stradal Mijloace de transport în comun Asfaltate
Comision
standard

Certificat energetic:

Clasa energetică: B

Disponibilitate proprietate:

Imediat

Puncte de interes

Recreere
restaurant
ElGandi
Restaurant aprox. 1631 m

Detalii despre preț și costuri

Costuri cu achiziția

Fără credit
8.911 RON
Credit ipotecar
10.766 RON
Noua casă
1.032 RON+ taxe notariale

i

Costuri adiționale mai puțin știute la achiziție: taxe notariale, comisioane etc.

Proprietăți recomandate

Detalii de contact

SILVER IMOBILIARE

Dorel Lacatus Senior Broker

SILVER IMOBILIARE
PRO

Abonează-te la newsletter să fii primul care primește cele mai noi recomandări de proprietăți și sfaturi de la experți.

CONTACT

Creează alertă

Salvează căutarea ca să primești pe email ultimele anunțuri publicate

Case individuale cu 4+ camere de vânzare în Luna de Sus, Județul Cluj