Imobilul este situat în orașul Pucioasa, județul Dâmbovița, pe Strada Republicii, una dintre arterele centrale ale localității, cu acces facil către principalele zone de interes ale orașului. Orașul se remarcă prin funcțiunea sa turistică, dezvoltată în jurul băilor terapeutice și a cadrului natural specific zonei colinare.
Conform PUG local, zona Str. Republicii este parte a terasei centrale a localității, una dintre cele mai populate vetre istorice ale orașului, cu acces facil la rețeaua de circulație locală.
Proprietatea face parte din „Ansamblul Urban” Pucioasa, monument istoric înscris în Lista Monumentelor Istorice, Monitorul Oficial nr. 113 bis / 15.02.2016, poziția 1024, cod LMI DB-II-a-B-1766. Acest statut conferă zonei un caracter urbanistic și arhitectural protejat, ceea ce crește valoarea istorică și patrimonială a amplasamentului.
Gradul de asigurare cu utilități al zonei și perspectivele sale de dezvoltare prin creșterea valorii comerciale susțin si justifică un demers de achiziție.
Regimul tehnic (potrivit Certificatului de Urbanism de informare – feb. 2026)
• Imobilul este situat în intravilanul orașului Pucioasa, pe Str. Republicii nr. 96B (fost nr. 78).
• Accesul la proprietate se realizează direct din drumul public – Strada Republicii, aflată în administrarea U.A.T. Oraș Pucioasa.
• UTR nr. 7 – Zona IS (instituții publice și servicii de interes preponderent) – subzona a – construcții administrative
• POT max = 20%
• CUT = 0,4
• Înălțime maximă admisă = 2,5 niveluri
►Terenul are o suprafață totală de 607 mp și este format din două parcele:
• CF 71753: 327 mp aferenți construcției, repartizați în cote indivize fiecărui apartament;
• CF 71793: 280 mp de curte, proprietate exclusivă a vânzătorului.
►Clădirea, cu regim de înălțime P+1E+Pod, este construită din cărămidă, beton și piatră, având un caracter solid și un potențial bun pentru finalizare și personalizare.
Cele 3 corpuri care formează clădirea au intrat într-un proces amplu de modernizare și recompartimentare, lucrările nefiind încă finalizate — avantaj pentru un cumpărător care dorește să își configureze spațiile după propriile nevoi.
Astfel, în urma lotizării au rezultat 4 apartamente cu suprafețe generoase, după cum urmează:
• Parter:
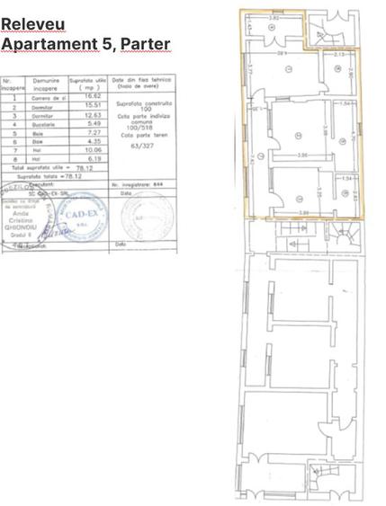
Apartament 5 – 3 camere, bucătărie, 2 băi, 2 holuri, 100 mp SC | 78,12 mp SU
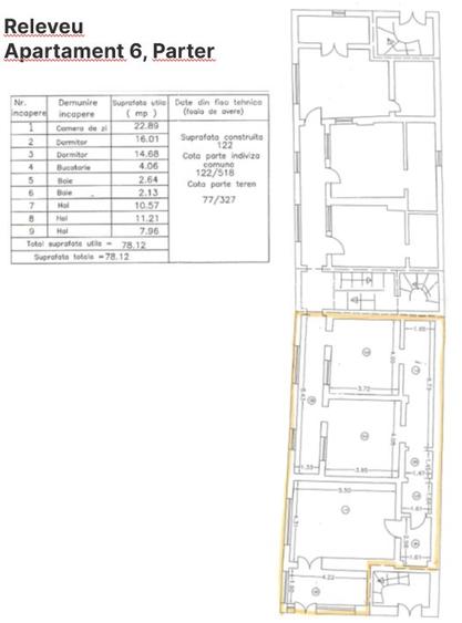
Apartament 6 – 3 camere, bucătărie, 2 băi, 3 holuri, 122 mp SC | 92,15 mp SU
• Etaj:
Apartament 9 – 3 camere, bucătărie, hol, casa scării, 108 mp SC | 81,95 mp SU
Apartament 10 – 3 camere, bucătărie, 2 băi, 4 holuri, 132 mp SC | 100,91 mp SU
• Părți comune: casele de scară
• Finisaje:
Apartamentul 5 este aproape finisat (parchet, gresie, zugrăveli, faianță). Celelalte apartamente sunt în stadiu gri, ideale pentru personalizare după preferințele cumpărătorului.
Vanzatorul isi exprima disponibilitatea de a analiza orice oferta serioasa primita, cu conditia ca aceasta sa fie rezonabila, ancorata in realitatea pietei imobiliare si sa reflecte o intentie reala de achizitie.
Toate ofertele vor fi evaluate individual, in functie de valoarea propusa in raport cu piata, conditiile de plata si disponibilitatea cumparatorului de a parcurge rapid pasii necesari finalizarii tranzactiei.
Sediul central - Timișoara
Bulevardul Victor Babeș nr. 2, 300230, Timișoara, România
Tel: +40.374.40.44.98 / Fax: +40.256.401.179
Email: suport@imobiliare.ro
Luni - Vineri 08:00 - 20:00
Punct de lucru - București: Iride Business Park, Bld. Dimitrie
Pompeiu 9-9A, Clădirea B2B,
020335, Sector 2, București, România
CONTACT
Sediul central - Timișoara
Bulevardul Victor Babeș nr. 2, 300230, Timișoara, România
Tel: +40.374.40.44.98 / Fax: +40.256.401.179
Email: suport@imobiliare.ro
Luni - Vineri 08:00 - 20:00
Punct de lucru - București: Iride Business Park, Bld. Dimitrie
Pompeiu 9-9A, Clădirea B2B,
020335, Sector 2, București, România
Sună acum și cere detalii sau programează o vizionare.
Cere detalii prin email
*
*
*
*
Terenuri sport
Teren sportiv
aprox.
1353 m
Înainte să pleci...
Ești sigur că ai văzut și aceste proprietăți?
170.000 €
Județul Dâmbovița, Pucioasa
7 camere
285 mp
668 mp teren
137.000 €
Județul Dâmbovița, Pucioasa
4 camere
120 mp
562 mp teren
85.000 €
Județul Dâmbovița, Pucioasa-Sat
6 camere
171 mp
540 mp teren
150.000 €
Județul Dâmbovița, Pucioasa
5 camere
330 mp
636 mp teren
56.300 €
Județul Dâmbovița, I. L. Caragiale
4 camere
130 mp
390 mp teren
69.000 €
Județul Dâmbovița, Buciumeni
4 camere
150 mp
400 mp teren
Creează alertă
Salvează căutarea ca să primești pe email ultimele anunțuri publicate
Case individuale cu 4+ camere de vânzare în Pucioasa, Județul Dâmbovița
Cere detalii prin email
*
*
*
*
Detaliile tale de contact vor fi partajate cu Direct Proprietar
Preț total501.193 RON (98.358 €)
Costuri cu achiziția5.978 RON
Preț de achiziție495.215 RON
Costuri cu achiziția5.978 RON
Comision agenție Întreabă agenţia
Onorariu notarial5.235 RON
Taxă înscriere OCPI743 RON
Preț de achiziție495.215 RON
Preț locuință495.215 RON
TVA 0%Inclus în prețul cerut
Cost total84.059 RON (16.496 €)
Avans (15%)74.282 RON
Cost achitat în prima lună2.277 RON
Costuri cu achiziția7.500 RON
Cost achitat în prima lună2.277 RON
Comision analiză dosar
400 RON - 900 RON
Taxă evaluare imobil(până la)
900 RON
Rata lunară (variabilă)2.206 RON
Asigurare anuală imobil495 RON
Arhivă electronică102 RON
Poliță PAD130 RON
Asigurare de viață/lună Costul este variabil. În funcție de banca aleasă, procentul variază între 0.0259% și 0.035% din soldul creditului.
Costuri cu achiziția7.500 RON
Comision agenție Întreabă agenţia
Onorariu notarial5.235 RON
Taxă întabulare OCPI743 RON
Autentificare contract credit1.522 RON
Preț de achiziție495.215 RON
Preț locuință495.215 RON
TVA 0%Inclus în prețul cerut
Preț de achiziție495.215 RON
Preț locuință495.215 RON
TVA 0%
Inclus în prețul cerut
Avans minim74.282 RON
Credit pe 30 de ani420.934 RON
Cost achitat în prima lună
Taxa evaluare imobil(până la)
900 RON
Rata lunară (variabilă)2.958 RON
Depozit colateral8.874 RON
Comision de garantare FNGCIMM41 RON
Asigurare anuală imobil495 RON
Poliță PAD130 RON
Tarif arhivă electronică102 RON
Costuri adiționale635 RON + taxe notariale
Asigurare viață și complexă (opțională)Costul este variabil. În funcție de banca aleasă, procentul variază între 0.0259% și 0.035% din soldul creditului
Onorariu notarialconform tarif notarial
Taxă întabulare OCPI635 RON
i
Toate valorile de mai sus sunt estimative și nu reprezintă în mod obligatoriu costurile exacte pe care le veți primi de la companiile/instituțiile prin care veți încheia tranzacția.