Vanzare vila 6 camere 316mp + garaj + teren 1490mp Centru Snagov ILFOV

330.000 €

Snagov, Județul Ilfov

Nr. cam.:
6
Sup. utilă:
188 mp
Sup. teren:
1.490 mp
Tip prop.:
Individuală
  • • Comision 0%
  • • Exclusivitate
  • • Locație exactă

Descriere casă

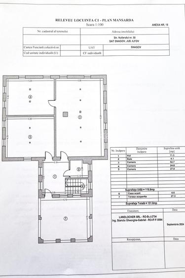
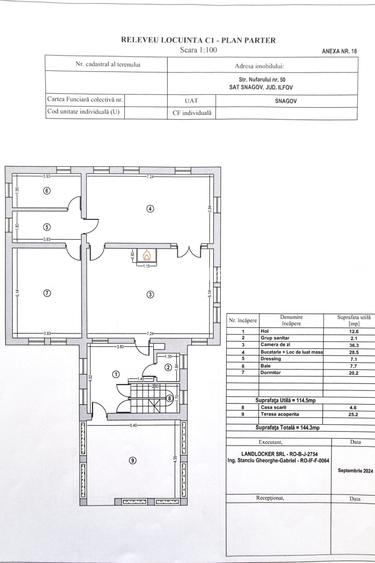
Reprezentare Exclusiva - comision 0% cumparator GOOD ESTATE va propune spre vanzare o casa cu 6 camere, 3 bai, 2 terase, garaj, spatiu parcare pentru 3 masini si teren 1.490mp in proprietate, stare interior buna (fara imbuntatiri recente), situata in strada Nufarului nr.50A, comuna Snagov – Ilfov. DETALII PROPRIETATE: Casa 6 camere Regim inaltime: Sp+P+M An constructie: 2006 Suprafata utila: 234mp Suprafata construita (amprenta la sol): 188mp Suprafata desfasurata: 316mp Nr.bai: 3 (o baie cu cada si wc de serviciu la parter, baie cabina de dus la etaj) Calitate finisaje: medii Sistem incalzire: centrala termica proprie, calorifere Utilitati racordate la reteaua publica: gaze, curent, canalizare, apa ANEXA: Garaj P+M, edificat in 2006 Suprafat garaj = 22,9mp Depozitare = 7mp Mansarda – garsoniera 32mp Camera = 15,9mp Hol = 6,9mp Baie = 3,1mp Bucatarie = 3,2mp Casa scarii = 3,2mp Suprafata construita la sol anexa 38mp Suprafata construita desfasurata anexa 76mp SUPRAFETE imobil conform releveu: SUBSOL partial Camera tehnica = 7,4mp Pivnita = 7,0mp Hol = 2,0mp Casa scarii = 3,9 Suprafata totala = 20,3mp PARTER Camera de zi = 36,3mp Bucatarie + Loc de luat masa = 28,5mp Dormitor = 20,2mp Hol = 12,6mp Dressing = 7,1mp Baie = 7,7mp Grup sanitar = 2,1mp Suprafata utila = 114,5mp Casa scarii = 4,6mp Terasa acoperita = 25,2mp Suprafata totala parter = 144,3mp MANSARDA Camera = 52,7mp Camera = 27,0mp Camera = 24,8mp Baie = 4,1mp Hol = 11,3mp Suprafata utila = 119,9mp Terasa acoperita = 27,3mp Casa scarii = 4,6mp Suprafata totala mansarda = 151,8mp DETALII TEHNICE: Structura de rezistenta: beton Inchideri si compartimentari: caramida Acoperis: tigla Instalatii electrice: conductori de cupru in tub de protectie PVC Izolare termica: panouri de polistiren extrudat Finisaje interioare si exterioare: tamplarie din lemn, faianta, gresie, parchet.
Citește mai mult Citește mai puțin
Nemobilat Calorifere Centrală proprie 3 Parcări 1 Garaj Necesită renovare

Detalii casă

ID anunț: X8IL012SV Copiat! 274988448 Copiat!
Actualizat în: 17 Februarie 2026
Suprafață construită: 234 mp
Suprafață desfășurată: 316 mp
Nr. bucătării: 1
Nr. băi: 3
Nr. balcoane / Terase / Logii: 2
Nr. terase: 2
Suprafață terase: 56 mp
Nr. fronturi stradale: 1
Front stradal: 8 m
Învelitoare acoperiș: Țiglă
An construcție: 2006 (Finalizată)
Structură rezistență: Beton
Regim înălțime: P+M

Utilități

Destinație
Rezidențial Comercial Birouri De vacanță
Contorizare
Contor gaz Apometre
Diverse
Șemineu Scară interioară
Utilități
Gaze Curent Canalizare Apă
Amenajare străzi
Asfaltate
Comision
0%

Puncte de interes

Recreere
park
Parc
Parcuri aprox. 751 m
park
Parc
Parcuri aprox. 1052 m

Detalii despre preț și costuri

Costuri cu achiziția

Fără credit
14.230 RON
Credit ipotecar
16.743 RON
Noua casă
1.822 RON+ taxe notariale

i

Costuri adiționale mai puțin știute la achiziție: taxe notariale, comisioane etc.

Proprietăți recomandate

Detalii de contact

Good Estate

Diana VASLUIAN Consultant Imobiliar, REALTOR

4.00(3 review-uri)

Good Estate
PRO

Abonează-te la newsletter să fii primul care primește cele mai noi recomandări de proprietăți și sfaturi de la experți.

CONTACT

Creează alertă

Salvează căutarea ca să primești pe email ultimele anunțuri publicate

Case individuale cu 4+ camere de vânzare în Snagov, Județul Ilfov