Cod proprietate: P29664
Agentia imobiliara Vault Estate va propune spre de vanzare o casa / vila, tip individuala, situata in Tunari, zona Central.
Regim de inaltime: P+M
Casa este construita in anul 2013.
Alcatuita din:
camere - 5, bucatarii- 1, bai- 3, camera tehnica- 1, plus dependinte.
Are o suprafata utila de 149 mp, o suprafata totala construita desfasurata de 216 mp.
Amprenta la sol este de 108 mp , suprafata totala a terenului este de 1867 mp, din care 1760 mp teren liber.
Are 1 fronturi stradale.
DETALII TEHNICE :
Utilitati:
- Energie electrica
- Gaze
- Put forat apa 60 m
- Fosa septica
- Centrala termica Ariston Clasa One WIFI 35
- RETEA PUBLICA DE APA SI CANALIZARE IN EXECUTIE PE STRADA
Sistem constructiv:
- Fundatii din beton - grinda continua
- Structura de rezistenta - cadre din beton armat
- Pereti de compartimentare - zidarie caramida
- Pereti de inchiriere perimetrala - zidarie caramida porotherm 30 cm
- Planseu peste parter - beton
- Acoperis - tip sarpanta din lemn cu tigla metalica cu roca vulcanica Gerard
- Parter - incalzire prin pardoseala
- Etaj - radiatoare otel
FINISAJE:
Finisaje exterioare:
- Termosistem polistiren expandat 15 cm
- Tencuiala decorativa
Finisaje interioare:
- Pardoseli - parchet laminat si gresie in spatiile umede
- Tamplarie usi - tamplarie interioara MDF, usa intrare metalica
- Tamplarie ferestre - PVC Veka Softline 70 Ad 5 camere cu geam tripan
- Finisaje pereti interiori - zugraveli vopsea lavabila si placaje din faianta
- Soba fonta tip semineu pe lemne
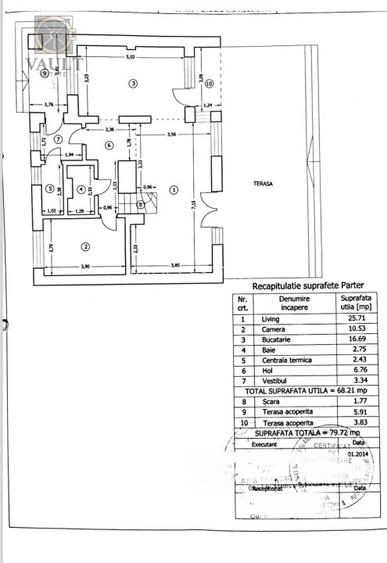
COMPARTIMENTARE:
Parter:
- Hol intrare: 3,34 mp
- Camera tehnica: 2,43 mp
- Bucatarie: 16,69 mp
- Living: 25,71 mp
- Hol: 6,76
- Baie: 2,75 mp
- Camera: 10,53
- Terasa 1: 5,91 mp
- Terasa 2: 40 mp
- Casa scarii: 1,77 mp
Etaj:
- Dormitor matrimonial: 17,84 + baie: 4,94 mp
- Dormitor 1: 15,83 mp
- Dormitor 2: 16,14 mp
- Baie: 9,75 mp
- Hol: 11,60 mp
- Casa scarii: 2,94 mp
CURTE:
- Beci 9 mp: put forat 60 m cu pompa submersibila, statie BlueSoft 1054CR-RX, lampa UV S810 RL
- Pavele Semmelrock 20/10/6 cm (aprox. 400 mp)
- Vegetatie matura - gazon (aprox. 1000 mp), zona pomi fructiferi, arbori ornamentali ( aprox. 300 mp)
- Sistem aspersoare + picurare Irritrol 6 zone
- Proprietatea este imprejmuita cu gard din lemn cu soclu din beton h: 2,40 m
Caracteristici:
-Pereti: vopsea lavabila, faianta
-Podele: parchet, gresie
-Ferestre: termopan
-Contorizare: contor gaz, contor curent electric
-Imobil: curte
-Parcare: 4
Vecinatati (puncte de reper): LIDL - PENNY - STRIP MALL
In imediata apropiere intalnim: spatii comerciale, financiare, educationale, medicale, de relaxare etc.
Acces facil la mijloacele de transport in comun: _ _ _ _ _ _ _ _
Informatiile tehnice prezentate in anunt au caracter orietativ, ele fiind expuse in conformitate cu datele declarate de proprietari.
Agentia imobiliara Vault Estate va sta la dispozitie pentru informatii suplimentare si vizionari!
Se percepe comision.
Sediul central - Timișoara
Bulevardul Victor Babeș nr. 2, 300230, Timișoara, România
Tel: +40.374.40.44.98 / Fax: +40.256.401.179
Email: suport@imobiliare.ro
Luni - Vineri 08:00 - 20:00
Punct de lucru - București: Iride Business Park, Bld. Dimitrie
Pompeiu 9-9A, Clădirea B2B,
020335, Sector 2, București, România
CONTACT
Sediul central - Timișoara
Bulevardul Victor Babeș nr. 2, 300230, Timișoara, România
Tel: +40.374.40.44.98 / Fax: +40.256.401.179
Email: suport@imobiliare.ro
Luni - Vineri 08:00 - 20:00
Punct de lucru - București: Iride Business Park, Bld. Dimitrie
Pompeiu 9-9A, Clădirea B2B,
020335, Sector 2, București, România
Sună acum și cere detalii sau programează o vizionare.
Cere detalii prin email
*
*
*
*
Universități
Școli
Supermarket
Parcări
Parcuri
Terenuri sport
Restaurant
School American Bucharest-Voluntari
aprox.
1379 m
American International School of Bucharest (en)
aprox.
1419 m
Scoala Americana
aprox.
1425 m
Scoala Nr. 1 Tunari
aprox.
1557 m
Mega Image Pipera Liziera
aprox.
1943 m
Parcare
aprox.
1117 m
Parcare pentru clienti
aprox.
1399 m
Pădurea Tunari
aprox.
799 m
Parc
aprox.
1053 m
Teren sportiv
aprox.
1082 m
Teren sportiv
aprox.
1536 m
Teren sportiv
aprox.
1583 m
Pensiunea "La Zdrobitu' "
aprox.
1908 m
Înainte să pleci...
Ești sigur că ai văzut și aceste proprietăți?
398.000 €
Județul Ilfov, Tunari
5 camere
230 mp
500 mp teren
455.000 €
Județul Ilfov, Tunari
4 camere
188 mp
500 mp teren
396.000 €
Județul Ilfov, Tunari
5 camere
160 mp
370 mp teren
Creează alertă
Salvează căutarea ca să primești pe email ultimele anunțuri publicate
Case individuale cu 4+ camere de vânzare în Tunari, Județul Ilfov
Cere detalii prin email
*
*
*
*
Detaliile tale de contact vor fi partajate cu Vault Estate
Preț total2.208.122 RON (433.466 €)
Costuri cu achiziția17.659 RON
Preț de achiziție2.190.463 RON
Costuri cu achiziția17.659 RON
Comision agenție Întreabă agenţia
Onorariu notarial14.373 RON
Taxă înscriere OCPI3.286 RON
Preț de achiziție2.190.463 RON
Preț locuință2.190.463 RON
TVA 0%Inclus în prețul cerut
Cost total353.137 RON (69.322 €)
Avans (15%)328.569 RON
Cost achitat în prima lună3.972 RON
Costuri cu achiziția20.596 RON
Cost achitat în prima lună3.972 RON
Comision analiză dosar
400 RON - 900 RON
Taxă evaluare imobil(până la)
900 RON
Rata lunară (variabilă)9.757 RON
Asigurare anuală imobil2.190 RON
Arhivă electronică102 RON
Poliță PAD130 RON
Asigurare de viață/lună Costul este variabil. În funcție de banca aleasă, procentul variază între 0.0259% și 0.035% din soldul creditului.
Costuri cu achiziția20.596 RON
Comision agenție Întreabă agenţia
Onorariu notarial14.373 RON
Taxă întabulare OCPI3.286 RON
Autentificare contract credit2.937 RON
Preț de achiziție2.190.463 RON
Preț locuință2.190.463 RON
TVA 0%Inclus în prețul cerut
Preț de achiziție2.190.463 RON
Preț locuință2.190.463 RON
TVA 0%
Inclus în prețul cerut
Avans minim1.584.265 RON
Credit pe 30 de ani606.198 RON
Cost achitat în prima lună
Taxa evaluare imobil(până la)
900 RON
Rata lunară (variabilă)4.259 RON
Depozit colateral12.777 RON
Comision de garantare FNGCIMM183 RON
Asigurare anuală imobil2.190 RON
Poliță PAD130 RON
Tarif arhivă electronică102 RON
Costuri adiționale2.330 RON + taxe notariale
Asigurare viață și complexă (opțională)Costul este variabil. În funcție de banca aleasă, procentul variază între 0.0259% și 0.035% din soldul creditului
Onorariu notarialconform tarif notarial
Taxă întabulare OCPI2.330 RON
i
Toate valorile de mai sus sunt estimative și nu reprezintă în mod obligatoriu costurile exacte pe care le veți primi de la companiile/instituțiile prin care veți încheia tranzacția.