Vila tip duplex moderna, Comuna Berceni, Str. Calugareni

100.917 € + TVA

Berceni, Județul Ilfov

Nr. cam.:
3
Sup. utilă:
109,69 mp
Sup. teren:
222 mp
Tip prop.:
Duplex
  • • Comision 0%
  • • Locație aproximativă

Descriere casă

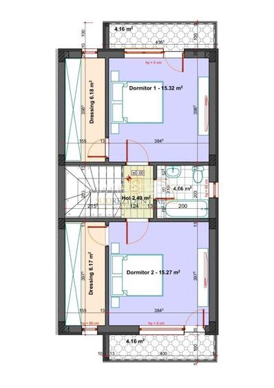
Oferim spre vanzare o vila moderna tip duplex, amplasata intr-o zona linistita din Comuna Berceni, Ilfov, la doar 1 km de Bulevardul 1 Mai si 5 km de statia de metrou Tudor Arghezi. Accesul este facil catre mijloacele de transport in comun, iar zona este in plina dezvoltare. Caracteristici imobil: - Regim de inaltime: Parter + Etaj 1 - Suprafata utila: 125 mp - Teren total: 222 mp - Curte libera: 155 mp - Imprejmuire: Gard din beton armat si structura metalica, pentru securitate si intimitate Compartimentare inteligenta: – Parter: Living generos (30.93 mp), bucatarie separata (14.04 mp), baie, hol de acces si terasa de 4.46 mp – Etaj: Doua dormitoare spatioase (15.32 mp si 15.27 mp), fiecare cu dressing propriu, baie principala si doua balcoane Beneficii si dotari: - Finisaje premium, cu posibilitatea de personalizare - Centrala termica in condensare pentru eficienta energetica - Ferestre PVC cu geam tripan pentru izolare optima - Bai complet echipate cu obiecte sanitare moderne Aceasta locuinta ofera un confort sporit, spatii generoase si o curte proprie ideala pentru relaxare. Imprejmuirea din beton armat si structura metalica asigura siguranta si intimitate si ofera un plus de valoare proprietatii. In pretul afisat nu este inclusa cota de TVA.
Citește mai mult Citește mai puțin
Nemobilat Aer condiționat Calorifere Centrală proprie 1 Parcare

Detalii casă

ID anunț: X53U1101S Copiat! 253056615 Copiat!
Actualizat în: 23 Ianuarie 2026
Suprafață desfășurată: 135 mp
Nr. bucătării: 1
Nr. băi: 2
Nr. balcoane / Terase / Logii: 2
Nr. terase: 1
Suprafață terase: 4.46 mp
Învelitoare acoperiș: Tabla
An construcție: 2025 (În construcție)
Structură rezistență: Beton
Regim înălțime: P+1E

Utilități

Destinație
Rezidențial
Pereți
Faianță Vopsea lavabilă
Podele
Gresie Parchet
Ușă intrare
Metal
Uși interior
Lemn
Izolații termice
Exterior
Ferestre cu geam termopan
PVC
Contorizare
Apometre Contor căldură Contor gaz
Alte spații utile
Dressing
Utilități
Curent Apă Canalizare Fosa septică Gaze
Internet
Cablu
Amenajare străzi
Iluminat stradal Mijloace de transport în comun Asfaltate
Comision
0%

Vecinătăți:

Aceasta vila este situata intr-o zona deosebit de accesibila din Comuna Berceni, la doar 4 km de Centura Capitalei si la aproximativ 10 minute de mers cu masina pana in Sectorul 4, Bucuresti.

Legaturi rapide catre principalele artere si autostrazi:
– Bd. 1 Mai, principala artera de circulatie a comunei, se afla in proximitate, ofera conexiuni rapide catre infrastructura urbana.
– Autostrada A0, situata la doar 5 minute de mers cu masina, faciliteaza accesul catre A1 (Bucuresti – Pitesti), A2 (Bucuresti – Constanta) si A3 (Bucuresti – Ploiesti).

Acces facil la transportul public si metrou:
- Statia de metrou Tudor Arghezi, aflata in apropiere, ofera conexiuni rapide catre centrul Bucurestiului si dispune de o parcare Park&Ride cu 310 locuri, ideala pentru cei care doresc sa lase masina si sa continue calatoria cu transportul public.
– Transport public variat, cu rute extinse spre principalele puncte de interes din Bucuresti.

Viitorul mobilitatii in Comuna Berceni:
Zona beneficiaza de proiecte de dezvoltare majore, inclusiv extinderea liniei de metrou pana in interiorul comunei, ceea ce va aduce un plus semnificativ de accesibilitate si valoare proprietatilor.

Facilitati comerciale in apropiere: Carrefour, Penny Market, Profi, Mega Image si diverse magazine mixte pentru toate nevoile zilnice

Trafic rapid si facil catre toate zonele Capitalei, fie cu masina personala, fie prin reteaua extinsa de transport public.

Disponibilitate proprietate:

2025

Puncte de interes

Școală
school
Scoala Berceni
Școli aprox. 595 m
Recreere
sports-ground
Teren sportiv
Terenuri sport aprox. 934 m
restaurant
Salon Evenimente Casa Alba
Restaurant aprox. 1956 m

Detalii despre preț și costuri

Costuri cu achiziția

Fără credit
7.095 RON
Credit ipotecar
8.726 RON
Noua casă
762 RON+ taxe notariale

i

Costuri adiționale mai puțin știute la achiziție: taxe notariale, comisioane etc.

Proprietăți recomandate

Detalii de contact

SUD REZIDENTIAL

SudRezidential

SUD REZIDENTIAL
PRO

Abonează-te la newsletter să fii primul care primește cele mai noi recomandări de proprietăți și sfaturi de la experți.

CONTACT

Creează alertă

Salvează căutarea ca să primești pe email ultimele anunțuri publicate

Duplexuri cu 3 camere de vânzare în Berceni, Județul Ilfov