1/2 Duplex spatios, 4 camere-3 bai, Finisaje PREMIUM

249.000 €

Dumbrăvița, Județul Timiș

Nr. cam.:
4
Sup. utilă:
120 mp
Sup. teren:
300 mp
Tip prop.:
Duplex
  • • Locație aproximativă

Descriere casă

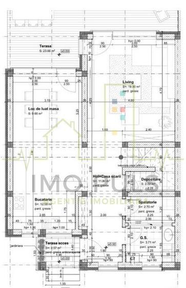
1/2 duplex in Dumbravita, cu regim de inaltime Parter + Etaj + Pod. - suprafata utila de 120 mp plus terasa de 30 mp. - teren de 30 mp, cu front stradal de 10 m. - detalii constructive : ziduri exterioare si interioare din caramida porotherm, termoizolata exterior, acoperis de tigla. - compartimentare: - parter : hol acces, bucatarie, loc de luat masa, camera de zi, spalatorie, spatiu depozitare, baie, terasa ( 42 mp ). - etaj : hol acces, 3 dormitoare ( 1 dormitor cu baie proprie ), 2 bai. - pod : spatiu deschis. - detalii AMENAJARE interioara : parchet triplu stratificat STEJAR, travertin, ferestre cu tamplarie PVC si geam termopan 3 sticle, usa PVC la intrare, usi interioare noi, vopsea lavabila, corpuri sanitare noi, incalzire in pardoseala. - detalii mobilare: bucatarie mobilata, inclusiv masa de bucatarie cu scaune si electrocasnice; - CENTRALA termica PROPRIE - BUDERUS Detalii suplimentare : teren imprejmuit, poarta acces auto si poarta acces pietonal, terasa este spatioasa, facuta la comanda, acoperis din tigla, gradina este amenajata cu plante decorative, gazon si sistem de irigatie. - dispune de toate utilitatile (apa, gaz, canal, curent). Detalii pret : Pretul solicitat de proprietar este de 249.000 Eur. Se accepta si varianta de achizitionare prin intermediul unui credit bancar.
Citește mai mult Citește mai puțin
Grădină Curte Centrală proprie Încălzire prin pardoseală 2 Parcări

Detalii casă

ID anunț: X9B911132 Copiat! 275091172 Copiat!
Actualizat în: 24 Februarie 2026
Suprafață construită: 72 mp
Suprafață desfășurată: 144 mp
Nr. bucătării: 1
Nr. băi: 3
Nr. terase: 1
Suprafață terase: 30 mp
Front stradal: 10.0 m
Învelitoare acoperiș: Țiglă
An construcție: 2020 (Finalizată)
Regim înălțime: P+1E

Utilități

Pereți
Vopsea lavabilă
Podele
Parchet
Ușă intrare
Metal
Uși interior
Celulare
Izolații termice
Exterior
Bucătărie
Mobilată Utilată
Diverse
Scară interioară
Facilități imobil
Acoperiș
Utilități
Curent Apă Canalizare CATV Gaze Telefon
Internet
Cablu
Amenajare străzi
Iluminat stradal Mijloace de transport în comun Asfaltate Pietruite
Comision
standard

Vecinătăți:

Shopping :
- Kaufland, Selgros, Auchan, Profi, Hornbach, Decathlon, Lidl
Educatie :
- Scooby Kindergarten
- Scoala Gimnaziala cu clasele I – VIII Dumbravita
Autobuze : Liniile T14, E40 si E2
Spatii recreere :Parcul Dvorjak, Padurea Verde

Disponibilitate proprietate:

Imediata

Puncte de interes

Școală
kindergarten
Gradinita Scooby
Gradinițe aprox. 1804 m
school
Scoala Gimnaziala Dumbravita
Școli aprox. 1871 m
Recreere
park
Parcul Dvorjak
Parcuri aprox. 646 m
park
Sunflower Field
Parcuri aprox. 1278 m
sports-ground
Teren sportiv
Terenuri sport aprox. 1887 m
supermarket
Lidl
Supermarket aprox. 1938 m

Detalii despre preț și costuri

Costuri cu achiziția

Fără credit
11.450 RON
Credit ipotecar
13.620 RON
Noua casă
1.409 RON+ taxe notariale

i

Costuri adiționale mai puțin știute la achiziție: taxe notariale, comisioane etc.

Proprietăți recomandate

Detalii de contact

ImoPuls

Alexandru Mechetenici Consultant Imobiliar

4.67(3 review-uri)

ImoPuls

Abonează-te la newsletter să fii primul care primește cele mai noi recomandări de proprietăți și sfaturi de la experți.

CONTACT

Creează alertă

Salvează căutarea ca să primești pe email ultimele anunțuri publicate

Duplexuri cu 4+ camere de vânzare în Dumbrăvița, Județul Timiș