19

De vânzare duplex modern în Dumbrăvița

178.000 €

Dumbrăvița, Județul Timiș

Nr. cam.:
5
Sup. utilă:
117 mp
Sup. teren:
350 mp
Tip prop.:
Duplex
  • • Locație aproximativă

Descriere casă

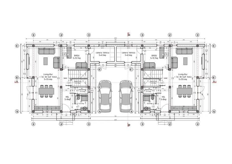
NEO IMOBILIARE, Va ofera spre vanzare d 1/2 duplex cu teren de 350 mp, situat într-o zonă liniștită și accesibilă. Imobilul este construit solid și despărțit de vecin printr-o cameră tehnică de 7 m lungime, ceea ce oferă intimitate și un plus de confort. Camera tehnică are branșamentele trase și poate fi folosită pentru depozitare sau chiar transformată într-un garaj acoperit. Suprafața utilă este de 117 mp, compartimentată astfel: Parter: Living generos cu bucătărie open space Birou Baie Cămară Spațiu de depozitare Cameră tehnică Etaj: Dormitor matrimonial cu baie proprie și SAS 2 dormitoare Baie Alte detalii: Front stradal de 19,5 m Loc de garaj Tâmplărie PVC Salamander 76 MD Izolație cu polistiren de 10 cm
Citește mai mult Citește mai puțin
2 Parcări 1 Garaj

Detalii casă

ID anunț: X8MV1101D Copiat! 269071409 Copiat!
Actualizat în: 12 Ianuarie 2026
Nr. bucătării: 1
Nr. băi: 2
Regim înălțime: P

Utilități

Utilități
Curent Apă Canalizare CATV Gaze Telefon
Internet
Cablu
Amenajare străzi
Iluminat stradal Mijloace de transport în comun Asfaltate
Comision
standard

Disponibilitate proprietate:

Imediat

Puncte de interes

Recreere
park
Parcul Dvorjak
Parcuri aprox. 881 m
park
Sunflower Field
Parcuri aprox. 920 m

Detalii despre preț și costuri

Costuri cu achiziția

Fără credit
9.014 RON
Credit ipotecar
10.882 RON
Noua casă
1.047 RON+ taxe notariale

i

Costuri adiționale mai puțin știute la achiziție: taxe notariale, comisioane etc.

Proprietăți recomandate

Detalii de contact

NEO IMOBILIARE

Dragos Mutu Manager

5.00(4 review-uri)

NEO IMOBILIARE
PRO

Abonează-te la newsletter să fii primul care primește cele mai noi recomandări de proprietăți și sfaturi de la experți.

CONTACT

Creează alertă

Salvează căutarea ca să primești pe email ultimele anunțuri publicate

Duplexuri cu 4+ camere de vânzare în Dumbrăvița, Județul Timiș