Casa tip duplex /Zona strazii Urusagului.

170.000 € + TVA

Florești, Județul Cluj

Nr. cam.:
4
Sup. utilă:
108 mp
Sup. teren:
145 mp
Tip prop.:
Duplex
  • • Locație aproximativă

Descriere casă

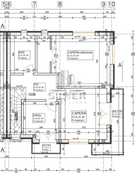
Va prezentam spre vanzare o casa tip duplex situata in Floresti, zona strazii Urusagului cu teren total de 145 mp disponibila imediat pentru amenajare. Casa detine 108 mp utili, fiind dispusa pe 2 niveluri, P+E iar ca si compartimentare se prezinta astfel: P- living spatios impreuna cu bucataria ( posibilitate separare bucatarie) baie, hol+casa scarilor. E- 3 dormitoare, dressing, baie spatioasa, 2 balcoane, hol+casa scarilor ( dormitorul matrimonial este prevazut cu zona dressing sau amenajare baie proprie) La nivel de finisaje casa se va preda la stadiul de semifinisat, dupa cum urmeaza: - fundatii stalpi din beton armat; - zidarie din caramida de 25 cm; - termosistem cu polistiren de 10 cm+tencuiala si piatra decorativa; - acoperis cu tigla tip Leier; - izolatie peste etaj cu vata minerala de 20cm+folie de aluminiu; - balcoane inchise cu sticla securizat; - geamuri si usi principale termoizolante din Pvc cu 3 foi de sticla/5 camere de tip Gealan ; - pereti interiori tencuiti+1 strat de glet; - instalatiile sanitare si electrice trase pe pozitii; - sapa de egalizare; - curtea ingradita si amenajata; - sistem de incalzire in pardosea la ambele niveluri; - centrala termica in condensare; - bransamente si contoare la toate utiliatatile necesare; - parcare amenajata pentru doua autoturisme. Predare imobil imediat, EXTRASE CF-DEC. 2025. Curte libera cca 85 mp. PRETUL MENTIONAT IN ANUNT NU CONTINE TVA-UL DE 21 %. Pentru alte detalii sau programarea unei vizionari contactati-ne cu incredere!
Citește mai mult Citește mai puțin
Nemobilat Grădină Centrală proprie Încălzire prin pardoseală 2 Parcări

Detalii casă

ID anunț: XF6T1102C Copiat! 271423129 Copiat!
Actualizat în: 31 Decembrie 2025
Suprafață construită: 60 mp
Suprafață desfășurată: 135 mp
Nr. bucătării: 1
Nr. băi: 2
Nr. balcoane: 2
Front stradal: 11.0 m
Învelitoare acoperiș: Țiglă
An construcție: 2024 (Finalizată)
Structură rezistență: Cărămidă
Regim înălțime: P+1E

Utilități

Ușă intrare
PVC
Izolații termice
Exterior
Ferestre cu geam termopan
PVC
Contorizare
Apometre Contor gaz
Dotări imobil
Acoperiș
Utilități
Curent Apă Canalizare CATV Gaze
Acces internet
Cablu
Amenajare străzi
Iluminat stradal Mijloace de transport în comun Asfaltate
Comision
standard

Vecinătăți:

Profi, Pepco. Penny,

Disponibilitate proprietate:

Imediat

Puncte de interes

Mijloace transport
bus-station
M-Cartier Terra
Stații autobuz aprox. 430 m
bus-station
M-Prof. Dumitru Mocanu
Stații autobuz aprox. 677 m
bus-station
M-Prof. Dumitru Mocanu E
Stații autobuz aprox. 683 m
bus-station
M-Prof. Dumitru Mocanu V
Stații autobuz aprox. 684 m
Recreere
park
Parc
Parcuri aprox. 670 m
restaurant
Pizza Pizza
Restaurant aprox. 791 m
supermarket
Profi Floresti
Supermarket aprox. 1289 m
sports-ground
Teren Fotbal Sintetic
Terenuri sport aprox. 1501 m

Detalii despre preț și costuri

Costuri cu achiziția

Fără credit
9.966 RON
Credit ipotecar
11.952 RON
Noua casă
1.188 RON+ taxe notariale

i

Costuri adiționale mai puțin știute la achiziție: taxe notariale, comisioane etc.

Proprietăți recomandate

Detalii de contact

SILVER IMOBILIARE

Dorel Lacatus Senior Broker

SILVER IMOBILIARE
PRO

Abonează-te la newsletter să fii primul care primește cele mai noi recomandări de proprietăți și sfaturi de la experți.

CONTACT

Creează alertă

Salvează căutarea ca să primești pe email ultimele anunțuri publicate

Duplexuri cu 4+ camere de vânzare în Florești, Județul Cluj