Duplex Modern la limita dintre Moșnița Nouă și Calea Urseni- Construcție 2024

145.000 €

Moșnița Nouă, Județul Timiș

Nr. cam.:
4
Sup. utilă:
95,1 mp
Sup. teren:
216 mp
Tip prop.:
Duplex
  • • Exclusivitate
  • • Locație exactă

Descriere casă

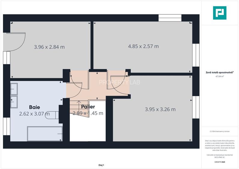
Visezi la un cămin modern și confortabil? Avem soluția perfectă pentru tine! Te invităm să descoperi un duplex deosebit, situat la limita dintre Moșnița Nouă și Calea Urseni, în mijlocul unei zone în plină dezvoltare, aproape de centura orașului. Construit în 2024, acest duplex te întâmpină cu finisaje moderne și o atmosferă primitoare, ideală pentru o familie care își dorește un spațiu generos și funcțional. Despre duplex: Suprafața utilă de 95 mp este perfect compartimentată pentru a oferi confortul de care ai nevoie. La parter, vei găsi o baie elegantă dotată cu duș, o bucătărie open space care se leagă armonios de livingul luminos, unde ai acces direct pe o terasă spațioasă – locul perfect pentru a savura diminețile cu cafeaua în mână sau serile alături de cei dragi. La etaj, duplexul dispune de 3 dormitoare confortabile, plus o baie cu cadă, ideală pentru momentele de relaxare. Iar pentru a adăuga un plus de confort, pereții din băi sunt încălziți, iar tavanele extensibile din întreaga locuință oferă o senzație de amplitudine și eleganță. Curtea și dotările: Curtea este amenajată cu gust, oferind un loc perfect de joacă pentru copii sau un spațiu de relaxare pentru întreaga familie. În plus, duplexul este dotat cu un sistem de alarmă și video, asigurându-ți liniștea și siguranța. Despre zonă: Localizat într-o zonă în plină expansiune, te bucuri de acces facil la toate facilitățile necesare: magazine, școli, grădinițe și transport în comun. Nu rata ocazia de a deveni proprietar al acestui duplex modern! Contactează-ne pentru mai multe detalii sau pentru a stabili o vizionare. Acesta ar putea fi noul tău cămin! Agent imobiliar: Natalia Draganel Telefon: Cod Proprietate: 2530629
Citește mai mult Citește mai puțin
Nemobilat Grădină Curte Centrală proprie Încălzire prin pardoseală

Detalii casă

ID anunț: X5I1111A9 Copiat! 260759528 Copiat!
Actualizat în: 16 Februarie 2026
Suprafață desfășurată: 114.12 mp
Nr. bucătării: 1
Nr. băi: 2
Nr. balcoane / Terase / Logii: 1
Nr. terase: 1
Suprafață terase: 20 mp
An construcție: 2024 (Finalizată)
Structură rezistență: Cărămidă
Regim înălțime: P+1E

Utilități

Pereți
Vopsea lavabilă
Podele
Parchet
Ușă intrare
Metal
Izolații termice
Exterior
Ferestre cu geam termopan
PVC
Contorizare
Apometre Contor gaz
Diverse
Sistem de alarmă Telecomandă poartă acces auto
Utilități
Curent Apă Canalizare CATV Curent trifazic Fosa septică Gaze
Internet
Cablu Wireless
Servicii imobil
Supraveghere video
Amenajare străzi
Iluminat stradal Mijloace de transport în comun Asfaltate

Disponibilitate proprietate:

Imediat

Puncte de interes

Recreere
restaurant
La Paul
Restaurant aprox. 262 m
restaurant
Valery 3 (en)
Restaurant aprox. 1478 m

Detalii despre preț și costuri

Costuri cu achiziția

Fără credit
7.880 RON
Credit ipotecar
9.608 RON
Noua casă
879 RON+ taxe notariale

i

Costuri adiționale mai puțin știute la achiziție: taxe notariale, comisioane etc.

Proprietăți recomandate

Detalii de contact

PROPERTY LAB

Natalia Draganel Branch Manager Timisoara

PROPERTY LAB

Abonează-te la newsletter să fii primul care primește cele mai noi recomandări de proprietăți și sfaturi de la experți.

CONTACT

Creează alertă

Salvează căutarea ca să primești pe email ultimele anunțuri publicate

Duplexuri cu 4+ camere de vânzare în Moșnița Nouă, Județul Timiș