1 2 duplex-Moșnița Veche-4 camere-toate utilitatile Comision 0%-155.000 Euro

155.000 €

Moșnița Nouă, Județul Timiș

Nr. cam.:
4
Sup. utilă:
95 mp
Sup. teren:
300 mp
Tip prop.:
Duplex
  • • Locație exactă

Descriere casă

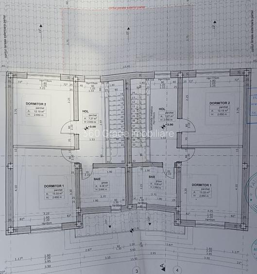
Confort, spațiu generos și construcție de calitate! Suprafață utilă: 95 mp Teren: aproximativ 300 mp Construcție: cărămidă Cemacon 25 cm, țiglă beton Dotări: încălzire în pardoseală, tâmplărie PVC cu 3 sticle Utilități: gaz, apă, curent, canalizare Compartimentare: Parter: Hol acces Baie Dormitor birou Living cu ieșire pe terasă acoperită de 11 mp Bucătărie Scară acces etaj Etaj: Hol acces 2 dormitoare Baie Bugetele pentru gresie, faianta,parchet,tamplarie,usi interior, bai etc se vor stabili impreuna cu dezvoltatorul! Termen de finalizare: sfârșitul lunii decembrie Preț solicitat: 155.000 Euro Comision 0! Pentru mai multe detalii și pentru a stabili o vizionare: Rusanda Dorin
Citește mai mult Citește mai puțin
Curte Centrală proprie Încălzire prin pardoseală 2 Parcări Bine întreținut (Bună)

Detalii casă

ID anunț: XBV50120D Copiat! 274903601 Copiat!
Actualizat în: 11 Februarie 2026
Nr. bucătării: 1
Nr. băi: 2
Nr. terase: 1
Suprafață terase: 11 mp
Nr. fronturi stradale: 1
Front stradal: 8 m
Învelitoare acoperiș: Țiglă
An construcție: 2025 (Finalizată)
Structură rezistență: Cărămidă
Regim înălțime: P+1E

Utilități

Destinație
Rezidențial
Pereți
Faianță Vopsea lavabilă
Podele
Gresie Parchet
Ușă intrare
PVC
Uși interior
Celulare
Izolații termice
Exterior
Ferestre cu geam termopan
PVC
Contorizare
Contor gaz Apometre Contor căldură
Diverse
Scară interioară
Alte spații utile
WC Serviciu
Dotări imobil
Acoperiș
Utilități
CATV Gaze Curent Canalizare Apă
Acces internet
Cablu Fibră optică Wireless
Amenajare străzi
Asfaltate Pietruite Iluminat stradal Mijloace de transport în comun

Puncte de interes

Recreere
restaurant
La Paul
Restaurant aprox. 46 m
restaurant
Valery 3 (en)
Restaurant aprox. 1750 m

Detalii despre preț și costuri

Costuri cu achiziția

Fără credit
8.222 RON
Credit ipotecar
9.992 RON
Noua casă
930 RON+ taxe notariale

i

Costuri adiționale mai puțin știute la achiziție: taxe notariale, comisioane etc.

Proprietăți recomandate

Detalii de contact

360 Grade Imobiliare

Rusanda Dorin Consultant Imobiliar

360 Grade Imobiliare
PRO

Abonează-te la newsletter să fii primul care primește cele mai noi recomandări de proprietăți și sfaturi de la experți.

CONTACT

Creează alertă

Salvează căutarea ca să primești pe email ultimele anunțuri publicate

Duplexuri cu 4+ camere de vânzare în Moșnița Nouă, Județul Timiș