Duplex deosebit – 120 mp util | Terasă 35 mp | Curte 300 mp | Comision 0%

226.000 €

Moșnița Nouă, Județul Timiș

Nr. cam.:
5
Sup. utilă:
120 mp
Sup. teren:
300 mp
Tip prop.:
Duplex
  • • Locație exactă

Descriere casă

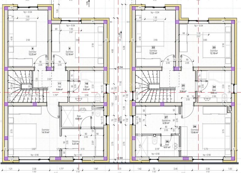
Moșnița Nouă, acces direct din DJ592 – zonă liniștită, aproape de magazine, școală, farmacii, transport public și toate facilitățile moderne. DETALII TEHNICE & SUPRAFEȚE Suprafață utilă: 120 mp Teren: aproximativ 300 mp Terasă acoperită: 36 mp / 27 mp Preț: 226.000 € Comision 0% – direct de la proprietar COMPARTIMENTARE Parter: Hol de acces Cameră birou sau dormitor pentru oaspeți Baie cu duș Bucătărie separată, cu ieșire pe terasă Living spațios și luminos, cu ieșire pe terasă Cameră tehnică (singura zonă comună între cele două unități, cu izolare fonică) Scară interioară către etaj Etaj: Dormitor matrimonial cu dressing și baie proprie Două dormitoare secundare spațioase Baie cu cadă și fereastră Hol de distribuție și acces în pod (spațiu generos de depozitare) CONSTRUCȚIE & FINISAJE Cărămidă Porotherm 25 cm + termoizolație 15 cm EPS 80 Tâmplărie Salamander cu geam tripan Placă separată între unități pentru izolare fonică superioară Acoperiș din țiglă Încălzire în pardoseală cu centrală pe gaz și termostate individuale UTILITĂȚI & EXTERIOR Gaz, apă, curent, canalizare, fibră optică Curte pavată cu 2 locuri de parcare Alei pietonale amenajate Poartă pregătită pentru automatizare și sistem CCTV Drum în curs de asfaltare (finalizare estimată 2025) AVANTAJE Cameră tehnică între unități pentru confort sporit Terasă mare, ideală pentru relaxare Pod înalt pentru depozitare Acces rapid către Timișoara, M City, Lidl, Penny, Fun Shop Park, Auchan Ideal pentru familie, oferind confort și intimitate Preț: 226.000 € Se acceptă credit bancar Oferim consultanță financiară și juridică gratuită pentru achiziție Pentru vizionări și detalii: Dorin – (disponibil și în weekend)
Citește mai mult Citește mai puțin
Curte Centrală proprie Încălzire prin pardoseală 2 Parcări Bine întreținut (Bună)

Detalii casă

ID anunț: XBV50120V Copiat! 275009171 Copiat!
Actualizat în: 18 Februarie 2026
Nr. bucătării: 1
Nr. băi: 2
Nr. terase: 1
Nr. fronturi stradale: 1
Învelitoare acoperiș: Țiglă
An construcție: 2025 (Finalizată)
Structură rezistență: Cărămidă
Regim înălțime: P+1E

Utilități

Destinație
Rezidențial
Pereți
Faianță Vopsea lavabilă
Podele
Gresie Parchet
Ușă intrare
PVC
Uși interior
Celulare
Izolații termice
Exterior
Ferestre cu geam termopan
PVC
Contorizare
Contor gaz Apometre Contor căldură
Diverse
Scară interioară
Alte spații utile
WC Serviciu
Facilități imobil
Acoperiș
Utilități
Gaze CATV Curent Canalizare Apă
Internet
Cablu Fibră optică Wireless
Amenajare străzi
Pietruite Iluminat stradal Mijloace de transport în comun

Puncte de interes

Recreere
restaurant
La Paul
Restaurant aprox. 87 m
restaurant
Valery 3 (en)
Restaurant aprox. 1822 m

Detalii despre preț și costuri

Costuri cu achiziția

Fără credit
10.660 RON
Credit ipotecar
12.732 RON
Noua casă
1.292 RON+ taxe notariale

i

Costuri adiționale mai puțin știute la achiziție: taxe notariale, comisioane etc.

Proprietăți similare

Duplex cu 4 camere în Moșnița Nouă
214.900 €
Județul Timiș, Moșnița Nouă
4 camere
112 mp
320 mp teren
Duplex cu 5 camere în Moșnița Nouă
246.990 €
Județul Timiș, Moșnița Nouă
5 camere
120 mp
334 mp teren
Duplex cu 4 camere în Moșnița Nouă
220.000 €
Județul Timiș, Moșnița Nouă
4 camere
152 mp
743 mp teren

Detalii de contact

360 Grade Imobiliare

Rusanda Dorin Consultant Imobiliar

360 Grade Imobiliare
PRO

Abonează-te la newsletter să fii primul care primește cele mai noi recomandări de proprietăți și sfaturi de la experți.

CONTACT

Creează alertă

Salvează căutarea ca să primești pe email ultimele anunțuri publicate

Duplexuri cu 4+ camere de vânzare în Moșnița Nouă, Județul Timiș