CASA SINGLE IN ZONA TRAPEZULUI / CURTE LIBERA 397MP. COMISION 0%!

360.000 € + TVA

1 Decembrie 1918, București

Nr. cam.:
5
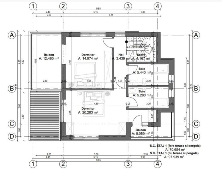
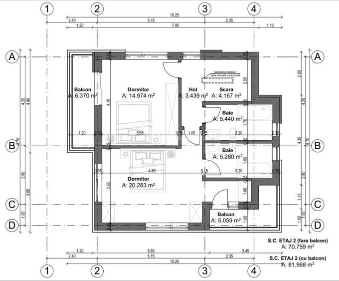
Sup. utilă:
167 mp
Sup. teren:
468 mp
Tip prop.:
Duplex
  • • Comision 0%
  • • Locație aproximativă

Descriere casă

Complex Rezidențial Premium de Vile Tip Duplex și Individuale – Zona 1 Decembrie 1918 / Trapezului Vă prezentăm un proiect deosebit, dedicat celor care își doresc o locuință modernă și elegantă, într-un mediu sigur și confortabil. Complexul va cuprinde 20 de vile premium, dintre care 2 vile individuale, oferind un stil de viață rafinat, în imediata apropiere a zonei 1 Decembrie 1918 și Trapezului. Caracteristici vila single: Suprafață utilă: Vila are o suprafață generoasă de 167 mp utili , oferind un spațiu bine compartimentat și funcțional. Curte libera: Vila dispune de o curte liberă de 397, ideală pentru relaxare, grădinărit sau activități în aer liber Construcție modernă: Vila este dotata cu sistem de încălzire în pardoseală, geamuri tripan pentru o izolare termică și fonică superioară, toalete încastrate pentru un aspect estetic plăcut și centrală proprie pe gaz, garantând confort și eficiență energetică Securitate și accesibilitate: Complex închis: Accesul va fi controlat prin barieră, asigurând un mediu sigur și liniștit pentru toate familiile locatare Facilități în proximitate: În imediata vecinătate a complexului vor fi disponibile terenuri de fotbal, terenuri de tenis și locuri de joacă pentru copii, contribuind la un stil de viață activ și sănătos pentru toți locuitorii Această oportunitate reprezintă o alegere ideală pentru familii care caută o locuință modernă, confortabilă și bine amplasată, într-o comunitate exclusivistă. Pentru mai multe informații sau programări de vizionare, nu ezitați să ne contactați!
Citește mai mult Citește mai puțin
Centrală proprie Încălzire prin pardoseală 2 Parcări

Detalii casă

ID anunț: XDU311094 Copiat! 275113078 Copiat!
Actualizat în: 25 Februarie 2026
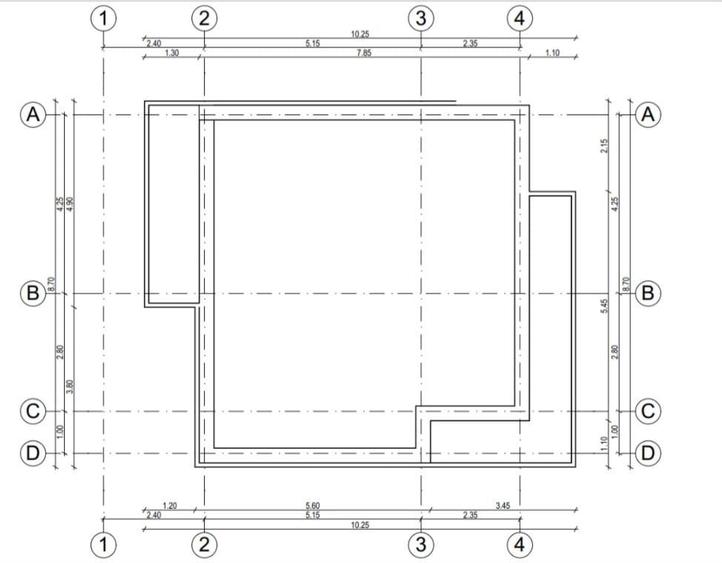
Suprafață construită: 65.47 mp
Suprafață desfășurată: 217 mp
Nr. bucătării: 1
Nr. băi: 5
Suprafață terase: 48 mp
Învelitoare acoperiș: Tabla
An construcție: 2026 (În construcție)
Structură rezistență: Beton
Tip imobil: Casă/Vilă
Regim înălțime: P+2E

Utilități

Izolații termice
Exterior
Contorizare
Apometre Contor gaz
Utilități
Curent Apă Canalizare CATV Gaze Telefon
Internet
Cablu
Amenajare străzi
Iluminat stradal Mijloace de transport în comun Asfaltate
Comision
0%

Disponibilitate proprietate:

Imediat

Puncte de interes

Mijloace transport
bus-station
Statia Sere, linia 223
Stații autobuz aprox. 529 m
bus-station
Statia Taberei, linia 223
Stații autobuz aprox. 566 m
tram-station
I.O.R. 2
Stații tramvai aprox. 1319 m
metro-station
Metrorex. Stația 1 Decembrie 1918(M3)(2008)
Stații metrou aprox. 1499 m
Școală
school
Scoala cu Clasele I-VIII Nr. 20 "Simion Mehedinti"
Școli aprox. 1249 m
school
Colegiul tehnic de chimie "Costin Nenitescu"
Școli aprox. 1333 m
kindergarten
Gradinita de copii nr. 211
Gradinițe aprox. 1368 m
kindergarten
Gradinita nr. 211
Gradinițe aprox. 1368 m
Recreere
park
* LA COCLAU - MOTOCROSS - TRASEU
Parcuri aprox. 698 m
bar
Bistro Burghez
Bar aprox. 1007 m
supermarket
Lidl
Supermarket aprox. 1187 m
sports-ground
Teren sportiv
Terenuri sport aprox. 1323 m

Detalii despre preț și costuri

Costuri cu achiziția

Fără credit
17.854 RON
Credit ipotecar
20.816 RON
Noua casă
2.360 RON+ taxe notariale

i

Costuri adiționale mai puțin știute la achiziție: taxe notariale, comisioane etc.

Proprietăți similare

Duplex cu 5 camere în 1 Decembrie 1918
360.000 € + TVA
București, 1 Decembrie 1918
5 camere
167 mp
468 mp teren
Duplex cu 5 camere în Ozana
379.900 €
București, Ozana
5 camere
115,9 mp
54,02 mp teren
Duplex cu 4 camere în Theodor Pallady
350.000 €
București, Theodor Pallady
4 camere
145,7 mp
326 mp teren

Detalii de contact

TOP REZIDENTIAL VISION SRL

Bogdan Ilie Agent

5.00(4 review-uri)

TOP REZIDENTIAL VISION SRL
PRO

Abonează-te la newsletter să fii primul care primește cele mai noi recomandări de proprietăți și sfaturi de la experți.

CONTACT

Creează alertă

Salvează căutarea ca să primești pe email ultimele anunțuri publicate

Duplexuri cu 4+ camere de vânzare în zona 1 Decembrie 1918, Sector 3