267

AFI Home North - studio dublu, mobilat&utilat premium, pet friendly, etajele 1-8

700 € + TVA / lună

Pipera, București

Nr. cam.:
1
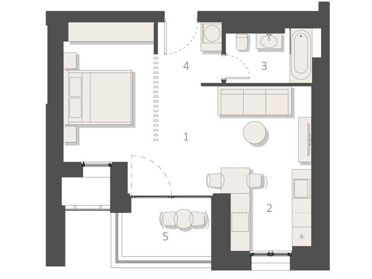
Sup. utilă:
42 mp
Etaj:
8 / 10
An constr.:
2025 (Finalizată)
  • • Comision 0%
  • • Locație exactă

Descriere apartament

AFI Home North este prima opțiune pentru cei care isi doresc sa traiasca în mijlocul acțiunii si sa faca parte dintr-o comunitate de profesioniști ce impartasesc aceleasi valori si viziuni pentru viitor. Descoperiti efervescenta unei vieti sociale pline de experiente inedite! Situat în centrul zonei de business a capitalei, AFI Home North ofera apartamente la cele mai inalte standarde de calitate, într-un complex modern, complet mobilat si utilat, dotat cu facilități exclusiviste menite sa asigure confort si relaxare. Acasa, într-un complex prestigios din București Disponibile pentru inchiriere pe termen lung, apartamentele noastre sunt concepute pentru cei care doresc sa faca un upgrade al stilului de viata si sa transforme timpul pierdut în trafic spre birou in momente petrecute alaturi de cei dragi. Bucurați-vă de sala de sport și de spațiul de co-working rezervate pentru uzul exclusiv al chiriașilor noștri. Pentru detalii suplimentare, poze si preturi vizitati
Citește mai mult Citește mai puțin
Confort lux Semidecomandat Acceptă animale de companie Mobilat Lux 1 Balcon / Terasă / Logie Curte comună Aer condiționat Încălzire prin pardoseală

Detalii apartament

ID anunț: XFPT00001 Copiat! 258884909 Copiat!
Actualizat în: 19 Ianuarie 2026
Nr. bucătării: 1
Nr. băi: 1
Tip imobil: Bloc de apartamente
Regim înălțime: P+10E

Utilități

Destinație
Rezidențial
Contorizare
Contor căldură Contor gaz Apometre
Bucătărie
Mobilată Utilată
Electrocasnice
Mașină de spălat Frigider Cuptor microunde Aragaz Hotă Mașină spălat vase TV
Internet
Fibră optică
Servicii imobil
Administrare Pază Supraveghere video
Comision
0%

Certificat energetic:

Clasa energetică: A

Vecinătăți:

AFI Home North – apartamente in centrul zonei de business a capitalei

AFI Home North este situat in zona cu cea mai mare densitate de cladiri de birouri din Bucuresti, oferind o solutie excelenta pentru reducerea timpului petrecut in trafic.

Această locație exclusivista oferă, de asemenea, acces rapid la principalele stații de metrou, aeroportul internațional Henri Coanda, avand in proximitate centre comerciale, parcuri, precum si cele mai cunoscute restaurante din oraș.

Această locație exclusivista oferă, de asemenea, acces rapid la principalele stații de metrou (Pipera si Aurel Vlaicu), aeroportul internațional Henri Coanda, avand in proximitate centre comerciale, parcuri, precum si cele mai cunoscute restaurante din oraș.

Alte detalii:

Avantaje pentru locatari:

• Sală de sport privata

• Spațiu de co-working privat

• Animalele de companie sunt binevenite

• Parcare subterană

• Statii de incarcare electrica

• Paza 24/7

• Loc de parcare & spatii de depozitare disponibile in complex, contra cost

Mai multe detalii pe www.afi-home.com

Disponibilitate proprietate:

78 de unitati, toate tipurile de apartamente :

studio dublu

duplex

2, 3 si 4 camere

Puncte de interes

Mijloace transport
tram-station
"Platforma Pipera" RATB terminal (en)
Stații tramvai aprox. 99 m
tram-station
Platforma Industriala Pipera (Coborare)
Stații tramvai aprox. 106 m
bus-station
Statia Marin Dracea, linia 135, N119, 112
Stații autobuz aprox. 414 m
metro-station
Pipera (M2)
Stații metrou aprox. 423 m
Școală
school
Colegiul Tehnic Edmond Nicolau, fostul Electronica
Școli aprox. 284 m
school
Grupul Scolar Industrial Constantin Brancusi (en)
Școli aprox. 377 m
kindergarten
Gradinita SOS Satul Copiilor
Gradinițe aprox. 910 m
kindergarten
Gradinita Miniterra
Gradinițe aprox. 1256 m
Recreere
park
Parc
Parcuri aprox. 108 m
restaurant
Casa Vera
Restaurant aprox. 114 m
supermarket
Carrefour
Supermarket aprox. 406 m
sports-ground
Teren sportiv
Terenuri sport aprox. 517 m

Detalii despre preț și costuri

Prețul pe piață

Preț cerut: 700 €

Preț min. zonă 400 €
Preț max. zonă 700 €

99% dintre proprietățile similare ca zonă și nr. camere au prețul cerut mai mare. mai multe...

Bine de știut: prețul unei proprietăți este influențat și de alte caracteristici, cum ar fi: vechime, localizare, vecinătăți, suprafață, compartimentare, amenajări, dotări, etc. mai puțin...

Proprietăți recomandate

Detalii de contact

Afi Home North

Diana Matei Leasing Specialist

Afi Home North

Abonează-te la newsletter să fii primul care primește cele mai noi recomandări de proprietăți și sfaturi de la experți.

CONTACT

Creează alertă

Salvează căutarea ca să primești pe email ultimele anunțuri publicate

Garsoniere de închiriat în zona Pipera, Sector 1