Garsoniera Suprafata Generoasa

82.500 €

Brașovul Vechi, Brașov

Nr. cam.:
1
Sup. utilă:
42 mp
Etaj:
6 / 8
An constr.:
1990 (Finalizată)
  • • Locație aproximativă

Descriere apartament

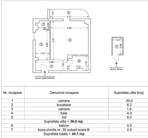
ALPIN REAL ESTATE Descopera aceasta proprietate, ideala pentru familie sau investitie, o garsoniera, situata la mica distanta de Centru. Proprietatea propusa este amplasata intr-un bloc de apartamente, dotat cu lift. COMPARTIMENTARE - Holul de acces - Living cu acces la balcon, orientare susdica - Bucatarie dotata cu camara - Baie dotata cu cada - Structura decomandata - An constructie 1990 DOTARI - Suprafata generoasa: 37 mp + balcon 5mp - Boxa depozitare la subsol - Incalzire cu centrala proprie - Etaj intermediar 6/8, pozitionata pe mijloc - Costuri minime pentru intretinere - Finisaje clasice - Lift nou CONDITII FINANCIARE - Pret imobil 82.500 € - Comision standard Avem cheile proprietatii pentru vizionare! Proprietatea se tranzactioneaza mobilata si utilata conform acestei prezentari. Se accepta achizitia prin intermediul unui credit bancar.
Citește mai mult Citește mai puțin
Confort 1 Decomandat Mobilat Mobilat 1 Balcon / Terasă / Logie Calorifere Centrală proprie

Detalii apartament

ID anunț: XFVO1001P Copiat! 275130572 Copiat!
Actualizat în: 28 Februarie 2026
Nr. bucătării: 1
Nr. băi: 1
Structură rezistență: Beton
Tip imobil: Bloc de apartamente
Regim înălțime: P+8E

Utilități

Destinație
Rezidențial
Pereți
Faianță Vopsea lavabilă
Podele
Gresie Parchet
Ușă intrare
Metal
Izolații termice
Exterior
Contorizare
Apometre Contor căldură Contor gaz
Bucătărie
Mobilată Utilată
Electrocasnice
Aragaz Frigider Mașină de spălat
Utilități
Curent Apă Canalizare CATV Gaze Telefon
Internet
Cablu
Amenajare străzi
Iluminat stradal Mijloace de transport în comun Asfaltate
Comision
standard

Disponibilitate proprietate:

Imediat

Puncte de interes

Mijloace transport
bus-station
Autogara 2 Brasov (Transbus)
Stații autobuz aprox. 212 m
bus-station
Statia "Stadionul Tineretului", linia 3,5barat,23,23barat,16
Stații autobuz aprox. 233 m
bus-station
Statia "Ecaterina Teodoroiu", linia 9,29
Stații autobuz aprox. 257 m
train-station
Gara Bartolomeu
Stații tren aprox. 939 m
Școală
kindergarten
Gradinita privata Gretel Kindergarten
Gradinițe aprox. 264 m
school
Academia Fortelor Aeriene "Henri Coanda"
Școli aprox. 270 m
kindergarten
Gradinita Iolanda
Gradinițe aprox. 452 m
university
Universitatea Creștină "Dimitre Cantemir"
Universități aprox. 869 m
Recreere
park
Park around the bridge (en)
Parcuri aprox. 535 m
sports-ground
Teren Sport
Terenuri sport aprox. 559 m
supermarket
Kaufland
Supermarket aprox. 682 m
restaurant
Hotel Casa Muresan
Restaurant aprox. 745 m

Detalii despre preț și costuri

Prețul pe piață

Preț cerut: 82.500 €

Preț min. zonă 41.000 €
Preț max. zonă 139.000 €

78% dintre proprietățile similare ca zonă și nr. camere au prețul cerut mai mare. mai multe...

Bine de știut: prețul unei proprietăți este influențat și de alte caracteristici, cum ar fi: vechime, localizare, vecinătăți, suprafață, compartimentare, amenajări, dotări, etc. mai puțin...

Costuri cu achiziția

Fără credit
5.287 RON
Credit ipotecar
6.693 RON
Noua casă
560 RON+ taxe notariale

i

Costuri adiționale mai puțin știute la achiziție: taxe notariale, comisioane etc.

Proprietăți similare

Garsonieră decomandată în Brașovul Vechi
85.500 €
Brașov, Brașovul Vechi
1 camere
44 mp
Etaj 6
Garsonieră semidecomandată, mobilată în Brașovul Vechi
84.500 €
Brașov, Brașovul Vechi
1 camere
44 mp
Etaj 6 / 8
Garsonieră decomandată, mobilată în Brașovul Vechi
84.500 €
Brașov, Brașovul Vechi
1 camere
44 mp
Etaj 6

Detalii de contact

Alpin Real Estate

Mircea Danciu Consultant Imobiliar

Alpin Real Estate
PRO

Abonează-te la newsletter să fii primul care primește cele mai noi recomandări de proprietăți și sfaturi de la experți.

CONTACT

Creează alertă

Salvează căutarea ca să primești pe email ultimele anunțuri publicate

Garsoniere de vânzare în zona Brașovul Vechi, Brașov